
This project is a weekend house in the mountains of the Sierra de Arteaga, in the state of Coahuila in northern Mexico. The house is laid out on the slope of an old orchard in mountainous surroundings, with the intention of having minimal impact on the site and natural vegetation. This solution also ensured the best views, as the orchard vegetation is much more open and lower than the surrounding forest.
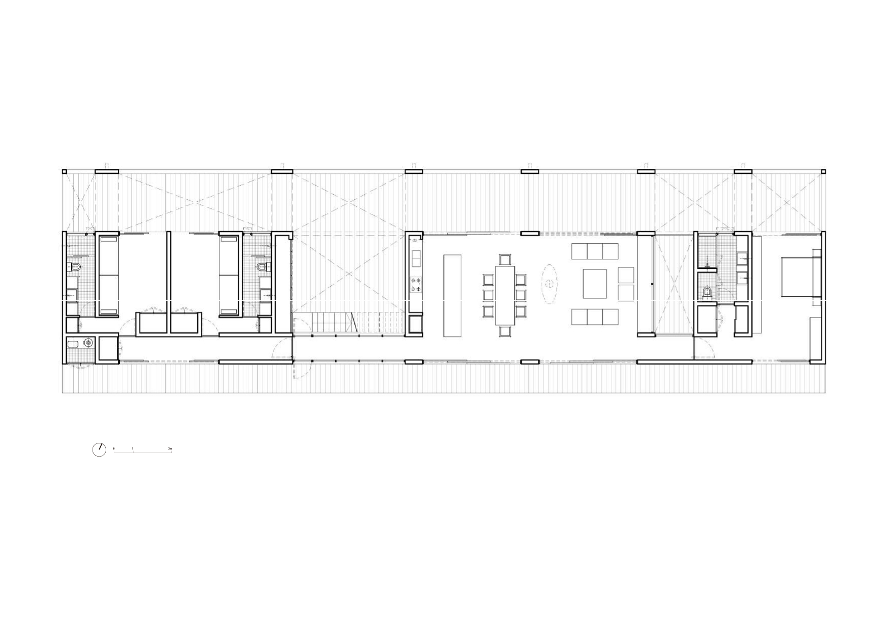
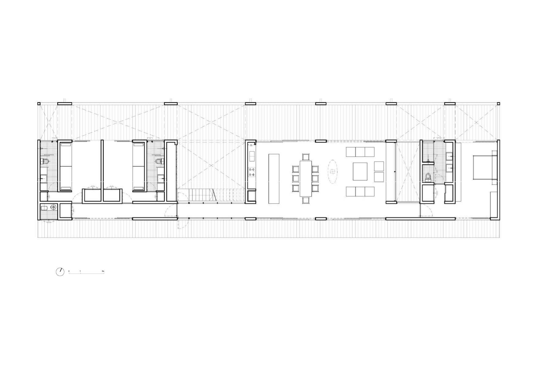
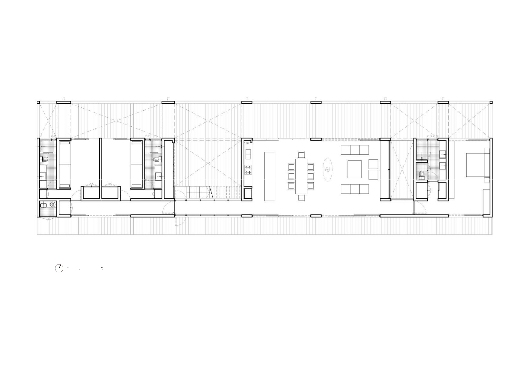
The house is divided into three parts: an elongated, 40 m × 10 m rectangle defining enclosed areas of shelter, the services at each end, and a central social area around the fireplace. All these areas are connected by a long terrace looking directly towards the mountains through a sequence of beams and pillars forming the external structure of the house while framing the natural landscape.
The volume is perforated with courtyards that break up the program and bring natural light inside. The largest of these contains a staircase leading up to the roof, where there are 360-degree views over the valley and the mountains. The construction comprises exposed concrete walls, pillars and beams poured with horizontal formwork, metalwork details, and large glass panels with aluminum frames. The site also contains a viewpoint and firepit that is independent of the house and an outdoor table seating up to 20, both constructed as concrete monoliths.
The house is understood as a kind of sanctuary, where its users move away from the city and meet nature. The house allows them to connect with their natural environment, generating a deep awareness of the place, resources and the world they inhabit in a safe and pleasant way. Although the house belongs to a family, the experience of going to their refuge in the mountains generates moments of reflection and self-discovery to each of its members, according to their ages, their roles and family responsibilities. The house is understood as a refuge and an observatory, an instrument to observe the landscape, the mountains and the forest and feel the time passing by.













건축가 S-AR
위치 Mexico, Coahuila, Arteaga
연면 286㎡
공사기간 2018 - 2021
준공 2013
구조 Bernardo Bremer + Daniel Hernández
사진작가 Rafael Gamo
'Architecture Project > Single Family' 카테고리의 다른 글
| Rawda Radiance (0) | 2024.11.06 |
|---|---|
| Garden Stair House (0) | 2024.11.04 |
| Parada das Estrelas (0) | 2024.10.18 |
| The April House (0) | 2024.10.15 |
| HOUSE IN STONES (0) | 2024.10.14 |
마실와이드 | 등록번호 : 서울, 아03630 | 등록일자 : 2015년 03월 11일 | 마실와이드 | 발행ㆍ편집인 : 김명규 | 청소년보호책임자 : 최지희 | 발행소 : 서울시 마포구 월드컵로8길 45-8 1층 | 발행일자 : 매일



