
Immersed in the native forest of Córdoba, near the town of Taninga, surrounded by quebrachos, carobs, chañars, wild apples, cactus, wildflowers, and thousands of other species, this house hides itself, protected behind immense rocks.
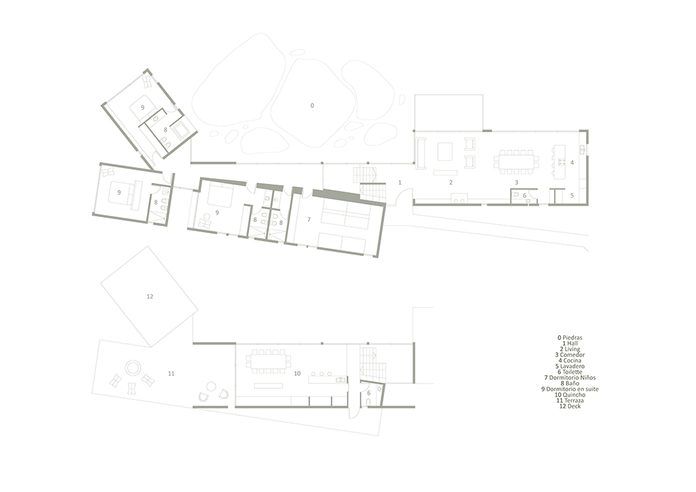
The house is a placce to rest with flexible uses for a multifamily (accommodating three siblings and their families) and a smaller independent home for their mother.
The main concept is to embrace the rocks, and with a view toward the river, two horizontal volumes unfold, as the program allows, literally emerging from the mountainous terrain and stones.
Given the harsh climatic conditions of the area (very cold, dry, and windy), its remoteness from any nearby town, difficult access, and lack of specialized construction labor, the choice of construction system became a key factor in the project. An industrialized system was selected, allowing easy transport of all materials (lightweight) and installation under unfavorable physical conditions (harsh weather, no water, no electricity, etc.).
The two predominant materials were chosen in direct reference to the landscape: corten steel cladding, relating to the earthy tones of the autumn vegetation, and black Portoro stone- plastic cladding, matching the texture and color of the surrounding rocks. Both materials also have good resistance to the climate and age well with minimal maintenance.
As for the functional program of the main house, it is developed on one floor with two split levels. On the ground floor, the access area includes the kitchen, dining room, living room, and a terrace with a grill.
This is the expansion area and viewpoint. Half a level down, there are three en-suite bedrooms and a large bedroom with a bathroom. Half a level up, there is a barbecue area with a wine cellar and two terraces, also serving as viewpoints.
The "mamahouse" was designed separately, providing a completely independent unit from the main house with its own program: living room, dining room, and kitchen integrated into one space, and a bedroom with a bathroom. All the rooms open onto a terrace with a grill and a vast landscape view.
Common areas for both homes include a swimming pool, paddle court, and garage.
The house opens to the north, revealing the grandeur of the mountains and capturing as much light and warmth as possible.
Inside the house, the design concept focuses on providing spaciousness to each area, prioritizing versatile and rustic furnishings. Wood was chosen as the predominant material due to the quality it conveys and its strong connection to the idea of a country home. Monolithic stucco floors in taupe tones were used throughout the house. From the interior, the connection to the exterior is constant, and in the hallway connecting the bedrooms, the rocks seem to become part of it.
The result of this project was to scale the living space within this vastness and celebrate the stunning views of nature in every room.
Mariana Palacios, 54 years old, architect graduated from the Universidad Católica de Córdoba in 1993. Founder of Estudio Palacios since 1995.
María Azul Sánchez, 25 years old, architect graduated from the Universidad Católica de Córdoba in 2021, joined the firm in 2020. Mother and daughter.
The firm is known for its track record in the design, development, and construction of both commercial architecture and single- family homes. It stands out in the professional field for its strong emphasis on contemporary urban home design. Since 2016, the firm has specialized in the design and construction of mountain homes, offering a way to blend architecture and landscape in a rural, hard-to-access environment. Their work has been featured in numerous national and international magazines and specialized media outlets.












건축가 EstudioPalacios
대표건축가 Mariana Palacios and Azul Sánchez
디자인팀 Mariana Palacios, Azul Sánchez
위치 Taninga, Córdoba, Argentina
면적 453㎡ ( House 378㎡ , Guest House 75㎡)
설계년도 2022
시공년도 2023
준공년도 2024
사진작가 Arq. Gonzalo Viramonte
'Architecture Project > Single Family' 카테고리의 다른 글
| Parada das Estrelas (0) | 2024.10.18 |
|---|---|
| The April House (0) | 2024.10.15 |
| Habitação Áurea (0) | 2024.09.27 |
| House in Fujiidera (0) | 2024.09.24 |
| Vista House (0) | 2024.09.23 |
마실와이드 | 등록번호 : 서울, 아03630 | 등록일자 : 2015년 03월 11일 | 마실와이드 | 발행ㆍ편집인 : 김명규 | 청소년보호책임자 : 최지희 | 발행소 : 서울시 마포구 월드컵로8길 45-8 1층 | 발행일자 : 매일



