
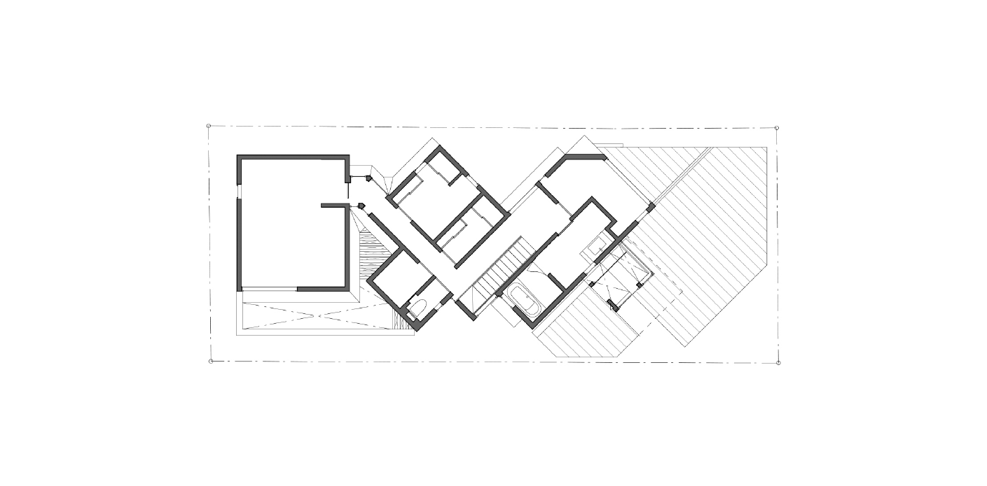
후지데라 주택은 건축주의 4인 가족을 위한 주택이다. 대지는 길고 좁은 형태로, 신축 건물을 지그재그 형태로 배치하여 그 경계 내에서 적정한 거리감을 형성했다. 가족 구성원은 서로 교류하거나 혼자만의 시간을 즐길 수 있고, 필요에 따라 가족 간의 편안한 거리를 유지하며 의사소통을 용이하게 한다.
후지데라 주택의 핵심은 작은 공간을 여럿 겹쳐서 거리감과 공간적 깊이감을 만드는 것이다. 주택의 출입구부터 후면까지 골목처럼 마련된 복도로 연결되어 있고, 복도에는 각각의 개별 공간이 배치되어 있다. 가족 구성원은 다양한 방식으로 시간을 보낼 수 있는 가변 공간을 원하는대로 이동하거나 서로 합리적인 거리를 유지할 수 있다. 각 구역과 부지 경계 사이의 공간은 정원의 빛, 바람, 전망 등이 가능하도록 설계되었다. 1층에는 출입구, 차고, 서재, 작업공간, 주방, 식당, 거실 등이 있으며, 2층은 1층과 마찬가지로 복도의 양쪽에 방이 있다.
건축가는 내부와 외부의 단순한 구분을 흐리게 하여 연속감을 조성했다. 건물 내부로 침투한 처마도 외부를 내부로 끌어들이기 위한 요소 중 하나이다. 벽면에 사용된 재료는 일본의 전통 건축물에서 많이 사용하는 탄화 처리를 한 삼나무다. 경계를 흐리게 하기 위해 안쪽까지 바닥재가 연결되었는데, 이는 고군분이 있는 후지데라의 전통적인 분위기를 맞추었다. 내외부의 빛과 조명의 음영을 통해 거리감과 깊이감을 조성하며, 작은 부분은 어둡게 하여 확장감을 만들고 복도와 실의 끝에 창과 정원을 두어 시선을 만들었다. 조명의 밝기를 최소화하고 자연광을 사용하여 내부 공간의 일부를 조명함으로써 층상 공간의 감각을 제공한다.

Fujiidera House is a residence designed for a family of four. The site is long and narrow, and the new building was constructed in a zigzag pattern to create appropriate spatial distances within its boundaries. This design allows family members to interact or enjoy time alone, maintaining comfortable distances as needed.
The core concept of Fujiidera House is layering multiple small spaces to create a sense of depth and spatial distance. From the entrance to the back of the house, a hallway resembling a narrow alley connects the spaces, with individual rooms arranged along it. Family members can freely move between these adaptable spaces or maintain a distance from one another. The spaces between the different areas and the boundaries of the plot are designed to allow light, wind, and views from the garden. On the first floor, there is the entrance, garage, study, workspace, kitchen, dining room, and living room, while the second floor mirrors the first with rooms on both sides of the hallway.
The architect blurred the simple distinction between interior and exterior to create a sense of continuity. Eaves extending into the interior were one of the elements used to draw the outside in. The walls are made from charred cedar, a material commonly used in traditional Japanese architecture. To further blur the boundaries, the flooring extends inward, matching the traditional atmosphere of Fujiidera, a historic temple area. Through the interplay of light and shadows inside and out, the house creates a sense of distance and depth. Small areas are kept dim to create a feeling of expansion, while windows and gardens are positioned at the ends of hallways and in rooms to direct the view. By minimizing artificial lighting and using natural light to illuminate parts of the interior, the house offers a layered spatial experience.














건축가 FujiwaraMuro Architects
위치 일본, 오사카시
대지면적 194.06㎡
건축면적 96.95㎡
연면적 139.93㎡
준공 2023
구조 wooden
사진작가 Katsuya(studioREM), Taira
해당 프로젝트는 건축문화 2024년 9월호(Vol. 520)에 게재되었습니다.
The project was published in the September, 2024 recent projects of the magazine(Vol. 520).
September 2024 : vol. 520
Contents : RECORDS Worldwide Architectural Festival, ‘Serpentine Pavilion’ Meets in Seoul세계적인 건축 축제, ‘서펜타인 파빌리온’을 서울에서 만나다 : COMPETITION : RECENT PROJECT PICT. SQUARE(The PICT.‘s
anc.masilwide.com
'Architecture Project > Single Family' 카테고리의 다른 글
| HOUSE IN STONES (0) | 2024.10.14 |
|---|---|
| Habitação Áurea (0) | 2024.09.27 |
| Vista House (0) | 2024.09.23 |
| House “irfn” (0) | 2024.09.20 |
| House in Shukugawa (0) | 2024.09.19 |
마실와이드 | 등록번호 : 서울, 아03630 | 등록일자 : 2015년 03월 11일 | 마실와이드 | 발행ㆍ편집인 : 김명규 | 청소년보호책임자 : 최지희 | 발행소 : 서울시 마포구 월드컵로8길 45-8 1층 | 발행일자 : 매일



