
대지는 도시의 주요 도로가 움푹 들어간 강변의 주택가에 위치하며, 주택의 서측으로 크고 긴 건물이 자리 잡고 있다. 건축주는 다소 어수선한 주변 환경과 어느 정도 경계를 지니면서도 개방감을 느낄 수 있는 주택을 원했으며, 차고가 필수 공간이었다. 이에 따라 차고지에 필요한 공간을 정한 후 대지의 특성을 살릴 수 있는 계획을 세웠다.
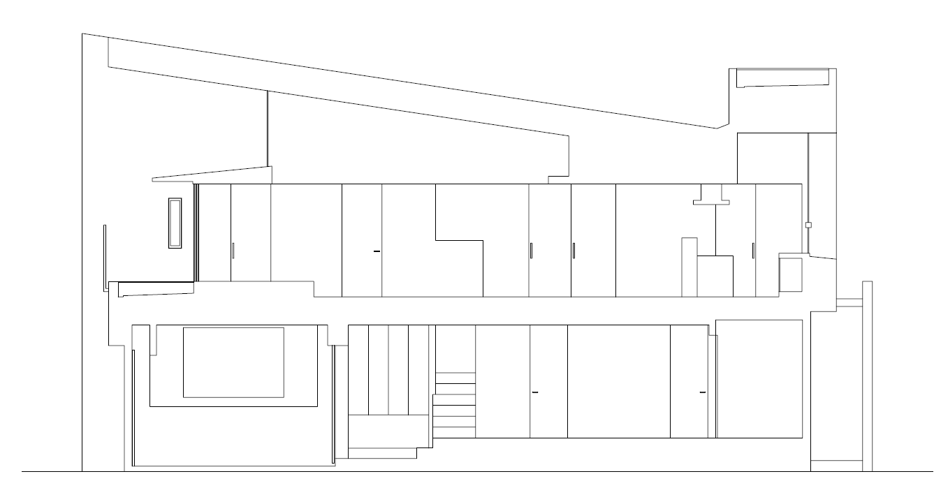
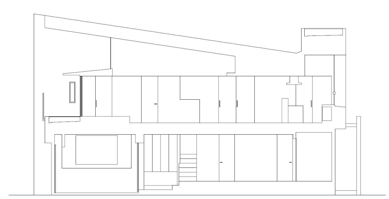
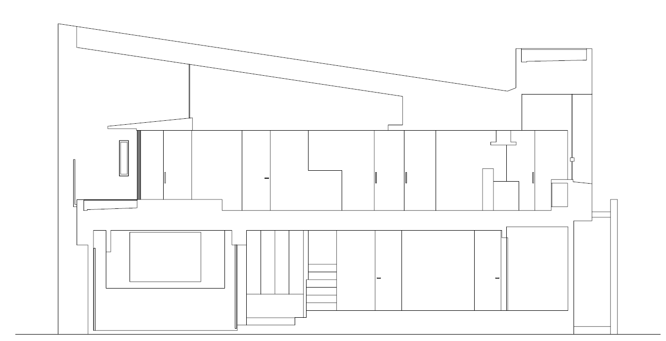
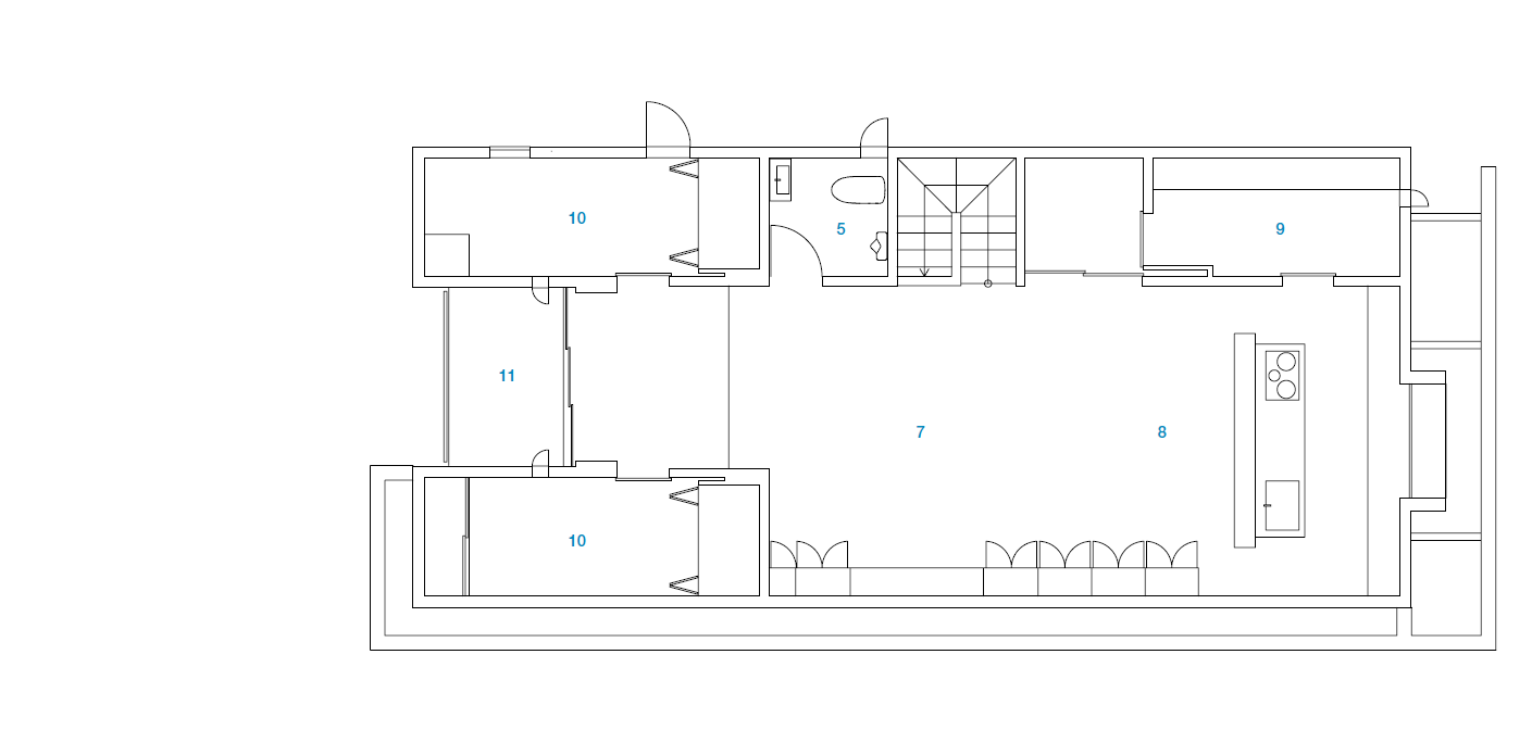
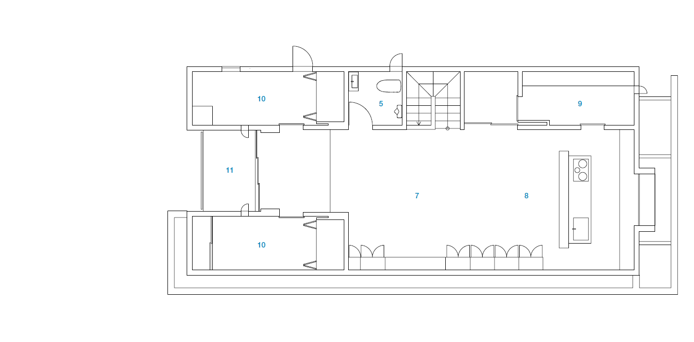
동서로 이어지는 좁고 긴 대지에 맞게 건축물을 배치하면서 사생활을 보호할 수 있도록 벽의 개방은 최소한으로 했다. 대지의 서측으로 인접한 크고 긴 건물은 대지와 마주한 방향으로 개방적인 외부 공간을 가지고 있었다. 건축가는 이를 최대한 활용하여 인접한 건물을 향해 입구와 발코니를 두고 시야를 개방하여 객실 내부를 조망할 수 있게 하였다. 이렇게 다듬어진 전망은 도시화된 풍경을 자아내며 실내의 세련된 분위기를 연출한다. 대지에서 건물이 차지하는 비중이 큰 만큼 납작한 지붕과 차고의 대비가 만들어 내는 자유롭고 생동감 있는 존재감 속에서 외벽의 스프레이 코팅과 갈바륨 마감의 조화가 돋보인다. 출입구의 슬라이딩 도어를 열면, 내부 공간은 홀과 극적으로 확장되어 합쳐진다. 실내는 블랙 톤으로 통일되어 있는데, 무광 유리에 약한 빛이 스며들어 주택의 여러 물체와 창턱에 자리잡은 오브제의 윤곽을 강조한다. 광택이 나는 바닥의 반사는 색다른 상황을 연출한다. 2층의 LDK는 동측과 서측의 풍경을 연결하는 입구와 경사가 높은 천장을 활용하여 역동적인 느낌으로 제안했다.

This site is located in a residential area along a riverside, recessed from the city's main road, with a large, long building situated to the west. The client desired a home that would provide a sense of openness with a boundary separating it from the rather cluttered surroundings. A garage was also a necessary feature. Based on this, a plan was developed that allocated the required space for the garage and maximized the characteristics of the plot.
The building was placed in alignment with the narrow, elongated east-west parcel, with minimal wall openings to ensure privacy. The large, long building adjacent to the west side of the site featured open outdoor spaces facing the lot. The architect made the most of this by placing the entrance and balcony towards the neighboring building, creating an open view that allowed the interior spaces to overlook the surroundings. This refined view evokes an urbanized landscape while contributing to a sophisticated atmosphere inside the house. Given the large footprint of the building on the plot, the flat roof and contrasting garage contribute to a free-flowing, dynamic presence, with the harmony of the spray-coated exterior walls and the Galvalume finish standing out. When the sliding doors at the entrance are opened, the interior dramatically expands, merging with the hall. The interior is finished in black tones, with soft light filtering through matte glass, highlighting the contours of objects and decorations placed on the window sills. The glossy floor reflects the light, creating a unique atmosphere. The living room, dining room, and kitchen space on the second floor utilizes the entrance and high-sloped ceilings, which connect the east and west views, to create a dynamic impression.













건축가 FORM|Kouichi Kimura Architects
위치 일본, 시가현
대지면적 156.87㎡
연면적 169.94㎡
준공 2023
사진작가 Norihito Yamauchi
해당 프로젝트는 건축문화 2024년 9월호(Vol. 520)에 게재되었습니다.
The project was published in the September, 2024 recent projects of the magazine(Vol. 520).
September 2024 : vol. 520
Contents : RECORDS Worldwide Architectural Festival, ‘Serpentine Pavilion’ Meets in Seoul세계적인 건축 축제, ‘서펜타인 파빌리온’을 서울에서 만나다 : COMPETITION : RECENT PROJECT PICT. SQUARE(The PICT.‘s
anc.masilwide.com
'Architecture Project > Single Family' 카테고리의 다른 글
| Habitação Áurea (0) | 2024.09.27 |
|---|---|
| House in Fujiidera (0) | 2024.09.24 |
| House “irfn” (0) | 2024.09.20 |
| House in Shukugawa (0) | 2024.09.19 |
| MyouKei-An House (0) | 2024.09.18 |
마실와이드 | 등록번호 : 서울, 아03630 | 등록일자 : 2015년 03월 11일 | 마실와이드 | 발행ㆍ편집인 : 김명규 | 청소년보호책임자 : 최지희 | 발행소 : 서울시 마포구 월드컵로8길 45-8 1층 | 발행일자 : 매일



