
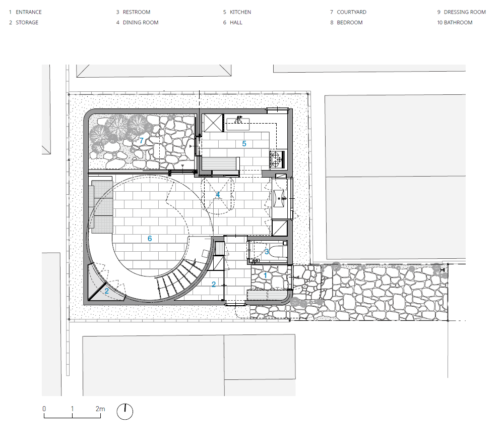
슈쿠가와 주택은 효고현의 풍부한 자연 속 저택이 밀집된 조용한 주거 지역에 지어졌다. 이 지역은 높은 토지료로 인해 세분화된 대지가 각각 연결되어 주택이 밀집한 곳이다. 슈쿠가와 주택은 2층 규모의 주택으로 둘러싸인 아담한 대지에 계획되었다. 이러한 대지환경에서 프라이버시를 고려하면, 외부로 개방하기 어려운 조건을 지니고 있었다. 건축가는 이러한 한계를 극복하고 건물 내부에 독립적인 공간이 만들어질 수 있도록, 주변과 과감하게 분리되어 안뜰과 돔 공간을 형성한 주택을 제안했다. 건축물의 면적은 작은 대지 내에서 최대로 크게 설정되어 있다. 박스 형태의 2층 목구조 건물은 주변의 시선으로부터 차단된다. 채광이 잘 들어오는 북측 코너에는 안뜰이 있어서 주택 안에서도 사계절과 자연을 느낄 수 있다.
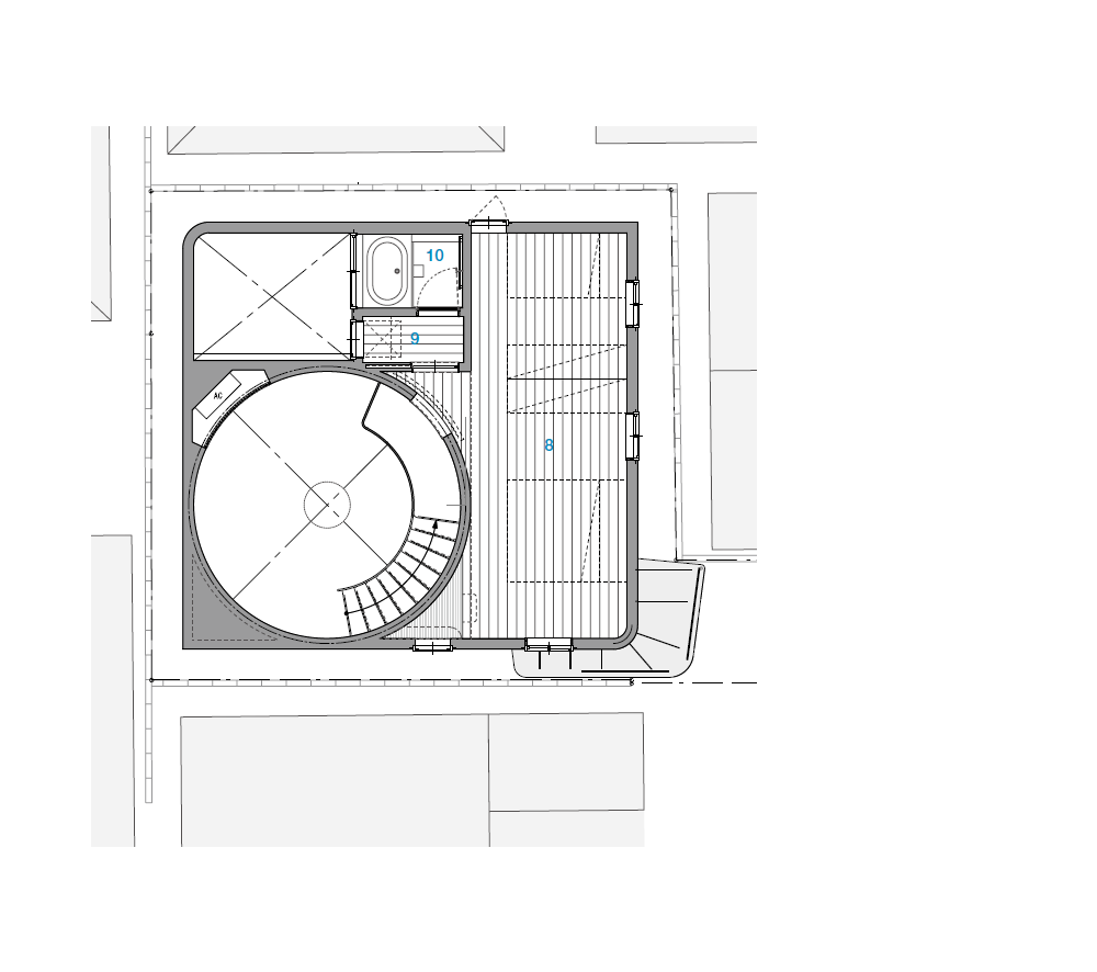
이 안뜰을 중심으로 거실과 식사 공간이 포함된 홀, 주방, 기타 활동 공간을 조성했다. 욕실과 개인 침실은 최소한의 크기로 2층에 있다. 침실의 가구는 방 배치에 따라 이동이 가능하다. 돔형의 홀은 거주자들의 삶을 수용할 수 있는 가장 특징적인 공간이다. 이 공간에서는 가족 모임이 이루어지며, 안뜰의 개방성과 넓은 보이드를 통해 아늑한 분위기를 연출한다. 이 덕분에 주택의 전체적인 형태는 닫힌 상자처럼 보이지만, 내부에서는 비좁은 느낌이 들지 않고 오히려 가족, 친구들과 친밀함을 느낄 수 있는 규모가 되었다. 1층에 마련된 타일 바닥과 테라스를 지닌 다이닝 공간, 발코니 공간을 형성하는 계단, 상징적인 탑 라이트 등은 주택임에도 공공시설의 단정한 분위기를 자아낸다. 이는 사적인 공간의 분위기를 지닌 2층과 대조를 이루며, 주택 내부에 다양한 분위기를 조성한다.

Shukugawa House was built in a quiet residential area dense with luxury homes in Hyogo Prefecture, surrounded by abundant nature. Due to the high cost of land, the plots in this area are subdivided and connected, resulting in tightly packed residences. Shukugawa House was planned for a small plot, surrounded by two-story houses. Given the need for privacy, the conditions made it difficult to open the house outward. The architect proposed overcoming these limitations by boldly separating the house from its surroundings, creating an inner courtyard and a dome space to form an independent internal environment. The building's footprint was maximized within the small plot. The box-shaped, two-story wooden structure is shielded from the view of the surrounding houses. There is a courtyard on the well-lit northern corner, allowing the residents to experience the changing seasons and nature from within the home.
Around this courtyard, a hall that includes the living and dining rooms, the kitchen, and other activity areas was created. The bathroom and private bedrooms are located on the second floor and are kept to a minimal size. The bedroom furniture can be rearranged according to the layout of the room. The dome-shaped hall is the most distinctive space, adapting the residents' daily lives. This space is the location of family gatherings, and through the openness of the courtyard and the spacious void, a cozy atmosphere is created. Thanks to this design, although the house appears to be a closed box from the outside, it feels neither cramped nor isolated on the inside; rather, it fosters intimacy among family and friends. The first-floor dining area, with its tiled floors and terrace, the stairs forming a balcony, and the iconic top light, give the house the neat atmosphere of a public structure. This contrasts with the private atmosphere of the second floor, creating a variety of moods within the home.
















건축가 arbol + Ashitaka Architect Atelier
위치 일본, 효고현, 니시노미야시
대지면적 89.35㎡
건축면적 42.56㎡
연면적 70.10㎡
구조 Wooden
설계기간 2022. 11. - 2023. 7.
시공기간 2023. 8. - 2024. 3.
준공 2024. 3.
대표건축가 Yosaku Tsutsumi(arbol), O Kato(Ashitaka Architect Atelier)
시공 Minoru Koumuten Co.
인테리어 raum
조명 Kazuhiko Hanai, Daiko Electric Co.
조경 Ogino Landscape Design Co.
사진작가 Yasunori Shimomura, O Kato
해당 프로젝트는 건축문화 2024년 9월호(Vol. 520)에 게재되었습니다.
The project was published in the September, 2024 recent projects of the magazine(Vol. 520).
September 2024 : vol. 520
Contents : RECORDS Worldwide Architectural Festival, ‘Serpentine Pavilion’ Meets in Seoul세계적인 건축 축제, ‘서펜타인 파빌리온’을 서울에서 만나다 : COMPETITION : RECENT PROJECT PICT. SQUARE(The PICT.‘s
anc.masilwide.com
'Architecture Project > Single Family' 카테고리의 다른 글
| Vista House (0) | 2024.09.23 |
|---|---|
| House “irfn” (0) | 2024.09.20 |
| MyouKei-An House (0) | 2024.09.18 |
| House H (0) | 2024.09.17 |
| Jocheon Yockjang (0) | 2024.09.12 |
마실와이드 | 등록번호 : 서울, 아03630 | 등록일자 : 2015년 03월 11일 | 마실와이드 | 발행ㆍ편집인 : 김명규 | 청소년보호책임자 : 최지희 | 발행소 : 서울시 마포구 월드컵로8길 45-8 1층 | 발행일자 : 매일



