
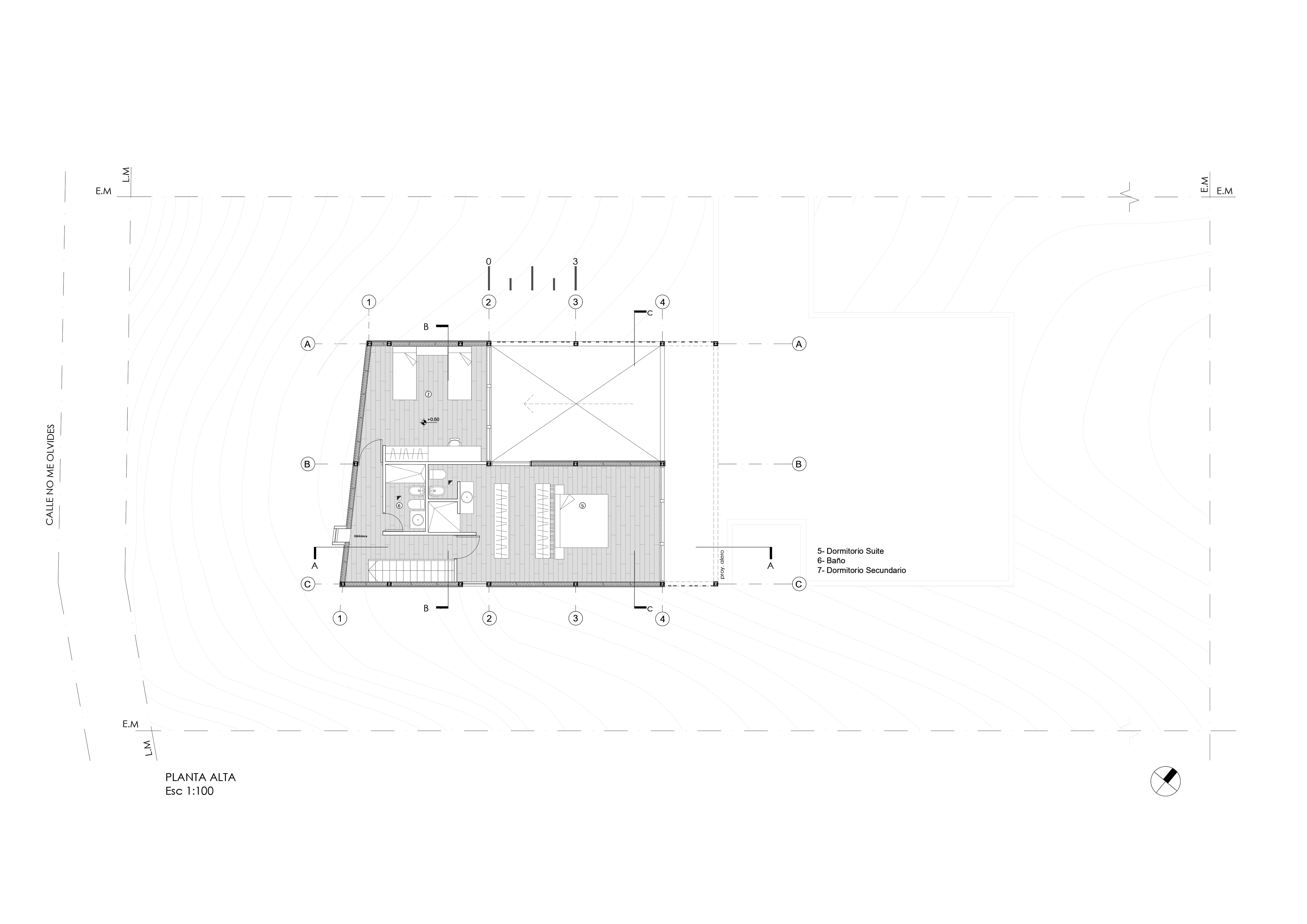
카사 솔라는 자연 및 경관 가치가 높은 환경에서 살기로 결정한 가족을 위한 의뢰이다. 이 집의 표면적은 250㎡이며 1850㎡의 부지에 빌라 파르케 시키만에 위치해 있다.

이 땅은 주변 지역 전체의 배수구 역할을 하는 10m 깊이의 자연 계곡으로 구성되어 있으며, 빗물이 산 로크 호수로 유입된다. 토양은 덤불과 풍부한 산악 숲이 산재해 있어 이곳을 통과하는 물의 일부를 흡수한다. 길에서 보면 호수를 바라보는 시야가 매우 넓고 시간과 계절에 따라 달라진다.

집은 계곡 깊은 곳에 위치하여 공동을 사용하여 집을 지지하고 거리에서 시각적으로 미치는 영향을 줄일 뿐만 아니라 보호한다. 기존 습도는 온도 차이를 완화하는 완충 역할을 하고, 숲의 식생은 태양과 바람으로부터 이중으로 보호하는 정면 역할을 하며, 시각적 요소는 반사, 다양한 수준의 빛과 그림자를 통해 집의 공간에 참여하며, 태양 에너지는 이동식 지붕을 통해 제어된 방식으로 사용된다.

집은 빈 공간으로 구성되어 있다. 이 중간 및 틈 공간은 자연 환경과의 환경 및 시각적 관계를 강조하여 시간이 지남에 따라 생명, 인간, 건축과 함께 진화하는 구조를 만든다. 이러한 비어 있는 공간은 지속 가능한 사고방식의 현대적인 시간과 에너지를 반영하여, 단순하지만 의미 있는 방식으로 내부 공간의 에너지와 열 제어를 더해 다양한 분위기를 조성한다. 지붕은 온도에 따라 모터로 완전히 닫히거나 부분적으로 열릴 수 있으며, 태양광의 양을 조절하여 내부 환경을 최적화한다. 겨울에는 필요한 일사량을 확보하고, 여름에는 태양광을 조절함으로써 실내외 공간의 특성이 태양 에너지의 필요에 따라 변화하며, 편안함과 에너지 절약을 동시에 실현하는 혁신적인 방식을 제공한다.






건축가 Pablo Senmartin Arquitectos
위치 Argentina, Córdoba, Villa parque Siquiman
건축면적 250m²
준공 2024
대표건축가 Pablo Senmartin
디자인팀 Laura García, Matías Museta, Sol fuentes, Diego Soria, Milagros Suarez, Federico Miralles, Matías Lombardi, Ximena Cataño, Sabrina Roja.
구조엔지니어 Ing. Enrique Senmartin
사진작가 Andrés Dominguez, Federico Cairoli
해당 프로젝트는 건축문화 2024년 11월호(Vol. 522)에 게재되었습니다.
The project was published in the November, 2024 recent projects of the magazine(Vol. 522).
November 2024 : vol. 522
Contents : COMPETITION : RECENT PROJECTAON BLDG / LKSA에이온빌딩 / (주)엘케이에이 건축사사무소 N22014 PJ / BSN ARCHI. 논현동 리모델링 프로젝트 / 비에스엔 건축사사무소 GGDD / CIID(Contemporary Idea for Int
anc.masilwide.com
'Architecture Project > Single Family' 카테고리의 다른 글
| Sinal House (0) | 2024.11.19 |
|---|---|
| A House Within a Few Lines (0) | 2024.11.18 |
| House in Muko (0) | 2024.11.15 |
| House with Cross-shaped Earthen Floor (0) | 2024.11.14 |
| Rawda Radiance (0) | 2024.11.06 |
마실와이드 | 등록번호 : 서울, 아03630 | 등록일자 : 2015년 03월 11일 | 마실와이드 | 발행ㆍ편집인 : 김명규 | 청소년보호책임자 : 최지희 | 발행소 : 서울시 마포구 월드컵로8길 45-8 1층 | 발행일자 : 매일



