
BALI, INDONESIA — Alexis Dornier Makings has completed "Rumah Tresna," a private residence inn located in Bali. The residence, designed by Alexis Dornier, features reclaimed timber sourced from historical structures such as old railroad tracks, bridges, and sunken ships. This choice of materials is part of an effort to utilise sustainable resources, adding a unique historical element to the structure's aesthetic.
"Rumah Tresna" combines traditional Indonesian architectural styles with modern design principles. The residence includes a large covered outdoor area within the main house, blending indoor and outdoor environments. The design incorporates a pool that integrates with the living space, creating a fluid living environment. Large trees around the property provide shade, contributing to natural cooling both indoors and out.
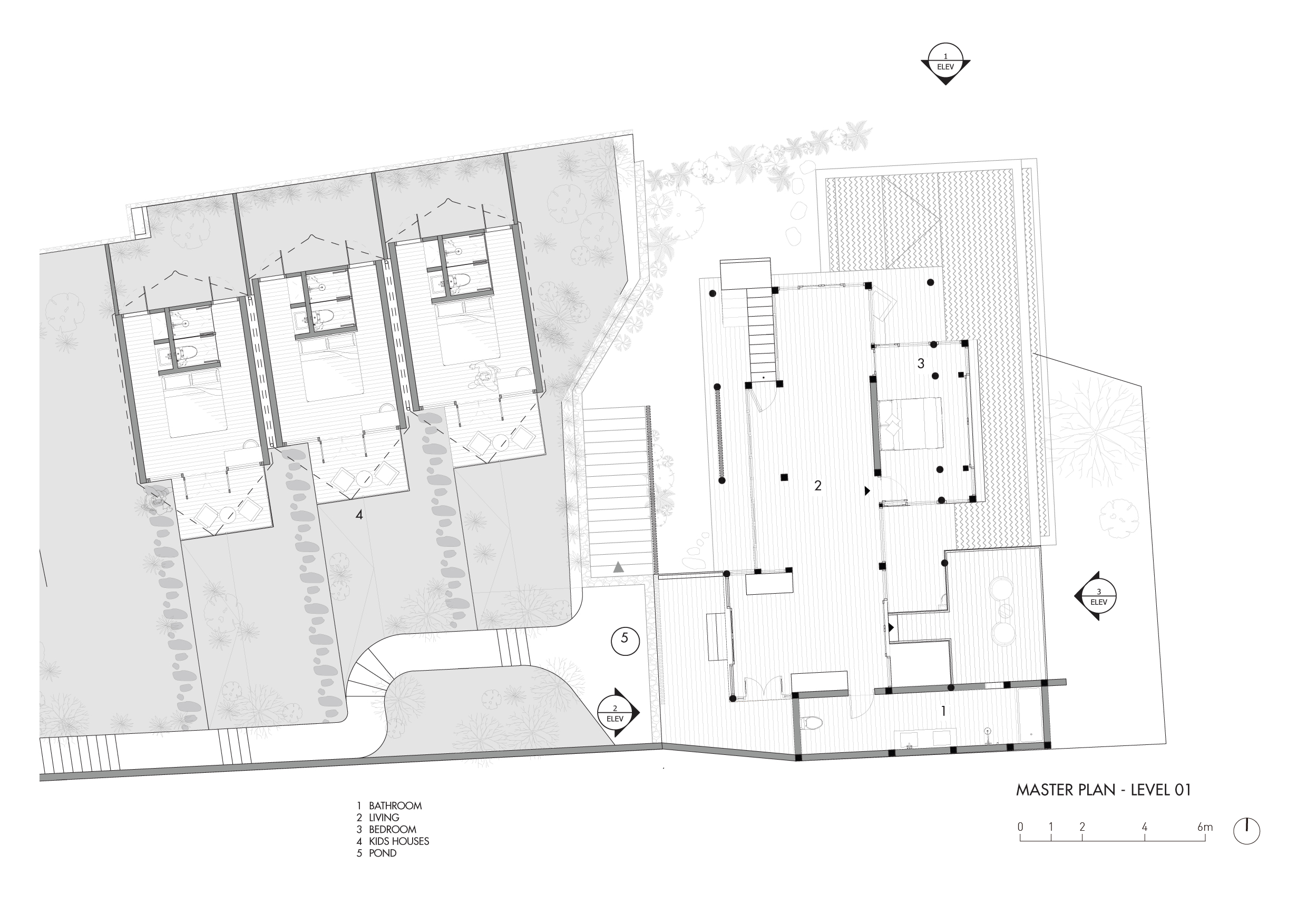
The ensemble includes a main house and three guest houses. Inspired by Sumatran architecture, the guest houses feature pointed roofs and arched windows that balance these dynamic forms. Strategic use of glass and wide overhangs help manage the indoor climate, protecting against rain and sun while maintaining natural light.








위치 Indonesia, Bali, Ubud, Mas
연면적 main house 394m² + 3 guest houses each 29m²
준공 2020
대표건축가 Alexis Dornier
건축 디자인팀 Ida Bagus Oka (main house), Alexis Dornier (additional 3 guest/ kids houses and remodelling main house)
시공 Surya Kembar
조경 Surya Kembar
사진작가 vandiangga
해당 프로젝트는 건축문화 2024년 11월호(Vol. 522)에 게재되었습니다.
The project was published in the November, 2024 recent projects of the magazine(Vol. 522).
November 2024 : vol. 522
Contents : COMPETITION : RECENT PROJECTAON BLDG / LKSA에이온빌딩 / (주)엘케이에이 건축사사무소 N22014 PJ / BSN ARCHI. 논현동 리모델링 프로젝트 / 비에스엔 건축사사무소 GGDD / CIID(Contemporary Idea for Int
anc.masilwide.com
'Interior Project > Other' 카테고리의 다른 글
| 음성 시니어친화형 국민체육센터 건립공사 건축설계공모 _ 입상작 A (0) | 2024.11.19 |
|---|---|
| Puinn Hotel (0) | 2024.11.14 |
| SKIN boutique (0) | 2024.11.08 |
| eios Store in Dongping Road, Shanghai (0) | 2024.11.04 |
| The Spatial Poetics of Light and Shadow Flow (0) | 2024.11.01 |
마실와이드 | 등록번호 : 서울, 아03630 | 등록일자 : 2015년 03월 11일 | 마실와이드 | 발행ㆍ편집인 : 김명규 | 청소년보호책임자 : 최지희 | 발행소 : 서울시 마포구 월드컵로8길 45-8 1층 | 발행일자 : 매일



