
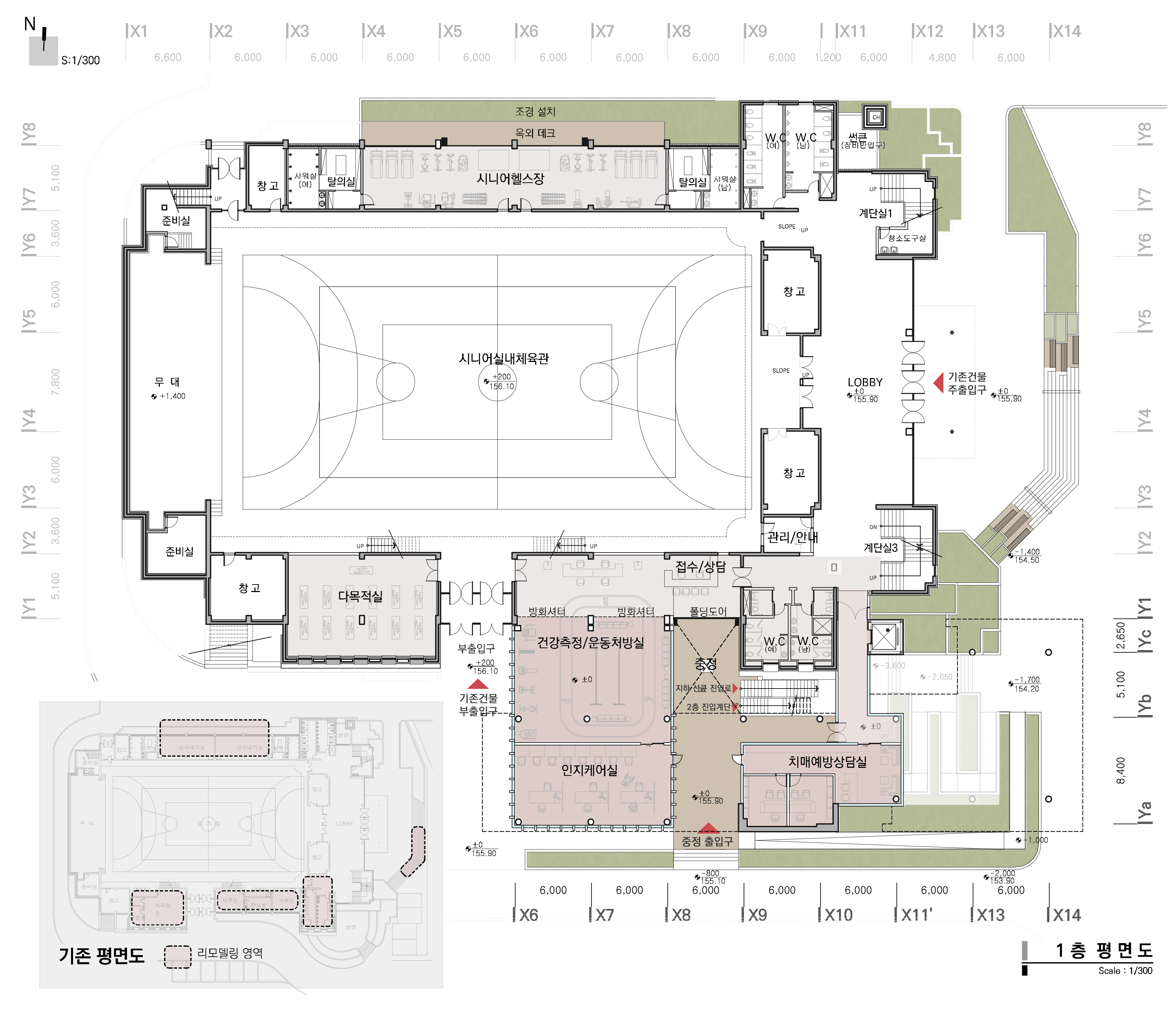
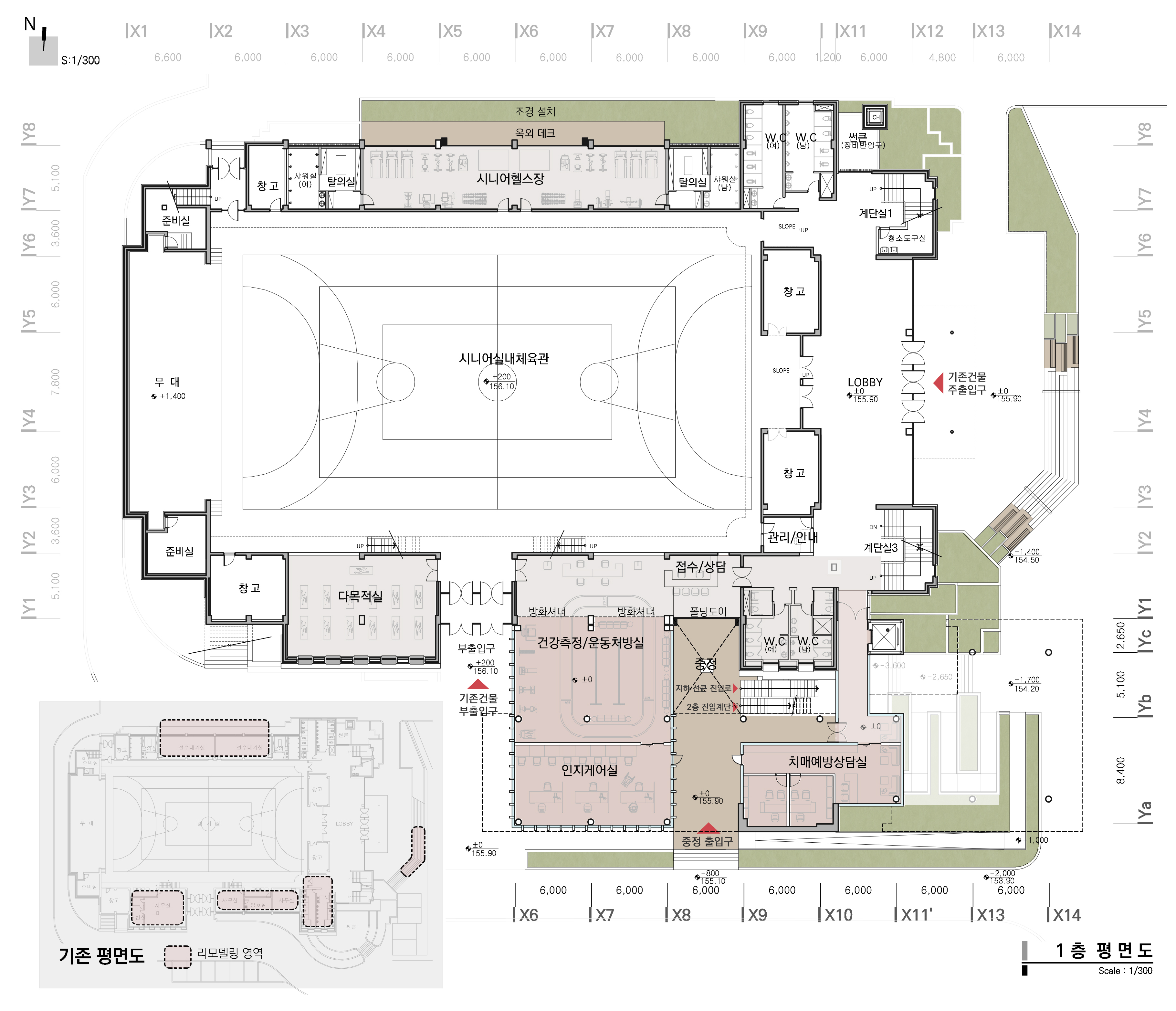
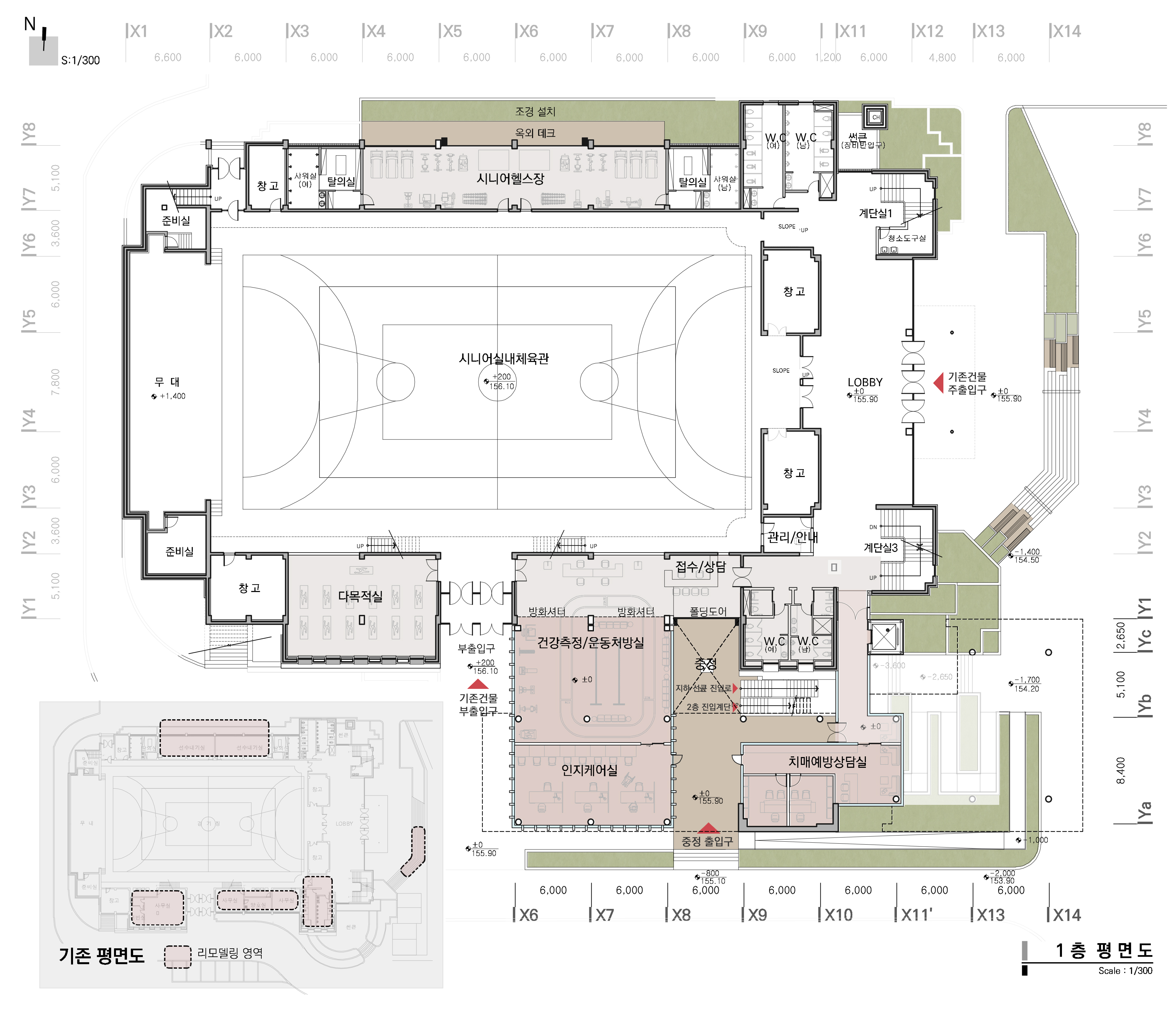
기존 음성 체육관의 공유부분과 연결하여 기존 시설을 활용하고, 남측 가로의 새로운 상징 파사드를 계획하였다.
기존 건물의 재료를 활용하여 통일성을 갖도록 하며 단순한 매스 구성으로 모던한 가로환경을 조성하였다.
시니어의 접근과 이동을 고려하여 다양하고 편안한 수직동선을 구성하였다.
시니어를 위한 국민체육센터의 프로그램이 one-stop으로 진행될 수 있도록 동선을 구성하고, 다양한 커뮤니티 공간을 구성하여 시니어들의 교류 활성화를 고려하였다.





음성 시니어친화형 국민체육센터 건립공사 건축설계공모
입상작_종합건축사사무소 수목에이엔에이(주)
대지면적 65,030㎡
건축면적 기존 7,789.23㎡, 증축 562.22㎡, 합계 8,351.45㎡
연면적 기존 4,206.12㎡, 증축 1,203.17㎡, 합계 5,409.29㎡
규모 지상 3층 (최고높이 11.2m)
건폐율 12.84%
용적률 18.35%
주차개요 기존88대, 증축 4대, 합계 92대
대표건축가 한철
발주자 음성군청
'Interior Project > Other' 카테고리의 다른 글
| 루이캐슬 시카모어 호텔 (0) | 2024.12.03 |
|---|---|
| Shan Ding You Feng Photography Art Space (0) | 2024.11.22 |
| Puinn Hotel (0) | 2024.11.14 |
| RUMAH TRESNA (0) | 2024.11.13 |
| SKIN boutique (0) | 2024.11.08 |
마실와이드 | 등록번호 : 서울, 아03630 | 등록일자 : 2015년 03월 11일 | 마실와이드 | 발행ㆍ편집인 : 김명규 | 청소년보호책임자 : 최지희 | 발행소 : 서울시 마포구 월드컵로8길 45-8 1층 | 발행일자 : 매일


