
Part 1: Origin, equality, and functionality
The second store of the body care brand eios is located on Dongping Road. Compared with the first store, it has a larger area for brand display, retail, and SPA functions. The overall design continues our functional aesthetics, discarding unnecessary decorations, conceiving design based on functions, and considering user experience throughout the process.
The space design language is organically integrated with the brand concept, customizing for the brand from structure, material to furniture. The brand's concept of equally treating every inch of skin is integrated into the display. The collision of wood and metal materials interprets the brand's product highlights of natural strength and modern technology, while the more uniform and restrained materials create straightforward structural aesthetics.
In the two-story space, a floor-to-ceiling window replaces the existing fence on the external facade to provide additional light in. The entrance is constructed as a recessed gateway, combining a metal rail with a glass structure. While maintaining transparency, it provides extra display areas and attracts customers to enter. Meanwhile, the major materials in the store echo those in the first store, ensuring that the spatial language is maintained.
When customers enter and exit the store, they will notice the brass plaque embedded in the ground in front of the door. The engraving of "every inch of skin" functions as a brand symbol in the space.
Part 2: Refinement, Scale, and Obligingness
In the long and narrow space, the staircase, which was in the center, was moved to one side to increase the permeability of the space. Combining the elements with a sense of scale and refinement, the space on the first floor is rigorous and equal. In the meantime, warm colors are used to make the whole atmosphere warmer and more comfortable.
The front is taken as a product experience area, the island display is the main body of the area, and the geometric shape is concise and neat, which makes the vision focus on the product itself. At the same time, an electronic screen is mounted on the adjacent wall to accommodate the daily play function. When guests experience the products on the island display, they can watch the images at a comfortable height of the sighting line, which is more helpful in understanding the brand. In accordance with the ceiling construction, the light film module is installed in the ceiling, with its position corresponding to the display area. It combines aesthetics and functionality while compensating for the light disadvantage of the long and narrow area.
The exhibition draws inspiration from the brand itself, splitting and reorganizing the content to create fresh design ideas. It deviates from the traditional display habit of emphasizing the completeness of goods and introduces the language of furniture and home furnishings, resulting in a more relaxed, daily retail environment.
Large glass partitions and specific metal parts combine to create innovative display modules that overcome the limitations of ordinary shelves. On the opposite wall, the brand's three main series of products are presented. The series is named after their varying lengths, which are the primary considerations when constructing the wall display system. The length of each shelf correlates to the name of the series, resulting in the brand's distinct spatial expression. The back area is mostly used for the exhibition and experience of wash supplies. Visually, it continues the transparent and delicate design of the front area. The back wall of the venue was removed, and light was brought in to enliven the long and narrow space. Transparent glass columns support the music player device, ensuring that it suits the style of the venue. Following repeated structural design and countless proofing trials and modifications, the pool function was eventually integrated into the island display, optimizing the simplicity of the vision, and constructing a full and harmonious environment.
Part 3: Observation, Construction, and Unconventionality
In addition to fulfilling the cashier role, the second-floor space provides capacity for future branding initiatives. Two walls are used, with one showing brand brochures and posters and the other displaying the brand's exclusive "body mirror". The original building's pitched roof structure was left uncovered, and the yellow color representing the brand was blended into the web steel structure of the wall. The surface is covered with body mirrors and galvanized sheets. This is a projection of the general spatial concept, which removes all extraneous decorations.The structure is regarded as the meridians and collaterals of the space, carrying its functional flow.
In the center of the space, a large island display table is paired with wooden stools. It can be used as a venue for future brand activities. The yellow tape measure above serves as a chandelier line, echoing the elements of the first store. The floor-to-ceiling glass windows at the end of the building bring the street view outside into the space. The landscape varies with the flow of the seasons and becomes a natural decoration in the space. Sitting on the stool and taking in the natural scenery, people, space, and nature are all interwoven, sparking a deeper resonance.
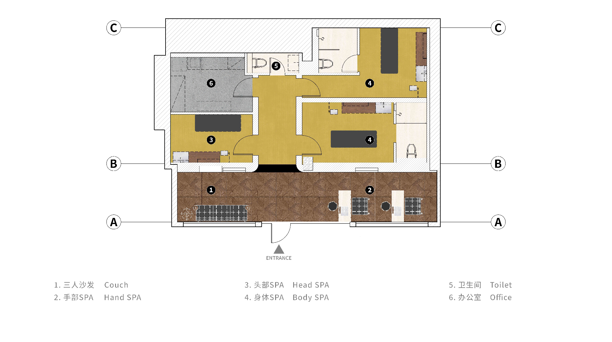
The SPA space is in the backyard, and the small courtyard between the two buildings acts as a buffer zone, making the SPA area quieter and more independent. The space is on the first floor of an old foreign-style house, with the steel window structure of the external facade retained and refurbished. The interior has been modified to make the best use of the limited available space. The hand SPA area and the sofa waiting area are outside. The entire white wall creates a more transparent and bright appearance. The hand SPA area features a disguised faucet to maintaina similar tone with the main space. The single SPA room adopts a warm grey micro-cement wall, creating a more peaceful and relaxing feeling than the outside. It cleverly blends the storage function into one wall, freeing up extra space. The floor is covered with yellow shag carpet, which matches the brand color. From soft to hard furnishings, we enhance the sense of comfort and warmth by focusing on the user's feelings.
The design of this project is premised on our profound comprehension of the brand. We designed an exclusive structural system for the brand by the characteristics of the architectural space itself, to complete the innovation of retail space design. Taking function as the origin of thinking and user experience as the destination, interspersing, connecting, and overlapping between each element to constitute the spatial structure system and create a harmonious spatial experience of brand, product, and space.








건축가 hoii design
위치 China, Shanghai,No.6 Dongping road
면적 290㎡
준공 2024.1.
디자인팀 Yaowen Zhu, Yizhe Zhou, Yifan Shen
시공 Shanghai Shenchen Construction Co,.Ltd,
조명 Shanghai Yongjinghe Technology Co,.Ltd
가구 Furnishing
건축주 eios
사진작가 Kaji, sufang
'Interior Project > Other' 카테고리의 다른 글
| RUMAH TRESNA (0) | 2024.11.13 |
|---|---|
| SKIN boutique (0) | 2024.11.08 |
| The Spatial Poetics of Light and Shadow Flow (0) | 2024.11.01 |
| Lynk & Co Club Madrid (0) | 2024.08.23 |
| Daminghu 100 Culture & Arts Center (0) | 2024.08.21 |
마실와이드 | 등록번호 : 서울, 아03630 | 등록일자 : 2015년 03월 11일 | 마실와이드 | 발행ㆍ편집인 : 김명규 | 청소년보호책임자 : 최지희 | 발행소 : 서울시 마포구 월드컵로8길 45-8 1층 | 발행일자 : 매일



