ⓒ Francisco Nogueira

 

Set in the Rua dos Mártires, a prime area of the small city of Leiria in Central Portugal, the site of the new housing complex is wedged between a wide modern avenue featuring new construction and a narrow old street that leads to the city’s historic district. The project combines the renovation of a pre-xisting small house with a new extension and features seven apartments as well as a shared private parking zone.


The four-storey building serves as a hinge between these two urban conditions – a developing area with tall buildings and a narrow street with squat houses. This urban friction is addressed by Bureau des Mésarchitectures with a panelled facade of precise geometry, materiality and rhythm. The curved footprint and overlapping concrete panels of the building address both sides of the site’s conflicting realities.


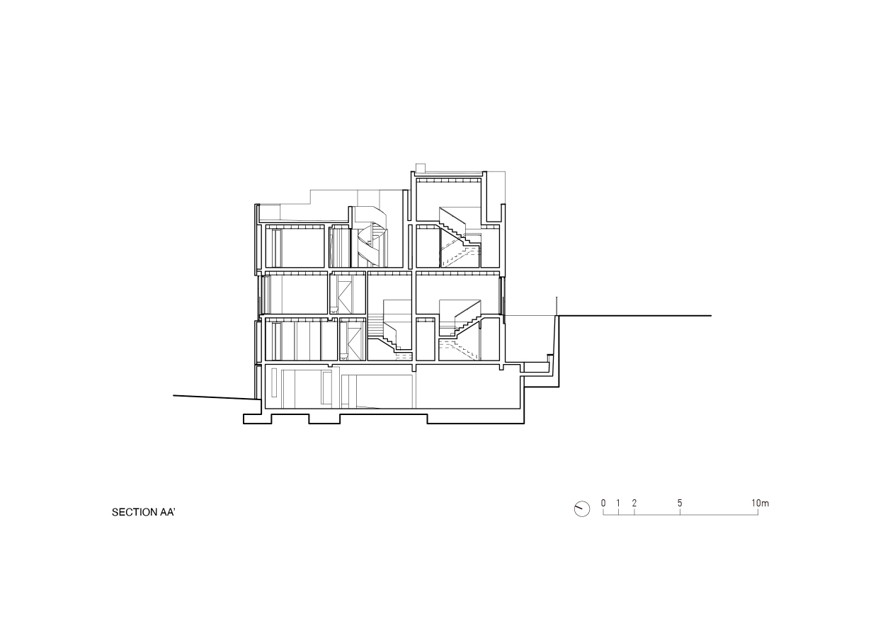
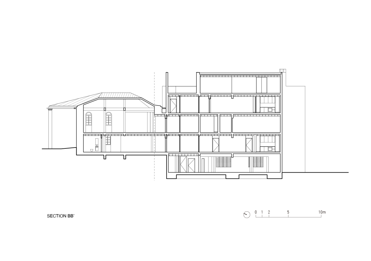
The pre-existing building, an early 20th century house with a characteristic tiled roof and yellow façade, has been transformed into two apartments, a two-bedroom apartment on the ground floor and a one-bedroom apartment above. Meanwhile the new extension includes five apartments, two four-bedroom apartments, two-bedroom apartments and one three-bedroom apartment. The old and new parts of the project are connected by a common stairwell.


The facade of the extension building is made from a very strict grid which combines lightweight and moveable elements –golden windows and aluminium shutters – and heavier, fixed elements – natural deactivated precast concrete panels. Sometimes open and sometimes closed, the building works as a living structure in constant flux, which becomes especially noticeable as sunlight travels along the curving facade, colouring it with ever-changing hues and reflections.


Inside the building, each apartment has its own identity which is reinforced either by features such as surrounding views or the architectural details of the pre-existing house. Some of the apartments are cosy and intimate, with small windows connecting to the interior backyard of the building. Some are generously open to the outside with big windows and roof terraces.


The apartment interiors are defined by soft colours: light gray walls and comfortable epoxy floors and
wall paintings. They feature exposed elements of the concrete structure, birch doors and furniture
mixed with alpinina stone, offering a warm, soothing and comfortable ambience.


The building makes manifest and negotiates some of the major tensions of urban housing, such as the interplay between protection or introspection and openness. The structure clearly belongs in the city; its expressive façade serves as a gesture of publicness and could be mistaken for a different typology, such as a school or gallery.


But the project also serves to shelter its inhabitants with privacy from the outside, a key feature of any domestic architecture. In this sense, the project aims to reframe how bodies inhabit the city through our domestic structures. To a certain extent, its large windows and bold façade put the act of living on a stage - one performance alongside all the dramas of the city unfolding at once. As Didier  Fiúza Faustino, conceptual artist, architect and founding director of Bureau des Mésarchitectures puts it, “Architecture allows us to create friction, address contemporary questions and design stages for the body: the individual, the social and the collective.”

 

ⓒ Francisco Nogueira
ⓒ Francisco Nogueira
ⓒ Francisco Nogueira
ⓒ Francisco Nogueira
ⓒ Francisco Nogueira
ⓒ Francisco Nogueira
ⓒ Francisco Nogueira

 

urban context plan
section -1
section-2
elevation

 

건축가 BUREAU DES MÉSARCHITECTURES
위치 Portugal, Leiria, Rua dos Mártires 3

연면적 1,369.38m²

프로젝트기간 2018 - 2024
구조 Ergsilva, Construction and Restoration

대표건축가 Didier Fiúza Faustino

디자인팀 Sónia Pinto Sousa, Pascal Mazoyer, Kevin Conlin

엔지니어링 Gravidade Engenheiros and GLFV, Engineering, Design, Maintenance and Supervision Office

건축주 Private developer

사진작가 Francisco Nogueira

'Architecture Project > Multifamily' 카테고리의 다른 글

Meander Residence  (0) 2024.11.05
Q8 Residence  (0) 2024.10.31
Landmark the Suite  (0) 2024.10.23
Seocho Staircase  (0) 2024.10.17
Edifício Seashore  (0) 2024.08.22


마실와이드 | 등록번호 : 서울, 아03630 | 등록일자 : 2015년 03월 11일 | 마실와이드 | 발행ㆍ편집인 : 김명규 | 청소년보호책임자 : 최지희 | 발행소 : 서울시 마포구 월드컵로8길 45-8 1층 | 발행일자 : 매일





© MasilWIDE
위로가기