
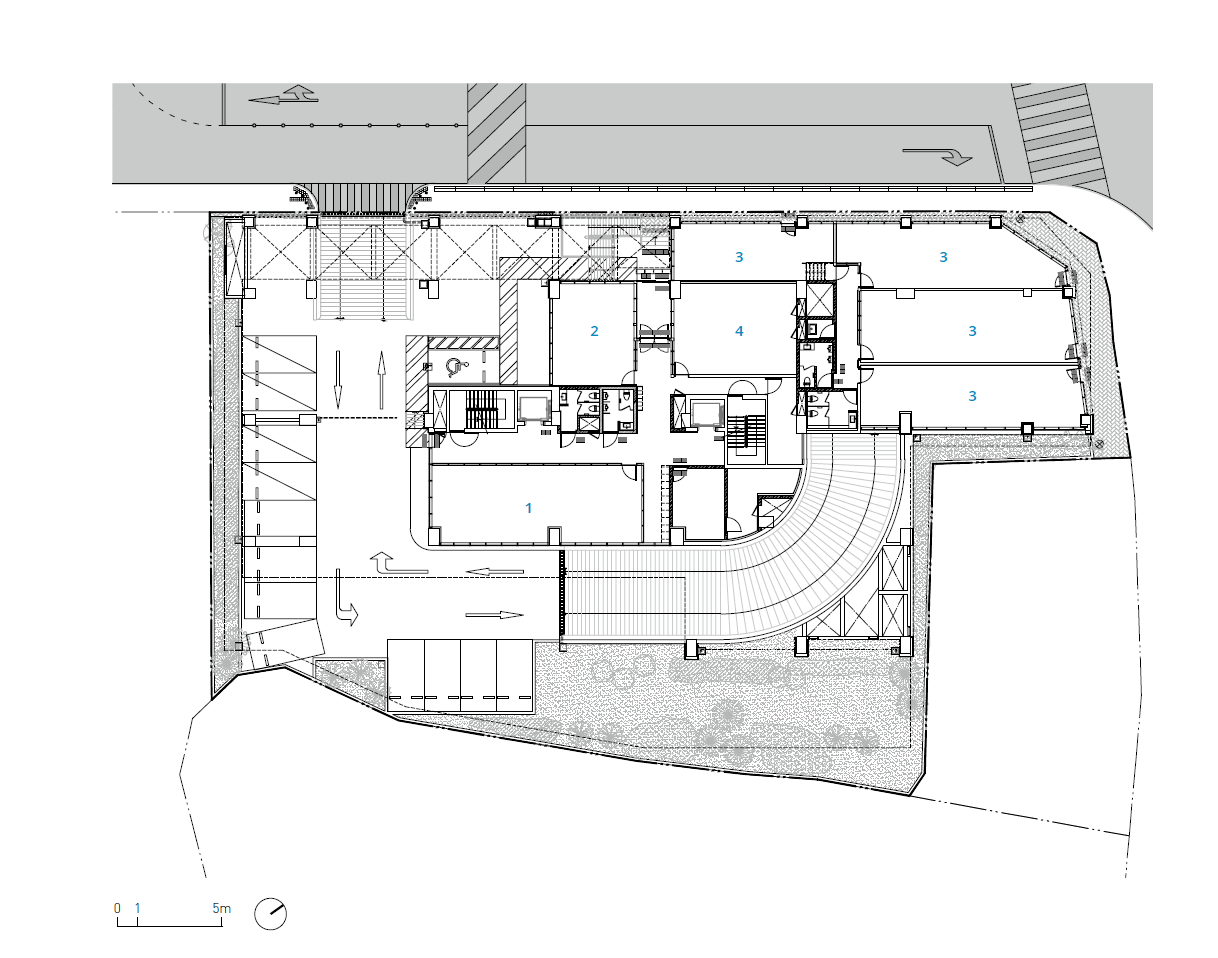
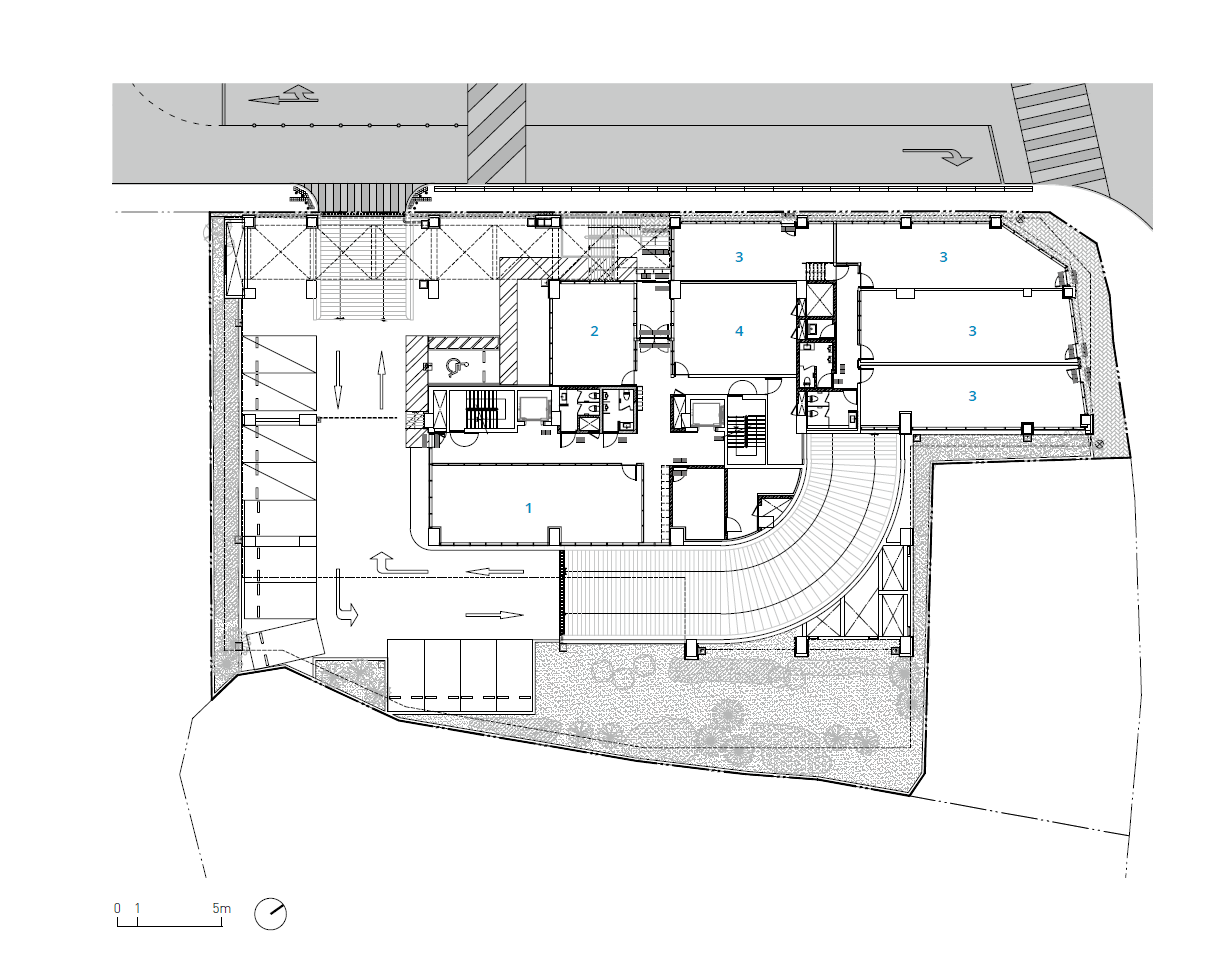
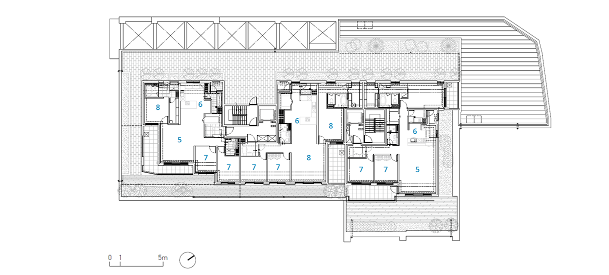
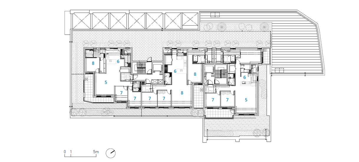
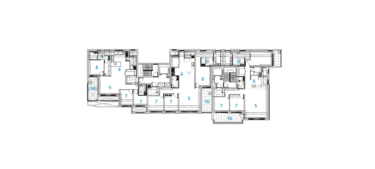
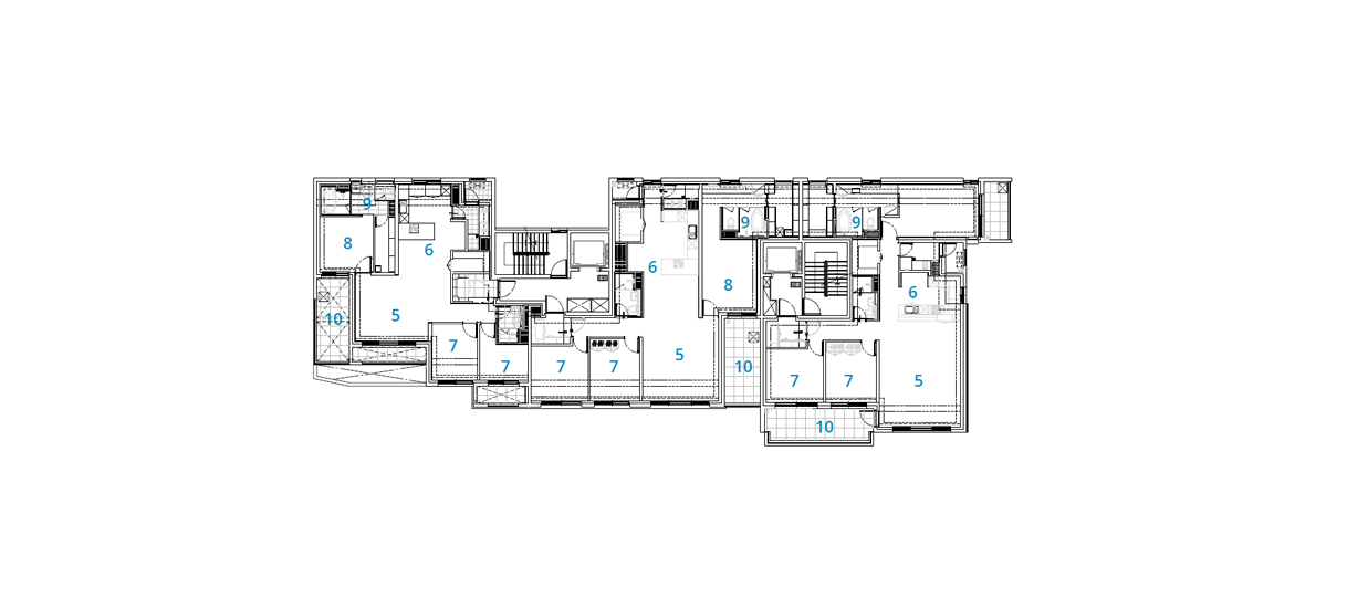
랜드마크 더 스위트는 북측과 동측으로 도로와 접하여 동서로 넓은 대지에 지어진 주상 복합 건축물이다. 차량의 주차장 진입로와 보행자의 진입로는 각각 서측, 도로변 중앙으로 구별하였고, 근린생활시설은 삼거리의 차량 이용자와 보행자가 움직이며 인지할 수 있는 범위 내에서 계획했다. 대지는 남측을 향하여 풍부한 일조를 받고, 건축물과의 시각적인 간섭에서도 자유롭지만 동서로 넓은 대지는 3세대 주거 공간을 넣기에는 다소 부족한 상황이었다. 북측과 동측의 도로와 면하는 세대, 단지 중앙의 세대, 북측과 서측에 면하는 세대의 3개 유형별로 나누고 각각 3bay와 3.5bay를 포함한 단위세대를 구성했다.
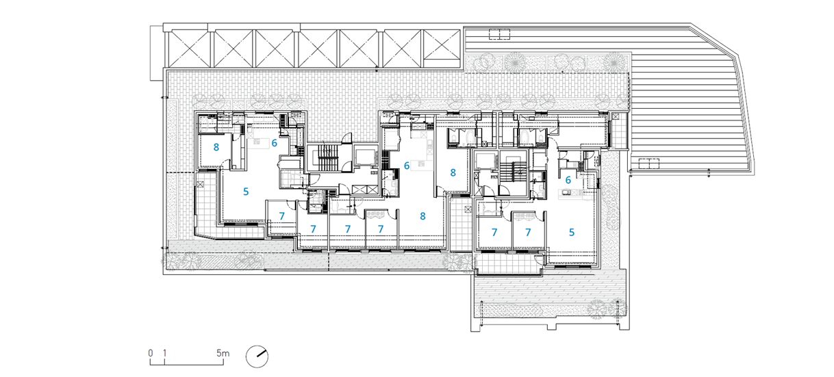
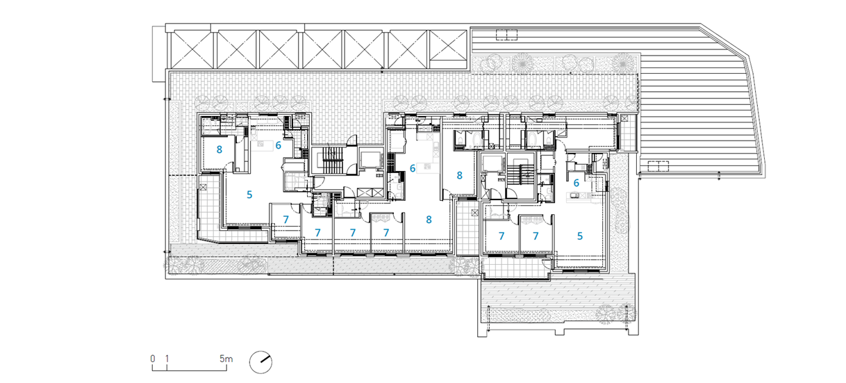
대로변에 면한 세대는 남측 폭이 좁지만 동측으로 주침실의 발코니가 있으며 거실과 자녀 침실에서 완전히 분리된다. 전용 파우더룸과 드레스룸은 욕실 공간과 함께 침실과 연결했다. 남북으로 열린 세대는 주침실 남측으로 전용 발코니가 있으며, 1호 세대와 동일한 서비스 공간이 구성되고 연결된다. 북서로 열린 세대는 가장 작은 단위세대지만, 거실과 주침실에 전용 발코니가 있어 서측의 광주공업고등학교 방향의 조망이 가능하게 계획했다.
도로에 면한 북측과 동측은 채광 확보를 위해 주거 공간을 뒤로 이동시키며 옥상 정원을 만들고 도로변 이용자의 스케일에 적합한 볼륨을 설정했다. 대로변에서 보이는 건축물의 입면은 일반적인 공동주택과는 차별을 두어 실제 용도를 모호하게 알아보게끔 의도했다.
남측의 볼륨은 3개로 분절되어 각 볼륨의 특징이 보인다. 서측은 2면의 발코니가 연결되어 학교와 면하고 있고, 남측 볼륨은 석재 외장재를 적용한 층과 적용하지 않은 층이 혼용되었다. 옥상까지 높인 볼륨은 독립적인 이미지를 만든다. 남동으로 열린 볼륨은 석재 외장재를 적용한 2개층과 적용하지 않은 1개의 층을 번갈아 배치하고 발코니를 돌출하여 수직과 수평적인 볼륨을 강조한다.














건축가 플라건축사사무소
위치 광주광역시 북구 설죽로335번길 1(매곡동)
용도 공동주택
대지면적 2,055.00㎡
건축면적 1,229.31㎡
연면적 6,274.82㎡
규모 지하 1층, 지상 10층
건폐율 59.82%
용적률 219.86%
준공 2024. 2.
구조 철근 콘크리트조
대표건축가 정준철
프로젝트건축가 (플라 건축사사무소)정준철
디자인팀 (플라 건축사사무소)신나영
인테리어 (DVSC)조용균, 박지연
발주자 유한회사 청암
사진작가 이남선
해당 프로젝트는 건축문화 2024년 10월호(Vol. 521)에 게재되었습니다.
The project was published in the October, 2024 recent projects of the magazine(Vol. 521).
October 2024 : vol. 521
Contents : COMPETITION : RECENT PROJECTSilver for Rest / so-ul architects은빛 숲 / 소을건축사사무소Ginkgo Gallery / MORE Architecture긴코 갤러리 / 모어 아키텍처The April House / YAYArchitects사월애가(四月愛家) / (주
anc.masilwide.com
'Architecture Project > Multifamily' 카테고리의 다른 글
| Q8 Residence (0) | 2024.10.31 |
|---|---|
| Housing Complex in Leiria (0) | 2024.10.25 |
| Seocho Staircase (0) | 2024.10.17 |
| Edifício Seashore (0) | 2024.08.22 |
| Botijo House (0) | 2024.08.07 |
마실와이드 | 등록번호 : 서울, 아03630 | 등록일자 : 2015년 03월 11일 | 마실와이드 | 발행ㆍ편집인 : 김명규 | 청소년보호책임자 : 최지희 | 발행소 : 서울시 마포구 월드컵로8길 45-8 1층 | 발행일자 : 매일



