
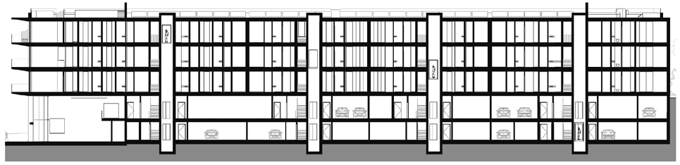
이디피시우 씨쇼어는 가파르지만 일정한 경사지가 동서측으로 이어진 직사각형 대지에 위치해 있다. 이러한 지형적인 특징은 해변에 대한 접근성을 높이고 해안선 및 바다의 전망이 특별히 좋은 지리적인 이점을 누리게 한다. 건축가는 이 대지에 수평의 매스를 가진 아파트를 설계했다. 지상 3층 규모의 건물은 가파른 경사를 따라 지상 5층까지 확장된다. 철근 콘크리트의 슬래브는 전체적으로 수평성과 단순성을 강조한다. 이러한 재료의 선택은 건물이 노후화되는 것을 방지하고 유지보수의 유리함을 고려한 것이다.
사용자의 프라이버시를 보장하는 4개의 출입구는 건물 남측 정면을 따라 배치된 외부 갤러리를 통해 접근할 수 있다. 두 개의 출입구는 녹지에 접해있으며, 그 다음으로 이어지는 출입구와는 약간의 틈이 있다. 이러한 틈은 아파트와 갤러리 사이의 거리를 만드는데, 갤러리는 서측 해변가 애비뉴와 이어지는 보행자 통로와 연결된다.
햇빛에 대한 노출과 바다 전망의 이점은 아파트의 기능적인 조직을 결정하는 요소였다. 이디피시우 씨쇼어의 모든 방은 주변의 바다에 대한 전망을 가지고 있다. 대부분의 침실을 북측으로 배치했으며, 거실과 부엌은 발코니를 향해 열려있다. 수직 슬레이트는 건물에 활기를 주며 남측을 향해 투명하게 열린다. 이와 대조적으로 북측에는 바다로 향한 특수 알루미늄 코팅이 된 창을 설치하여 화려한 전망을 갖는 동시에 사생활을 보호한다. 지붕을 향해 연결된 외부 계단은 작은 수영장이나 자쿠지가 포함된 야외 여가 및 생활 공간으로 이어진다.







The Edificio Seashore is located on a rectangular site with a steep yet consistent slope running from east to west. This topographical feature enhances accessibility to the beach and provides exceptional views of the coastline and the sea. The architect designed a horizontal mass apartment building on this site, which is three stories above ground, and extends to five stories as it follows the steep slope. The reinforced concrete slabs emphasize horizontality and simplicity throughout. This choice of materials was made to prevent the building from aging and to facilitate easy maintenance.
Four entrances that ensure user privacy can be accessed through an external gallery running along the southern facade of the building. Two of the entrances face green spaces, with a slight gap before the next entrances. This gap creates a distance between the apartments and the gallery, which connects to a pedestrian path leading to the western beach avenue.
Sunlight exposure and the advantage of sea views were crucial factors in determining the functional organization of the apartments. Every room in Edificio Seashore offers views of the surrounding sea. Most bedrooms are positioned on the north side, while living rooms and kitchens open toward the balconies. Vertical slates animate the building and open transparently toward the south. In contrast, the north side features special aluminum-coated windows facing the sea, providing privacy while offering splendid views. The external stairs leading to the roof connect to outdoor leisure and living spaces, including small swimming pools and jacuzzis.












건축가 Atelier d’Arquitectura Lopes da Costa
위치 포르투갈, 빌라노바 드 가이아
용도 공동주택
면적 7,247.40㎡
준공 2023
대표건축가 José António Lopes da Costa, Tiago Meireles
협력사 Rita Gonçalves, Joana Jorge, Sérgio Almeida, Afonso Tigre Lopes da Costa
시공 A. Pimenta – Construções, Lda.
엔지니어링 Strumep – Engenharia, Lda.
조경 Mónica Barbosa
조명 Projedomus – Projectos e Inst. Eléctricas Inteligentes, Lda
사진작가 Ivo Tavares Studio
해당 프로젝트는 건축문화 2024년 7월호(Vol. 518)에 게재되었습니다.
The project was published in the July, 2024 recent projects of the magazine(Vol. 518).
July 2024 : vol. 518
Contents : SKETCH Strange and Ornate Line in Paris / Anastasia Lavru파리의 이상하고 화려한 선들 / 아나스타샤 라브루 : COMPETITION : RECENT PROJECT ITZAE / YEHA PARTNERS architects 잇재 / 건축사사무소
anc.masilwide.com
'Architecture Project > Multifamily' 카테고리의 다른 글
| Landmark the Suite (0) | 2024.10.23 |
|---|---|
| Seocho Staircase (0) | 2024.10.17 |
| Botijo House (0) | 2024.08.07 |
| 72 Social Housing Units at the Marina del Prat Vermell (0) | 2024.08.02 |
| The Lana Residences (0) | 2024.07.11 |
마실와이드 | 등록번호 : 서울, 아03630 | 등록일자 : 2015년 03월 11일 | 마실와이드 | 발행ㆍ편집인 : 김명규 | 청소년보호책임자 : 최지희 | 발행소 : 서울시 마포구 월드컵로8길 45-8 1층 | 발행일자 : 매일



