
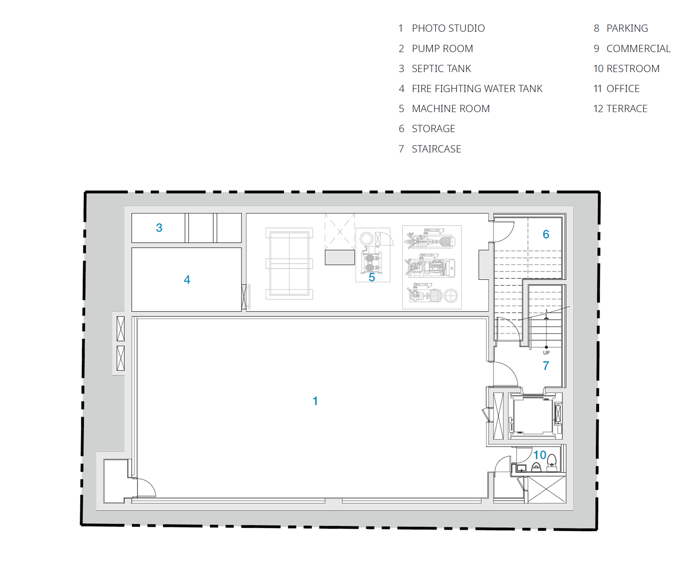
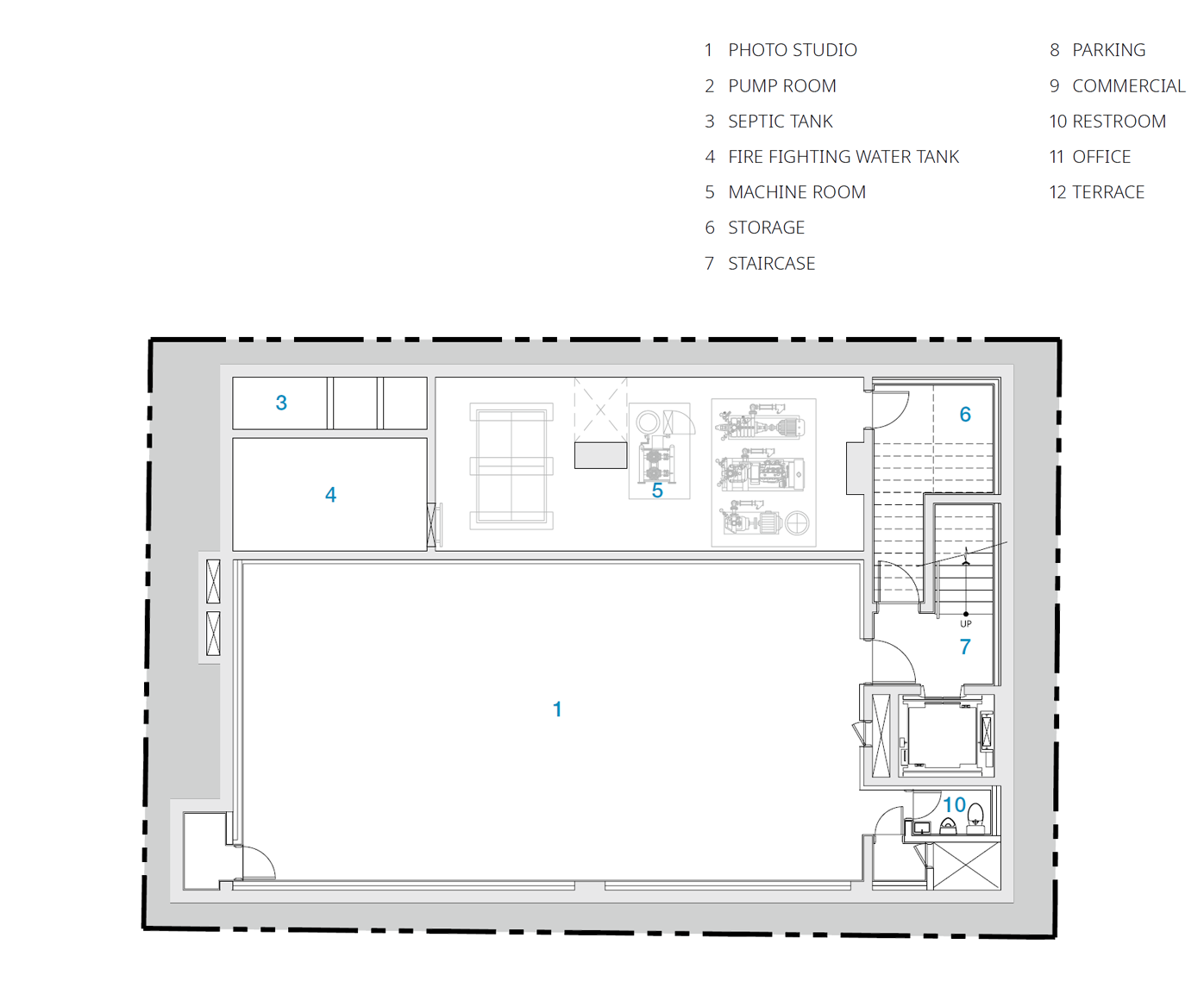
서초 스테어케이스는 서초역 대로변에서 한걸음 물러난 위치에 있다. 업무복합시설로 지어지는 서초 스테어케이스는 도심의 활기와 조화를 이루면서 오래된 주변 건물들과 자연스럽게 어우러지는 디자인이 필요했다. 더불어, 동서측에 각각 접한 4m와 6m 도로와 일반주거지역의 정북일조사선 제한 조건이 설계 과정에서 중요한 고려 요소였다.
저층부 벽돌 외벽
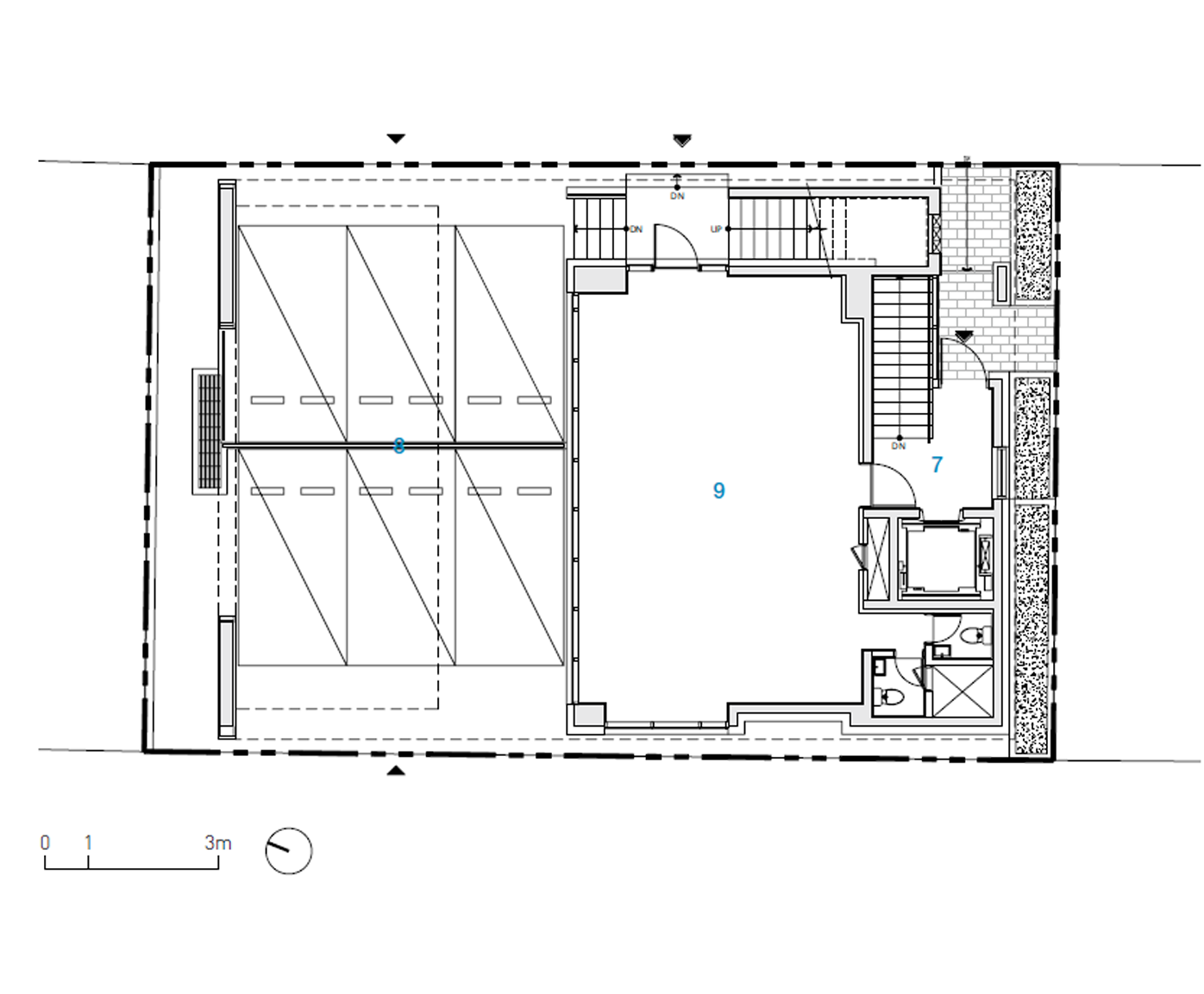
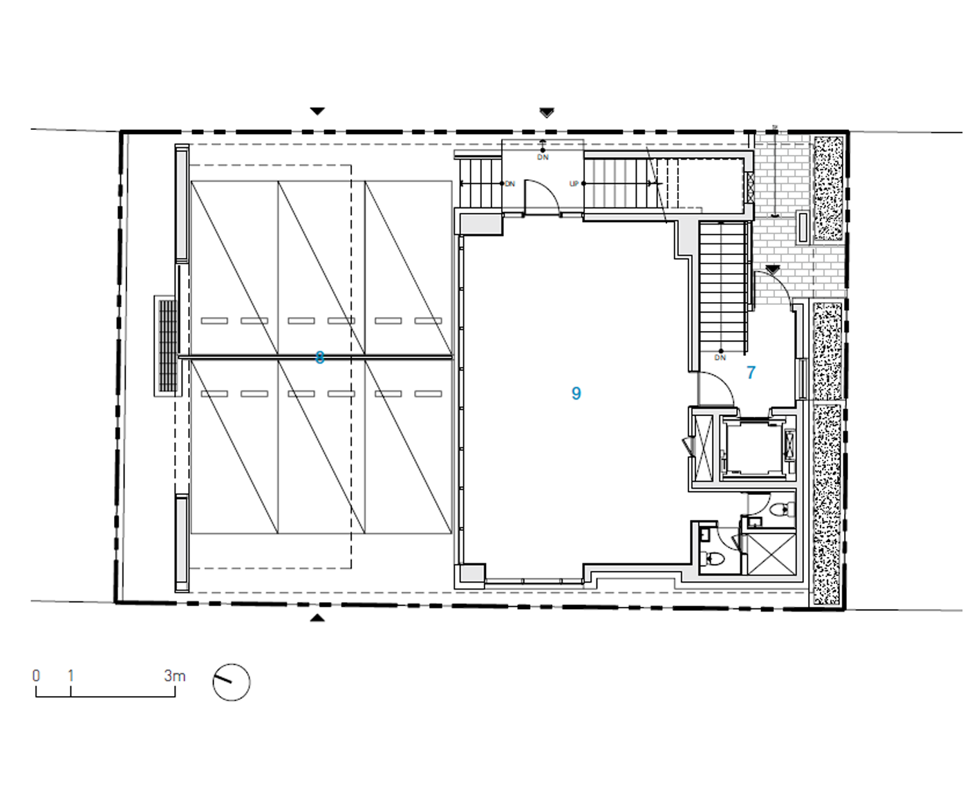
저층부와 코어를 둘러싼 벽돌 외벽은 외부의 번잡한 환경을 한번 걸러주며 1층과 2층의 상업 공간에 독특한 분위기를 조성한다. 묵직하고 견고한 외벽은 건물의 내외부를 명확히 구분하고 동시에 건물의 볼륨감을 강조한다. 주차장과 도로 사이에 별다른 펜스 없이도 자연스러운 경계를 형성한다. 벽돌 외벽은 강인한 이미지와 안정감을 주고, 도시적 맥락 속에서 건물의 존재감을 부각한다. 이와 대조적으로 밝고 부드러운 세라믹 박판 패널과 개방감 있는 유리는 조화롭고 섬세한 느낌을 준다. 지하층과 지상 1층, 2층은 상업시설로 활용되며, 공간 건축물에 효율성과 접근성을 높이기 위해 설계된 공간이다. 저층부는 벽돌의 외벽이 대지 안과 밖을 구분하는 것과 동시에 진입로의 역할을 한다. 진입로의 외부 조명은 저층부 상가의 활성화를 도모하고 방문객의 접근성을 높이는 용도다.
프라이빗 테라스
서초 스테어케이스는 정북일조 사선 조건으로 인해 매스가 후퇴하였는데, 이로 인해 생긴 프라이빗 외부 휴식 공간이 특징이다. 각 층의 외부 테라스는 건물 이용자에게 특별한 공간 경험을 제공한다. 도심 속에서도 자연을 느낄 수 있는 쉼터는 건물의 가치를 더욱 높여준다. 사용자들은 이 공간에서 휴식을 취하며 일상에서 벗어나 잠시나마 여유를 느낄 수 있다.스테어케이스는 기능성과 미학이 조화롭게 결합된 사례이다. 각 요소들은 독창적이면서도 실용적인 공간을 창출하며, 사용자들에게 특별한 경험을 제공한다. 단순한 업무복합시설을 넘어 도심 속에서 새로운 라이프스타일을 제안하는 공간으로 자리매김할 것이다.















건축가 mlnparchitects
위치 서울특별시 서초구 서초대로42길 66용도 근린생활시설
대지면적 285.5㎡
건축면적 142.42㎡
연면적 853.65㎡
규모 지하 1층, 지상 6층
건폐율 49.88%
용적률 248.76%
설계기간 2022. 4. - 7.
시공기간 2022. 11. - 2024. 1.
준공 2024
대표건축가 이명호
프로젝트건축가 박의진, 위이지
구조엔지니어 드림구조
기계엔지니어 엠케이청효
전기엔지니어 엠케이청효
시공 호가종합건설(주)
사진작가 최진보
해당 프로젝트는 건축문화 2024년 10월호(Vol. 521)에 게재되었습니다.
The project was published in the October, 2024 recent projects of the magazine(Vol. 521).
October 2024 : vol. 521
Contents : COMPETITION : RECENT PROJECTSilver for Rest / so-ul architects은빛 숲 / 소을건축사사무소Ginkgo Gallery / MORE Architecture긴코 갤러리 / 모어 아키텍처The April House / YAYArchitects사월애가(四月愛家) / (주
anc.masilwide.com
'Architecture Project > Multifamily' 카테고리의 다른 글
| Housing Complex in Leiria (0) | 2024.10.25 |
|---|---|
| Landmark the Suite (0) | 2024.10.23 |
| Edifício Seashore (0) | 2024.08.22 |
| Botijo House (0) | 2024.08.07 |
| 72 Social Housing Units at the Marina del Prat Vermell (0) | 2024.08.02 |
마실와이드 | 등록번호 : 서울, 아03630 | 등록일자 : 2015년 03월 11일 | 마실와이드 | 발행ㆍ편집인 : 김명규 | 청소년보호책임자 : 최지희 | 발행소 : 서울시 마포구 월드컵로8길 45-8 1층 | 발행일자 : 매일


