
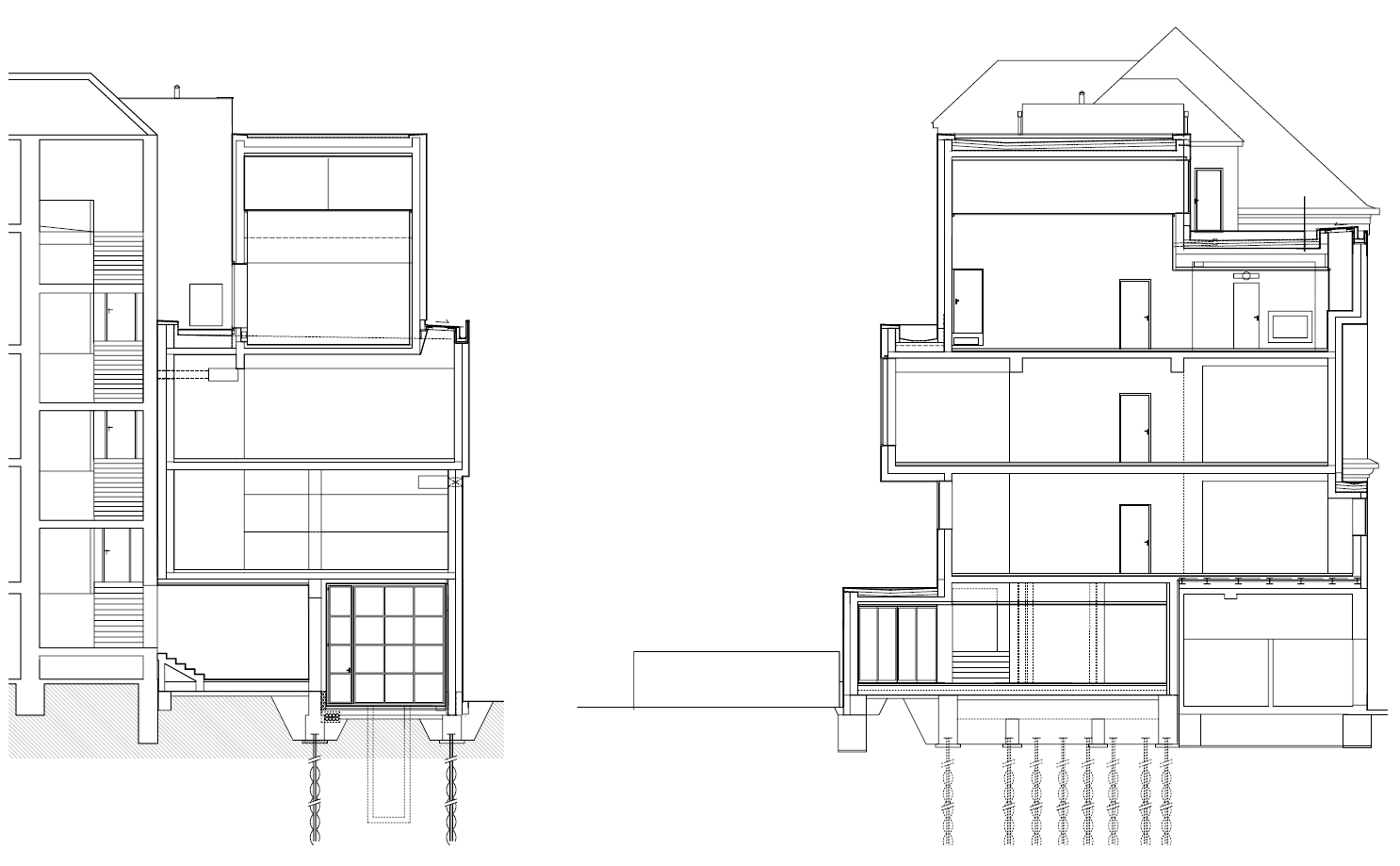
브르노의 마사리크대학교에서 미술교육 프로그램을 위한 새로운 스튜디오를 선보였다. 마사리크대학교 미술교육 스튜디오는 미술 선생님을 양성하기 위한 공간으로, 전통적인 미술 분야뿐만 아니라 새로운 미디어 예술에 대한 영감을 주는 공간이다. 역사적인 주변 환경과 대조되는 깨끗하고 단순한 형태의 건물은 주변 환경에 역동적인 에너지를 더한다. 건축가는 거리에서 눈에 띄고 주변의 신고전주의 건축물의 사이에서 현대 미술관처럼 느껴지는 건축물을 설계하고자 했다.
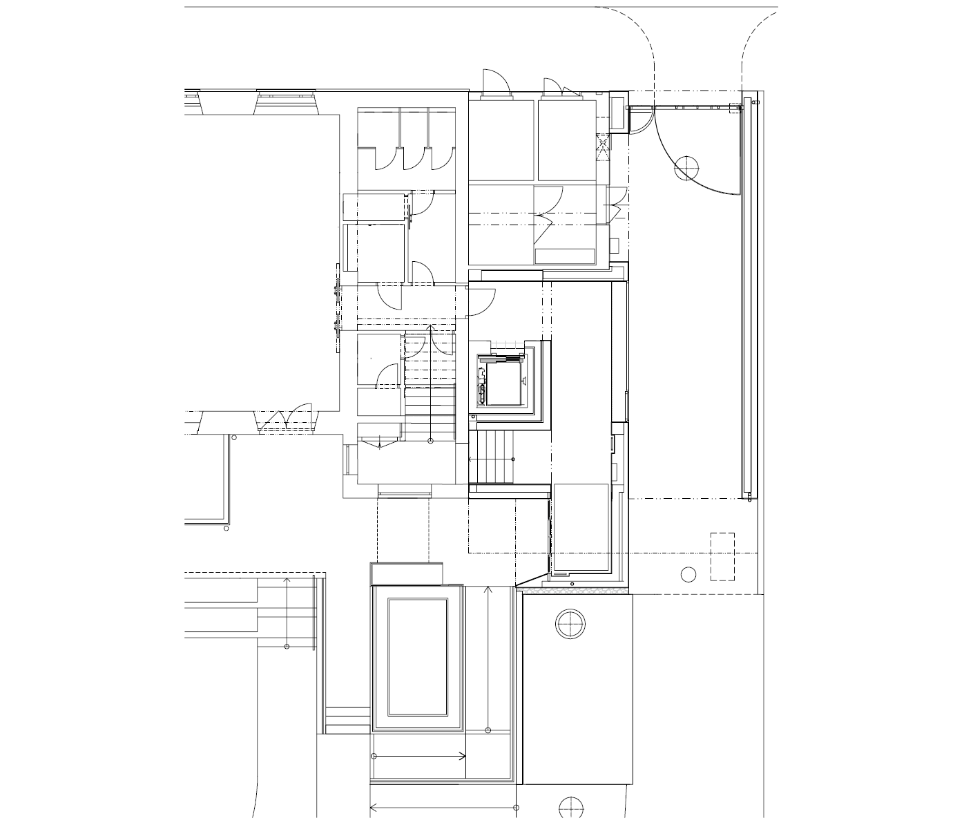
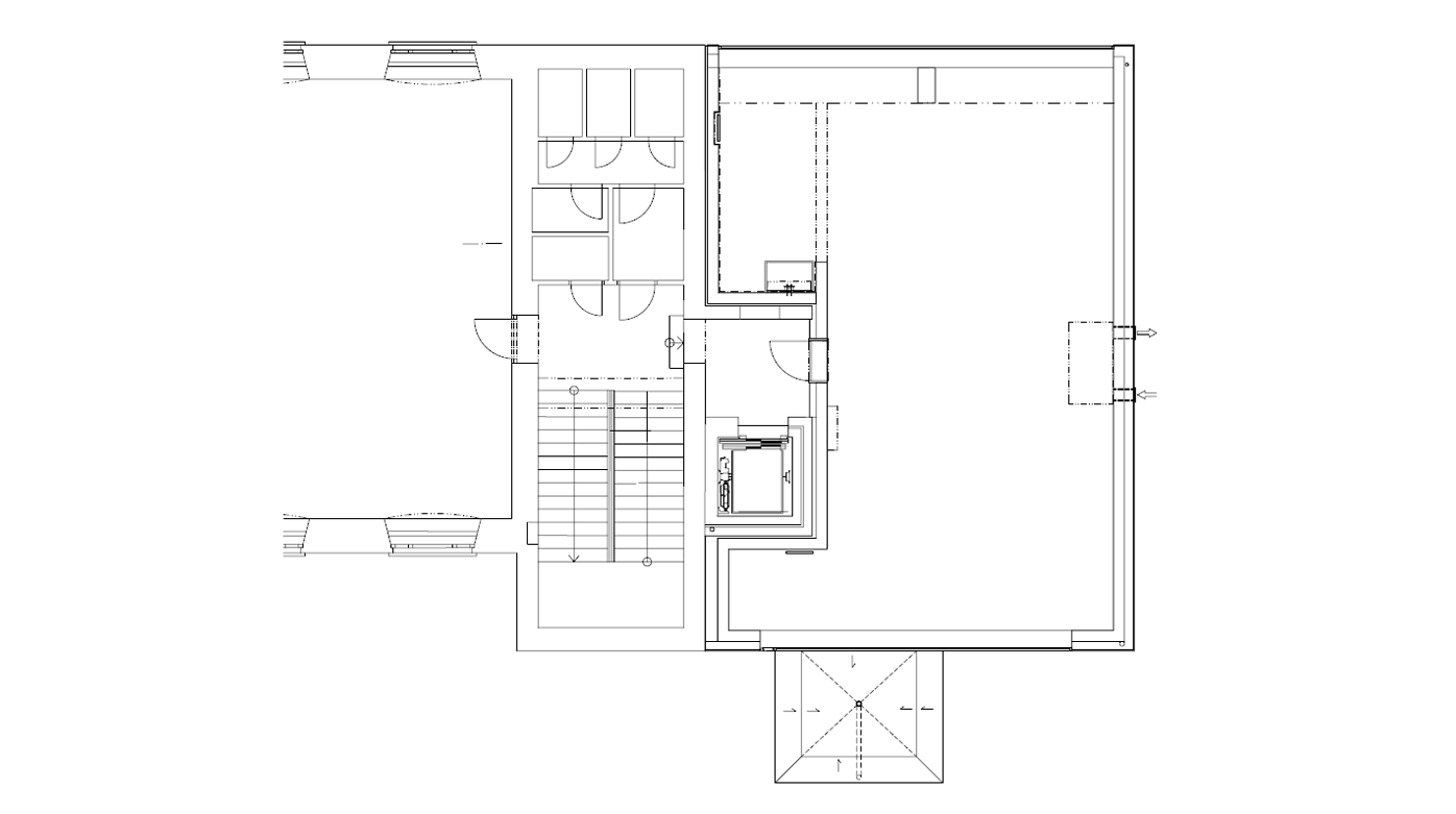
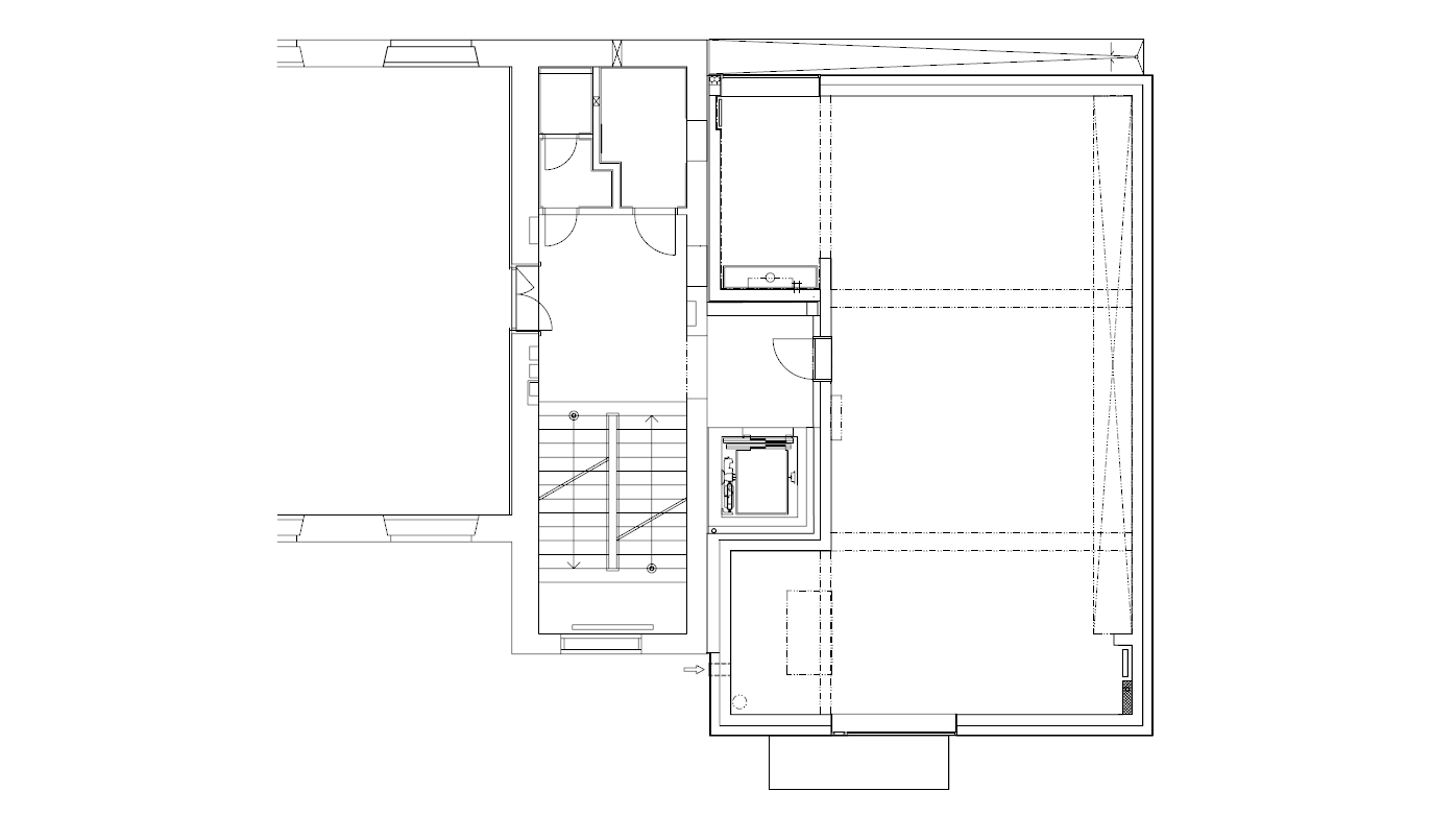
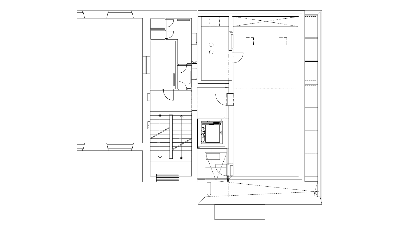
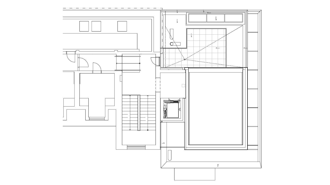
마사리크대학교는 프로젝트의 시공 과정 중에도 변전소 운영이 유지되길 바랐다. 이를 해결하기 위해 견고한 모놀리식 철근 콘크리트 구조물을 통해 기존 구조에 미치는 영향을 최소화했다. 또한, 측면 창문이 없는 스튜디오 내부로 일광이 들어올 수 있도록 개별 층마다 수평적인 채광창을 만들었다. 내부의 콘크리트 표면은 흰색 페인트와 에폭시 코팅으로 마감되어 있으며 모든 인프라는 기존 시설과 연결되어 있다. 공간의 크기는 상대적으로 작지만 통풍이 잘되고 가벼운 이미지를 준다.














건축가 dílna Architecture + Interior
위치 체코, 브르노
대지면적 141㎡
건축면적 141㎡
연면적 320㎡
준공 2023
프로젝트건축가 Michal Palaščak
건축주 Masaryk University in Brno
사진작가 Studio Flusser
해당 프로젝트는 건축문화 2024년 10월호(Vol. 521)에 게재되었습니다.
The project was published in the October, 2024 recent projects of the magazine(Vol. 521).
October 2024 : vol. 521
Contents : COMPETITION : RECENT PROJECTSilver for Rest / so-ul architects은빛 숲 / 소을건축사사무소Ginkgo Gallery / MORE Architecture긴코 갤러리 / 모어 아키텍처The April House / YAYArchitects사월애가(四月愛家) / (주
anc.masilwide.com
'Architecture Project > Education' 카테고리의 다른 글
| Ecole du Honcourt (0) | 2024.10.28 |
|---|---|
| ABF "Maria Manetti Shrem" Educational Center (0) | 2024.10.25 |
| Lozaits-Seguin ESAT (0) | 2024.09.13 |
| Eungam Hana Public Kindergarten (0) | 2024.09.10 |
| Rudolf Steiner University (0) | 2024.08.23 |
마실와이드 | 등록번호 : 서울, 아03630 | 등록일자 : 2015년 03월 11일 | 마실와이드 | 발행ㆍ편집인 : 김명규 | 청소년보호책임자 : 최지희 | 발행소 : 서울시 마포구 월드컵로8길 45-8 1층 | 발행일자 : 매일



