
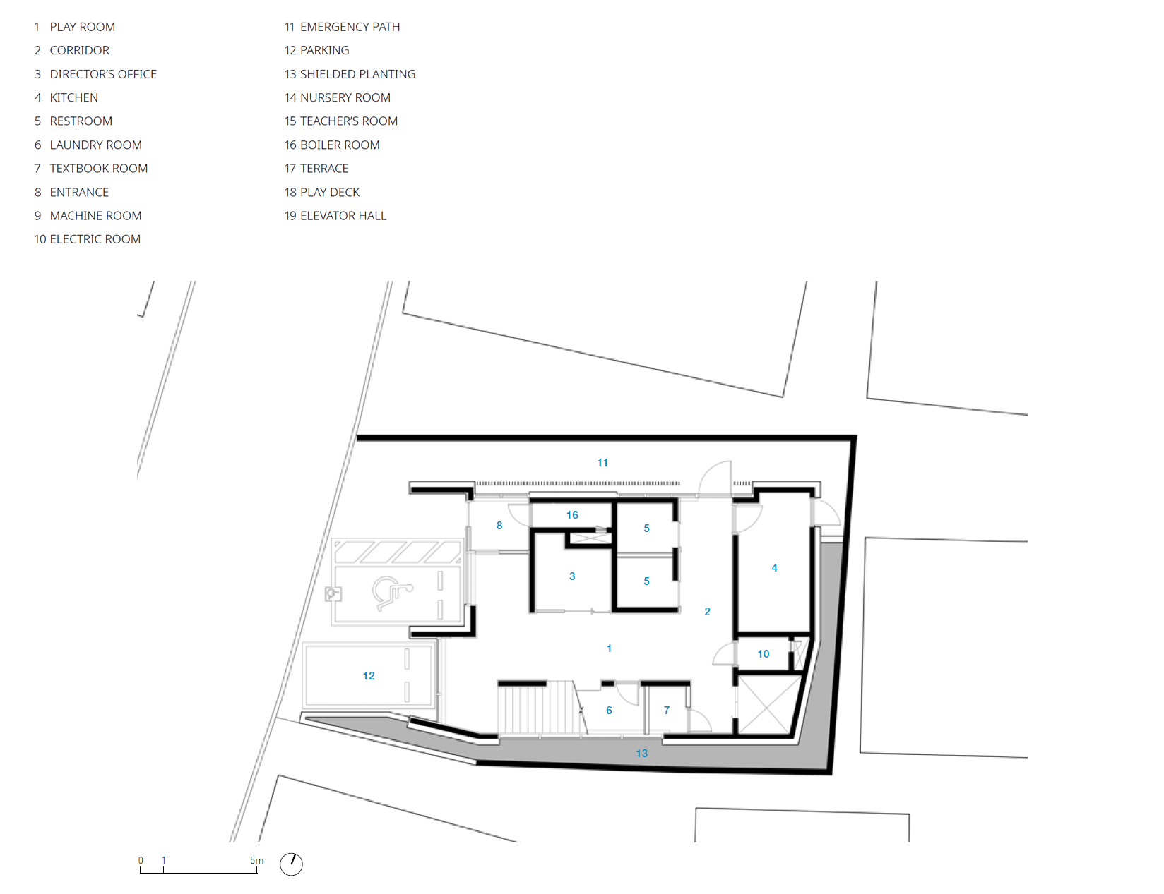
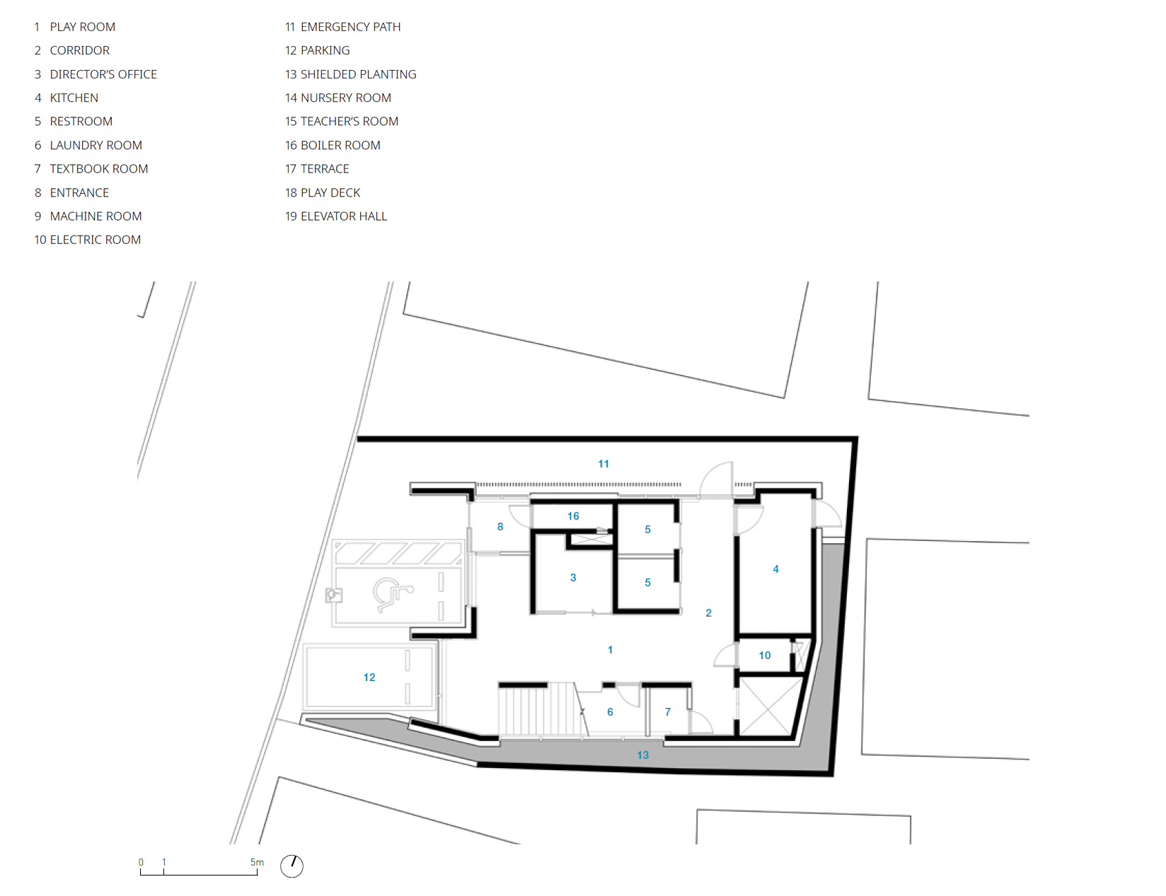
응암하나어린이집은 고밀도 도심지에서 낙후된 주변 환경에 대응하는 보육시설로서 새로운 공간 개념을 제시한 프로젝트다. 서울에서 처음으로 신축된 하나금융그룹의 보육시설이기도 하다. 대지는 전면 1차선의 좁은 도로를 제외하고 3면이 노후된 상가주택으로 둘러쌓인 고립된 지역이다. 채광과 환기가 무엇보다 중요한 보육시설이 위치할 입지임에도 인접 건물들로 인해 쾌적한 정주 환경 구축이 어려운 상황이었다.
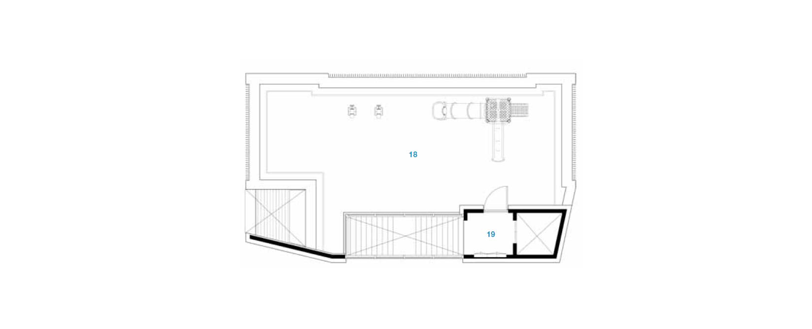
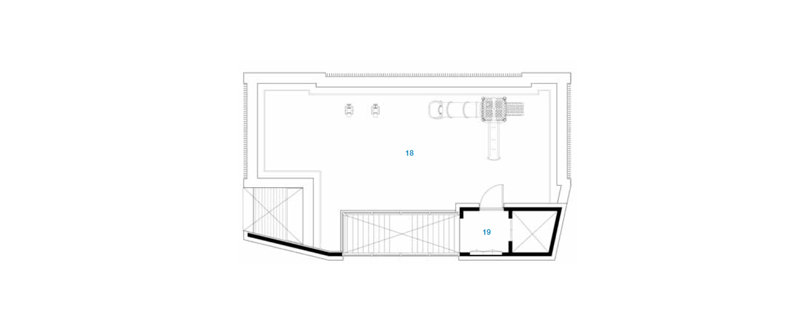
건축주는 노후화된 주거밀집 지역의 불합리함을 해소하고 효율적인 공간 레이아웃을 설계하는데 많은 노력을 기울였다. 추상적인 건축 어휘와 이론 위주의 건축담론을 실험하기에는 사이트의 여건이 부적절했기에 철저히 실증적인 관점에서 대지를 대했다. 데이터와 시뮬레이션으로 실증 가능한 방법론에 근거하여, 고밀도 도심지에서의 한국적인 지속 가능한 환경적응 건축(Sustainable Adaptive Architecture)의 전형을 선보였다. 구체적으로는 높은 층고의 계단실 아트리움을 남측에 두어 인접 건물로 인한 채광 부족 문제를 해결하고자 했다. 동서측으로 개방된 파사드를 통해 교차 환기(Cross Ventilation)가 가능하게 함으로써 건물주변 미시기후의 변화에 대응하고자 했다. 또한 조밀한 땅에서 주변의 시선으로부터 아이들을 보호하기 위한 장치로써 세장한 수직 루버가 적용되었고, 비상시 소방관 진입을 돕는 움직일 수 있는 루버 프레임까지 많은 부분에서 능동적이고 혁신적인 건축방법론들이 반영됐다.
공공에서의 하이엔드 건축은 현실적인 재료와 디테일로 얼마나 현명하게 현실의 제약들을 극복하느냐가 관건일 것이다. 결국 이 모든 시도들은 공간을 전용하는 아이들에게 제공할 쾌적한 정주환경을 위한 고민들이며, 2년에 걸친 수많은 스터디와 치열한 토론의 결과물이 현실화될 수 있었다.

The Eungam Hana Daycare Center is a project that proposes a new spatial concept for a childcare facility, set in a dense urban environment of aged surroundings. It is also Hana Financial Group’s first newly built childcare facility in Seoul. The site is isolated, bordered on three sides by aging commercial-residential buildings, with only a narrow single-lane road in front. Although daylight and ventilation are critical for a childcare facility, the proximity of adjacent buildings made it challenging to create a pleasant environment.
The client put significant effort in addressing the inefficiencies of the aging, high-density neighborhood and in designing an efficient spatial layout. Given the constraints of the site, this was not a project for experimenting with abstract architectural theories. Instead, a pragmatic, evidence-based approach was taken, using data and simulations to explore verifiable methodologies. The result is a model of Sustainable Adaptive Architecture, tailored to the high-density urban context of Korea. One of the key solutions was the installation of a high-ceiling stairwell atrium on the south side to address the lack of daylight due to the neighboring buildings. Openings on the east and west façades were incorporated to enable cross ventilation, responding to the microclimate around the building. Additionally, slender vertical louvers were designed to protect the privacy of children from the crowded surroundings, and movable louver frames were added to help firefighters enter during emergencies. These design strategies reflect a dynamic and innovative architectural methodologies in response to the challenges of the site.
High-end architecture in the public realm is all about cleverly overcoming practical constraints with realistic materials and detailed execution. Ultimately,all these efforts were driven by the desire to provide a comfortable and healthy environment for the children that will be using the space. This project, realized after two years of rigorous study and heated debate, stands as a testament to that effort.















건축가 SSK
위치 서울특별시 은평구 가좌로
용도 노유자시설
대지면적 245.00㎡
건축면적 146.90㎡
연면적 388.20㎡
규모 지상 3층
준공 2024. 1.
대표건축가 김수석
프로젝트건축가 김수석
발주자 하나금융그룹
사진작가 이남선, 송유섭
해당 프로젝트는 건축문화 2024년 9월호(Vol. 520)에 게재되었습니다.
The project was published in the September, 2024 recent projects of the magazine(Vol. 520).
September 2024 : vol. 520
Contents : RECORDS Worldwide Architectural Festival, ‘Serpentine Pavilion’ Meets in Seoul세계적인 건축 축제, ‘서펜타인 파빌리온’을 서울에서 만나다 : COMPETITION : RECENT PROJECT PICT. SQUARE(The PICT.‘s
anc.masilwide.com
'Architecture Project > Education' 카테고리의 다른 글
| Art Studios of the Faculty of Education (0) | 2024.10.18 |
|---|---|
| Lozaits-Seguin ESAT (0) | 2024.09.13 |
| Rudolf Steiner University (0) | 2024.08.23 |
| ZGC International Innovation Center (0) | 2024.07.26 |
| Hosho Gakuen Learning Center Building no. 6 (0) | 2024.06.17 |
마실와이드 | 등록번호 : 서울, 아03630 | 등록일자 : 2015년 03월 11일 | 마실와이드 | 발행ㆍ편집인 : 김명규 | 청소년보호책임자 : 최지희 | 발행소 : 서울시 마포구 월드컵로8길 45-8 1층 | 발행일자 : 매일



