
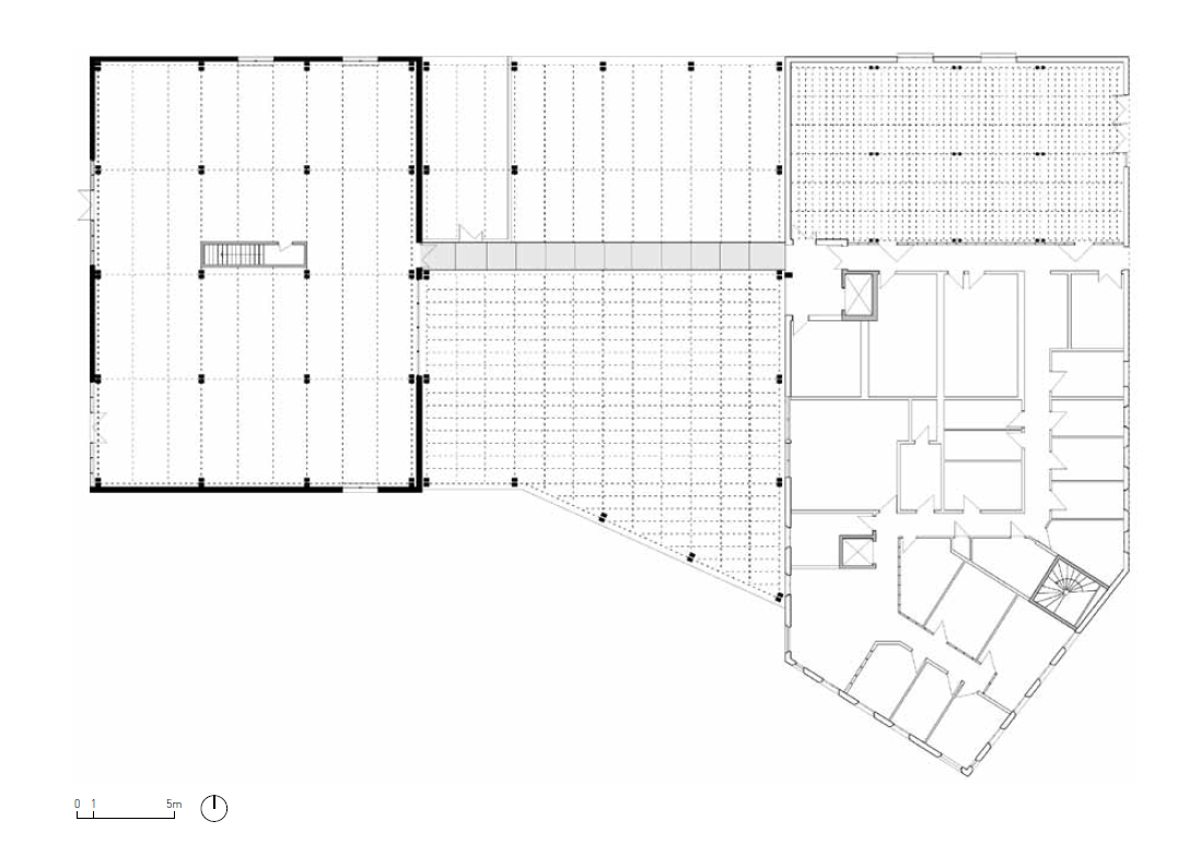
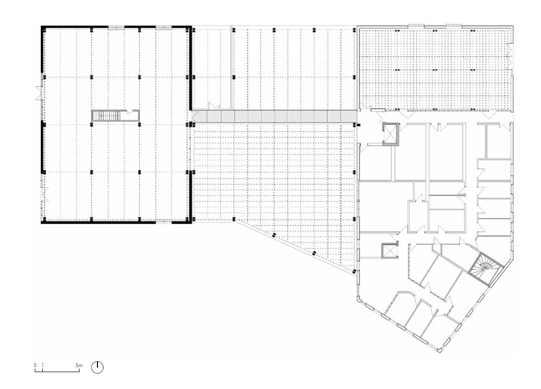
에자트(ESAT)는 프랑스에서 규모가 가장 큰 장애인 고용 사회적기업이다. 빌레쥐프시는 에자트와 함께 새로운 도시 재생 프로그램의 일환으로 공공 일자리센터 로자이츠-세귄 에자트를 설립하였다. 건물은 100년 된 나무들이 보존되어 온 공원을 배경으로 세워졌다. 공간은 창의적인 영감이 떠오르도록 설계된 작업장, 식당, 물류센터, 사무실 등으로 구성됐다. 건축물의 구조를 비롯하여 모든 부분에 목재가 사용되었다. 작업장은 필요에 따라 공간을 활용할 수 있도록 설계되었으며, 높은 목재 천장을 통해 내부로 깊이 들어오는 자연광은 작업자들에게 편안한 정서를 가져다 준다. 물류센터 공간은 이동량이 많은 공간인 것을 감안하여 하이브리드 입면으로 설계되었다.

ESAT (Etablissement et Service d’Aide par le Travail) is the largest social enterprise in France dedicated to providing employment for people with disabilities. In collaboration with ESAT, the city of Villejuif established the Lozaits-Seguin ESAT as part of a broader urban regeneration program. The building is set against a park where century-old trees have been preserved. It houses workshops, a restaurant, a logistics center, and offices, all designed to inspire creativity. Wood was used throughout the entire structure, creating a warm and natural atmosphere. The workshops are designed to be flexible, allowing spaces to adapt as needed. The high wooden ceilings bring in ample natural light, creating a pleasant environment for workers. The logistics center, designed to accommodate high traffic, features a hybrid facade to manage the flow and functionality of the space.









건축가 DREAM
위치 프랑스, 빌레쥐프
건축면적 3,570㎡
준공 2023. 9.
프로젝트건축가 (Project leaders) Julien De Speville, Claire Parrotin / Théo Diverrès
프로젝트매니저 Batigère
디자인팀 Bollinger+Grohmann, LMP Conseils, Now Here Studio, Sinteo, VPEAS
목구조엔지니어 Spruce and Douglas pine
목재 클래딩 Douglas pine, autoclaved with grey impregnation by Piveteau
시공 SICRA, (Wood cladding) Elio, (Wood structure) Arbonis
사진작가 Cyrille Weiner
해당 프로젝트는 건축문화 2024년 9월호(Vol. 520)에 게재되었습니다.
The project was published in the September, 2024 recent projects of the magazine(Vol. 520).
September 2024 : vol. 520
Contents : RECORDS Worldwide Architectural Festival, ‘Serpentine Pavilion’ Meets in Seoul세계적인 건축 축제, ‘서펜타인 파빌리온’을 서울에서 만나다 : COMPETITION : RECENT PROJECT PICT. SQUARE(The PICT.‘s
anc.masilwide.com
'Architecture Project > Education' 카테고리의 다른 글
| ABF "Maria Manetti Shrem" Educational Center (0) | 2024.10.25 |
|---|---|
| Art Studios of the Faculty of Education (0) | 2024.10.18 |
| Eungam Hana Public Kindergarten (0) | 2024.09.10 |
| Rudolf Steiner University (0) | 2024.08.23 |
| ZGC International Innovation Center (0) | 2024.07.26 |
마실와이드 | 등록번호 : 서울, 아03630 | 등록일자 : 2015년 03월 11일 | 마실와이드 | 발행ㆍ편집인 : 김명규 | 청소년보호책임자 : 최지희 | 발행소 : 서울시 마포구 월드컵로8길 45-8 1층 | 발행일자 : 매일



