
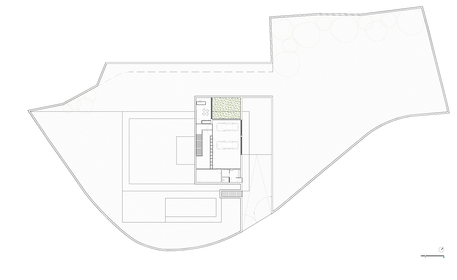
The “Áurea housing” project had as its initial premise the concept of the golden ratio. It developed with the implantation of two golden rectangles and from then on, all spaces flowed naturally. The intersection of these rectangles gives rise to an interior courtyard with the function of dividing the social area from the private area and maximizing the use of natural light and panoramic views, promoting a strong connection between the internal spaces and the external landscape.
The neutral color palette and the natural textures contribute to a serene and sophisticated atmosphere, while architectural elements, such as the glass patio and different ceiling heights, add a visual interest and functionality.
With the program also arranged in geometrically distributed rectangles, it clearly matched the client's ideas, who wanted spaces that were intuitively connected.
The body of the building is characterized by flat, clean lines, creating a ground floor and basement volume, with the illusion of a double floor in the living room area, seen from the outside. This pleasant sensation of double height creates different hierarchies and dynamics in the experiences between the social and private spaces of the house. The living room, kitchen and dining area are integrated into an open space, allowing a fluid circulation and a visual communication between the different areas. This open plan concept favors family and social coexistence, while allowing functional flexibility.
The contact with the outside was a prioritized element in the development of the project, taking advantage of the green landscape and outdoor space carefully designed to provide a comfortable and efficient living environment, promoting well-being and a strong connection with nature.














건축가 stu.dere – Oficina de Arquitetura e Design, Lda
위치 Amarante, Portugal
면적 715㎡
준공 2023
대표건축가 Ulisses Costa
시공 Edimarante, Sociedade de Construções, Lda
사진작가 Ivo Tavares Studio
'Architecture Project > Single Family' 카테고리의 다른 글
| The April House (0) | 2024.10.15 |
|---|---|
| HOUSE IN STONES (0) | 2024.10.14 |
| House in Fujiidera (0) | 2024.09.24 |
| Vista House (0) | 2024.09.23 |
| House “irfn” (0) | 2024.09.20 |
마실와이드 | 등록번호 : 서울, 아03630 | 등록일자 : 2015년 03월 11일 | 마실와이드 | 발행ㆍ편집인 : 김명규 | 청소년보호책임자 : 최지희 | 발행소 : 서울시 마포구 월드컵로8길 45-8 1층 | 발행일자 : 매일



