
스텔라 아일
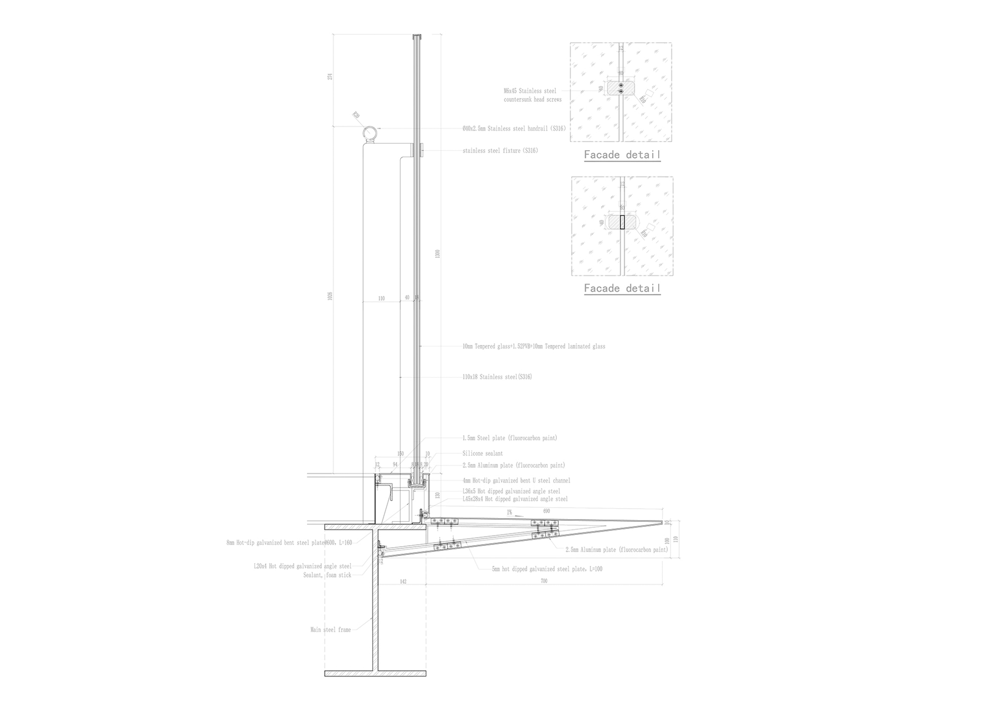
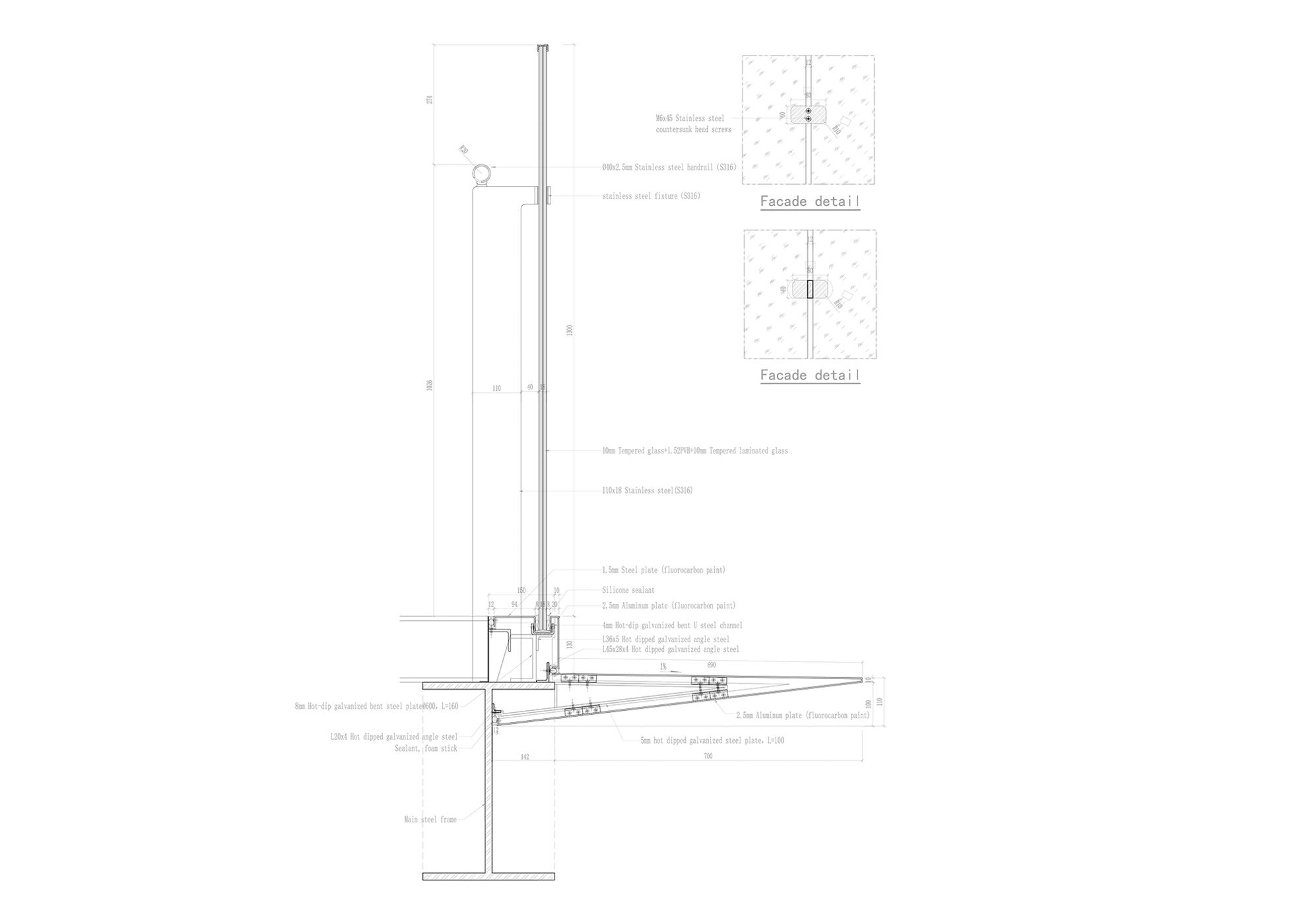
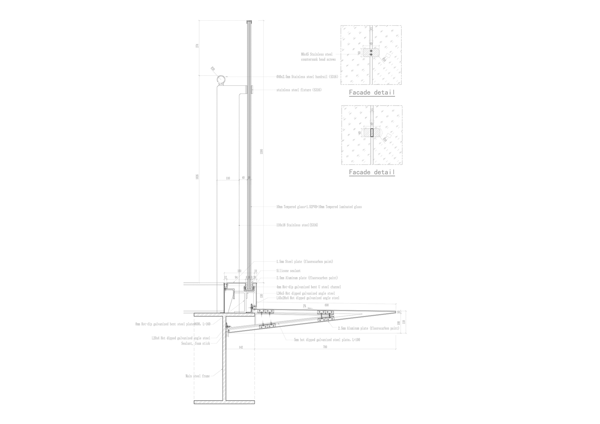
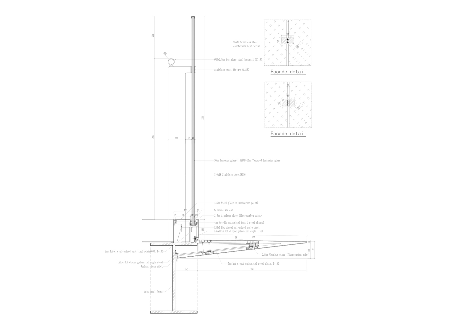
스텔라 아일은 사오싱 구시가지의 도시재생 프로젝트를 진행하며 새롭게 지어진 문화 및 여가시설 용도의 건축물이다. 5년 간의 보수 끝에, 다양한 시대의 역사적인 건물이 보존된 지역 안에 스카이워크를 포함한 새로운 건축물이 건설되었다. 각 층의 베란다와 지붕 테라스는 높이에 따라 변화하는 역동적인 풍경을 연출한다. 건축가는 파편화된 평면들을 중첩하여 형성된 연속적인 통로와 플랫폼을 통해 중첩된 계단식의 표면을 구상했다. 셰익스피어 글로브 극장과 구겐하임 미술관을 연상시키는 나선형의 공간은 통로의 역할에 더해 1층의 열린 공간의 주변으로 모일 수 있는 다층의 그랜드 스탠드 역할도 한다. 건물의 최상층과 지붕은 지그재그로 연속적으로 이어져 있고, 4층은 대지의 밀도를 유지하기 위해 적층된 지면이 바깥쪽으로 확장되었다. 이는 사오싱 구시가지를 한눈에 볼 수 있는 전망 플랫폼이 된다. 구조공학 디자이너는 형태적으로 새로운 상황을 제시하기 위해 ‘적층 바닥’의 개념을 제시했다. 계단식의 평면 양측에 어미보를 추가하고 모서리에 서로 연결하여, 4층의 스탠드와 처마가 앞뒤의 삼각형 틀에 의해 지지되는 구조를 선보였다. 이러한 파격적인 연결은 기존의 전통적인 구조 시스템에는 부합하지 않지만, 엄격하게 계산되어 디지털 제조 방법을 통해서도 구조적인 안정성과 강도를 보장할 수 있다는 도전과 상징이 되었다.

Stella Isle
Stella Isle is a newly constructed cultural and leisure facility, part of an urban regeneration project in the old town of Shaoxing. After five years of restoration, new structures, including a skywalk, were built within an area that preserves historic buildings from various periods. The balconies and rooftop terraces on each floor offer dynamic views that change with the height. The architect conceived a series of overlapping, fragmented planes, creating continuous pathways and platforms with terraced surfaces. The spiral space, reminiscent of Shakespeare's Globe Theatre and the Guggenheim Museum, not only serves as a passage but also functions as a multi-level grandstand surrounding the open space on the first floor. The uppermost floors and the roof are connected in a zigzag pattern, and the fourth floor extends outward with terraced ground to maintain the density of the site. This becomes a platform offering a panoramic view of Shaoxing’s old town. The structural engineer proposed the concept of "stacked floors" to introduce a new formal dynamic. By adding main beams along both sides of the terraced planes and connecting them at the corners, the stands and eaves on the fourth floor are supported by triangular frames in the front and back. This bold connection defies traditional structural systems but serves as a symbol of innovation, rigorously calculated to ensure structural stability and strength even through digital manufacturing methods.














디자이너 SpActrum
위치 중국, 저장성, 사오싱
대지면적 918.80㎡
연면적 1,658.30㎡
준공 2022. 12.
대표건축가 Yan Pan
디자인팀 Zhen Li, Yimeng Tang, Ying Li, Hao Chen, Xianglong Meng, ShAil Paragkum Patel, Gregorio Soravito, Jinyu Wan
구조공학 China International Engineering Design & Consult Co..Ltd
시공 Hangzhou Xiaoshan Guangyu Architectural Construction Ltd.
조명 AT. AART Design
조경 PHOOO Design
사진작가 Su Shengliang, ZhuDi@SHADØOPLAY
해당 프로젝트는 건축문화 2024년 9월호(Vol. 520)에 게재되었습니다.
The project was published in the September, 2024 recent projects of the magazine(Vol. 520).
September 2024 : vol. 520
Contents : RECORDS Worldwide Architectural Festival, ‘Serpentine Pavilion’ Meets in Seoul세계적인 건축 축제, ‘서펜타인 파빌리온’을 서울에서 만나다 : COMPETITION : RECENT PROJECT PICT. SQUARE(The PICT.‘s
anc.masilwide.com
'Architecture Project > Cultural' 카테고리의 다른 글
| SHEN NONG SHI (0) | 2024.10.15 |
|---|---|
| Ginkgo Gallery (0) | 2024.10.14 |
| Parkment Yeonhui (0) | 2024.09.03 |
| Osan Cultural center (0) | 2024.08.28 |
| Olaria Municipal (0) | 2024.08.28 |
마실와이드 | 등록번호 : 서울, 아03630 | 등록일자 : 2015년 03월 11일 | 마실와이드 | 발행ㆍ편집인 : 김명규 | 청소년보호책임자 : 최지희 | 발행소 : 서울시 마포구 월드컵로8길 45-8 1층 | 발행일자 : 매일



