
SHEN NONG SHI is located in the prime area of Taipei City, Taiwan. It is one of the few remaining typical Taiwanese townhouses amidst the rapid urban development of Taipei. Contrasted with the surrounding commercial buildings filled with chaotic signs and neon lights, the exterior of this building bears the marks of time. It stands quietly in the midst of the city. Through the initial survey, we discovered how to create a building facade that can engage in a dialogue with the city, unlike traditional commercial buildings. This design approach aligns with the owner's vision of using this space for innovative AI technology research and development, thus creating a different spatial use and architectural expression from the past. This became the starting point for our design.
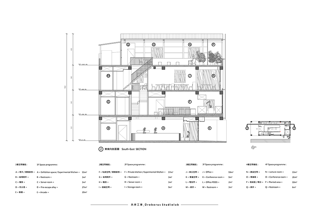
SHEN NONG SHI integrates Embodied AI, Robotics automation, and Sim2Real simulation technology in an experimental space aimed at revolutionizing the future dining experience. The restaurant, chefs, and kitchen create a completely new lifestyle and dining experience. In terms of design and planning, the fourth floor is designated for exhibitions, lectures, and a multifunctional space that combines dining technology with art and design, expanding the customer base and industry types. The third floor serves as reception, office, and meeting space, while the first and second floors are experimental and exhibition spaces for new technology.
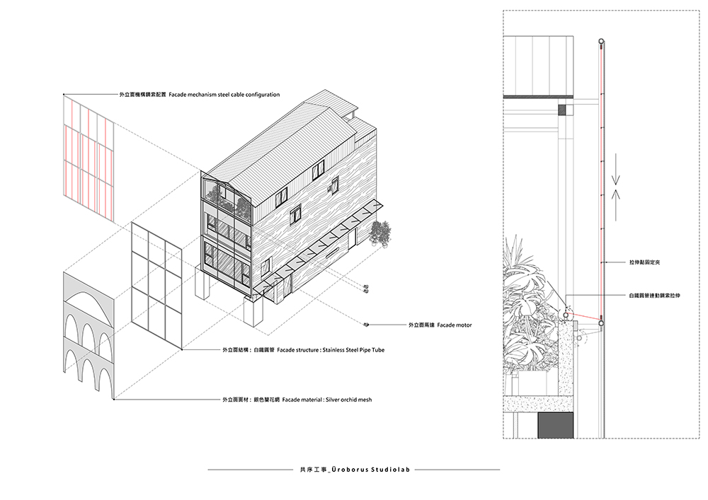
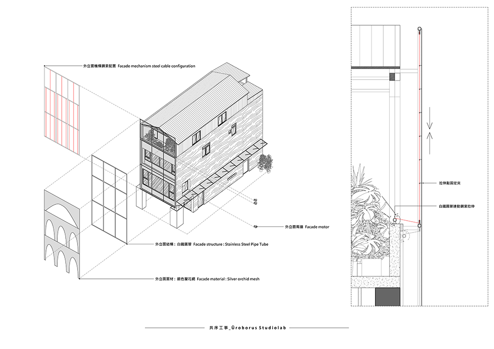
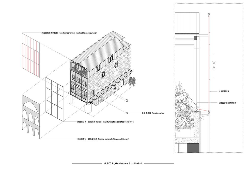
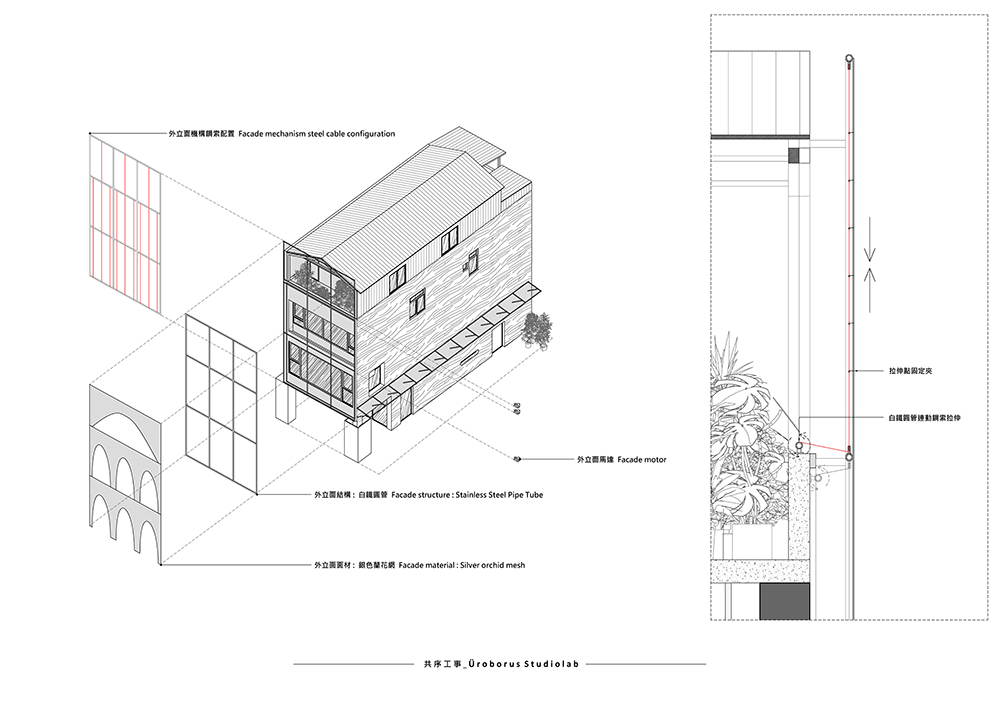
In discussions between the design team and the owner, the concept of a "training ground" was adopted to respond to the design idea of chefs and technology being "integrated." By deconstructing and re-integrating common materials used by the public, and incorporating contemporary design elements and the surrounding environmental conditions, we articulated a building design distinct from the surrounding noise. On the exterior facade of the building, we redesigned the commonly seen orchid dustproof net used in agriculture. This redesign allows for free dynamic opening and closing, creating a new building facade and urban expression. We aimed to strengthen Shennong's innovation in a non-intrusive manner, transforming the laboratory from just a laboratory into a space that can engage with its surroundings and create a new type of urban experimental architecture.
We use a thin, translucent material to gently separate the interior and exterior of the building, creating two viewing perspectives.
From the inside out: The exterior mesh resolves the privacy issue of large floor-to-ceiling windows. Standing in front of these windows, the mesh acts like a filter for the urban streetscape. Simultaneously, the freely controllable mesh can adjust the outdoor lighting, turning every wind, rain, and beam of light into a painting.
From the outside in: Design-wise, we chose a silver-gray orchid mesh with a metallic sheen, presenting a pure and abstract surface that reflects the surrounding environment like a canvas. The new mesh facade adapts to the urban environment, sometimes opening to reveal the building behind the canvas, and other times closing to partially conceal behind the canvas. With the blowing wind and the floating mesh, Shennong consistently presents a different facade, capturing various moments.
In interior spaces, we use rough concrete as the penetrating material, resembling caves in the city. Here, people and technology intersect, learn from each other, practice together, and collaborate with engineers and professionals to design a flexible, assemble-and-disassemble modular kitchen. There is a seamless circulation system and experimental space allowing both humans and robotic arms to move freely. This is a mysterious experimental space hidden in the bustling city and aiming to connect the world through the fusion of technology and cuisine.












위치 Taipei, Taiwan
면적 498㎡
대표건축가 Hao- Chun Hung
디자인팀 Chi- Yu Lai, Hong- Wei Huang, WANG YI-WEN
구조 COLUMBUS STRUCTURAL
시공 WEN- HUA CONSTRUCTION
준공년도 2024
클라이언트 SHEN NONG SHI
사진작가 Yi-Hsien Lee and Associates YHLAA
'Architecture Project > Cultural' 카테고리의 다른 글
| Fondation Maeght Extension (0) | 2024.11.01 |
|---|---|
| Multipurpose Indoor Water Studio (0) | 2024.10.25 |
| Ginkgo Gallery (0) | 2024.10.14 |
| Stellar Isle (0) | 2024.09.26 |
| Parkment Yeonhui (0) | 2024.09.03 |
마실와이드 | 등록번호 : 서울, 아03630 | 등록일자 : 2015년 03월 11일 | 마실와이드 | 발행ㆍ편집인 : 김명규 | 청소년보호책임자 : 최지희 | 발행소 : 서울시 마포구 월드컵로8길 45-8 1층 | 발행일자 : 매일



