
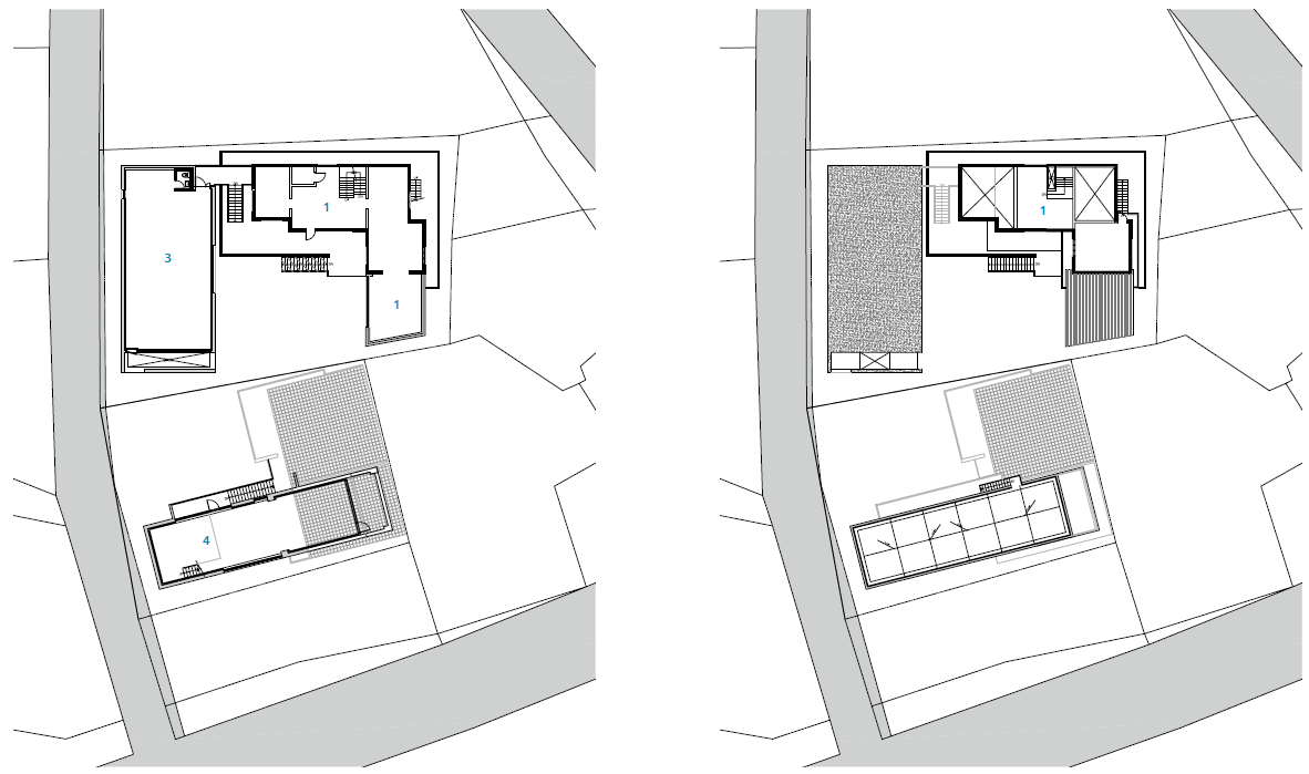
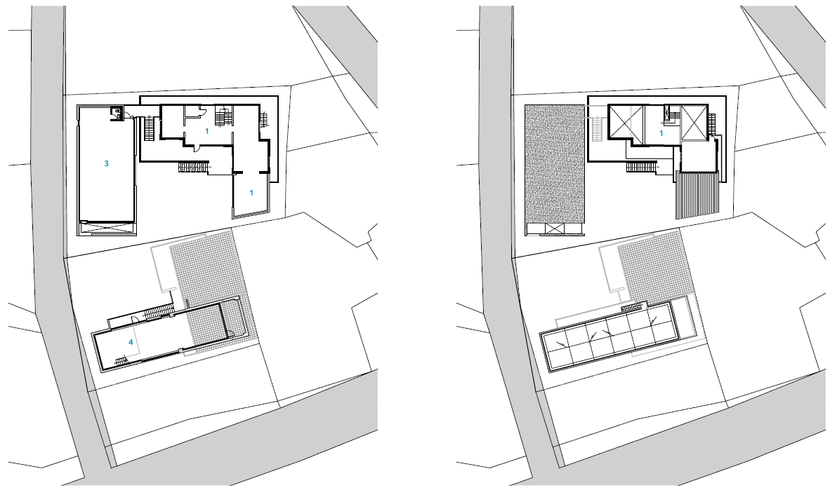
파크먼트 연희는 1970년대에 지어졌던 양옥 주택 두 채, 433-6과 433-8을 연결한 리모델링 증축 프로젝트다. 기존의 두 주택은 프랑스식 양옥 주택으로 불리는 전형적인 2층 규모의 단독주택이었다. 여기에 인접한 대지의 2개 건물을 추가로 연결하여 ‘파크먼트 연희’라 이름 짓고, 지역형 마당 라이프스타일에 맞춘 프로그램을 구상하고 운영 중이다. 각각의 건물은 입구를 공유하며 내부와 외부로 연결되어 각 공간을 통합적으로 운영할 수 있다.
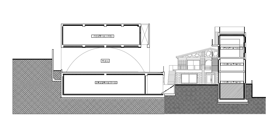
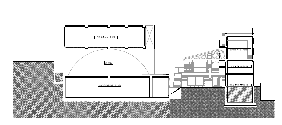
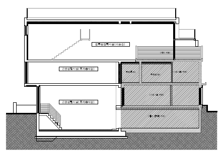
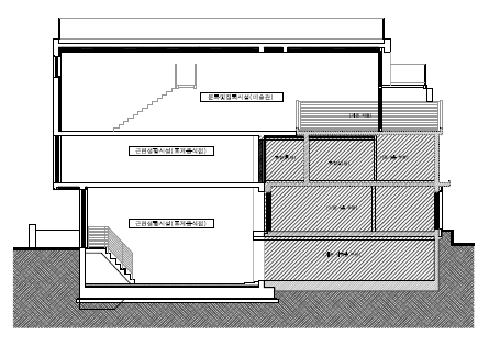
증축한 433-8의 기존 구옥에는 앞마당에 지상 1층과 지상 2층 규모의 건물을 증축하여 건폐율과 용적률을 확보하면서도 근린생활시설을 추가했다. 건축가는 기존 주택의 내부에 구조를 추가하여 신축부가 구축부에 관입하는 특이한 구조를 제안했고, 이를 통해 공간을 충분히 확보하며 연결성, 구조적 안정성까지 확보했다. 증축부의 지상 1층은 구옥의 2층과, 증축부의 2층은 구옥의 지붕과 평행으로 연결되어 증축부의 실내에서도 구옥의 옥상을 볼 수 있다. 이후 증축한 433-6은 전시장과 근린생활시설 공간을 확보했다. 증축부의 1층은 실내로 두지 않고 지붕이 있는 마당으로 만들었다. 반원 형태의 구조는 최대한 외부 도로를 향해 열어 구옥으로의 접근성을 높이고, 지하에 새로 마련된 중정의 계단은 구옥까지 연결된다.
각각의 증축과 리모델링은 기존 연희동에서 이루어지는 유형과 큰 차이가 없으면서 하나의 콤플렉스(Complex)가 되어 유기적인 연결성을 가진다. 433-6의 마당은 433-8의 구옥 2층과 연결되고, 433-6의 지하는 433-8의 마당과 자연스러운 단차로 연결된다. 편하게 앉을 수 있는 외부 계단은 갤러리뿐 아니라 공연을 할 수 있는 공간으로 바뀌기도 한다.





Parkment Yeonhui is a remodeling and expansion project that connects two Western-style houses, 433-6 and 433-8, built in the 1970s. The original houses were typical two-story detached homes known as French-style Western. The buildings were connected with adjacent land, and the project was named "Parkment Yeonhu." The project was conceived and is now being operated to fit the local courtyard lifestyle. Each building shares an entrance and is connected internally and externally, allowing the spaces to be managed integratively.
For the existing old house at 433-8, an expansion was added in the form of a one- and two-story building in the front yard, increasing the building coverage and floor area ratios while also adding neighborhood commercial features. The architect proposed an unusual structure that adds to the interior of the existing house, allowing the new construction to penetrate the old structure, thereby securing ample space, connectivity, and structural stability. The first floor of the expansion aligns with the second floor of the old house, while the second floor of the expansion connects with the roof of the old house, allowing views of the old house's rooftop from within the new structure. The expansion at 433-6 created space for a gallery and neighborhood commercial services. The first floor of the new structure was left as an open courtyard with a roof rather than being enclosed. The semicircular structure opens as much as possible toward the external road to enhance accessibility to the old house, and a newly constructed stairway in the basement courtyard connects to the old house.
Each expansion and remodeling project, while not differing significantly from other projects in Yeonhui-dong, has come together as a complex with organic connectivity. The courtyard of 433-6 connects to the second floor of the old house at 433-8, and the basement of 433-6 connects naturally with the courtyard of 433-8 through a gentle slope. The exterior stairs, which can comfortably be used for seating, also double as a space for performances, in addition to serving the gallery.










건축가 쿠움파트너스 + (주)씨앤에이건축사사무소
위치 서울특별시 서대문구 연희동 433-6, 433-8
용도 문화 및 집회시설(미술관), 근린생활시설
대지면적 (433-6) 650.00㎡ / (433-8) 446.00㎡
건축면적 (433-6) 324.89㎡ / (433-8) 218.21㎡
연면적 (433-6) 761.07㎡ / (433-8) 555.82㎡
규모 (433-6) 지하 1층, 지상 3층 / (433-8) 지하 1층, 지상 2층
건폐율 (433-6) 49.98% / (433-8) 49.94%
용적률 (433-6) 74.14% / (433-8) 96.87%
준공 (433-6) 2023. 7. / (433-8) 2022. 7.
기획디자인 김종석
건축설계 조승봉
디자인팀 오대천, 임인균, 김민기, 양연욱
구조엔지니어 토담이앤씨
기계엔지니어 (주)지엠이엠씨
전기엔지니어 (주)지엠이엠씨
시공 (주)쿠움
운영 (주)어반플레이
사진작가 김용순
해당 프로젝트는 건축문화 2024년 8월호(Vol. 519)에 게재되었습니다.
The project was published in the October, 2024 recent projects of the magazine(Vol. 519).
August 2024 : vol. 519
Contents : SKETCH Imagine the Details / Pavel Muradov 디테일을 상상하기 / 파벨 무라도프 : COMPETITION : RECENT PROJECT Anyang Logistics Center / SAC INTERNATIONAL, LTD. + JAS ARCHITECTS안양물류센터 / (주)서
anc.masilwide.com
'Architecture Project > Cultural' 카테고리의 다른 글
| Ginkgo Gallery (0) | 2024.10.14 |
|---|---|
| Stellar Isle (0) | 2024.09.26 |
| Osan Cultural center (0) | 2024.08.28 |
| Olaria Municipal (0) | 2024.08.28 |
| A Park Shenzhen Digital Art Park (0) | 2024.08.26 |
마실와이드 | 등록번호 : 서울, 아03630 | 등록일자 : 2015년 03월 11일 | 마실와이드 | 발행ㆍ편집인 : 김명규 | 청소년보호책임자 : 최지희 | 발행소 : 서울시 마포구 월드컵로8길 45-8 1층 | 발행일자 : 매일



