
순응하여 스며드는 건축
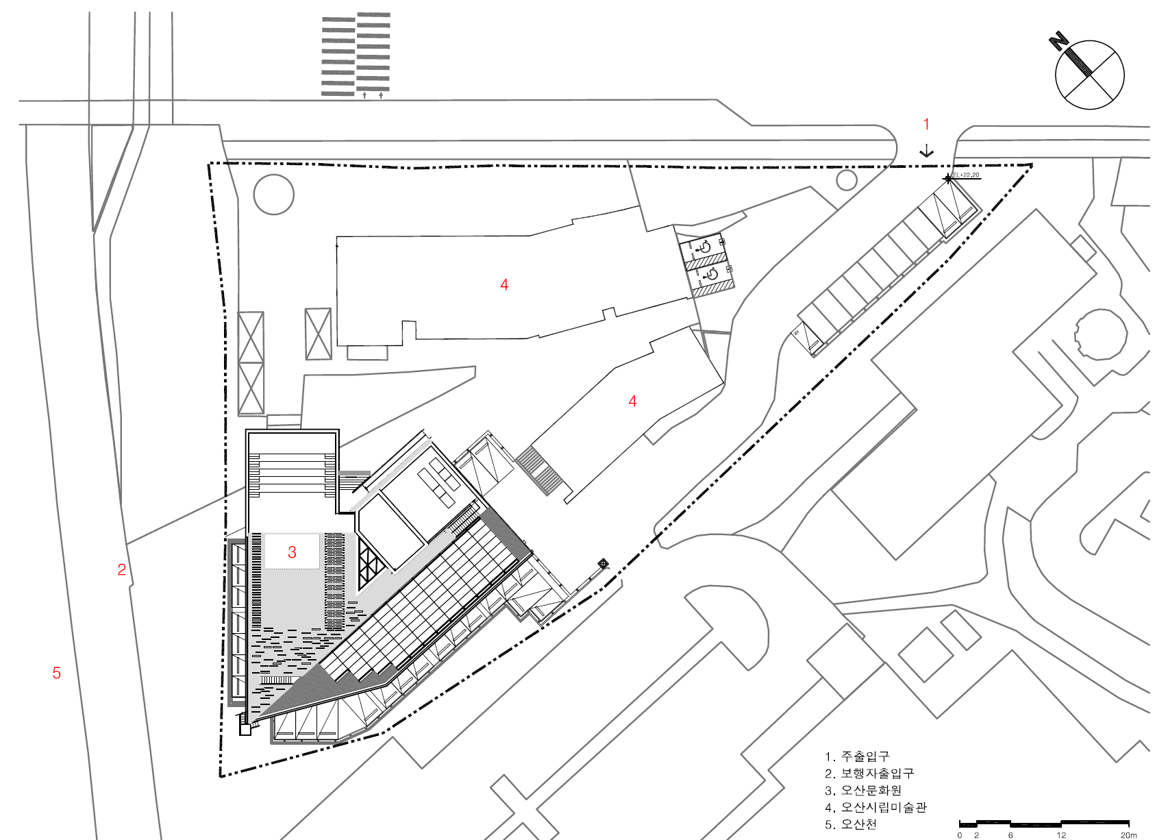
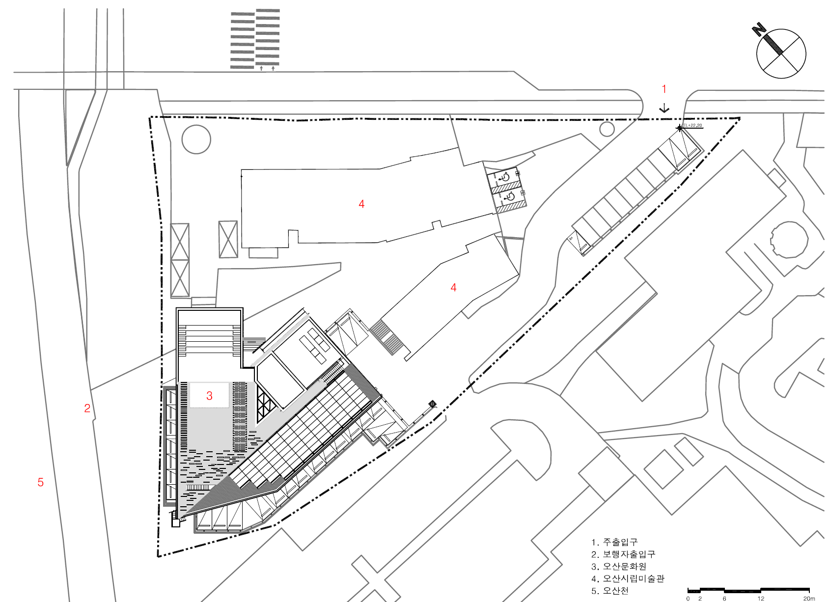
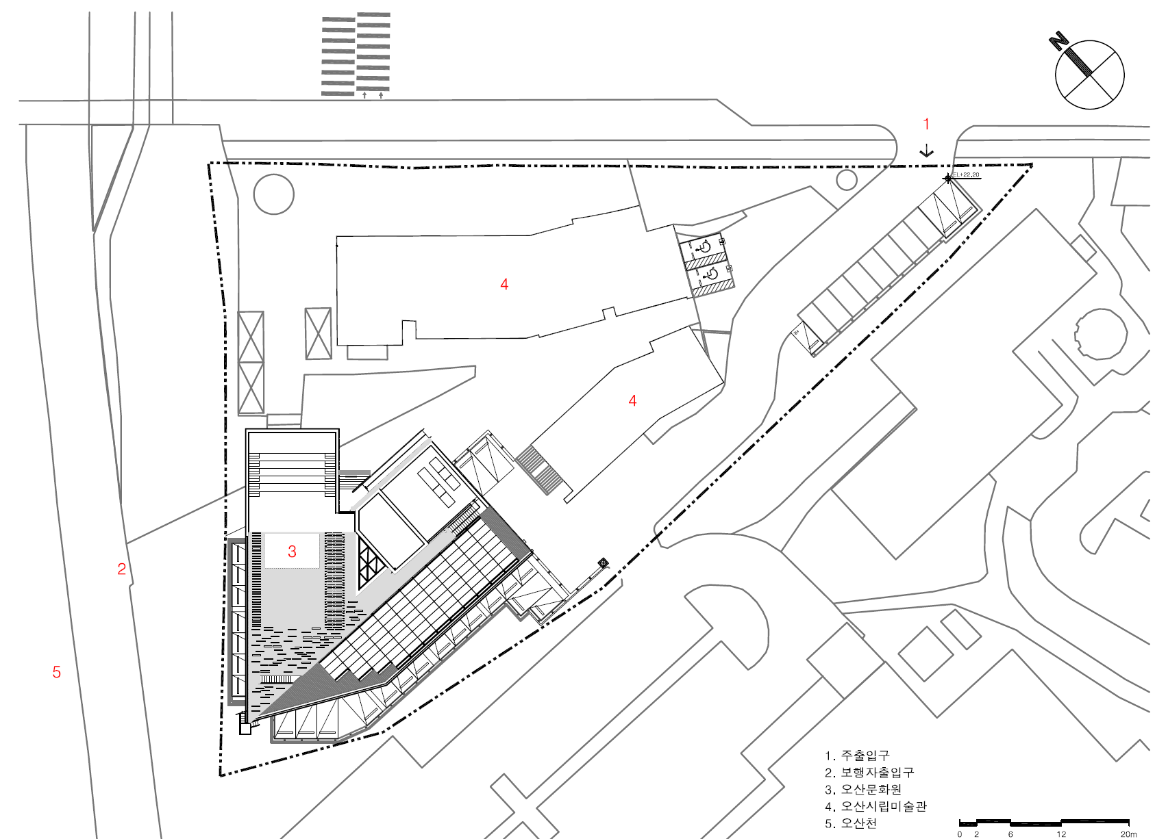
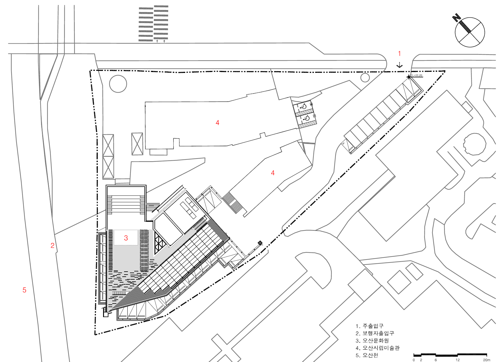
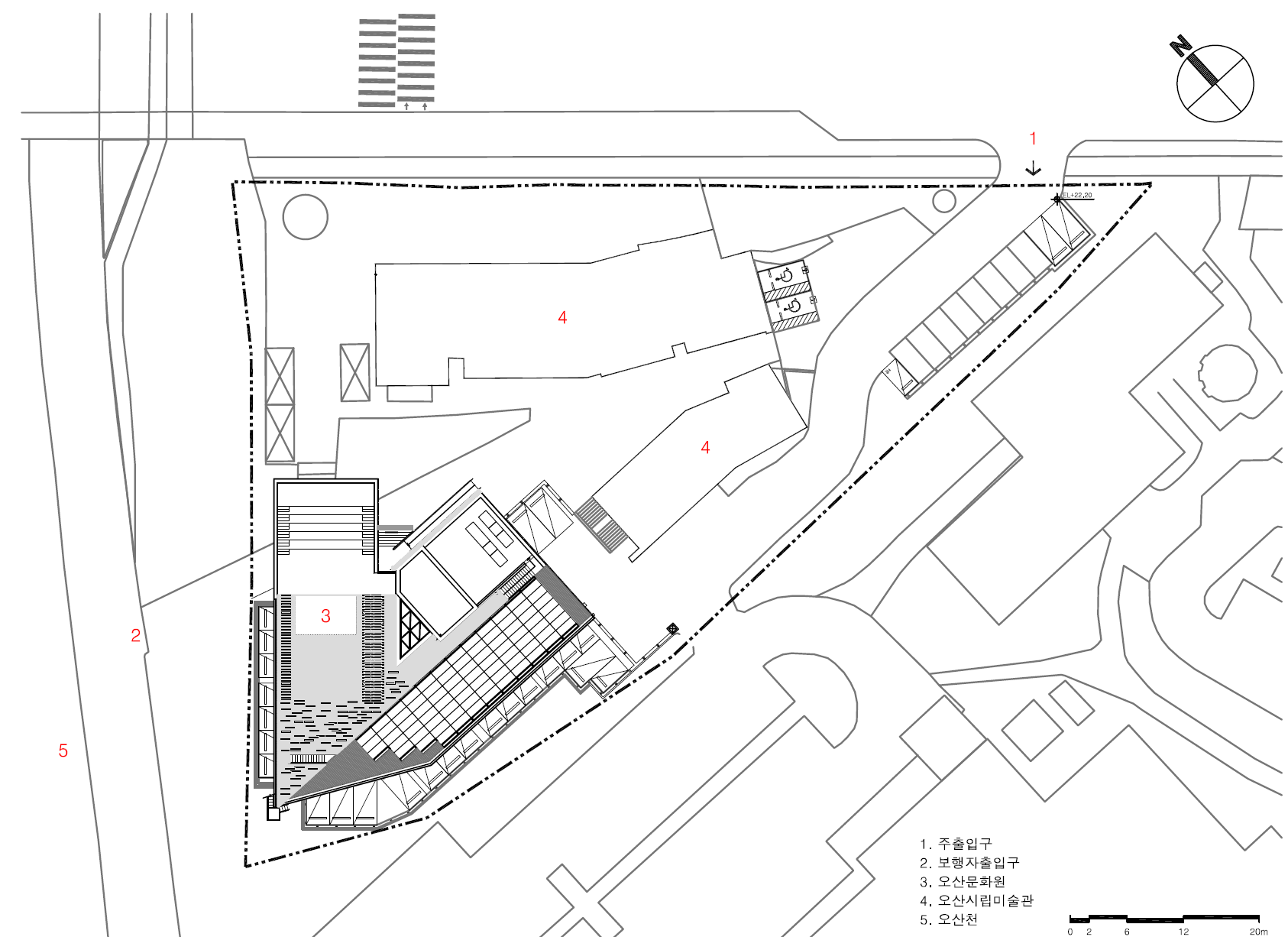
오산문화원은 미술관이 있는 삼각형 모양의 대지에 문화원 건물을 신축한 프로젝트이다. 대지의 북서측으로는 오산천이 흐르고, 동측으로는 오산시립미술관이 자리잡고 있었다. 건축가는 대지로 접근하는 다양한 동선과 기존의 보행자 동선을 해치지 않고, 오산천의 수려한 자연 경관을 건축 공간 안으로 끌어들이고자 했다. 이를 위해 기존의 미술관 진입 동선의 변경을 최소화하고 미술관이 가지고 있던 시스템에 순응했다. 이렇게 여러 진입로가 조성되자 건축물을 다양한 각도에서 조망할 수 있어 형태와 입면에서 다채로운 느낌을 준다. 옥상에는 정원과 공연장을 계획하여 휴식공간과 다양한 문화 이벤트가 가능하도록 하였다.





Architecture that blends in and adapts
The Osan Cultural Center is a project that involves the construction of a new cultural center building on a triangular site that includes an art museum. To the northwest of the site flows the Osan Stream, and to the east is the Osan City Art Museum. The architect designed the center to bring the beautiful natural scenery of the Osan Stream into the architectural space without disrupting the various existing pedestrian pathways leading to the site. To achieve this, the architect minimized changes to the current access routes to the museum and adapted to the system that the museum had in place. As multiple entry points were created, the building can be viewed from various angles, offering a diverse encounter in terms of form and façade. A garden and a performance venue were planned for the rooftop, providing spaces for relaxation and hosting various cultural events.









건축가 라라건축사사무소
위치 경기도 오산시 현충로 100
용도 문화 및 집회시설
대지면적 4,160.00㎡
건축면적 721.08㎡
연면적 1,346.41㎡
규모 지상 3층
건폐율 17.33%
용적률 32.00%
설계기간 2020. 11. - 2021. 12.
시공기간 2022. 6. - 2023. 10.
준공 2023. 10.
대표건축가 김나비, 김성원
구조엔지니어 (주)오푸스펄구조기술사사무소
기계엔지니어 대성이엔에프
전기엔지니어 대성이엔에프
시공 주식회사 대호종합건설
발주자 오산시
사진작가 최진보
해당 프로젝트는 건축문화 2024년 8월호(Vol. 519)에 게재되었습니다.
The project was published in the October, 2024 recent projects of the magazine(Vol. 519).
August 2024 : vol. 519
Contents : SKETCH Imagine the Details / Pavel Muradov 디테일을 상상하기 / 파벨 무라도프 : COMPETITION : RECENT PROJECT Anyang Logistics Center / SAC INTERNATIONAL, LTD. + JAS ARCHITECTS안양물류센터 / (주)서
anc.masilwide.com
'Architecture Project > Cultural' 카테고리의 다른 글
| Stellar Isle (0) | 2024.09.26 |
|---|---|
| Parkment Yeonhui (0) | 2024.09.03 |
| Olaria Municipal (0) | 2024.08.28 |
| A Park Shenzhen Digital Art Park (0) | 2024.08.26 |
| Window of Kaizhou (0) | 2024.08.21 |
마실와이드 | 등록번호 : 서울, 아03630 | 등록일자 : 2015년 03월 11일 | 마실와이드 | 발행ㆍ편집인 : 김명규 | 청소년보호책임자 : 최지희 | 발행소 : 서울시 마포구 월드컵로8길 45-8 1층 | 발행일자 : 매일



