
하우스 “irfn”은 인구 밀집도가 높은 도쿄의 도심지 내 작은 대지에 부부와 두 자녀가 함께 생활할 주택으로 지어졌다. 이 주택은 가족 구성원과 주거 공간의 다양성을 반영하여 도시 환경에서 여러 변화를 수용할 수 있는 저비용의 실험적인 프로젝트로 진행되었다. 이에 따라 최소한의 설비와 구조, 기본적인 뼈대, 외벽과 창을 바탕으로 즉흥적이고 임시적인 외관을 지니게 되었다. 여기서 건축물의 프레임과 마감재, 비품, 가구 등의 요소는 거주자의 생활에 따라 적극적으로 조정이 가능하다. 이러한 맥락에서 하우스 “irfn”는 끝없는 변화의 가능성을 담고 있는 미완성 주택이지만, 주변 환경을 품고 점차 변화해 나가는 모습을 통해 현대 도시와의 공존의 의미를 고민할 기회가 되었다.
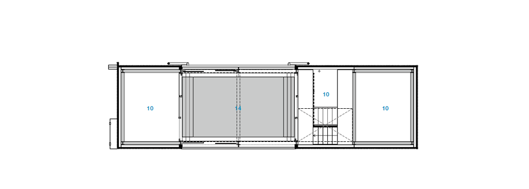
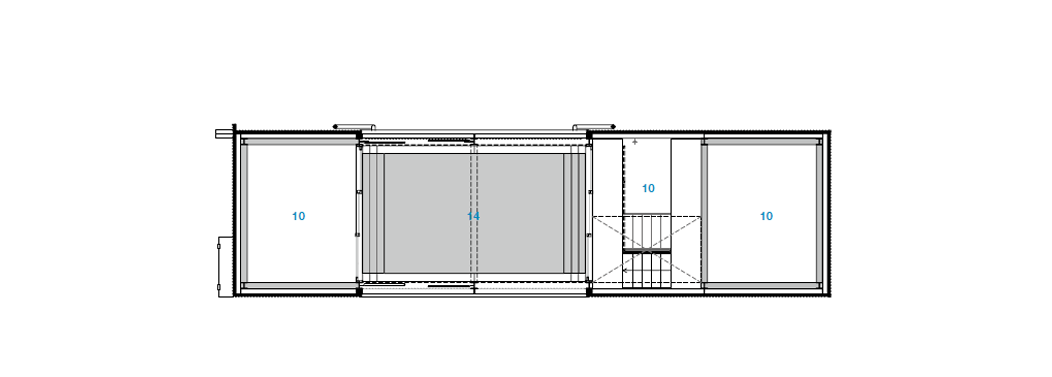
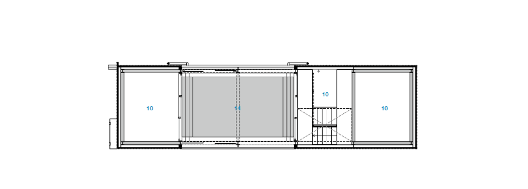
건축가는 좁고 깊은 대지로 인해 자연스럽게 생긴 전면부와 깊이감을 반영하여 병치된 여러 개의 경사 축과 수직 축을 통해 다양한 거리감과 깊이감을 연출하였다. 레벨차가 있는 방은 계단을 사이에 두고 나선형으로 교차되며, 대지의 입지에 따라 자연스럽게 제한된 창의 면적은 레이아웃을 통해 섬세하게 확보했다. 철골 브레이스 구조로 이루어진 적층 구조의 집은 매우 단순한 층 구조를 지니면서, 중간 격자에서 옥상까지 전체 높이에 걸쳐 계단식 구조로 연결되어 있다. 주택 내의 동선에는 일부러 복잡성을 결합하였는데, 이는 직접적인 연결로 인한 구성의 단순성과 형식성 그리고 공간 인식의 단조로움이 발생하지 않게 한다.

House "irfn" was built for a couple and their two children on a small plot of land in the densely populated heart of Tokyo. This house was developed as a low-cost experimental project, designed to reflect the diversity of its residents and the living areas, while accommodating various changes within an urban environment. As a result, it features a minimalist structure with basic framing, exterior walls, and windows, giving it an improvised and temporary appearance. The frame, finishing materials, fixtures, and furniture of the building are all designed to be actively adjustable to the residents' lifestyle. In this context, although House "irfn" is an unfinished home with endless potential for transformation, it offers an opportunity to explore the meaning of harmony with the modern city, evolving along with its surroundings.
The architect used the narrow and deep plot to naturally create a sense of depth and frontality, achieved through juxtaposed sloping and vertical axes that produce a variety of spatial perspectives. Rooms at different levels intersect in a spiral manner, separated by stairs, while the limited window area—due to the location of the plot—was carefully optimized through the layout. The house, built with a steel brace structure, features a simple, layered design, where a stair-step arrangement connects the entire height of the building from the intermediate grid to the rooftop. The interior intentionally incorporates complexity to avoid the monotony of direct connections and the potential simplicity or formality of the layout, ensuring a more dynamic spatial experience.













건축가 Daisuke Yamashita Architects
위치 일본, 도쿄도, 주오구, 이리후네
대지면적 48.91㎡
건축면적 35.59㎡
연면적 93.06㎡
설계기간 2021 - 2022
시공기간 2022 - 2023
준공 2023
구조 Steel Frame Brace Structure
대표건축가 Daisuke Yamashita
구조엔지니어 (Sasaki Structural Consultants) Motoshi Inukai
주계약자 (KUDO-KOMUTEN) Jin Otagiri
사진작가 Takeshi YAMAGISHI
해당 프로젝트는 건축문화 2024년 9월호(Vol. 520)에 게재되었습니다.
The project was published in the September, 2024 recent projects of the magazine(Vol. 520).
September 2024 : vol. 520
Contents : RECORDS Worldwide Architectural Festival, ‘Serpentine Pavilion’ Meets in Seoul세계적인 건축 축제, ‘서펜타인 파빌리온’을 서울에서 만나다 : COMPETITION : RECENT PROJECT PICT. SQUARE(The PICT.‘s
anc.masilwide.com
'Architecture Project > Single Family' 카테고리의 다른 글
| House in Fujiidera (0) | 2024.09.24 |
|---|---|
| Vista House (0) | 2024.09.23 |
| House in Shukugawa (0) | 2024.09.19 |
| MyouKei-An House (0) | 2024.09.18 |
| House H (0) | 2024.09.17 |
마실와이드 | 등록번호 : 서울, 아03630 | 등록일자 : 2015년 03월 11일 | 마실와이드 | 발행ㆍ편집인 : 김명규 | 청소년보호책임자 : 최지희 | 발행소 : 서울시 마포구 월드컵로8길 45-8 1층 | 발행일자 : 매일



