
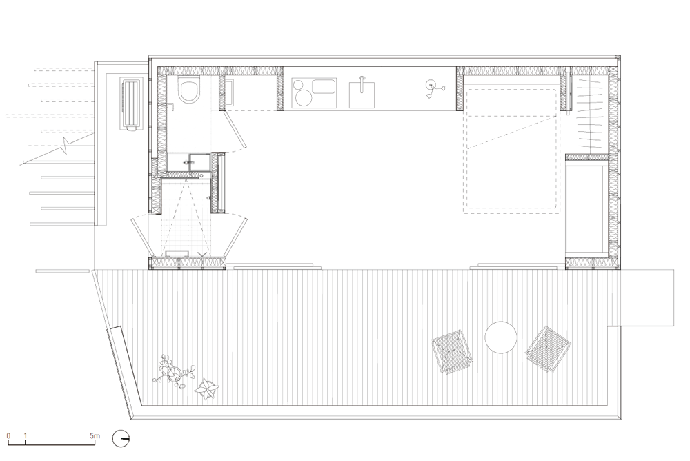
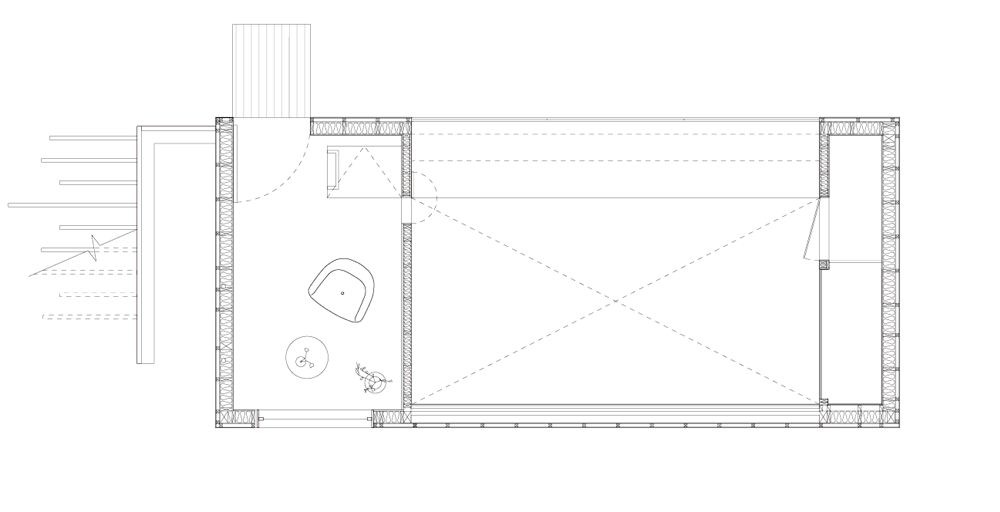
캘리포니아주 마린 카운티는 우거진 나무들과 가파른 언덕이 즐비한 곳이다. 이곳에 조그만한 게스트하우스 겸 임대주택이 들어섰다. 작은 유닛형 주택인 크레스트 게스트하우스는 경사진 대지에 자리잡고 있다. 지붕의 선은 날카롭고 각진 형태이며, 뒤쪽 벽을 따라 높은 채광창이 설치되어 있다. 숲 속 언덕에 세워진 주택인만큼 유지관리를 위해 내화성을 가진 시멘트 보드를 사용하여 지어졌다. 따뜻한 캘리포니아 기후 특징에 따라, 경사지 앞면으로는 넓은 데크 공간을 두고 있다. 넓은 테라스 공간은 내부의 거실 만큼이나 넓어 다양한 활동을 즐길 수 있다. 작업을 하는 낮시간에는 침대를 벽에 넣어두고 넓은 공간을 사용할 수 있고 밤에는 침대를 꺼내서 사용할 수 있다. 사다리를 이용해 또 다른 생활공간인 다락방으로 이동할 수 있고, 다락방에 난 창문을 통해 나무들이 빼곡한 언덕을 바라볼 수도 있다.












건축가 Mork-Ulnes Architects
위치 미국, 샌 안셀모, 마린 카운티
연면적 411㎡
준공 2023
디자인팀 Casper Mork-Ulnes, Phi Van Phan, Robert Scott, Lexie Mork-Ulnes, Kaoru Lovett
구조엔지니어 David Strandberg
시공 Damner Construction, Axelson Builders
사진작가 Bruce Damonte
'Architecture Project > Single Family' 카테고리의 다른 글
| SL House (0) | 2024.07.12 |
|---|---|
| Dune Villa West aan Zee (0) | 2024.07.02 |
| Forest Villa (0) | 2024.06.07 |
| La Marina House (0) | 2024.05.23 |
| ARQ10 (0) | 2024.05.22 |
마실와이드 | 등록번호 : 서울, 아03630 | 등록일자 : 2015년 03월 11일 | 마실와이드 | 발행ㆍ편집인 : 김명규 | 청소년보호책임자 : 최지희 | 발행소 : 서울시 마포구 월드컵로8길 45-8 1층 | 발행일자 : 매일


