
The challenge of this project was to create a sustainable vacation home on the island of Terschelling, seamlessly integrating into the dune landscape of West Aan Zee while maximizing the breathtaking views. The result is a restrained and intimate dwelling, whose design and material selection harmoniously blend with its surroundings. The metaphor of the "hermit" guided the concept: an ostensibly closed natural structure nestled in the sand, yet upon closer inspection, revealed surprises.


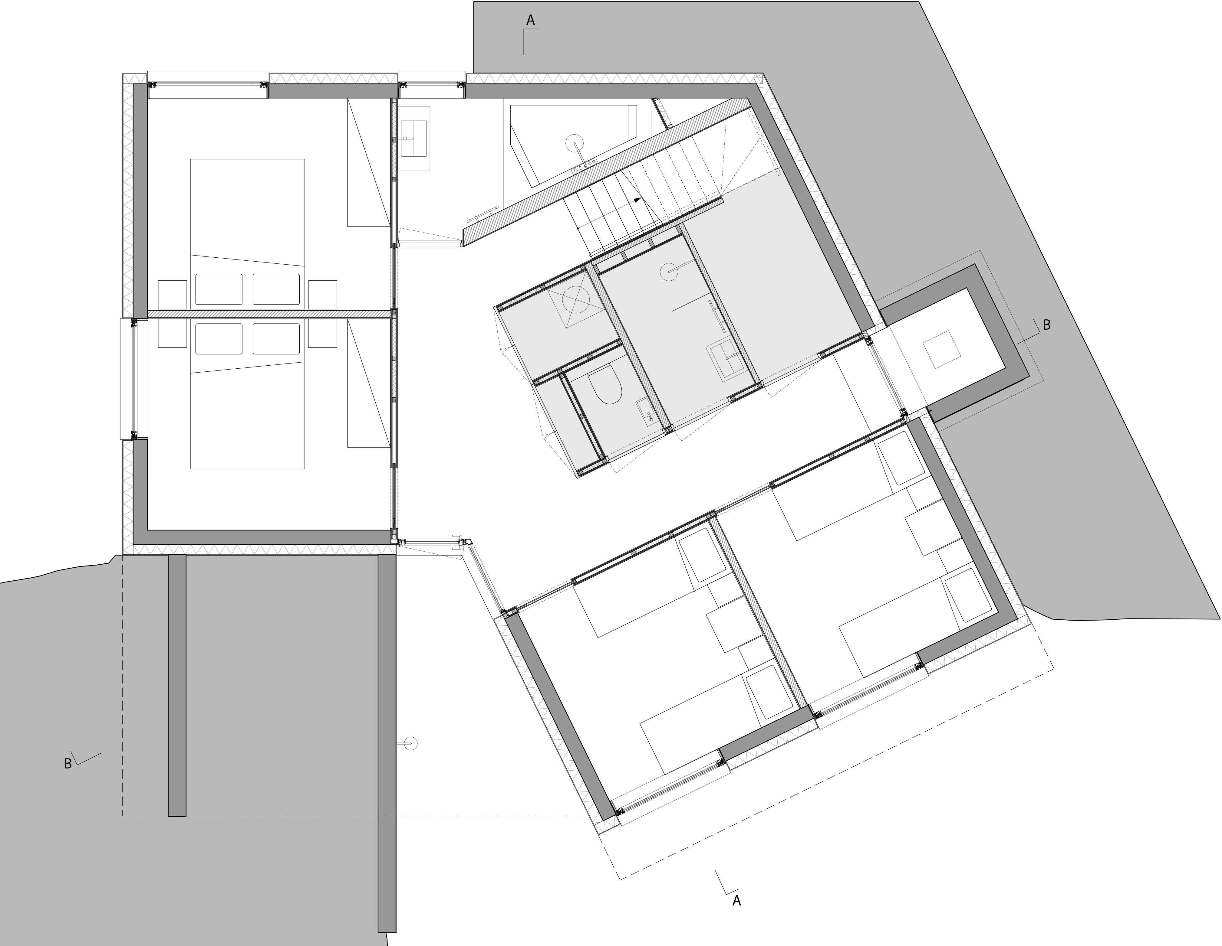
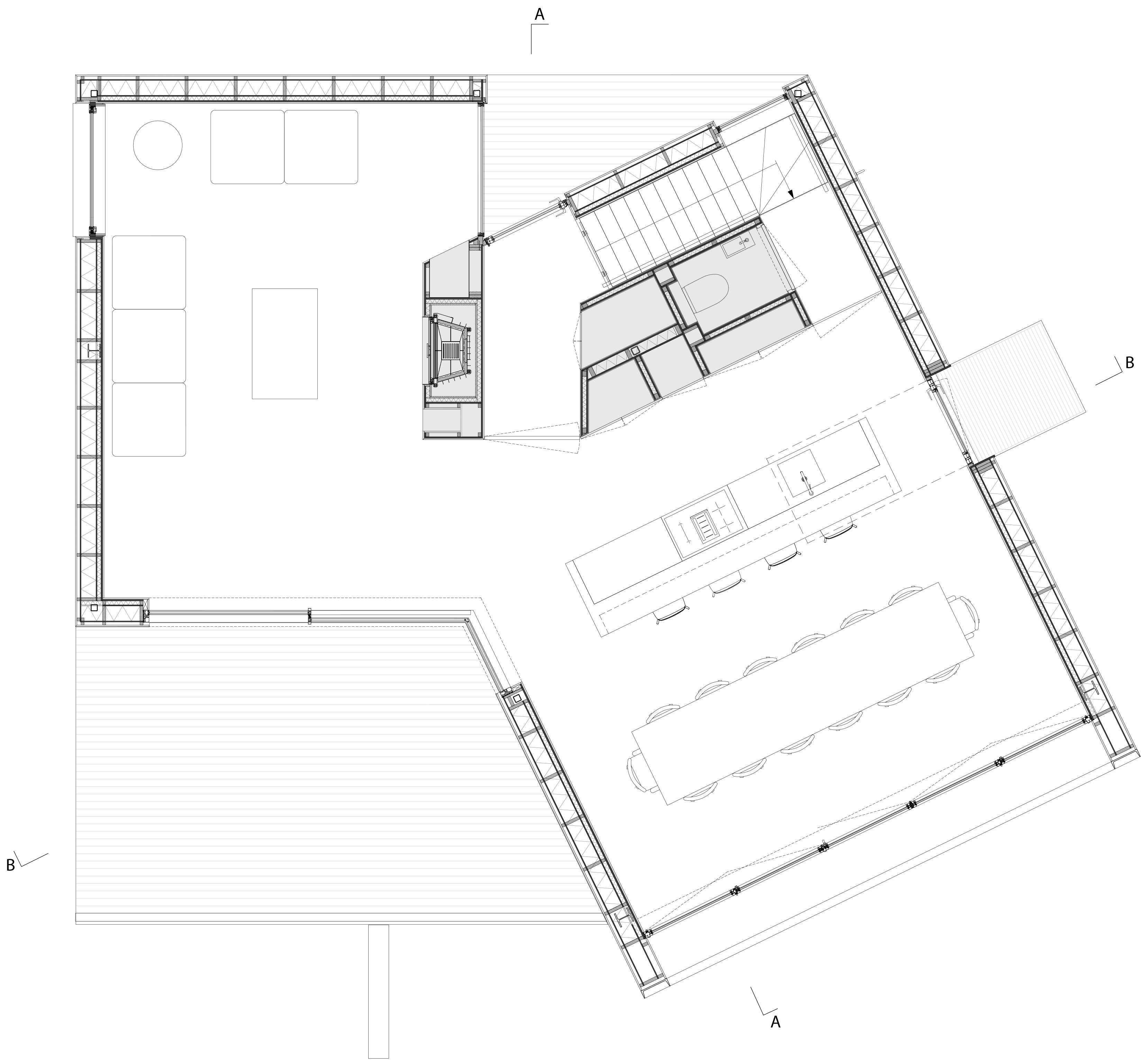
One side of the dwelling appears closed with occasional openings in the facade, while the other side opens completely toward the landscape. Furthermore, the floors contrast starkly; the ground floor is low-key and embedded in the dune, merging with the landscape, offering an intimate ambiance with subtly filtered light and views. Conversely, the first floor is open, lofty, and luminous, with each space offering a unique vista of the landscape, filled throughout the day with changing natural light, creating a rich diversity of atmospheres.
Surrounding the dwelling is a thoughtfully designed landscape with terraces at various elevations, each creating its ambiance and enhancing the sense of privacy. This meticulous design ensures that the home is not merely a place to stay but an experience seamlessly blending with the beauty of the natural surroundings. The location's 360-degree beauty offers a complete immersion in the stunning dune landscape.


The dwelling is designed from various sightlines, accessed via a notch between two concrete discs in the landscape. From the entrance hall, a spiral route through the home unfolds, akin to a journey through the dunes, echoing the hermit metaphor. This route revolves around a wooden core housing a variety of functions across both floors, offering a sequence of spatial experiences with varying light and views.


The task was to achieve a net-zero energy home with a zero-carbon footprint. Through good insulation, proper orientation, a heat pump, and burying the ground floor, an energy-neutral building was realized. By installing solar panels on the adjacent existing dwelling, also owned by the client, a net-zero energy balance was achieved.
The entire facade is constructed from biobased materials that elegantly blend with the landscape and naturally age over time. Finally, a conscious decision was made to involve local parties from the island in the construction process, contributing to the local economic and social sustainability.




건축가 2by4-architects
위치 테르셸링 섬, 네덜란드
용도 단독주택
대지면적 1,150㎡
건축면적 180㎡
준공 2018.07 - 2024.04
대표 건축가 Remko Remijnse
프로젝트 건축가 Matteo Carbone
디자인팀 Remko Remijnse, Matteo Carbone, Agnese Argenti
구조엔지니어 Heino Constructions
기계엔지니어 TiMax
전기엔지니어 Bakker lightning advice
시공 Bouwbedrijf Bos
사진작가 2by4-architects
'Architecture Project > Single Family' 카테고리의 다른 글
| Tate House (0) | 2024.07.17 |
|---|---|
| SL House (0) | 2024.07.12 |
| Crest guesthouse (0) | 2024.06.18 |
| Forest Villa (0) | 2024.06.07 |
| La Marina House (0) | 2024.05.23 |
마실와이드 | 등록번호 : 서울, 아03630 | 등록일자 : 2015년 03월 11일 | 마실와이드 | 발행ㆍ편집인 : 김명규 | 청소년보호책임자 : 최지희 | 발행소 : 서울시 마포구 월드컵로8길 45-8 1층 | 발행일자 : 매일



