
Forest Villa is located on the outskirts of Hefei, near the Dashu Mountain National Forest Park. Its natural topography is as picturesque as a fairyland on earth, which prompted HAS Design and Research to create a unique space that coexists with eternity and spirituality. Hung And Songkittipakdee (HAS) proposed a new design strategy that not only improved the functional spaces but also enhanced the site characteristics through three elements: shell, hole, and void, for a sense of extraordinary living experience in the Forest Villa.



On the building's facade, the design uses a sequence of shells to frame the continuous view. These shells strengthen the relationship between the interior and exterior, just like the traditional Chinese gardens, creating rich light and shadow effects and blocking excessive western sunlight for indoor spaces. In the foyer, a large number of holes create a sense of ambiguity, giving the spaces a free and flowing visual effect. The overlapping holes are like a forest with overlapping trees, providing a harmonious and vivid atmosphere. In the living and dining spaces, the rhythmic walls provide an axis and void at the transition space, mediating the two spaces while also enhancing people's perceptions and emotions.
The third floor continues the strategy of shell, hole, and void, which perfectly integrates with moveable panels and presents diversity and flexibility in the space. In the morning, the fully open panels allow natural light and seasonal winds to pass through the building, giving a soft living experience; in the afternoon, the semi-opened panels filter sunlight and provide a space for meditation, yoga, and Tai Chi; at night, the closed panels create an independent space for reading, relaxing, and interacting with the starry sky. This multi-functional hall captures and records a new living experience, giving an unforgettable emotional sense and stimulating the mind, body, and soul.
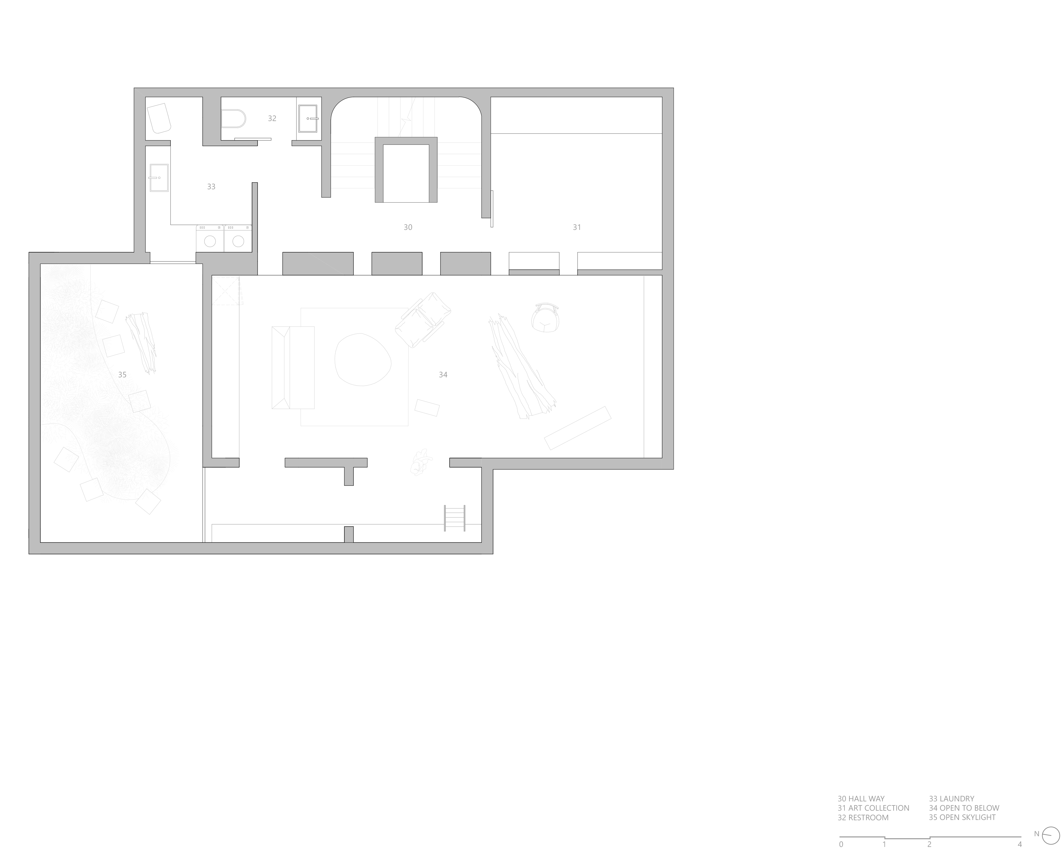
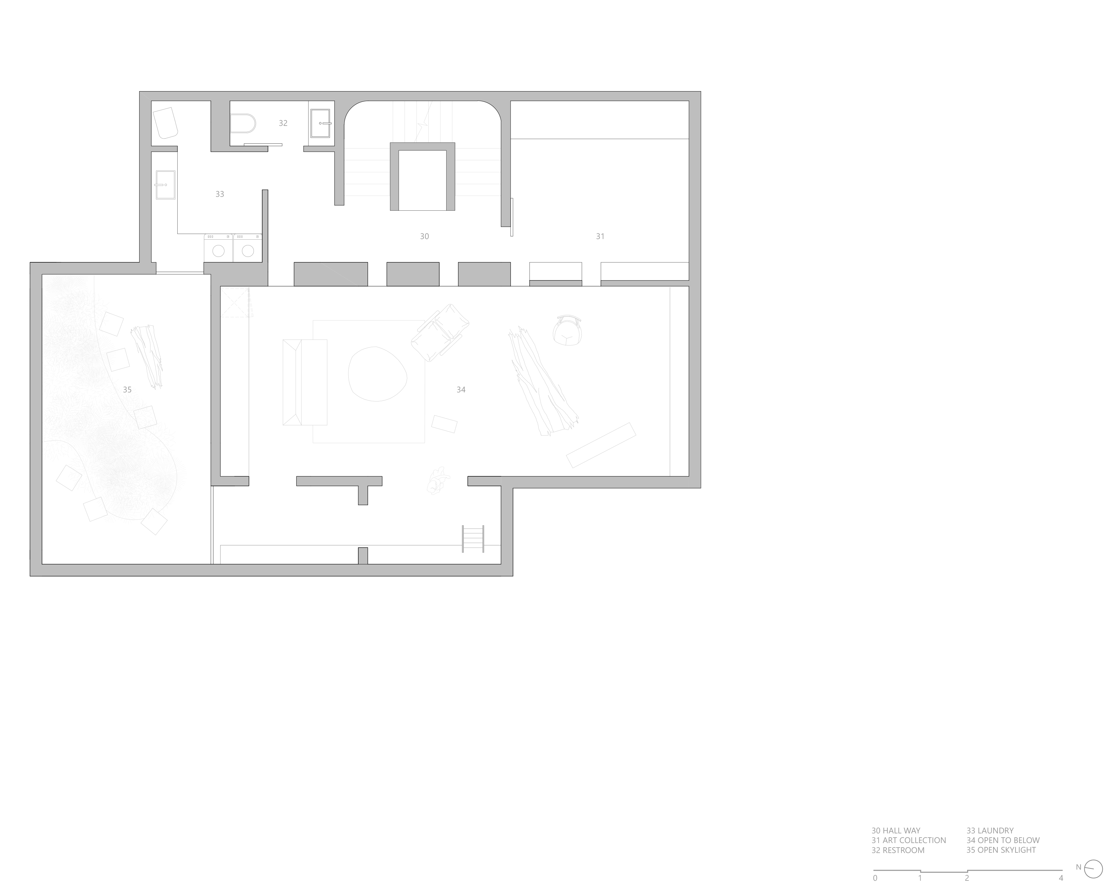
On the underground floor, unlike the lightness of the upper space, HAS Design and Research uses a variety of thick walls and holes to create a progressive and weightless visual experience, giving the natural sense of a rock cave. A series of continuous holes not only gives a sense of extraordinary spirituality but also metaphorizes the open skylight courtyard behind the wall for connecting the bamboo forest to create a Chinese landscape painting-like effect in the lounge hall.



Forest Villa is inspired by reverence and analogy of nature, allowing the architecture to learn from the natural growth of a forest, such as a sequence of pillars like a grove of trees, with each pillar having random textures and proportions for a tactile and visual sensation. The landscape is also a feature of Forest Villa. It not only appears in the seasonal forest on the ground floor, but also spreads to the open skylight courtyard on the underground floor and the botanic garden on the third floor, providing a variety of insects and birds a place to rest and bringing a smell and auditory sensation.
This building is more than a residential villa; Hung And Songkittipakdee create a space that is sustainable and timeless. It brings a strong sense of ritual and mystery and injects another spiritual symbol into contemporary residences.








건축가 HAS design and research
위치 허페이, 중국
용도 단독주택
대지면적 310 m²
연면적 545 m²
준공 2019 - 2023
대표건축가 Jenchieh Hung, Kulthida Songkittipakdee
디자인팀 Jenchieh Hung, Kulthida Songkittipakdee, Atithan Pongpitak, Zhihui Jiang
구조 엔지니어 Hefei Botuo Decoration Engineering Co., Ltd.
사진작가 Fangfang Tian
'Architecture Project > Single Family' 카테고리의 다른 글
| Dune Villa West aan Zee (0) | 2024.07.02 |
|---|---|
| Crest guesthouse (0) | 2024.06.18 |
| La Marina House (0) | 2024.05.23 |
| ARQ10 (0) | 2024.05.22 |
| Onhyeri Jung Youngja House (0) | 2024.05.21 |
마실와이드 | 등록번호 : 서울, 아03630 | 등록일자 : 2015년 03월 11일 | 마실와이드 | 발행ㆍ편집인 : 김명규 | 청소년보호책임자 : 최지희 | 발행소 : 서울시 마포구 월드컵로8길 45-8 1층 | 발행일자 : 매일



