
아름의 대지는 3면이 자연에 둘러 싸여 있어 고즈넉함을 가진 땅이다. 땅은 20%라는 낮은 건폐율과 6m의 대지의 레벨 차이를 가지고 있었지만, 멀리 남쪽으로 동탄 도시첨단산업단지와 반석산을 바라보고 있었다. 건축가는 전용 공간 외의 기능적 공간을 효율적으로 활용할 수 있는 방법을 고민하여 설계를 시작했다.
옥상까지 이어지는 테라스와 계단에서의 풍경을 담은 “단”
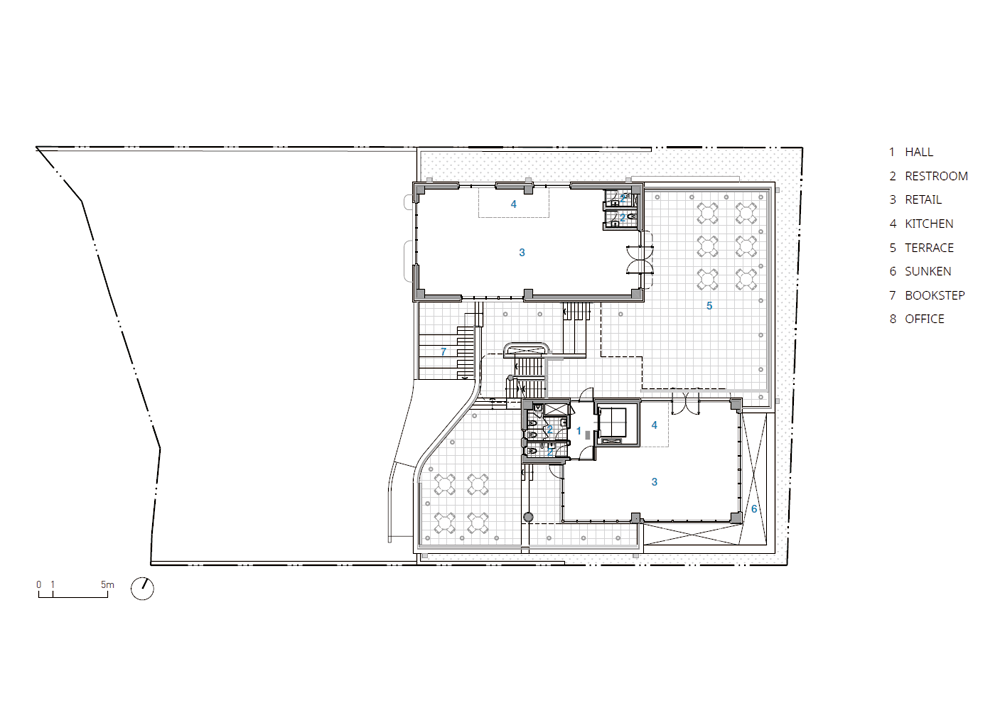
지면에서 옥상까지 단(段)과 단으로 이어지는 테라스와 계단참에서 보이는 풍경은 이용자에게 휴게공간을 제공하고 자연스럽게 옥상까지 외부 공간을 확장한다. 또한, 큰 창을 두어 실내에서 동탄첨단산업단지의 풍경을 볼 수 있다. 이러한 외부로 확장되는 감각은 더 넓은 내부 공간을 느낄 수 있도록 하는 아름만의 공간적 경험이다. 경사라는 지형적 특징을 장점으로 최대한 활용한 계단식 스탠드와 테라스는 사용자에게 편안하고 다양한 휴식공간을 제공함과 동시에 임대 공간별 각각 외부 공간을 줌으로써 공간의 가치를 높이는 수단이 된다.
기단 위에 선 두 직육면체와 자연을 담아낸 매스 사이의 “틈”
배치의 근간이 된 기본 요소는 대지의 형상, 즉 ‘자연’이다. 대지는 자연에 둘러 싸여 아늑한 분위기였고 남서에서 북동으로 경사져 가로 방향으로 자연의 축을 이루고 있다. 도로에서 봤을 때, 건축의 정면을 강조한 것이 아닌, 가로 방향의 자연의 축을 그대로 담아내어 두 개의 직육면체 매스를 분절하고 자연스러운 틈을 만들었다. 대지 초입에서 틈을 통해 보이는 뒤쪽 나무들의 작은 흔들림은 건물 깊은 곳까지 관심 가지도록 유도한다. 모노톤의 롱브릭은 심플한 매스에 무게감을 실어주며, 와인색의 외부 계단과 강렬한 대비를 이뤄 아름다움을 더해준다.
자연의 틈을 부드럽게 연결해주는 “선”
간결한 두 매스 사이에 부드러운 선형과 과감한 색을 가진 계단을 전면으로 노출시켰다. 이로써 공용 공간이 기능적 역할을 하고 휴게공간의 역할도 한다. 외부로 노출된 계단은 각 층을 연결하는 수직 동선이며, 양쪽의 매스를 곡선의 형태로 연결한다. 강렬함이 담긴 곡선의 형태는 디자인 아이덴티티가 되며, 아름다운 곡률을 구현하기 위해 세워서 쌓은 와인색 롱브릭에는 시공자의 노력도 함께 담겨있다. ‘아름’이라는 브랜드가 가진 부드러움 속의 강렬한 이미지를 투영하고, 형태를 외부 계단을 통해 보여준다고 할 수 있다. 분리된 두 동을 잇는 연결 통로에는 프레임이 없는 전면 창호가 있어 양쪽의 풍경을 그대로 담아내어 전면에서는 도심을, 배면에서는 자연을 즐길 수 있는 휴게공간이 된다.














건축가 OMO Architects Inc.
위치 경기도 용인시 기흥구 고매동 409-86, 410-2
용도 제2종근린생활시설
대지면적 1,464.00㎡
건축면적 292.38㎡
연면적 1,717.36㎡
규모 지하 1층, 지상 4층
건폐율 19.97%
용적률 79.18%
설계기간 2022. 8. - 2023. 3.
시공기간 2023. 3. - 2024. 1.
준공 2024. 1.
대표건축가 이지훈
프로젝트건축가 이정호
디자인팀 임수빈, 나태호, 신은택,
홍다경, 장지혜
인테리어 디엘플래닝
구조엔지니어 (주)드림구조엔지니어링기계엔지니어 선이엔지
전기엔지니어 선이엔지
시공 (주)정주건설 + 온앤온스페이스
사진작가 김용수
'Architecture Project > Multifamily' 카테고리의 다른 글
| Curving Block (0) | 2024.06.17 |
|---|---|
| Goseong Curve House (0) | 2024.06.14 |
| Tweewater Housing (0) | 2024.05.22 |
| Arc and Oblique Line (0) | 2024.05.14 |
| The Arches (0) | 2024.04.16 |
마실와이드 | 등록번호 : 서울, 아03630 | 등록일자 : 2015년 03월 11일 | 마실와이드 | 발행ㆍ편집인 : 김명규 | 청소년보호책임자 : 최지희 | 발행소 : 서울시 마포구 월드컵로8길 45-8 1층 | 발행일자 : 매일



