
온의동 근린생활시설
Onui-dong Neighborhood Living Facility
춘천 온의동은 최근 고층 아파트 단지가 들어서고 풍경에 많은 변화가 생겼다. 대지는 북쪽으로는 최근 완공된 고층 아파트 단지를 마주하고, 남쪽으로는 춘천을 둘러싼 야트막한 산자락을 바라보고 있다. 프로젝트를 시작하며, 도시와 자연의 경계에 위치한 땅에서 부드럽게 굴곡진 산과 이에 대비되는 밋밋하고 평면적인 고층 아파트 사이를 어떻게 중재해야 하는지 고민하기 시작했다.
근생의 태생적 리듬
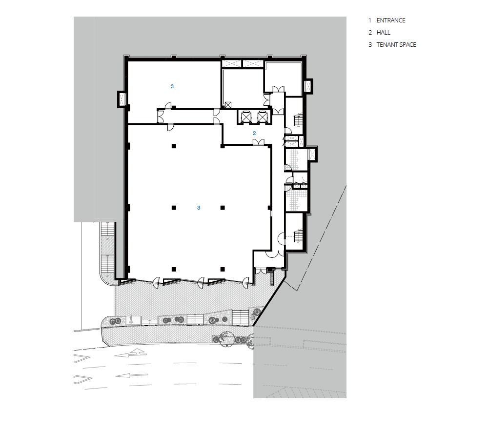
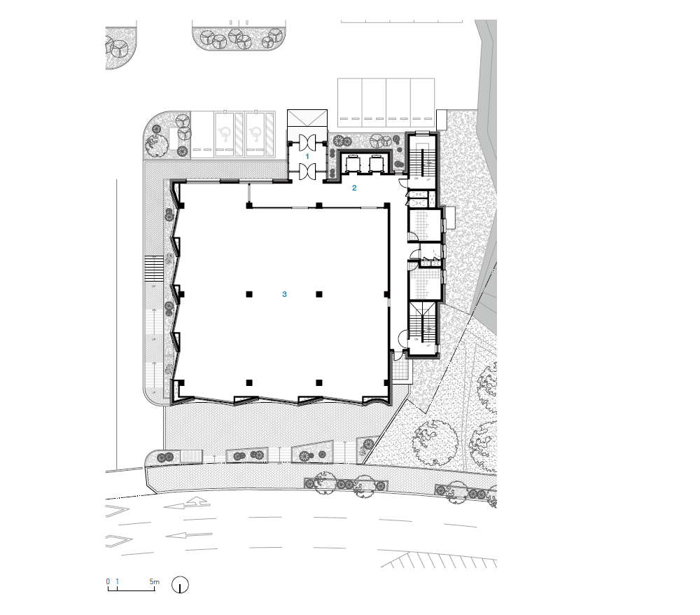
근린생활시설(이하 근생) 프로젝트는 설계 당시에 어떤 사용자가 들어올지 혹은 어떤 용도로 사용될지 알 수 없다. 그래서 여러 가능성을 고려하여 평이한 구조 모듈의 건조한 평면으로 구성하게 된다. 호와 사선 프로젝트도 이러한 ‘근생의 리듬’에 기반한 건물이다. 코어 등 기능부를 ‘ㄱ’자로 바깥쪽에 배치하여 임대 공간을 최대한 정방형으로 만들었으며, 이러한 정방형 임대공간의 구조 모듈, 즉 ‘근생의 리듬’을 자연스럽게 외부의 입면에 드러냈다. 그리고 평이한 리듬으로 산과 아파트 사이를 조율할 수 있는 기초를 마련한다.
변주
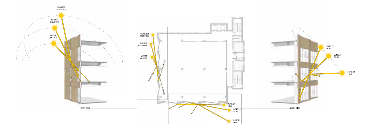
평면상의 선분(Line)을 호(Arc)로 만들어 입면의 평평한 면을 둥글게 누르고, 호에 접하는 두 개의 접선으로 각각 벽과 창을 만들었다. 둥글게 눌러진 면이 비스듬한 벽에 그림자를 두르고, 하루 종일 입면이 태양빛에 따라 시시각각 다르게 보이게 하였다. 산을 배경으로 하는 건물이 밋밋하지 않고 자연과 어우러져 변화하는 모습이었으면 하는 바람이 있었다. 이 밖에도 호와 접선의 조합을 통해 여러 이점을 만들 수 있었는데, 그 중 하나가 실내 공간에서 조금 더 열린 방향, 즉 남측의 자연 쪽으로 시선을 유도한 것이다. 북측면에서는 사선창을 통해 아파트를 비껴 멀리 도로 너머를 바라보게 하고, 동측면에서는 인근 건물의 벽이 비껴서 남쪽의 산을 바라보도록 하였다.
지속 가능성
마지막으로 이 모든 과정에서 지속적으로 자연채광과 에너지 효율을 고려하였다. 채광 시뮬레이션을 통해 입체적인 입면의 구성을 최적화하고, 이를 통해 연간 직사광량을 최대 21% 감소시켜 냉방 부하를 줄였다. 또한 자연 채광의 경우, 계절의 특성을 고려하여 여름철에는 눈부심을 줄이고 겨울철에는 자연광을 이용하여 실내 조도를 높일 수 있도록 하였다. 입체적인 입면은 외부에서는 건물의 인상을 만들고, 내부에서는 밖을 더 적극적으로 조망할 수 있게 만드는 한편, 환경과 공간을 조율하는 역할도 한다. 내외부를 엮어내는 호와 사선의 작동으로 이 근린생활시설 건물이 오래도록 건강한 생명력을 유지할 수 있기를 바란다.












건축가 Namjoo Kim(University of Seoul) + Kangil Ji(Korea National University of Arts) + Yejeon Architects
위치 강원특별자치도 춘천시 스포츠타운길 494
용도 근린생활시설
대지면적 3,462.00㎡
건축면적 676.68㎡
연면적 3,502.57㎡
규모 지하 1층, 지상 4층
건폐율 19.55%
용적률 74.76%
설계기간 2021. 9. - 2022. 6.
시공기간 2022. 6. - 2023. 7.
준공 2023. 7.
대표건축가 김남주, 지강일, 김창기(예전건축사사무소)
디자인팀 이영기
구조엔지니어 로텍 구조기술사사무소
시공 (주)대건
발주자 주식회사 타나
사진작가 신해수(텍스처 온 텍스처)
해당 프로젝트는 건축문화 2024년 5월호(Vol. 516)에 게재되었습니다.
The project was published in the May, 2024 recent projects of the magazine(Vol. 516).
May 2024 : vol. 516
Contents : SKETCH City of Lost Memories / Hossain Mousavi 잃어버린 기억의 도시 / 허세인 무사비 : COMPETITION : RECENT PROJECT g:ign / g:ign architects 지아인(地我因) / 건축사사무소 지아인Arc and
anc.masilwide.com
'Architecture Project > Multifamily' 카테고리의 다른 글
| Arum (0) | 2024.06.12 |
|---|---|
| Tweewater Housing (0) | 2024.05.22 |
| The Arches (0) | 2024.04.16 |
| STAY IN HEAVEN, JEJU (0) | 2024.04.09 |
| Havenkade Nijmegen (0) | 2024.04.09 |
마실와이드 | 등록번호 : 서울, 아03630 | 등록일자 : 2015년 03월 11일 | 마실와이드 | 발행ㆍ편집인 : 김명규 | 청소년보호책임자 : 최지희 | 발행소 : 서울시 마포구 월드컵로8길 45-8 1층 | 발행일자 : 매일



