
‘제주 하뭄’의 건축주는 제주에 머물면서 새로운 삶의 패턴을 만들고자 하였다. 건축주 당사자 부부는 대기업 직장 생활을 접고, 제주도에서의 생활 터전을 준비 중이었다. 프로젝트 목표는 펜션 운영을 하며, 제주에서의 전원 생활을 꿈꾸는 신세대 건축주의 자유로운 삶을 구현하는 것이었다. 그러면서 주거와 수익을 겸한 복합 목적을 갖는 건축물의 전형을 만들고자 했다.
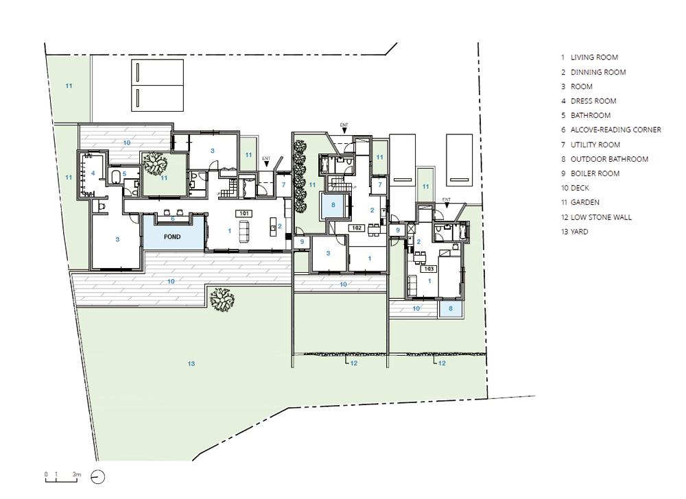
3가구로 구성된 다가구주택으로 주택의 특성상 세대별로 프라이버시를 유지하면서, 제주의 자연을 품을 수 있는 계획이 관건이었다. 설계적 장치로 각 세대를 벽과 자연으로 분리하였다. 개인 마당을 만들고, 귤밭과 제주 돌담의 디테일에 평면을 분해하여 실별, 세대별 간격을 벌려, 각 세대의 외피 면적을 늘렸다. 벽과 실들 사이에 생성된 ‘사이 공간’으로 새로운 풍경이 연출되고, 공간 사이의 마디로 리듬을 부여하였다. 만들어진 ‘사이 공간’은 도시에서 느낄 수 없는 마당으로 숨 쉬는 공간이다. 건축주는 ‘사이 공간’과 ‘구석’이 많고 거실과 안방 사이에 물의 요소인 POND(연못)를 설치하였다. 두 공간을 연결하는 복도 알코브 공간에 연못에 마주하여 책을 읽을 수 있는 미니 서재를 만들었다. 후정 쪽 사이 공간에는 남쪽 귤밭의 밝음과 대비되는 서늘한 음의 공간을 만들었다. 휴식 공간은 야외 가든파티, 다양한 이벤트를 할 수 있는 후정 데크와 연결된다. 내부에서 체험하는 풍경의 변화는 거주자에게 지루함을 없게 하고 창의성에 자극을 줄 것이다. 공간 사이에 생성되는 변화 풍경이 무의식적으로 적재되어 ‘공간에서의 모차르트 이팩트’가 된다. ‘제주 하뭄’은 신체적으로나 정신적으로 삶의 풍요가 생성되는 건강 주택이다. 그뿐만 아니라, 펜션 방문객은 도시에서 느낄 수 없는 자연의 구석들을 기억으로 담고 갈 것이다. ‘제주 하뭄’에 방문한 사람들은 경쾌함의 기억을 몸에 각인하여, 도시 생활에서도 그 풍요로움을 연장한다.











건축가 YEOHEON ARCHITECT & ENGINEERS
위치 제주특별자치도 서귀포시 안덕면 서광리 204-1번지
용도 단독주택
대지면적 1,595㎡
건축면적 269.13㎡
연면적 229.16㎡
규모 지상 1층
건폐율 16.87%
용적률 14.40%
설계기간 2021. 11. - 2022. 9.
시공기간 2022. 11. - 2023. 9.
준공 2023. 9.
대표건축가 김영조
디자인팀 김경률, 정진우
시공 방상호
발주자 방현태, 진슬빈
프로젝트매니저 방상호
사진작가 방현태
해당 프로젝트는 건축문화 2024년 3월호(Vol. 514)에 게재되었습니다.
The project was published in the March, 2024 recent projects of the magazine(Vol. 514).
March 2024 : vol. 514
Contents : COMPETITION : SKETCH Silent River / Nikita Batrakov 침묵하는 강 / 니키타 바트라코프 : RECENT PROJECT Villa Seung Seung / MANDLDA Architects 빌라승승 / 만들다 건축사사무소 Samsong1957 / Unsangdong Architects 삼송1957 /
anc.masilwide.com
'Architecture Project > Multifamily' 카테고리의 다른 글
| Arc and Oblique Line (0) | 2024.05.14 |
|---|---|
| The Arches (0) | 2024.04.16 |
| Havenkade Nijmegen (0) | 2024.04.09 |
| ZAC FULTON – LOT A5A2 (0) | 2024.03.20 |
| JAMSIL PARKRIO APARTMENT (0) | 2024.03.14 |
마실와이드 | 등록번호 : 서울, 아03630 | 등록일자 : 2015년 03월 11일 | 마실와이드 | 발행ㆍ편집인 : 김명규 | 청소년보호책임자 : 최지희 | 발행소 : 서울시 마포구 월드컵로8길 45-8 1층 | 발행일자 : 매일



