
대지는 경남 고성군 회화면 봉동리, 당항포 바다가 바라보이는 언덕에 자리잡고 있다. 서쪽으로 당항포 국민관광단지, 북쪽으로는 금봉산 줄기에 위치한 노벨CC, 남쪽으로 메리모나크 마리나클럽과 해안가에 마리나 계류장이 있다. 건축주는 인근 도시 출신으로 서울에 거주하며 중소기업을 운영하는 사업가로서 바다를 좋아해서 고향과 가까운 곳에 회사 직원들을 위한 숙소 겸 가족들의 휴식공간으로 사용할 공간을 짓고자 했다.
최초의 계획안은 대지의 형상과 같은 직사각형의 박스를 경사 지형을 이용하여 테라스 하우스처럼 단처럼 쌓는 방식으로 계획하여 제안하였다. 대지에 가장 순응하는 방식이었고, 햇빛과 전망, 주변 자연이 좋아서 테라스와 발코니 같은 건물의 내부와 외부를 연결해 주는 중간적 성격의 공간을 최대한 많이 만들었다. 하지만 풍수를 중요시 여기는 건축주에게는 건물의 향이 서향인 것이 문제가 되었다.
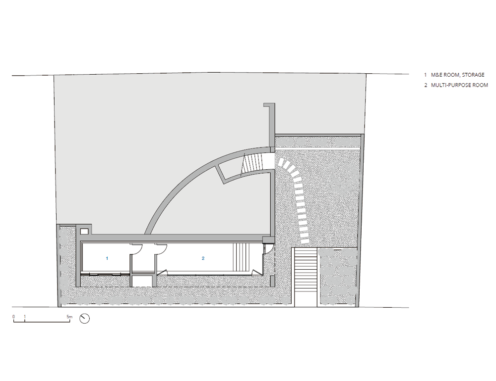
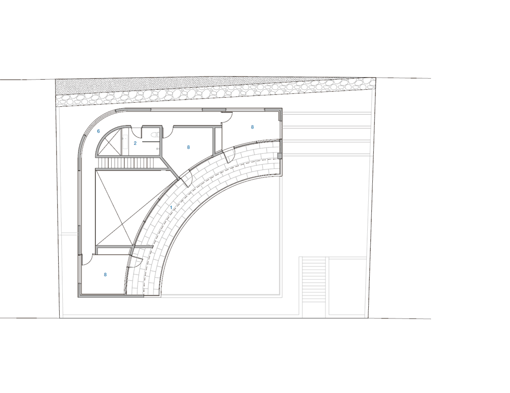
수정된 계획안은 각 층의 각도를 조금씩 틀어서 최대한 남향에 가깝게 건물을 회전한 안이었다. 대지의 형상과 풍수를 동시에 만족시키는 안이지만, 건축주는 한쪽으로 치우쳐져서 비틀어진 형태와 평면을 선호하지 않았다. 고민 끝에 어느 하나의 방향에도 구속받지 않는 곡선을 도입하였다. 정남향을 중심으로 한 원호가 동남쪽에서 서남쪽까지 그려졌다. 이 곡선 파사드는 서향으로부터 건축을 자유롭게 함과 동시에 자연스럽게 태양의 궤적을 따라가며 풍부한 자연 채광을 받아들인다. 우연하게도 원호의 중심이 메리모나크 마리나 해상 계류장쪽으로 향하게 되어 기존의 안보다 전망도 훨씬 좋아졌다. 완공 후 얼마 지나지 않아 대지 바로 앞 부지의 공사가 시작되었고, 1층 높이까지 도로쪽(서남 방향) 전망을 가리는 상황이 발생하였다. 결과적으로 정남향을 중심으로 한 곡선 형태의 파사드 덕분에 인접 건물로부터 조망권의 피해를 최소화할 수 있었다.
외장재는 메리모나크 마리나 클럽의 재료와 같은 노출 콘크리트를 선택하여 같은 단지 내 건축물로서의 통일성을 고려하였다. 테라스와 함께 처마를 설치하여 아름다운 당항포 앞바다의 풍경들이 곡선의 처마속으로 들어올 수 있게 한다. 여름에는 처마가 직사광선을 차단하고 그늘을 만들어 시원하게 하며, 겨울에는 낮은 고도의 햇볕이 넓은 창을 통해서 실내 깊이 유입된다.















건축가 superstring architecture
위치 경상남도 고성군 회화면 회진로 537-20
용도 연수원 숙소
대지면적 572.00㎡
건축면적 208.93㎡
연면적 349.78㎡
규모 지하 1층, 지상 2층
건폐율 36.53%
용적률 48.59%
설계기간 2021. 5. - 11.
시공기간 2022. 2. - 2023. 2.
준공 2023. 2.
대표건축가 제상우
프로젝트건축가 제상우
디자인팀 박희주
구조엔지니어 도야구조
기계엔지니어 (주)태영이엠씨
전기엔지니어 (주)태영이엠씨
시공 (주)포스종합건설
발주자 (주)남강로지스틱스
사진작가 신경섭
'Architecture Project > Multifamily' 카테고리의 다른 글
| PARAL·LEL (0) | 2024.06.21 |
|---|---|
| Curving Block (0) | 2024.06.17 |
| Arum (0) | 2024.06.12 |
| Tweewater Housing (0) | 2024.05.22 |
| Arc and Oblique Line (0) | 2024.05.14 |
마실와이드 | 등록번호 : 서울, 아03630 | 등록일자 : 2015년 03월 11일 | 마실와이드 | 발행ㆍ편집인 : 김명규 | 청소년보호책임자 : 최지희 | 발행소 : 서울시 마포구 월드컵로8길 45-8 1층 | 발행일자 : 매일



