

21세기도 어느덧 20년이 지나간 현재. 서울은 경제개발을 중점으로 끊임없는 도시개발과 또 그에 덧댄 재개발을 거듭하여 현재의 모습을 갖추었다. 추격형 개발과 미래에 다가올 새로움을 추구하여 왔던 한국의 건축은 어느새 익숙한 것에 대한 그리움, 늘 있어왔던 일상에 근거한 새로움을 추구하는 양상으로 변모하기 시작했다. 이러한 변화는 을지로나 성수동과 같이 한국 사회와 문화를 재조명하고 재해석한 서울의 여러 구역들에 대한 관심으로 이어지고 있다. 이렇듯 사람들의 의식과 가치관이 바뀌어가며, 서울의 도시와 건물들은 또다시 새로운 기류를 따라 형태를 바꾸어 나가고 있다.
Located in a typical commercial building type in Sungsoo district, an industrial district being transformed into a cultural hub, the new home of Nara Cellar’s wine store embodies the coexistence of the new and the old as part of the design operation.




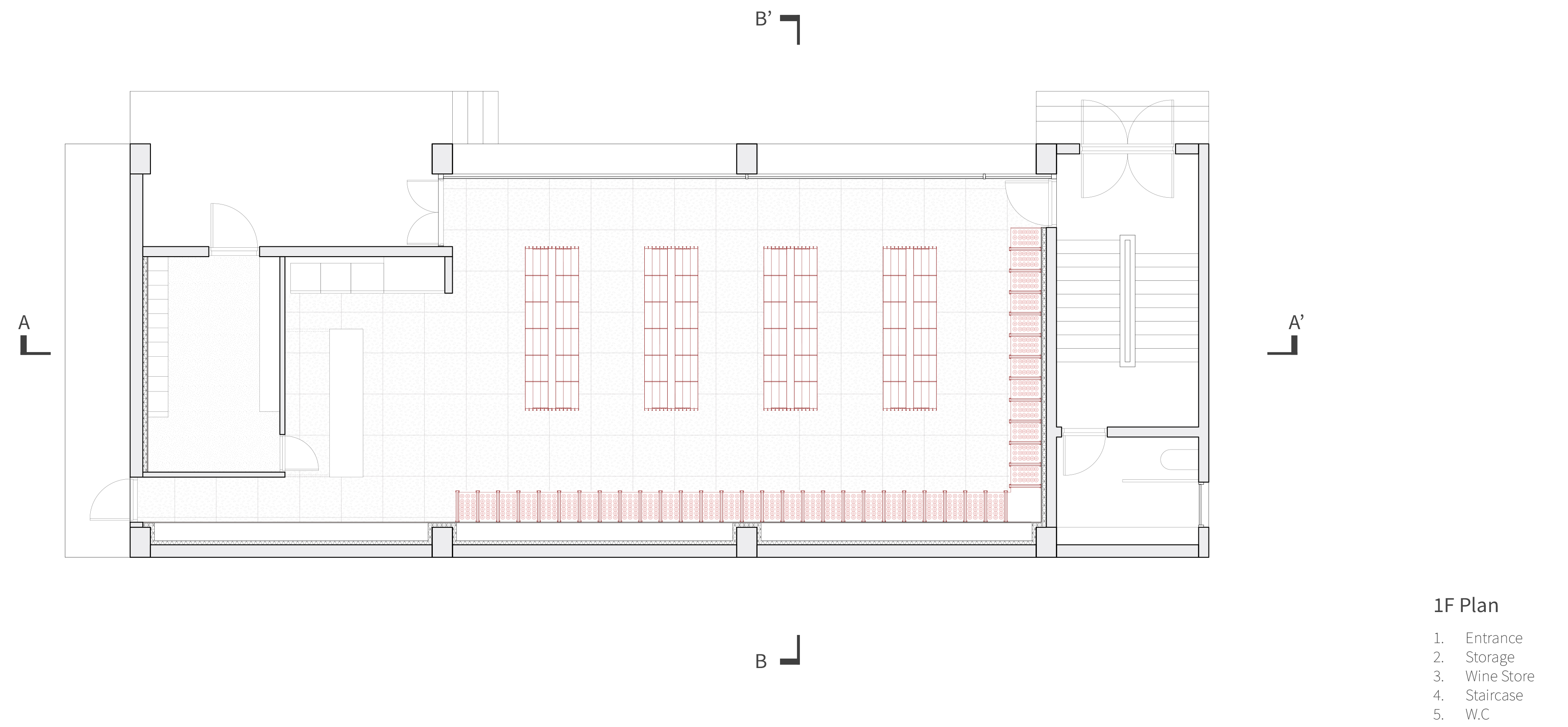
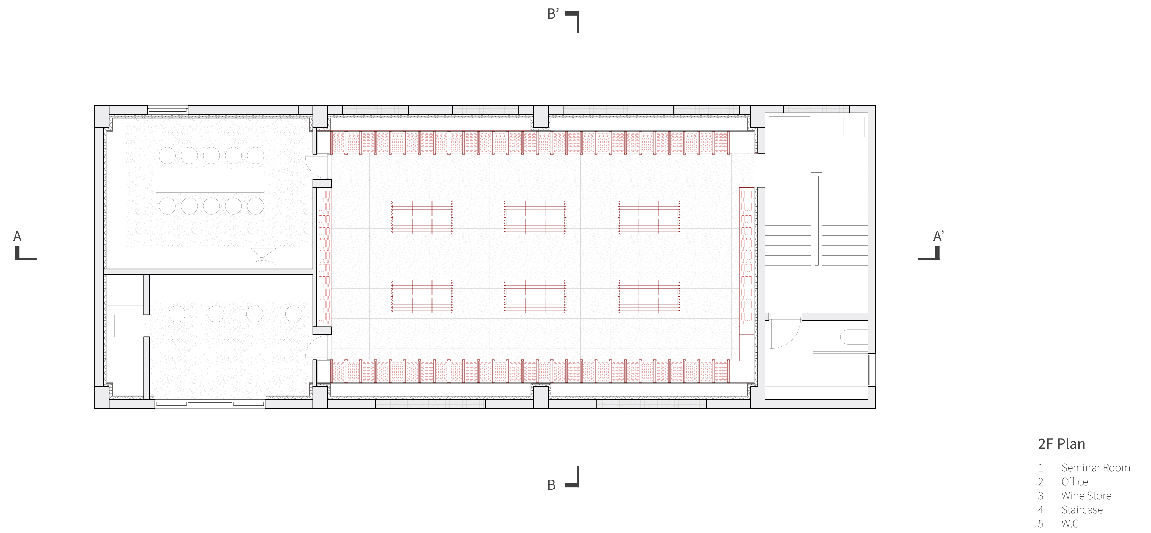
성수동 와인픽스는 낙후된 성수동의 상가건물에 한국의 와인, 건축, 아웃렛그리고 도시의 의미를 담은 리모델링(adaptive reuse) 프로젝트이며, 우리는 이를 통해 현시점의 한국의 건축과 와인 문화를 최대한 반영한 디자인을 표현하고 싶었다. 우리는 해외에서 보는 것과 같은 에노테카(Enoteca)의 느낌이 아닌, 한국의 소비자들이 익숙한 환경 안에서 와인을 즐기는 것을 중요시했다. 따라서 그에 맞는 디자인은 이질적인 느낌을 더하는 것이 아니라, 주어진 건물 그 자체, 어찌 보면 가장 한국적인 건물의 본연의 모습을 활용하여 표현하는 것이라 생각했다. 시간의 흐름 속 낡은 모습을 하고 있는 상가 건물의 외관은 부분적인 철거와 박리 작업을 하고, 그 과정에서 캐노피 구조물이나 콘크리트 기둥과 같이 숨겨져 있던 요소들을 노출시켜 오래된 것과 새것이 함께 공존하는 디자인을 구현했다. 내부 벽면을 둘러싸고 있는 선반은 다양한 종류의 와인을 수용하기 위한 디스플레이 용도를 넘어서, 효율적인 와인 보존을 위해 단열재를 추가하여 벽체 구성의 일부로써 설계하였다. 또한 벽체와 선반 디스플레이의 디자인 요소로 사용된 OSB패널과 메탈스터드는 단순히 재료 날 것의 러프함을 강조하는 것이 아닌, 벽체에 쓰이는 자재들이 재구성된 조합의 팔레트로 정제미를 표현했다.
Due to budget and scheduling, the project had to be reimagined from a renovation to a repair. The wall assembly and the shelving units were integrated into a single assembly with added insulation, and used osb panels and studs as the two materials to be used for building up the interior. The exterior of the building was designed through a series of delamination and demolition, revealing many of the bizarre details that were hidden under the canopy.



‘와인’이라는 사람들에게 까우면서도 멀게 느껴지는 문화를 위한 공간을 디자인하며 우리 주변의 둘러싸고 있는 현 건축물들이 그와 닮아있음을 느낄 수 있었다. 이를 통해 우리는 익숙함과 새로움의 경계선에서 한국적 건축이란 어떠한 것인지 그 의미에 대해 고찰하는 시간을 가질 수 있었다.
The operation of delaminating and ornamentalizing wall assembly elements into interior fixtures is not to simply display the rawness of these materials but to achieve refinement and resoluteness through assembly of operations that are in tune with the material culture of Seoul.







건축가 one-aftr
위치 서울, 대한민국
용도 상업시설
대지면적 4,957 ㎡
건축면적 180.17 ㎡
연면적 496.8 ㎡
준공 2020
대표건축가 Ryu Ahn, Joon Ma
시공 Full Design
사진작가 Jang Mi
'Architecture Project > Commercial' 카테고리의 다른 글
| PARK AVENUE (0) | 2024.06.13 |
|---|---|
| Ginza Extra Small Building (0) | 2024.06.13 |
| JOOMAK (0) | 2024.06.06 |
| Nukak (0) | 2024.06.04 |
| Elva Hotel (0) | 2024.05.28 |
마실와이드 | 등록번호 : 서울, 아03630 | 등록일자 : 2015년 03월 11일 | 마실와이드 | 발행ㆍ편집인 : 김명규 | 청소년보호책임자 : 최지희 | 발행소 : 서울시 마포구 월드컵로8길 45-8 1층 | 발행일자 : 매일



