

주막
JOOMAK
수도권 집중화, 지방 신도시의 개발, 산업구조의 변화, 인구 감소 등은 과거 번영했던 지방 소도시의 쇠퇴를 불러왔다. 쇠퇴된 도시를 재생하고 활성화하는 것은 비단 '관'인 지자체가 다양한 정책과 예산을 투입하며 예산을 투입하는 것뿐만 아닌 '민간'의 관련 기업이 참여하고, 해당 지역주민 관심도가 갈수록 높아지고 있다. 이러한 시도들 중 ‘MBC 빈집 살래 3’는 ‘빈집 밀집구역’으로 지정된 전주 팔복동에 슬럼화를 해결하기 위한 하나의 접근으로써 ‘전주시’와 ‘민간기업’ 그리고 ‘방송국’이 협력한 민관협력형 상생상가 도시재생 모델 프로젝트를 진행했다.
1970년대 팔복동은 산업화 물결이 일던 전주를 대표하는 경공업 지역이었다. 휴비스, 문화 연필, 전주 페이퍼 등의 공장들이 그러하며 여전히 팔복동에 자리 잡고 있다. 한적했던 농촌마을은 제조업 부흥기로 공장들이 들어서기 시작하면서부터 많은 사람들이 일자리를 찾기 위해 팔복동으로 모여들었다. 지금은 방치되어 버려진 제조업 중심의 공장과 노동자들을 위한 숙소가 모여있는 쪽방촌이 과거 팔복동 제조업 부흥기의 반증이기도 하다. 이처럼 오랫동안 전주의 역사와 경제를 대표하던 팔복동도 격변하는 국내 산업 구조의 흐름을 피하지 못하고 1990년대부터 제조업이 쇠퇴하여 폐공장과 극심해진 환경오염만 남긴 채 다른 일자리를 위해 떠난 후 방치된 지역으로 남게 되었다.
The centralization of the metropolitan area, development of new local cities, changes in industrial structure, and population decline have led to the deterioration of small towns that had once prospered. Regenerating and revitalizing a decayed city is not just about local governments investing in various policies and budgets; private companies are also participating, and the interest of residents is increasing. Among these attempts, 'MBC Empty House 3' is a public-private cooperative commercial venture between Jeonju City, a private company, and a broadcasting station as an approach to solving slums in Palbok-dong, Jeonju, Korea.
In the 1970s, Palbok-dong was a light industrial area representing Jeonju, experiencing a wave of industrialization. Huvis, Munhwa Pencil, and Jeonju Paper are still located in Palbok-dong. As factories began to open in the once-quiet rural village during the manufacturing revival, many people flocked to Palbok-dong to look for jobs. Nowadays, the neglected and abandoned manufacturing factories and residential areas for workers are a testament to the past manufacturing revival period in Palbok-dong. Likewise, Palbok-dong, which represented Jeonju's history and economy for a long time, could not avoid the rapidly changing domestic industrial structure, and the manufacturing industry declined in the 1990s, leaving only abandoned factories and severe environmental pollution and becoming a neglected area.


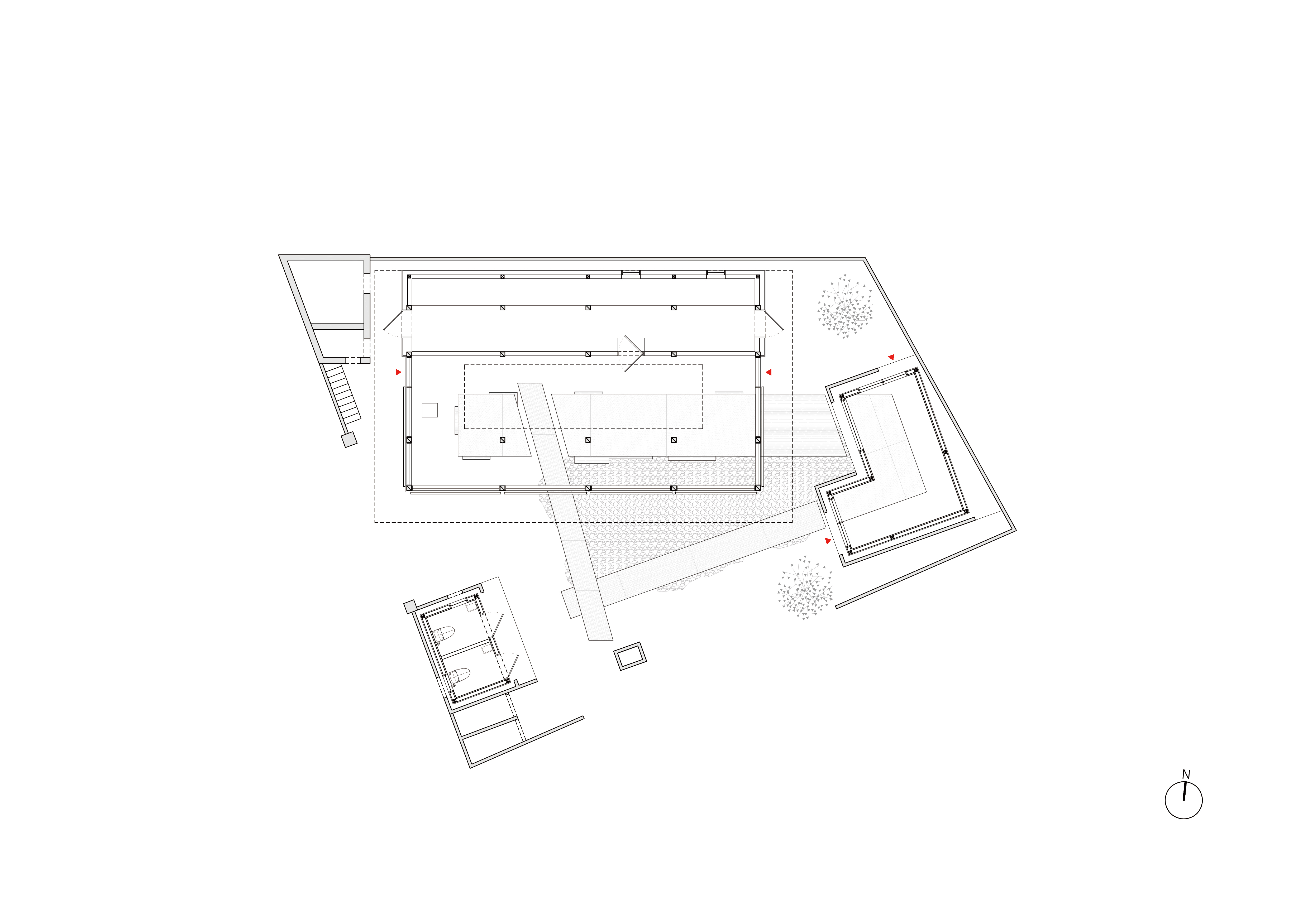
‘빈집 살래 3’는 팔복동을 배경으로 팔복동의 낡은 빈집 네 채를 선정하였다. 참여하게 된 서로 다른 4곳의 건축사무소는 각자의 방식으로 빈집을 재생한다. 그리고 ‘주막‘은 그중 하나다. 프로젝트의 시작은 ‘한옥’과 ‘공공성’ 그리고 ‘식당’이라는 개념에 대한 고민이었다. 요소를 모두 떠안을 수 있는 공간과 상징으로 ‘주막’이 떠올랐다. ‘주막’은 상업공간으로서 여행객이 쉬어갈 수 있는 쉼터이자 주변 이웃들이 어우러지는 장소였기 때문이다. 옛 주막들은 실내공간에서는 숙박을 하거나 취사를 하였고 외부공간에서는 평상을 두고 손님들이 쉬거나 식사를 할 수 있게 하였다. 팔복동의 ‘주막’에서는 날씨의 영향을 덜 받을 수 있도록 특정 부분을 실내화하는 대신 실외와 연결고리를 만들어 주었다.
외벽을 철제로 구현하였기에 주방과 홀 사이의 벽도 철제로 표현하고 지붕의 재료를 내부 천장으로 이어 내부 홀이 외부공간임을 암시하였다.
평상은 내외부로 연결시키고 조경은 내외부 경계를 허무는 계획을 하였다. 시각적으로도 비교적 좁은 공간에 대한 개방감을 확보할 수 있었다. 인접한 공터를 마을 공원으로 전환하고 담을 헐어 두 대지의 경계를 없애 주었다. ‘주막’은 더 넓은 앞마당을 가지게 되고, 공원은 ‘주막’의 외부 시설을 사용할 수 있다.
'MBC Empty House 3' selected four old empty houses in Palbok-dong. The four architect offices participated in regenerating these houses in their identical ways, and 'Joomak' is one of them. The project's beginning concerned the concepts of hanok, publicness, and a restaurant. Joomak is a Korean term for a traditional tavern, and it is a symbol that could accommodate all these elements. Joomak was a commercial space where travelers could rest and where surrounding neighbors mingled. Joomak had indoor spaces for lodging and cooking, and outdoor spaces had benches called pyung-sang and tables where guests could rest or eat. Palbok-dong's 'Joomak', a pyung-sang, is partially indoor, making it less vulnerable to the weather. Indeed, several design components make this indoor space symbolically an outdoor space.
Since the exterior walls were metal, the wall between the kitchen and the hall was also metal, and the roof material was connected to the interior ceiling, implying that the internal hall was symbolically an external space, just like a traditional joomak.
Furthermore, the landscape breaks down the boundary between inside and outside. The purpose was to secure a sense of visual openness in a relatively narrow space and emphasize the internal hall as an external space. Also, the adjacent vacant lot was converted into a village park, and the wall was removed to eliminate the boundary between the two sites. It allows 'Joomak' to have a more prominent front yard, and the park will be able to use the facilities of the 'Joomak'.



기존의 집은 빈집이라 부르기도 민망할 정도로 지붕은 무너져 내리고 바닥도 내려앉은 채로 식물이 무성히 자라나고 있었다. 한옥의 상부 구조를 가까스로 사용할 수 있을 정도였으나 기둥 하부는 대다수가 썩은 상태였으며, 별동은 구조안전진단에서 사용 불가 판정을 받았다.
그럼에도 최대한 기존의 흔적을 살리는 방식에 집중했다. 팔복동에서 오랜 시간 마을풍경으로 존재했고 다양한 팔복동 기억이 새겨진 건물이기 때문이다. 한옥의 경우 기존 구조가 무너지지 않도록 지붕부터 찬찬히 철거하고 썩은 목구조 하부를 철재로 감싸고 무수축 몰탈을 사춤 하여 보강하였다. 지붕의 하중 고려와 성능을 위해 기와를 다시 사용하는 대신 방송에서 사용되었던 ‘반세기 돌기와집’의 이름에 걸맞게 현대 재료인 종석으로 치환하였다.
정작 어려운 것은 별동이었다. 사용 불가 판정을 받았으나 허물고 모든 흔적을 지우고 싶지는 않았다. 기존 벽을 유지하고 내부에 새로 짓는 것은 새것과 기존 것이 사이의 시공 공간이 필요하여 면적이 너무 줄어들었다. 그래서 접근한 방식은 기존 벽체를 남겨두고 외부에서 건식으로 지은 건물을 공중으로 들어 올려 끼워 넣는 방식이었다. 해당 방식은 국내 시도가 없었기에 많은 우려가 있었지만, 다행히 순조롭게 진행되었고 기존 집 속에 새로운 집을 안착시켰다.
The existing houses on this site were critically damaged. One hanok and three houses with roofs and floors collapsed, and walls broke. Although the upper structure of the hanok was barely usable, most of the bases were rotted. Three houses were judged unusable in a structural safety inspection.
Nevertheless, the design focused on preserving existing traces as much as possible because it is a building that has existed in the town for a long time as part of the village landscape with various memories of Palbok-dong. In the case of the hanok, the roof was carefully removed to prevent the existing structure from collapsing, and the rotted wood structure was reinforced by wrapping the lower part with metal and filled with concrete. Modern material was substituted for load consideration and roof performance instead of traditional roof tiles.
The real challenge was the three houses. It was declared unusable, but the intention was not to demolish and erase all traces of its existence. Maintaining the existing wall and building a new one inside required construction space between the new and existing walls, which reduced the area too much. So the approach was to leave the existing walls behind, lift the prefab house from the outside into the air, and fit it in. There were many concerns because this method had not been attempted domestically, but fortunately, the crane safely installed the new prefab house in the existing house.


‘민간기업’과 ‘지자체’ 그리고 ‘방송국’의 협의가 모두 필요했고 건축과 인테리어 공사도 나누어 진행되었다. 네 곳의 현장이 동시에 진행되고, 주최가 많은 만큼 어려운 순간이 많았다. 하지만 네 곳의 결과물로 인해 팔복동을 찾는 사람들이 늘어나고 다시금 활기를 찾기 시작하는 모습에 기대가 커져갔다. 해당 프로젝트는 팔복동 도시재생의 하나의 시발점이다.
단순 일회성이 아닌 이후 운영과 관리가 체계적으로 이루어지고, 정책과 예산이 뒷받침되어 다음 단계 변화로 연결되어야 한다. 기존 주민공동체가 소외되지 않고 상생하여 도시재생의 혜택을 받을지도 살펴보아야 한다. 앞으로 또 변화할 팔복동은 빈집이 줄어 ‘빈집 밀집구역’이 해제되고 지역공동체와 새로운 상권이 상생하여 생기가 가득한 마을로 변화하기를 참여 건축가로서 간절히 바란다.
Consultations between a private company, a local government, and a broadcasting station were necessary. Also, the architecture and interior construction were carried out separately. Three hosts and four different sites took place simultaneously, with many difficult moments. However, expectations grew as the number of people visiting Palbok-dong increased, and it began to become more vibrant again due to the results of the four locations. This project is a starting point for urban regeneration in Palbok-dong.
It should not be a simple one-time event, but subsequent operation and management should be carried out systematically and supported by policies and budgets to lead to the next stage of change. Existing resident communities must benefit from urban regeneration by coexisting with each other rather than being alienated. As a participating architect, we look forward to seeing the development of Palbok-dong as a live village of local communities and commercial districts with less empty houses.



건축가 노말건축사사무소
위치 전주, 대한민국
용도 상업시설
대지 면적 251㎡
건축 면적 104.40㎡
연면적 104.40㎡
준공 2023
대표건축가 Minyuk Chai, Bokki Lee, Seyeon Cho, Eungyo Lee
시공 남아종합건설 Nam-A
인테리어 구파트너 Koopartner
사진작가 Roh Kyung
'Architecture Project > Commercial' 카테고리의 다른 글
| Ginza Extra Small Building (0) | 2024.06.13 |
|---|---|
| 성수 와인픽스 (0) | 2024.06.13 |
| Nukak (0) | 2024.06.04 |
| Elva Hotel (0) | 2024.05.28 |
| Pizza 4p’s Restaurant Phnom Penh (0) | 2024.05.20 |
마실와이드 | 등록번호 : 서울, 아03630 | 등록일자 : 2015년 03월 11일 | 마실와이드 | 발행ㆍ편집인 : 김명규 | 청소년보호책임자 : 최지희 | 발행소 : 서울시 마포구 월드컵로8길 45-8 1층 | 발행일자 : 매일


