
Elva Hotel (The River Hotel) is a small hotel in Voss, Norway. Voss is renowned for its spectacular landscape and as a popular destination for outdoor and extreme sports enthusiasts.
of the main focuses of the project was to transform an old industrial area by repairing the nature. This involved cleaning up industrial waste, removing foreign plant species, and reestablishing the wetland habitat along the lakefront. The benefit of such a site is that project improves and repairs the natural landscape, rather than damaging virgin nature.


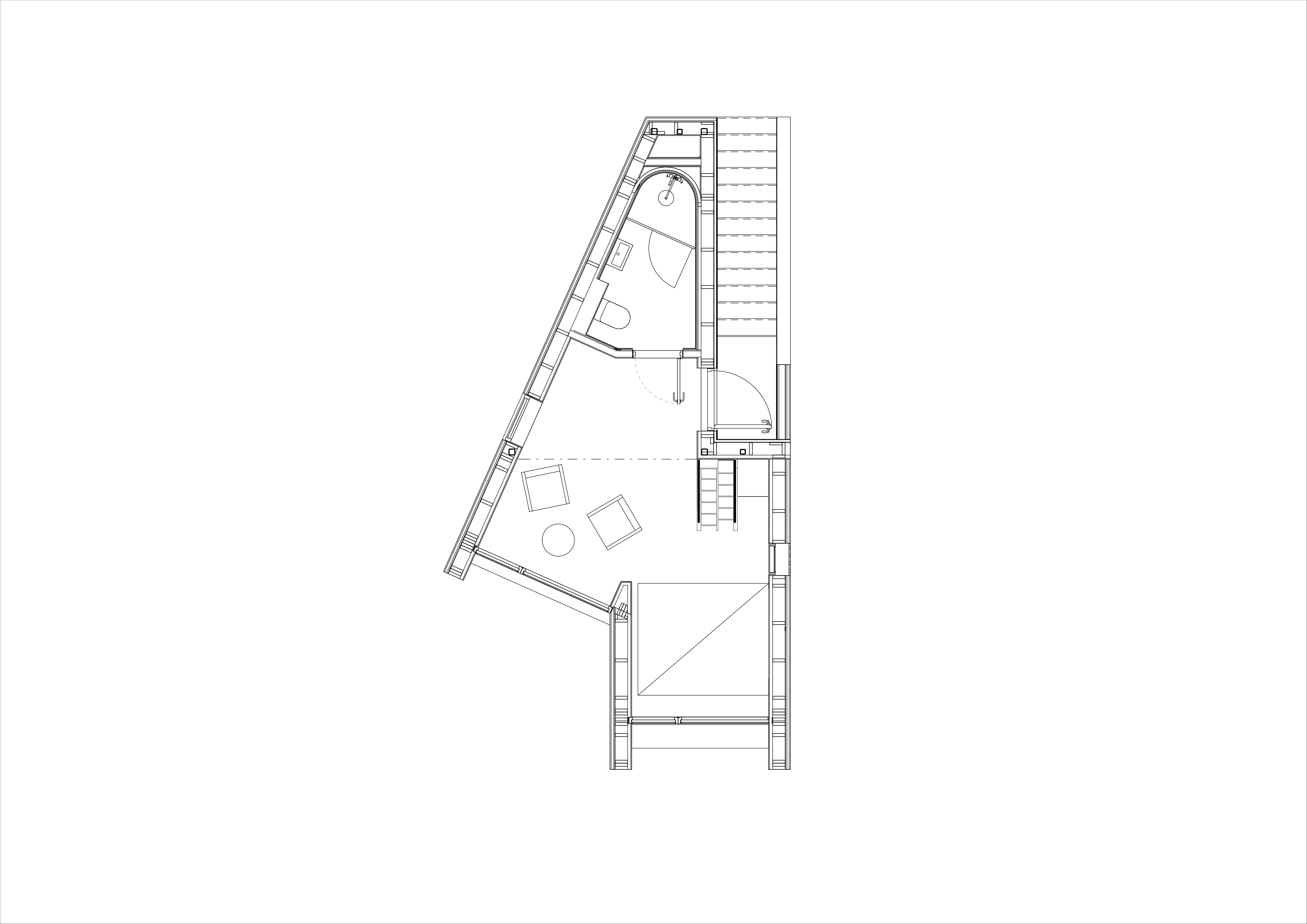
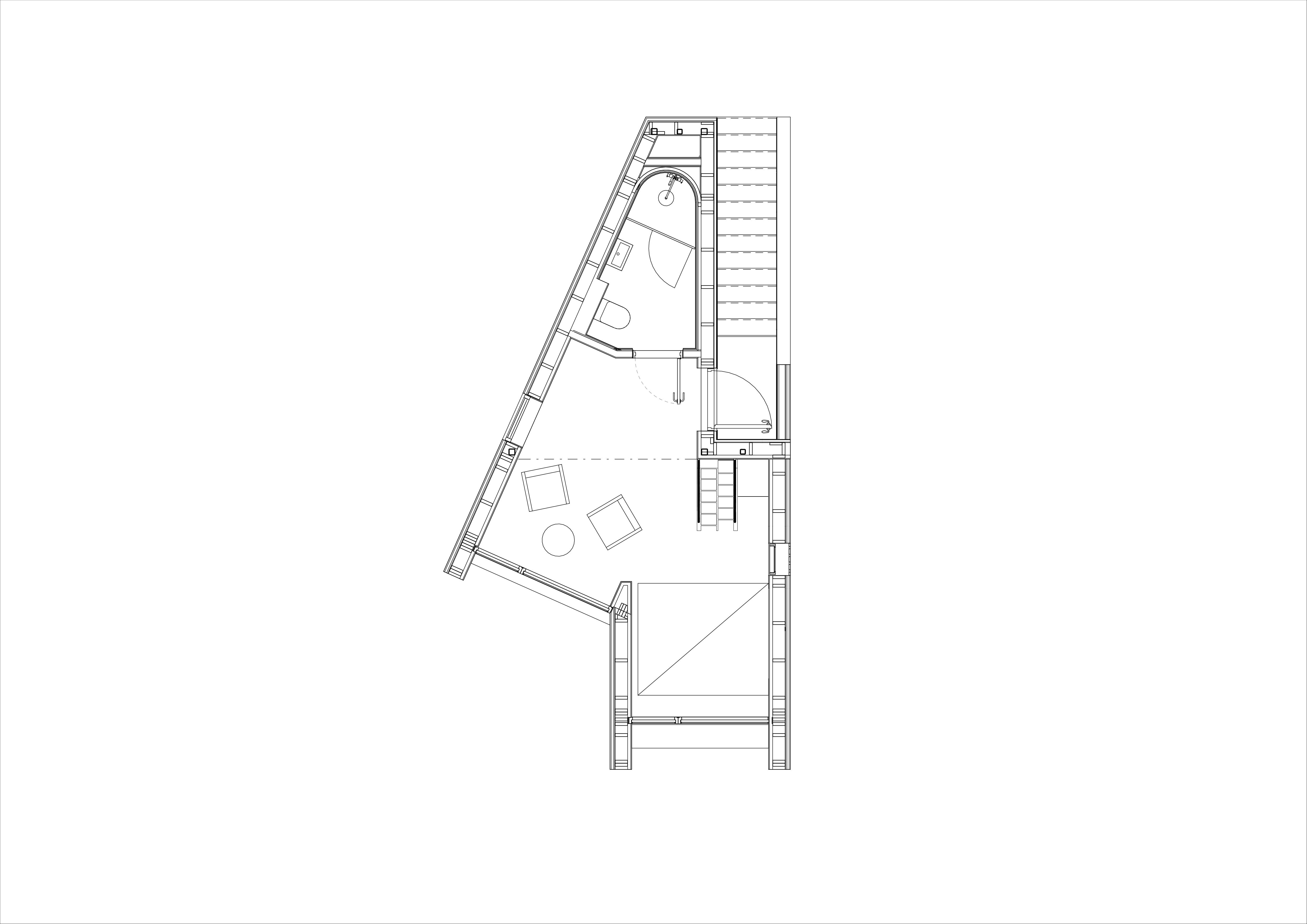
The 14 room hotel consists of five freestanding small tower houses each with one to three hotel rooms, and a main building with four wheelchair accessible rooms, reception, conference room and restaurant which connects to an existing building with bar, café, kitchen and spa area.
A main challenge was that most of the site is two to four meters under the projected flood zone levels after factoring in future climate change.
Where required the buildings are raised on stilts above the flood level. Only the restaurant which connects to the existing bar, kitchen and spa area is placed below the flood level and designed to withstand flooding through water resistant material use, with all technical installations placed a minimum of 1,4m above the floor. The raised buildings also create a variety of covered outdoor spaces for the guests and allows a visual transparency through the buildings towards the waterfront.



To reduce the carbon footprint of the building concrete is only used in the foundations and under the flood level. The rest of the construction is with precut timber which both saved time and waste materials during the building phase.
The buildings are formed to fit the landscape and compact site, and open for views both between and from inside each building. Each room gives the private experience of contact with the surrounding landscape and views over the river and lake towards the mountains.
Natural coloured materials have been chosen so the buildings blend in better with the surrounding landscape. The outdoor areas are planted with local species of meadow grass and flowers to encourage local insect and birdlife.









건축가 Mange Bekker Arkitektur
위치 보스, 노르웨이
용도 호텔
바닥면적 690 ㎡
준공 2023
대표건축가 Sam Hughes
프로젝트 매니저 Thomas Hopland
인테리어 디자인 Lucie Royle
사진작가 Sam Hughes (Mange Bekker Arkitektur)
'Architecture Project > Commercial' 카테고리의 다른 글
| JOOMAK (0) | 2024.06.06 |
|---|---|
| Nukak (0) | 2024.06.04 |
| Pizza 4p’s Restaurant Phnom Penh (0) | 2024.05.20 |
| PAN AM Flagship store (0) | 2024.04.22 |
| Shanghai West Bund AI Tower & Plaza (0) | 2024.04.04 |
마실와이드 | 등록번호 : 서울, 아03630 | 등록일자 : 2015년 03월 11일 | 마실와이드 | 발행ㆍ편집인 : 김명규 | 청소년보호책임자 : 최지희 | 발행소 : 서울시 마포구 월드컵로8길 45-8 1층 | 발행일자 : 매일


