
최근 가장 핫플레이스인 지역을 뽑으라면 단연 성수동을 빼놓을 수 없다. 성수동은 과거 인쇄와 수제화, 가죽 산업 등 공업 밀집지역이었다. 과거와 현재의 시간이 적절히 어우러지면서 다른 지역과는 다른 독특하고 차별화된 문화를 만들며 MZ 세대들을 끌어들이고 있다. 과거 공장이나 창고를 리뉴얼하여 만든 다양한 상업공간들은 과거와 현재가 뒤섞인 듯하고 이러한 지역적 특징을 적용한 공간들이 생겨나면서 홍대와 이태원과는 또 다른 독특한 분위기를 가지고 있다. 여기에 디올, 무신사, LCDC 등의 매스브랜드들이 플래그쉽스토어를 오픈하면서 성수동은 패션브랜드들에게는 가장 핫한 지역이 되었다.
이번에 새롭게 오픈한 팬암의 플래그 쉽 스토어 또한 이러한 성수동의 지역적 특징들에 맞춰 재해석된 디자인 컨셉을 적용한 공간이다. LCDC 플래그쉽스토어를 성수동에 이미 오픈하였던 클라이언트는 캐치미이프유캔과 같은 영화에서와 같이 팬암하면 누구나 쉽게 떠올려지는 레트로하고 오래된 항공사의 이미지를 과감하게 버리고 성수동이라는 지역적 특징과 현재의 시대적 관점을 반영하기를 요청하였다. 따라서 원래 청테이프를 만들던 공장이 시대의 변화와 팬대믹이라는 시간을 거치며 본래의 공간은 유지된 채로 새로운 공간으로 변화한 점에 주목하여 “일상과 비일상의 경계”라는 디자인 컨셉을 도출하였다.
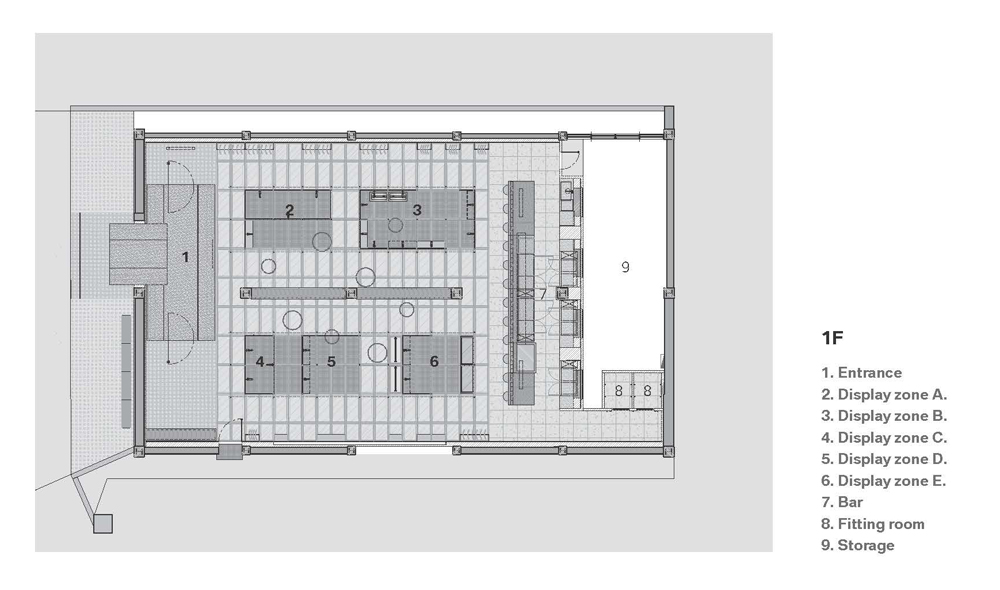
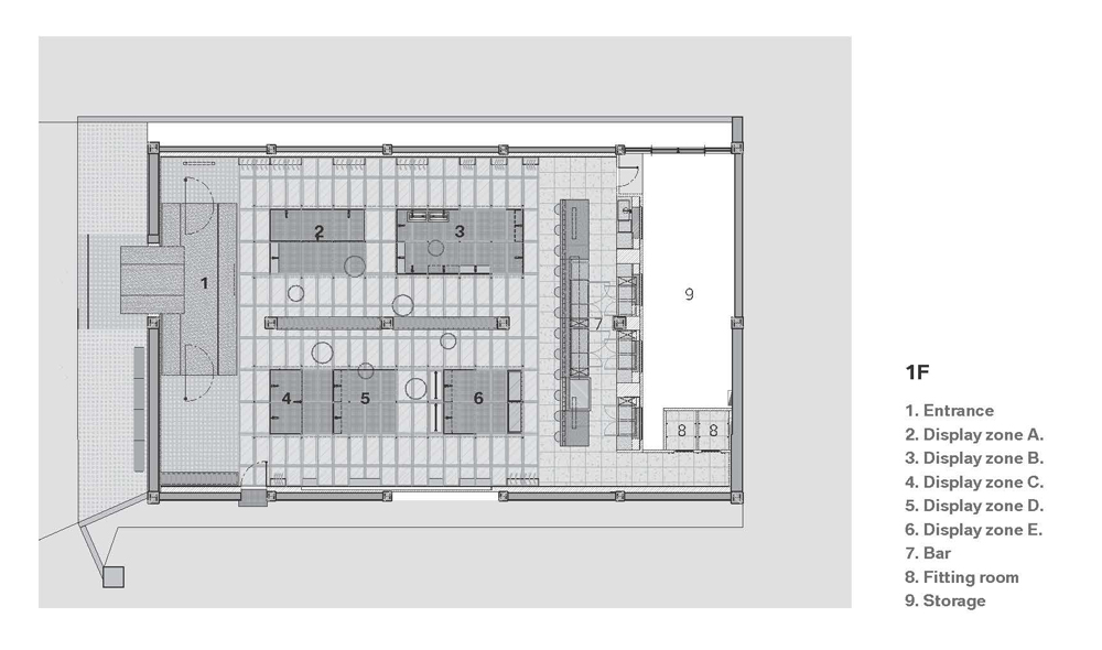
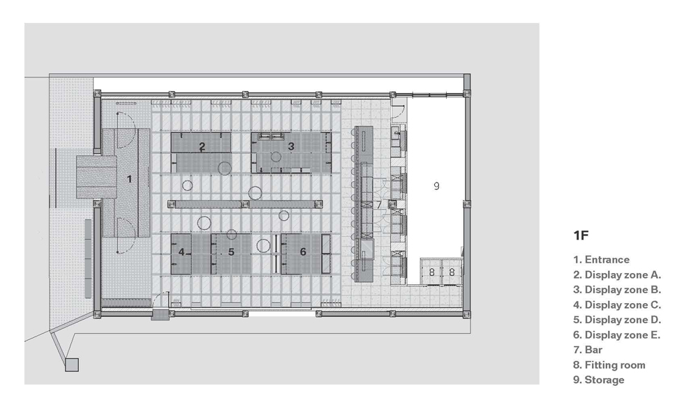
디자이너가 생각한 “일상과 비일상의 경계”는 구분이 아닌 변화였다. 기존의 청테이프를 만들었던 공장의 모습을 남겨두고 성수동이라는 지역적 특징과 팬암이라는 브랜드 컨셉을 통해 새로운 공간과 공존하게 하였다. 따라서 기존 바닥에 녹아 끈적거리는 청테이프를의 잔재를 그대로 남겨두고 그 위에 유리를 덮고 조명을 설치하여 기존 공간과 새로운 공간의 경계를 모호하게 하여 컨셉을 표현하였고 또한 천정이 아닌 바닥 조명을 통해 위아래가 뒤집힌 듯한 비일상적인 무드를 연출하였다.
마찬가지로 공간을 구분하는 벽의 소재는 반투명한 폴리소재와 투명한 유리 소재를 사용하여 각각의 공간들이 구분되지 않고 중첩되어 보이도록 하였고 또한 각각 공간의 개구부를 다른 공간 또는 동선과 연결되도록 하여 각각의 공간들과 동선이 명확하지 않고 구분되지 않게 설계되었다. 벽을 이루는 금속 프레임들 또한 겹쳐지고 벗어나게 하거나 때로는 공간들을 잇는 듯한 요소로 사용하여 경계가 이어지기도 하고 단절되어보이도록 하였다.
공간으로 진입하는 메인 출입구와 facade는 성수동이라는 지역적 특징을 반영하고자 공장의 오래된 콘크리트 벽체에 원통 형태의 메인출입구를 ‘T’ 형태로 삽입하여 입구와 출구의 동선을 구분하였고. 외부에서 내부를 드러내지 않고 보이지 않게 하여 내부의 공간이 궁금하도록 유도하였다. 또한 출입구에서 이어지는 내부 진입을 원통형태의 매스를 통해 진입하게 유도하여 마치 여행을 시작하기 직전의 설레임을 느끼게 하였다. 이렇게 공간으로 진입하는 과정 또한 전희공간(transitional space)을 지나게 하여 일상적인 현실(외부)에서 비일상적인 공간(내부)으로의 진입을 은유적으로 표현하고자 하였다.













건축가 PAN AM Flagship store
위치 대한민국, 서울시 성동구
준공 2022
면적 310㎡
대표건축가 Niiiz Design Lab
디자인팀 임수정, 이민주
시공 JHD / 장운봉
사진작가 스튜디오 고딕 / 이재성, 김탁현
'Architecture Project > Commercial' 카테고리의 다른 글
| Elva Hotel (0) | 2024.05.28 |
|---|---|
| Pizza 4p’s Restaurant Phnom Penh (0) | 2024.05.20 |
| Shanghai West Bund AI Tower & Plaza (0) | 2024.04.04 |
| Puradies (0) | 2024.03.27 |
| Pistohiekka Resort (0) | 2024.03.26 |
마실와이드 | 등록번호 : 서울, 아03630 | 등록일자 : 2015년 03월 11일 | 마실와이드 | 발행ㆍ편집인 : 김명규 | 청소년보호책임자 : 최지희 | 발행소 : 서울시 마포구 월드컵로8길 45-8 1층 | 발행일자 : 매일



