
이 특소형 빌딩은 하나쓰바키도리 거리와 긴자 회랑 거리에 세워졌다. 긴자 상업지구는 일본에서도 가장 높은 부동산 가치를 가진 곳이기 때문에, 건축주는 작은 대지 안에서 임대 수익을 최대화 할 수 있는 건축물을 짓고자 했다.
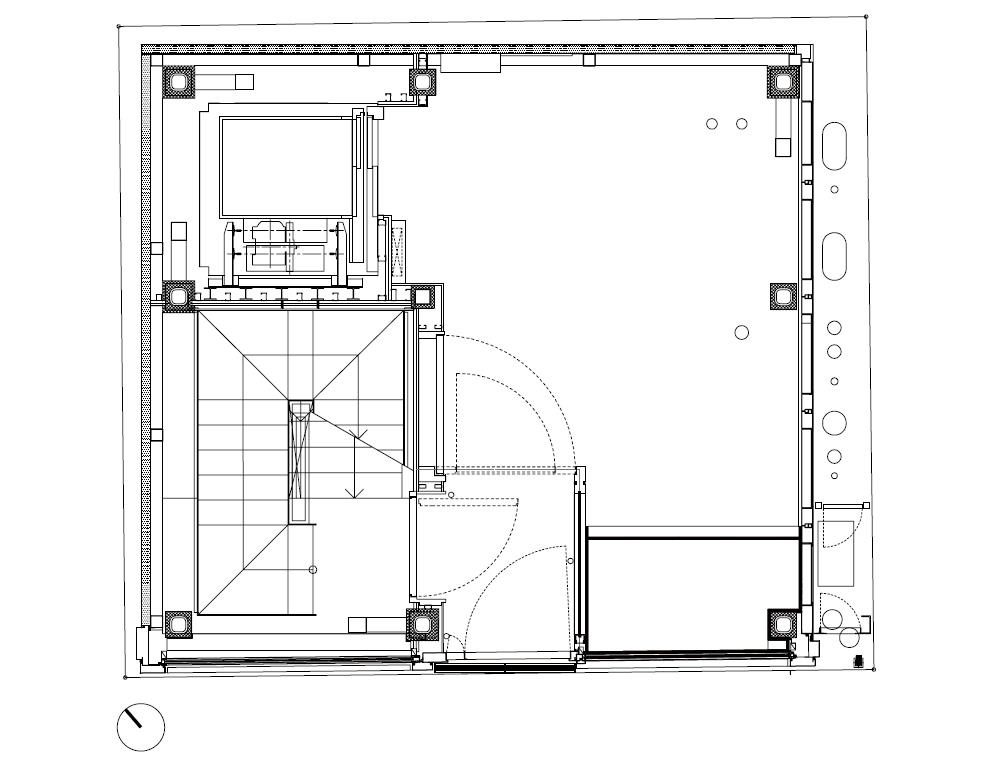
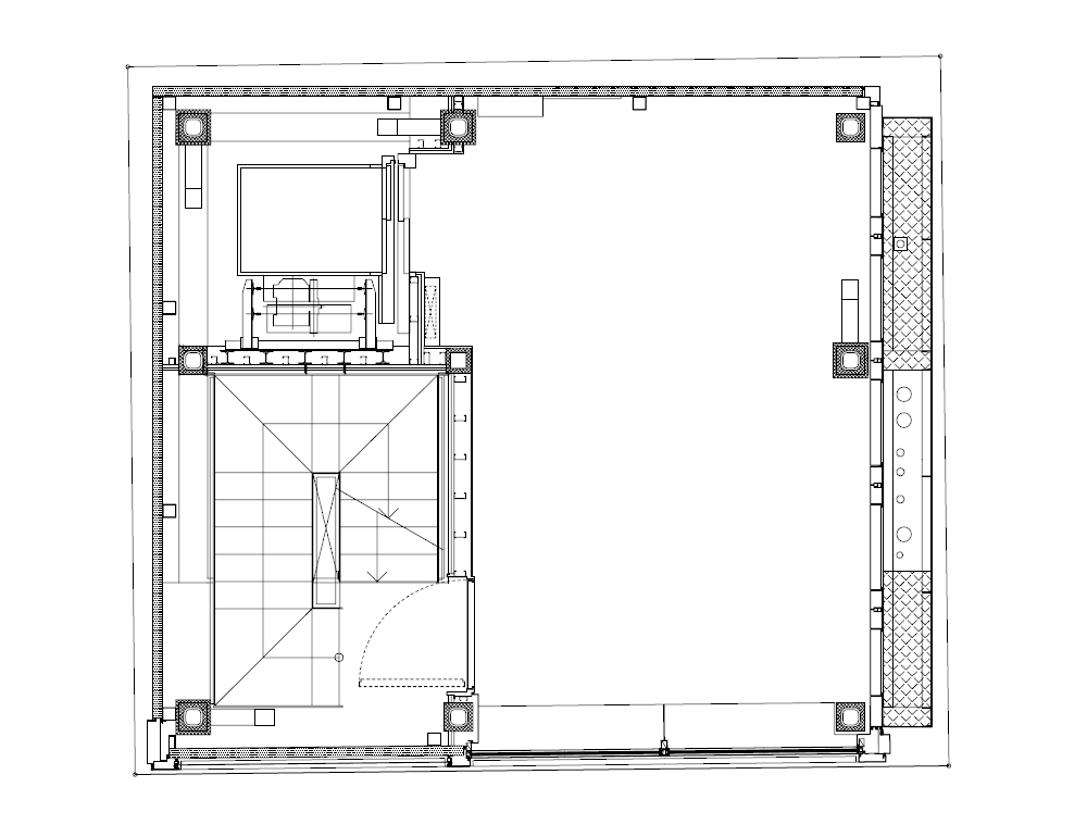
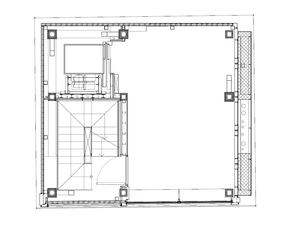
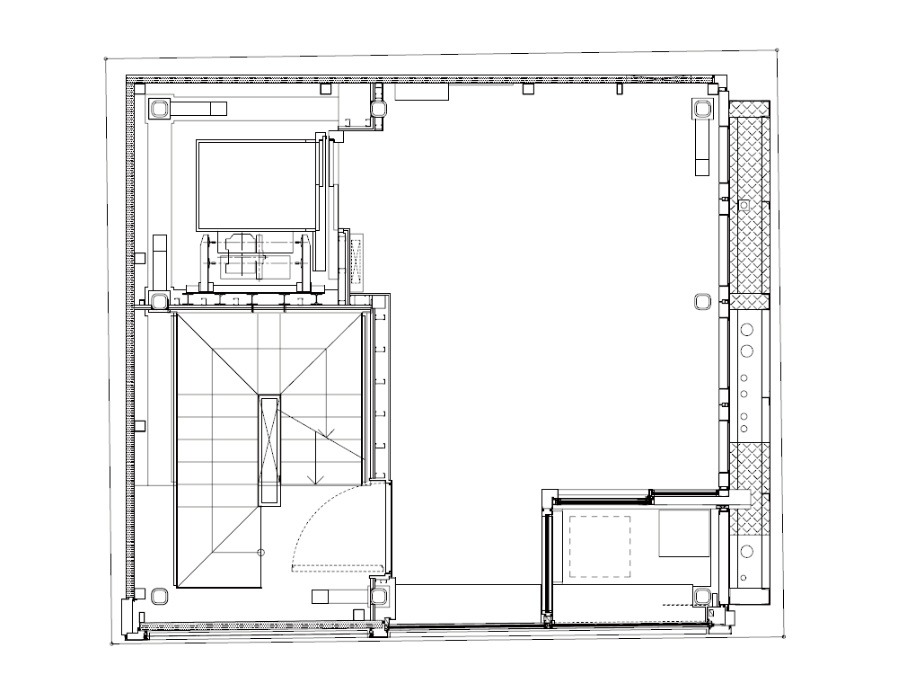
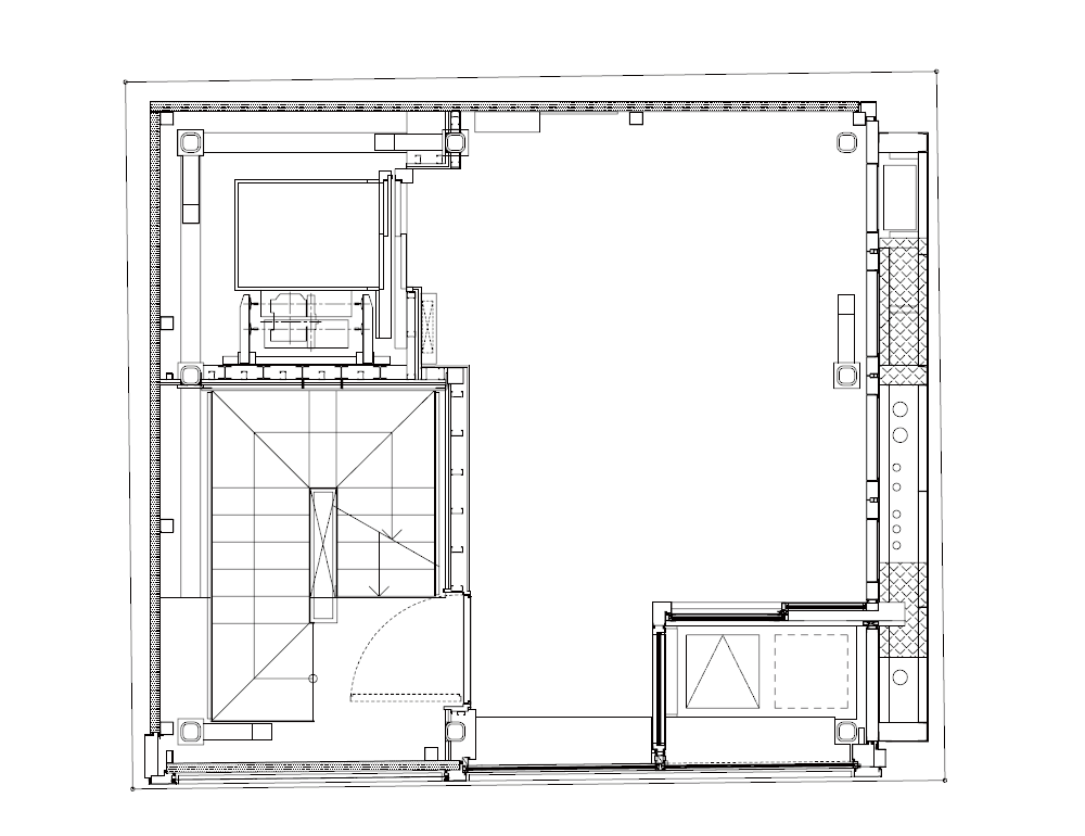
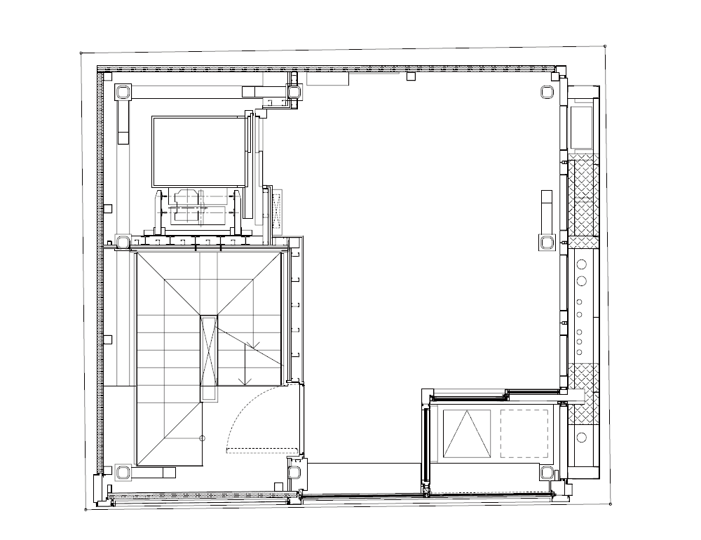
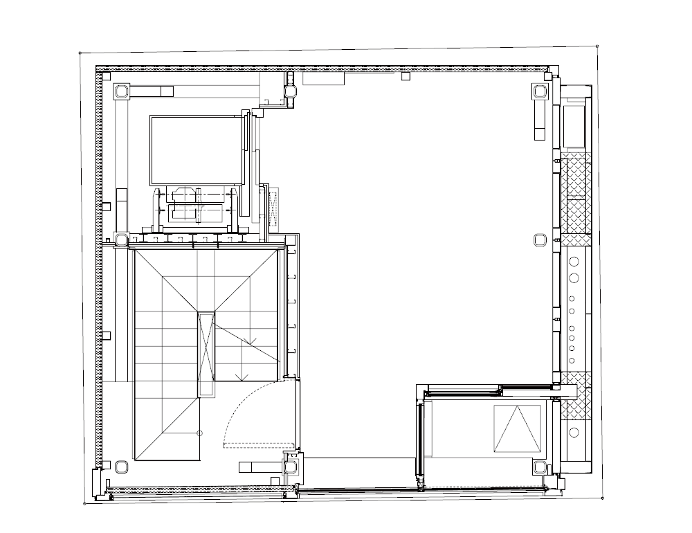
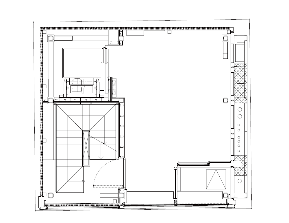
기본적인 평면은 부지 깊숙한 곳에 계단과 엘리베이터를 정렬하고 각 층을 개별적인 임대 공간인 구성이다. 1층은 각 층의 임대인들이 오고가는 곳이므로, 공용의 복도이자 로비인 공간이다. 빌딩의 정면에서 가려진 부분은 수직 동선이 배치된 부분이다. 옆 건물과 200mm의 이격거리가 있어야 했는데, 이로 인해 일반적인 옹벽을 건설할 수 없었고, ‘개방형 케이슨 건설 공법’이 사용되었다. 콘크리트 기초는 공법에 따라 미리 타설되었으며, 이후 지하에 대한 굴착 작업이 진행되어 케이슨이 자중을 받고 지하에 자리잡을 수 있었다. 이는 일반적으로 토목 공학에서만 사용되는 공법이었고, 시공 전문가의 도움을 받았어야 했다. 지하 기초는 6m 깊이로 설계되었고, 하중을 받는 지층 위에 직접 얹혀 있다. 골드 색상으로 마감된 입면은 매력적이고 고급스러운 느낌을 준다. 계단 입면 부분 앞에는 후면 조명이 설치되었으며, 플라스틱 패널이 수직으로 설치되어 있다. 발코니에는 주로 외부 냉방 장치와 배기 팬 장치가 설치되어 있는데, 야외 공간에도 간단한 식사와 휴식을 취할 수 있다. 큰 창문은 거리와 주변 건물의 전망을 제공한다.




















건축가 KEY OPERATION INC. / ARCHITECTS
위치 일본, 도쿄
대지면적 34.28㎡
건축면적 28.34㎡
연면적 167.76㎡
규모 지하 1층, 지상 5층
준공 2022. 3.
계획 Landpool Co., Ltd.
프로젝트건축가 Akira Koyama
구조엔지니어 Delta Structural Consultants
설비엔지니어 Comodo
시공 O’hara Architectural and Construction, Ltd.
사진작가 Noriyuki Yano
'Architecture Project > Commercial' 카테고리의 다른 글
| 8323, layers of space (0) | 2024.06.14 |
|---|---|
| PARK AVENUE (0) | 2024.06.13 |
| 성수 와인픽스 (0) | 2024.06.13 |
| JOOMAK (0) | 2024.06.06 |
| Nukak (0) | 2024.06.04 |
마실와이드 | 등록번호 : 서울, 아03630 | 등록일자 : 2015년 03월 11일 | 마실와이드 | 발행ㆍ편집인 : 김명규 | 청소년보호책임자 : 최지희 | 발행소 : 서울시 마포구 월드컵로8길 45-8 1층 | 발행일자 : 매일



