
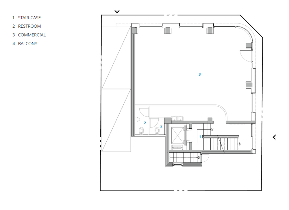
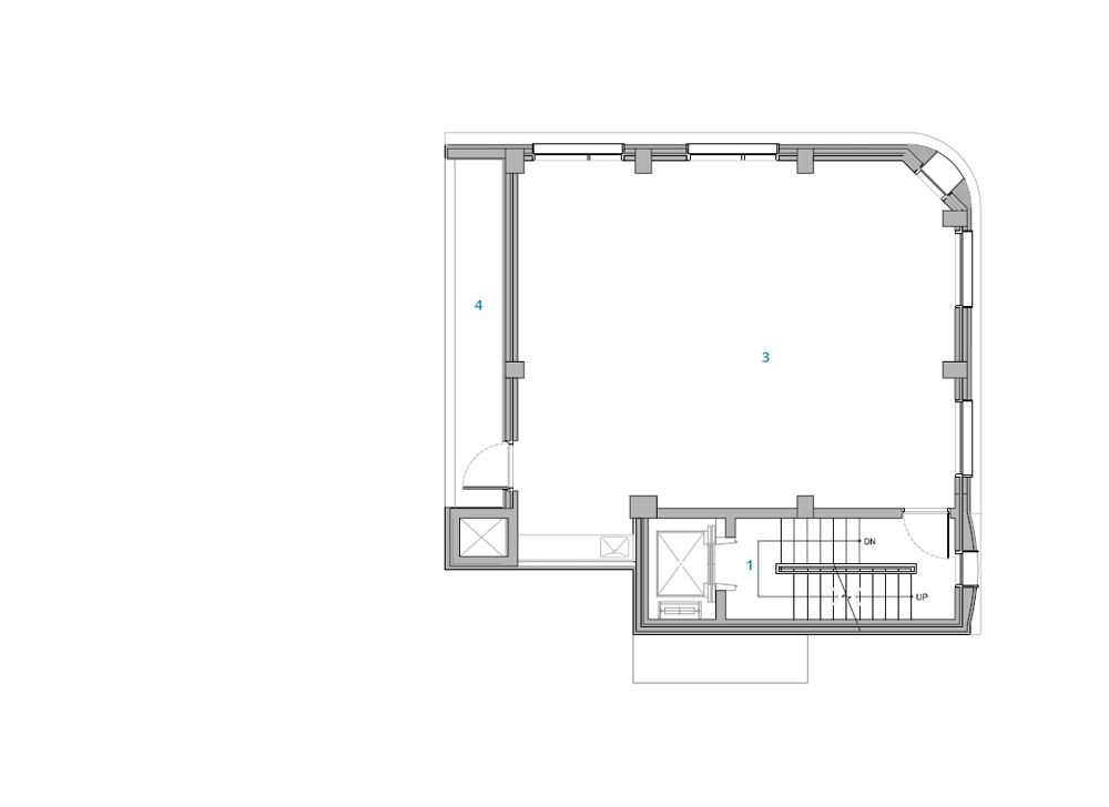
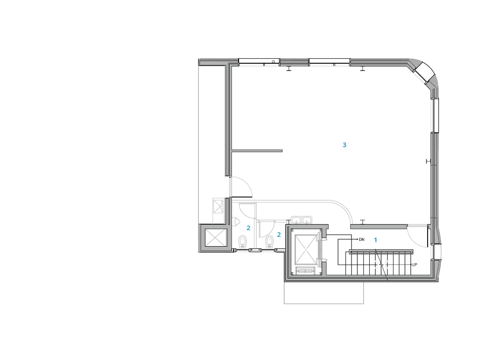
가락동 102-8은 송파구 문정동 로데오거리의 바로 이면부에 있다. 2종일반주거지역에 자리 잡은 건물은 주변의 의류 상권과 다르게 다세대와 다가구가 즐비한 주택가 사이에 있었다. 동시에 동쪽으로는 학교와 맞닿아 있다. 서로 다른 3가지 성격의 프로그램 경계에 위치한 건물은 어떤 특정 프로그램에 속해 있지 않으며 온전하게 본연의 개성이 필요하다고 판단되었다. 또한, 기존 다가구주택이자 근생으로 쓰였던 건물은 대수선 이후 근린생활시설로만 쓰일 예정이었다. 내부는 단순하게 마감하되, 외부에 직접적으로 보이는 외벽의 창 형태로 건물의 개성을 만드는 것에 중점을 두었다.
노후화 된 해당 건물을 처음 봤을 때 보존을 해야 할 요소가 많지 않다고 판단했고, 대수선은 기존의 뼈대와 전체적인 스케일감을 적정 부분 유지한 채 새로운 옷을 입히는 방향으로 결정했다. 이 건물의 가장 큰 특징 중하나는 입면의 네 부분이 모두 서로 다른 프로그램과 관계를 맺고 있다는 것이다. 가장 메인인 남측은 로데오 중심 가로와 면해 있었으며, 동측은 학교와 생활가, 서측은 인근 아파트 단지, 북측은 인근 다가구주택과 마주하고 있었다. 주재료나 형태는 주변과 동일한 매스감을 가지되, 각각의 입면은 서로 다른 입면을 가질 수 있도록 설계하여, 건축물이 가지고 있는 위치적 특성을 입체적으로 표현하고자 했다.
설계 초기, 건축주는 강력하게 ‘아치’형 디자인을 제시했다. 모든 입면에 아치로 된 창을 구성하길 원했다. 하지만 입면의 각각 면이 다르게 보이기 위해서는 아치만으로 모든 입면의 서로 다른 성격을 구현하는 건 무리가 있었다. 그래서 아치와 사각형의 조합을 통해 표현의 다양성을 만들기로 했다. 사각형은 강력한 구조와 안정성을 부여하고 곡선은 유연하고 유기적인 미적 감각을 더했다. 메인 입면인 남측은 아치를 높은 비율로 사용하여 메인 가로의 다른 건물들과 대비감을 강조하여 건물의 가시성을 극대화하였고 동측은 학교와 맞닿아 있지만 생활 가로의 마지막 부분과 닿아 있어 주로 사각형 창을 통해 생활 가로의 건물들과 조화를 이루면서 건물의 상층부에만 아치를 적용하여 은은한 포인트를 주었다. 이처럼 서로 다른 입면의 모습은 자칫 지루할 수 있는 평면적 건물에 입체적 성격을 부여하고 그로 인해 도시에 활력을 불어넣는 역할을 한다.

Located at 102-8 Garak-dong, this building stands just behind Rodeo Street in Munjeong-dong, Songpa-gu. Situated in a Type 2 General Residential Zone, the building is nestled between a varied residential area filled with multi-family and multi-unit houses and a school to the east. Recognizing its placement on the boundaries of three distinct programmatic elements, the building was deemed to require its own unique character, detached from any specific program. Moreover, the existing building, which was once a multi-unit residence and part of the neighborhood life, was slated to be repurposed solely as a community facility. The interior was designed with simple finishes, while the emphasis was on creating the building's character through the shape of the windows on the external walls that are directly visible.
Upon the initial assessment of the aging building, it was determined that there were not many elements worth preserving. The decision was made to maintain the existing structure and overall scale while giving it a new look. One of the most significant features of this building is that each of the four facades establishes a unique relationship with different programs. The main southern facade is horizontal to Rodeo Street, the eastern side faces the school and the community, the western side corresponds to nearby apartment complexes, and the northern side borders adjacent multi-unit residences. While using materials and forms consistent with the surroundings, each facade was designed to have a distinct character, expressing the building's locational uniqueness in three dimensions.
In the early stages of design, the client strongly advocated for an “arch” design, desiring arched windows on all facades. However, achieving different characteristics for each facade solely with arches posed a challenge. Therefore, a combination of arches and rectangles was chosen to enhance expressive diversity. Rectangles provided a strong structure and stability, while curves added flexibility and an organic aesthetic sense. The main southern facade predominantly features arches, emphasizing contrast with neighboring buildings along the main street, while the eastern facade, adjacent to the school and the endpoint of the community street, harmonizes with surrounding buildings using rectangular windows. Arches are selectively applied to the upper part of the building, adding subtle points of interest. In this way, the different facades contribute to a three-dimensional character for what could otherwise have been a monotonous flat building, injecting vitality into the urban context.














건축가 Seamless Architecture
위치 서울시 송파구 가락동 102-8용도 근린생활시설
공사종류 대수선
대지면적 176.7㎡
건축면적 97.47㎡
규모 지하 1층, 지상 5층
건폐율 55.16%
용적률 183.93%
준공 2023
대표건축가 (주)심리스건축사사무소
프로젝트건축가 이완정, 안재근
디자인팀 (주)심리스건축사사무소
시공 (주)위성종합건설_이육수
인테리어 클랜디자인
사진작가 이남선
해당 프로젝트는 건축문화 2024년 2월호(Vol. 513)에 게재되었습니다.
The project was published in the February, 2024 recent projects of the magazine(Vol. 513).
February 2024 : vol. 513
Contents : COMPETITION : SKETCH A Landscape that is Hard to Pass / Johanna Sinkkonen 좀처럼 지나칠 수 없는 풍경 / 요한나 신코넨 : RECENT PROJECT IRIS Headquaters / RE:TMUS ARCHITECTS 아이리스 사옥 / 리트머스 건축사사무소 Ye
anc.masilwide.com
'Architecture Project > Commercial' 카테고리의 다른 글
| Pistohiekka Resort (0) | 2024.03.26 |
|---|---|
| WILD BACK (0) | 2024.03.21 |
| Guili Hotel, Luzhou (0) | 2024.03.18 |
| PLA 2 Floating Resort (0) | 2024.03.11 |
| Aeon Hotel (0) | 2024.03.08 |
마실와이드 | 등록번호 : 서울, 아03630 | 등록일자 : 2015년 03월 11일 | 마실와이드 | 발행ㆍ편집인 : 김명규 | 청소년보호책임자 : 최지희 | 발행소 : 서울시 마포구 월드컵로8길 45-8 1층 | 발행일자 : 매일


