
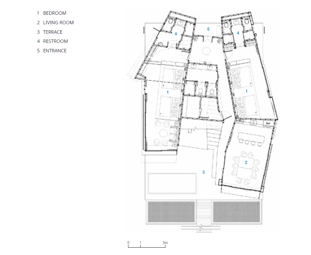
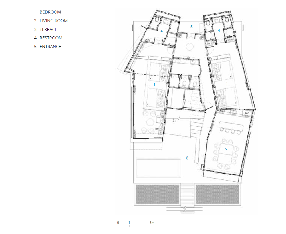
플라 투 수상 리조트는 댐이 있는 곳 근처에 뗏목 위에 설치되어 있다. 다양한 종류의 물고기가 있는 독특한 대지 특성을 파악한 건축가는 ‘거대한 가물치’ 개념을 이용하여 리조트를 설계했다. 활동에 적합한 형태를 만들고, 그것을 공간에 맞게 변형하면서 내부와 외부에서 상호적 연결이 가능한 공간을 만들어 냈다. 건물 안으로 들어가면, 물속에서 역동적으로 움직이는 물고기를 떠올리게 한다. 입구 홀에서 두 가지 방법으로 접근할 수 있는데, 외부 데크에서 들어오는 곳은 선과 빛으로 공간에서 극적인 것을 가지고 있다. 낮에는 다르게 밤에는 방들이 분리된다. 리조트는 목재와 경량 철강을 통해 만들어졌다. 건물의 색은 물고기를 떠올리게 만든다. 뿐만 아니라, 건축가는 수상에 지어지는 공간인 만큼 건축물의 무게가 가벼워지도록 가벼운 자재, 폐쇄형 SAT 탱크 시스템을 설치하여 마무리했다. 해안 근처에 있는 경우의 전기를 사용할 수 있으며, 바다로 멀리 나가면 발전기를 이용하여 전기를 사용할 수 있다. 실내에는 다양한 활동을 위한 조명들과 뗏목 내부에는 이야기를 나눌 수 있는 공간들이 있다. 실내의 낭만적인 분위기를 즐길 수 있는 공간도 곳곳에 마련되어 있다.

The PLA 2 Floating Resort is situated on rafts near a dam, taking advantage of the unique site characteristic of various types of fish. The architect incorporated the concept of a “giant snake head” to design the resort. Creating a form suitable for activities and transforming it to fit the space, the architect generated areas with mutual connections between the interior and exterior. Upon entering the building, one is reminded of fish dynamically moving underwater. There are two ways to access the entrance hall, with the external deck entrance having a dramatic presence in the space with lines and light. During the day, it appears different than at night when the rooms become separated. The resort is constructed using wood and lightweight steel, and the building's color evokes images of fish. Additionally, recognizing the aquatic nature of the space, the architect installed a lightweight material and a closed SAT tank system to reduce the weight of the building. When near the coast, electricity can be obtained, and when venturing out to the sea, generators can be used for power. Inside, various lights for activities and spaces for sharing stories within the rafts are provided. There are also spaces throughout where one can enjoy the romantic atmosphere of the interior.










건축가 Dersyn Studio
위치 태국, 칸짜나부리
건축면적 253㎡
규모 지상 2층
시공기간 2020. - 2021.
준공 2021.
프로젝트건축가 Sarawoot Jansaeng-Aram
디자인팀 Nitaya Mokharat, Paly Poopradit, Suchin Thongmorn, Sahraw Rahamadprasert, Jagkree Phetphosree, Nattaporn Sirisom, Thanakorn Kajornchaiya
인테리어 Dersyn Studio
구조엔지니어 Narathip Deekaew
조명 C&P lighting design
시공 TEN Design and Construction
발주자 Aquasa Platwo.Co.Ltd
사진작가 Beer Singnoi
해당 프로젝트는 건축문화 2024년 1월호(Vol. 512)에 게재되었습니다.
The project was published in the January, 2024 recent projects of the magazine(Vol. 512).
January 2024 : vol. 512
Contents : RECORDS ‘Rural Reconstruction and Regeneration, Perspectives of Land Use’, The 3rd Urban & Architecture and Urbanism Forum 2023 ‘농촌공간 재구조화 및 재생, 토지 이용에서 바라보다’, 2023 제3차 AURI 건축도시포
anc.masilwide.com
'Architecture Project > Commercial' 카테고리의 다른 글
| Garak-dong 102-8 (0) | 2024.03.21 |
|---|---|
| Guili Hotel, Luzhou (0) | 2024.03.18 |
| Aeon Hotel (0) | 2024.03.08 |
| Lanserhof Sylt (0) | 2024.03.07 |
| mimmim (0) | 2024.03.06 |
마실와이드 | 등록번호 : 서울, 아03630 | 등록일자 : 2015년 03월 11일 | 마실와이드 | 발행ㆍ편집인 : 김명규 | 청소년보호책임자 : 최지희 | 발행소 : 서울시 마포구 월드컵로8길 45-8 1층 | 발행일자 : 매일



