
피스토히에카 리조트는 1980년대까지 번창했던 피스토히에카 리조트 지역을 재건하기 위한 첫 단계로 수행된 프로젝트다. 호숫가 사우나와 레스토랑의 형태로 오래전의 서비스를 다시 그 지역에서 수행하며, 피스토히에카 지역의 관광과 목재 건축을 개발하기 위한 스튜디오 푸이스토의 디자인에서 중요한 개발 장소 중 하나이기도 하다.
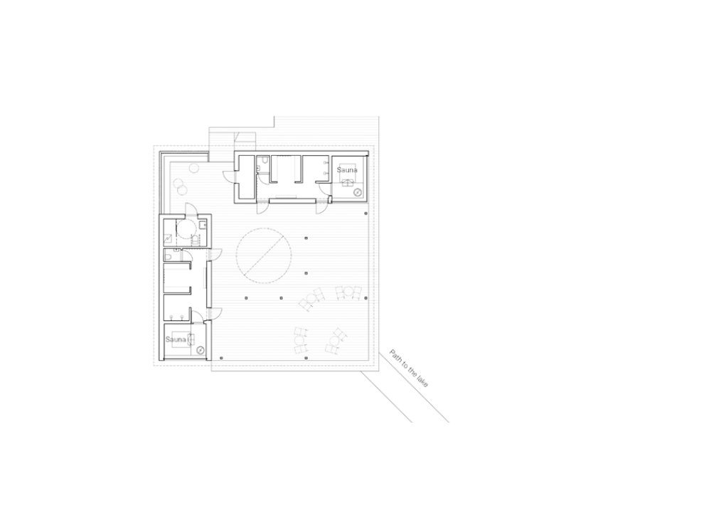
프로젝트의 컨셉은 레스토랑과 사우나 공간이 나선형으로 회전하는 중앙의 곡선형 실외 공간을 기반으로 한 강력한 디자인 미학을 자랑한다. 현존하는 나무들 사이의 호숫가에 위치해 있고, 어두운 외부와 섬세한 사이마(Saimaa) 풍경과 조화를 이룬다. 매력적이고 따뜻한 나무로 된 내부는 주변 풍경과는 대조된다. 피스토히에카 리조트에서 이러한 풍경과 야외의 레저 공간은 중요한 부분을 차지한다. 방문객은 고급 레스토랑 식사와 사우나에서 여유롭게 휴식을 취하는 사이에 여름 일몰을 즐길 수 있다.
피스토히에카 리조트의 출발점은 고요한 만의 바위 지대 사이에 위치한 웅장한 위치였다. 전체적인 설계와 함께 설계된 건물들은 프로젝트 소유자와 함께 이 지역의 특별한 측면을 강조하는 독특한 전체적인 컨셉으로 정교하게 다루었다. 건물 배치에 신중하게 고려된 지역의 특성으로 인해 두 건물은 날씨와 상관없이 항상 아름다운 사이마의 풍경을 감상할 수 있는 외관과 인테리어를 만든다.
곡선 형태의 내부 안마당은 건물 안팎으로 조망권을, 지붕에는 독특하고 둥근 개구부가 있는 복개된 사우나 외부는 건물 간의 테마적 연결고리를 만들어 낸다. 최고의 전문가 팀 덕분에 설계부터 시공, 완성된 결과물까지 모든 과정이 매끄럽고 빠르게 진행되었고, 프로젝트 소유자들의 결단력과 시공자들의 숙련도 덕분에 최종 결과물에는 독창적인 콘셉트를 선보일 수 있었다.

Pistohiekka Resort is the first step in the reconstruction of the Pistohiekka resort area, which flourished until the 1980s. It brings old services back to the area in the form of lakeside saunas and restaurants, and is one of the key development sites in Studio Puisto’s design to develop tourism and timber architecture in the Pistohiekka region.
The project’s concept boasts a strong design aesthetic based on a central curved outdoor space around which the restaurant and sauna areas spiral. Located on the lakeshore among existing trees, the dark exterior blends in with the delicate landscape of Saimaa. The warm, inviting wooden interiors contrast with the surrounding landscape. Such landscapes and outdoor leisure spaces are an important part of the Pistohiekka Resort. Visitors can enjoy summer sunsets between meals in the fine dining restaurant and relaxing in the sauna.
The starting point for Pistohiekka Resort was its magnificent location among the rock formations of a tranquil bay. Together with the overall design, the designed buildings were elaborated together with the project owner into a unique overall concept that highlights the special features of the area. Due to careful consideration of the characteristics of the area in the layout of the buildings, the two buildings create exteriors and interiors that offer beautiful views of the Saima landscape at all times, regardless of the weather.
The curved interior courtyard provides views both inside and outside the building, while the covered sauna exterior with its unique rounded opening in the roof creates a thematic link between the buildings. Thanks to a team of top experts, the entire process from design to construction to the finished product was smooth and fast, and the determination of the project owners and the skill of the contractors enabled a unique concept as the final result.









건축가 Studio Puisto Architects
위치 핀란드, 피스토히에카
설계기간 2020 - 2022
프로젝트면적 715㎡
발주처 Pistohiekka Sauna Oy
해당 프로젝트는 건축문화 2024년 2월호(Vol. 513)에 게재되었습니다.
The project was published in the February, 2024 recent projects of the magazine(Vol. 513).
February 2024 : vol. 513
Contents : COMPETITION : SKETCH A Landscape that is Hard to Pass / Johanna Sinkkonen 좀처럼 지나칠 수 없는 풍경 / 요한나 신코넨 : RECENT PROJECT IRIS Headquaters / RE:TMUS ARCHITECTS 아이리스 사옥 / 리트머스 건축사사무소 Ye
anc.masilwide.com
'Architecture Project > Commercial' 카테고리의 다른 글
| Shanghai West Bund AI Tower & Plaza (0) | 2024.04.04 |
|---|---|
| Puradies (0) | 2024.03.27 |
| WILD BACK (0) | 2024.03.21 |
| Garak-dong 102-8 (0) | 2024.03.21 |
| Guili Hotel, Luzhou (0) | 2024.03.18 |
마실와이드 | 등록번호 : 서울, 아03630 | 등록일자 : 2015년 03월 11일 | 마실와이드 | 발행ㆍ편집인 : 김명규 | 청소년보호책임자 : 최지희 | 발행소 : 서울시 마포구 월드컵로8길 45-8 1층 | 발행일자 : 매일



