
즈카웨이 도서관은 건축가 데이비드 치퍼필드가 설계한 서점 건물의 완공 직후 비어 있던 건물을 공공 도서관으로 지정한
것이다. 건축가는 기존 건물의 중심에 자리 잡은 아트리움과 옆으로 이어진 메자닌과 같은 고전적인 공간 구성을 수용함과
동시에 새로운 서사를 만들어 내기 위해 전통적인 중국식 바지선에서 유래한 중국식 둥지형의 박스 구조물에서 영감을
얻었다. 콘크리트, 테라조, 페인트가 나타내는 견고함은 박스의 포장재와 같이 표현되며, 따뜻한 목재 톤으로 표현된 내부
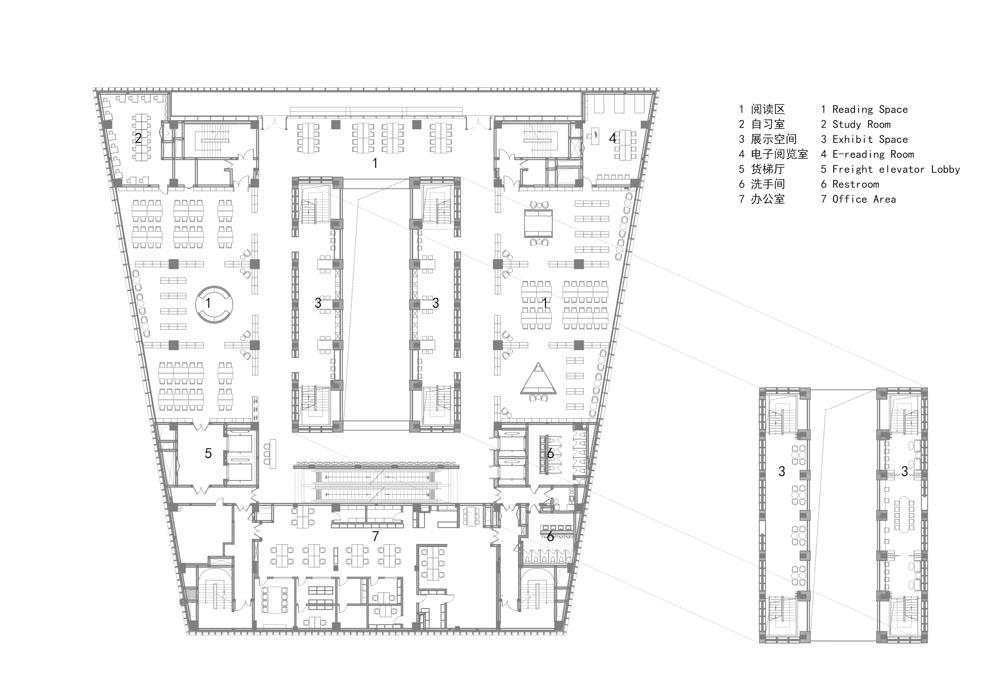
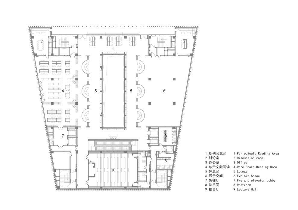
마감은 수납된 공간으로써 표현된다. 첫 번째 층은 건물의 외피, 두 번째 층은 독서 공간과 강의실, 전시실 등 도서관의 주요 프로그램 공간, 세 번째 층은 도넛 모양의 통로, 네 번째 층은 열람실의 역할을 하는 아트리움으로 점진적으로 구성됐다.
내부의 아트리움은 가톨릭 교회의 전통적인 공간 유형인 바실리카에서 영감을 받아 도서관을 상징적으로 해석한 아치형으로 설계됐다. 이러한 요소들은 서양과 동양의 건축적인 요소, 목구조와 현대적인 인쇄기술을 결합한 상징성으로 승화된다.

The Zikawei Library, designed by architect David Chipperfield, is a public library located in a bookstore building that was vacant immediately after completion. The architect embraced the classical spatial composition of the existing building, centered around an atrium and connected to a mezzanine, while also drawing inspiration from the traditional Chinese pants-shaped structure for a new narrative. Originating from the traditional Chinese pants, the nest-shaped box structure is expressed robustly, reminiscent of the packaging material of boxes, using concrete, terrazzo, and paint. The warm wooden tones in the interior finish represent enclosed spaces. The building is gradually organized, with the first floor as the exterior, the second floor as the main program spaces of the library, including reading areas, classrooms, and exhibition rooms. The third floor consists of a circular corridor, and the fourth floor is an atrium serving as a reading room. The internal atrium was designed with arches inspired by the traditional form of a basilica in the Catholic Church, symbolically interpreting the library. These elements harmonize as symbols that combine Western and Eastern architectural elements, timber structures, and modern printing technology.












건축가 Wutopia Lab
위치 중국, 상하이, 쉬후이
면적 18,650㎡
준공 2022. 12.
대표건축가 YU Ting
프로젝트건축가 PU Shengrui, LI Mingshuai
디자인팀 KANG Qinghe, JIANG Xueqin, AN An, CHEN Jun, CHEN Shaofen, WANG Jing
디자인컨설턴트 S5 Design Co., Ltd
서가디자인 JIN Rui, PAN Hui, WANG Liyang, PAN Dali, YU Jing
조명디자인 ZHANG Chenlu, CAI Mingjie, WEI Shiyu, DU Yuxuan, LI Wenhai
그래픽디자인 MEEM DESIGN (XIU Zi,CHEN Siyu)
전시디자인 Shanghai Art-Designing Co., LTD.
설치 및 시공 Fab-Union Technology
모델 Iz
발주자 Xuhui District Administration of Culture and Tourism, Xuhui District Library
사진작가 CreatAR Images
해당 프로젝트는 건축문화 2023년 9월호(Vol. 508)에 게재되었습니다.
The project was published in the September, 2023 recent projects of the magazine(Vol. 508).
September 2023 : vol. 508
Contents : Records Architecture, Built from Empathy and Respect 이해와 존중을 바탕으로 지어지는 건축물들 Sketch Out the Urban Regeneration of Jinju, The 2nd 2023 Jinju Architecture Festival 진주 도시재생의 밑그림을 그리다,
anc.masilwide.com
'Architecture Project > Cultural' 카테고리의 다른 글
| Mountainfoot Base (0) | 2024.02.21 |
|---|---|
| Garderoben- und Clubgebäude, Hönggerberg (0) | 2024.02.05 |
| Zushan · Ji Xin Monastery · Wood Buddha Statue Museum (0) | 2024.01.02 |
| Chengdu Museum of Natural History (0) | 2023.12.22 |
| National Centre for Art, Crafts and Design (0) | 2023.12.21 |
마실와이드 | 등록번호 : 서울, 아03630 | 등록일자 : 2015년 03월 11일 | 마실와이드 | 발행ㆍ편집인 : 김명규 | 청소년보호책임자 : 최지희 | 발행소 : 서울시 마포구 월드컵로8길 45-8 1층 | 발행일자 : 매일



