
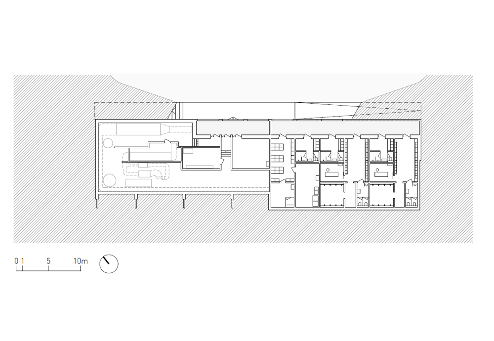
취리히 도심에서 멀지 않은 곳에 자리한 횡게르베르크 클럽하우스는 축구 선수를 위한 보금자리다. 프로젝트는 2017년 개최된 설계 공모에서 시작되었다. 한 지붕 아래 두 개의 매스를 살짝 어긋나게 배치하여, 선수와 관람객 모두
두 매스 사이를 대각선으로 오갈 수 있게 계획했다. 이 길을 따라 동쪽의 잔디 구장과 서쪽의 인조 잔디 구장도 연결된다. 르코르뷔지에(Le Corbusier)의 ‘건축적 산책’을 느낄 수 있는 공간이다.
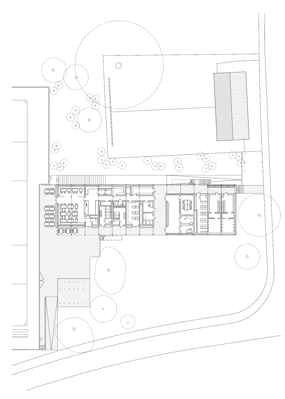
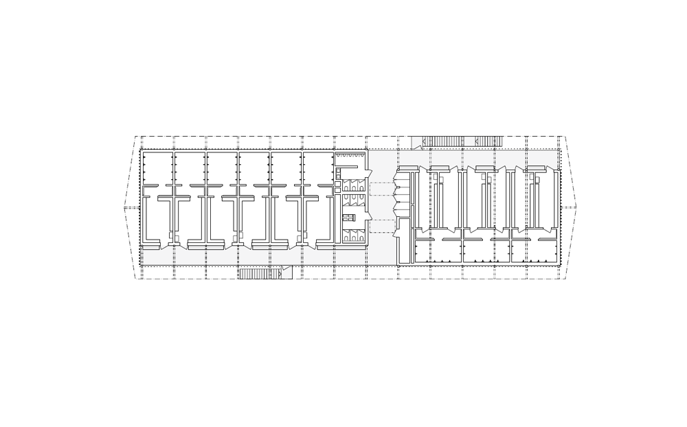
2층은 지붕에서부터 연결된 두 개의 철제 계단으로 오갈 수 있으며, 1층 중앙에 자리한 아케이드는 팀원과 코치의 집합 장소가 된다. 서쪽에는 클럽하우스 레스토랑을 배치하여 탁 트인 필드를 마주 보게 계획했다. 또한 기존 지형의 단차를 활용하여 북쪽에서 들어가면 지하 1층으로 출입할 수 있다. 이곳에는 1부 리그 선수 탈의실이 있으며, 선수와 심판은 관중과 분리된 대형 계단으로 이동한다. 차폐를 최소화하면서도 프라이버시를 보호하는 계획이다. 이러한 배치를 통해, 대지를 경제적으로 사용하고 기존 대지의 소나무도 대부분 보존할 수 있었다.
구조와 외장재는 목재로 설계한 것이 특징이다. 열네 개의 기둥과 보로 기본 프레임을 만들고, 여기에 목재로 사전 제작한 천장과 파사드 부재를 삽입했다. 2층의 스크린은 S 자 형태의 공용 통로를 따라 계획되어, 탈의실 문 앞을 차폐하는 효과를 준다. 또한 외벽과 자연스럽게 연결된 형태의 벤치를 디자인하여 사람들이 모여 이야기를 나누도록 했다. 외벽의 그림은 닉 헤스(Nic Hess)의 작품으로 외벽의 스크린과 파사드의 입체적인 형태를 한층 돋보이게 한다. 캐노피는 햇빛과 비바람을 피할 수 있는 공간이 된다.

















건축가 Mentha Walther Architekten
위치 스위스, 취리히
용도 운동시설
대지면적 3,488㎡
건축면적 650㎡
연면적 1,684㎡
규모 지하 1층, 지상 2층
건폐율 18.6%
용적률 48%
준공 2022. 1.
디자인팀 Jeanine Walther, Nicolas Mentha, Sinje Berneker, Mario Sanchez
구조엔지니어 Caprez Ingenieure AG
목구조엔지니어 Pirmin Jung Schweiz AG
MEP엔지니어 Mettler + Partner AG, BLM Haustechnik AG, WSP Suisse AG, Basler&Hofmann AG, EPB Schweiz AG
조경설계 S2L Landschaftsarchitekten BSLA SIA
조명설계 LLAL AG
협력사 Axet GmbH, Nic Hess
시공 Kohler + Borner Bauorganisation GmbH
발주자 Immobilien Stadt Zürich
사진작가 Beat Bühler Fotografie
해당 프로젝트는 건축문화 2023년 11월호(Vol. 510)에 게재되었습니다.
The project was published in the November, 2023 recent projects of the magazine(Vol. 510).
November 2023 : vol. 510
Contents : Records ‘Drawing the Future of East Asian Traditional Architecture’, 2023 Hanok Policy Symposium ‘동아시아 전통건축의 미래를 그리다’, 2023년 한옥정책 심포지엄 The ‘Diplomatic Venue’ Returns after 100 Years, De
anc.masilwide.com
'Architecture Project > Cultural' 카테고리의 다른 글
| Capital Heyuan · Pinggu Rental Housing Community Library (0) | 2024.03.04 |
|---|---|
| Mountainfoot Base (0) | 2024.02.21 |
| Zikawei library (0) | 2024.01.04 |
| Zushan · Ji Xin Monastery · Wood Buddha Statue Museum (0) | 2024.01.02 |
| Chengdu Museum of Natural History (0) | 2023.12.22 |
마실와이드 | 등록번호 : 서울, 아03630 | 등록일자 : 2015년 03월 11일 | 마실와이드 | 발행ㆍ편집인 : 김명규 | 청소년보호책임자 : 최지희 | 발행소 : 서울시 마포구 월드컵로8길 45-8 1층 | 발행일자 : 매일



