
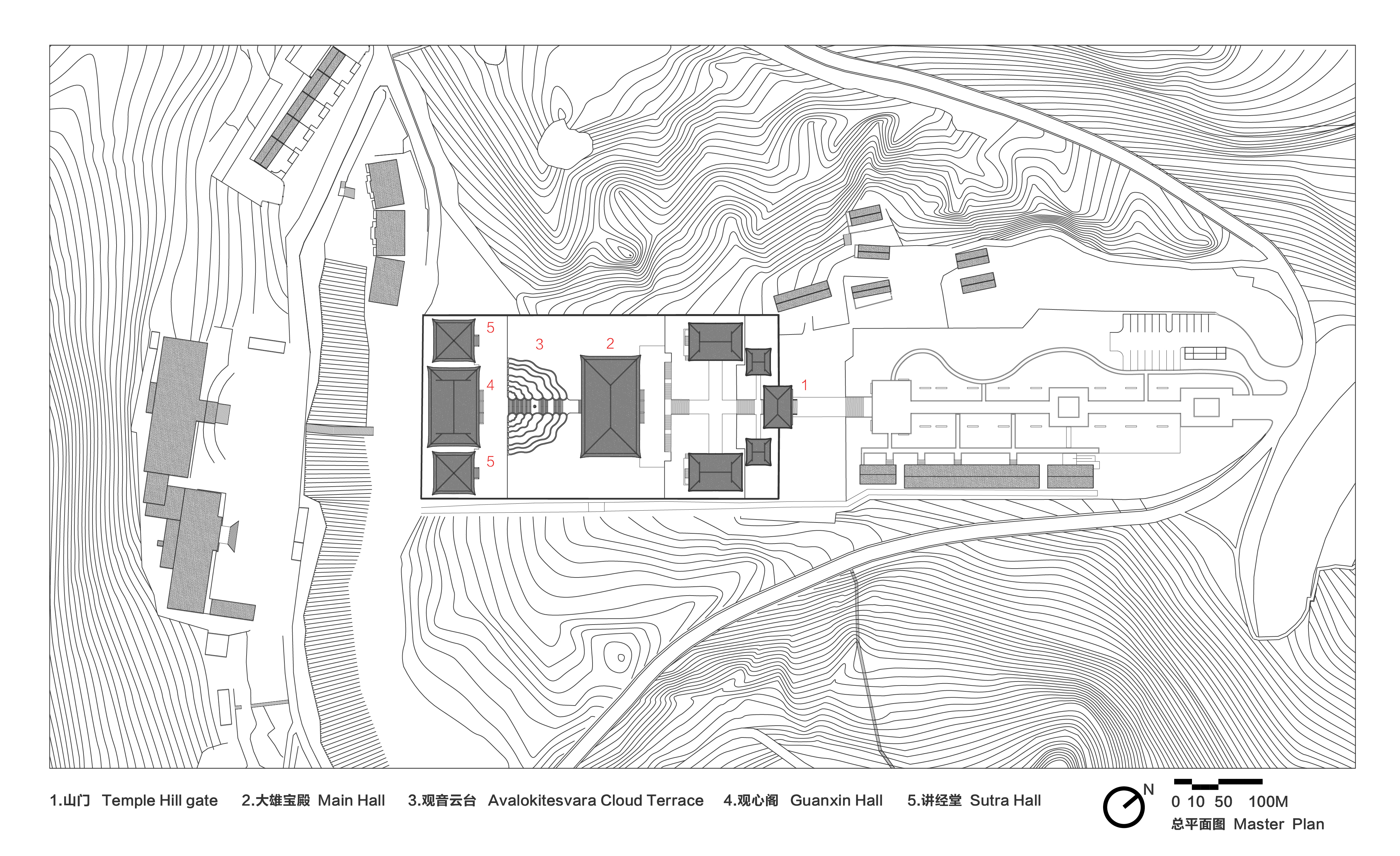
주산 지신사의 목불 박물관은 인테리어, 전시 및 시각 디자인, 조각, 조경, 조명 등 다양한 예술을 조합하여 만들어진
사유의 공간이다. 본당 뒤편의 박물관 진입로는 지형을 닮은 클라우드 테라스로 음상에 다가서는 종교적 체험임과 동시에
10m의 단차를 자연스럽게 극복하는 수단이다. 메인 홀의 목불 전시 공간은 ‘파고다’를 모티브로 디자인했다. 위로 갈수록
좁아지는 7개 층의 파고다는 불상을 수직으로 전시할 수 있어, 한정된 공간에서 다양한 크기의 불상 전시가 가능하다.
내부는 불교에서 우주를 상징하는 만다라 형상에서 착안했다. 탑 주변을 돌며 관람하도록 계획한 플랫폼은 탑을 도는 불교
의식과도 중첩된다. 인테리어 조명은 각 불상에 맞추어 계획했고 외부 창호에는 반투명한 필름을 부착하여 내부 조명의
효과를 최대화했다. 교육장으로 활용하는 부속실의 벽에는 금속판에 새긴 경전이 11m 천장까지 이어져 있고, 조명을
사용해 어둠 속에서 경전의 글씨가 빛나는 미래 지향적인 디자인을 적용했다. 목불 박물관 리노베이션을 통해, 지산사는
전통적인 절에서 한발 더 나아가 예술을 감상하고 철학과 지혜를 탐구하는 명상의 장소가 됐다.

The Zushan Ji Xin Temple's Wooden Buddha Museum was created by combining various arts, including interior design, exhibitions, visual design, sculpture, landscaping, and lighting. The entrance to the museum behind the main hall is a Cloud Terrace resembling the terrain, serving as a means to approach the spiritual experience and smoothly overcome a 10m level difference. The main hall's Buddha exhibition was designed with a “Pagoda” motif. The seven layers of the pagoda, narrowing as they rise, allow a vertical display of Buddha statues of various sizes in a limited space.
The interior draws inspiration from the mandala shape symbolizing the universe in Buddhism. The platform planned for circumambulation around the tower overlaps with Buddhist consciousness of circling. Interior lighting was planned to highlight each Buddha statue, and transparent film has been applied to external windows to maximize the effect of internal lighting. The education room, used as an annex, features scriptures engraved on metal plates attached to the walls extending up to the 11m ceiling, and a futuristic lighting design causes the scriptures shine in the darkness. Through the renovation, the Wooden Buddha Museum, Jusan Jishin Temple has evolved into a place for meditation, going beyond the traditional temple setting to appreciate art and explore philosophy and wisdom.












건축가 ARCHSTUDIO
위치 중국, 친황다오
연면적 1,657㎡
준공 2022
대표건축가 Han Wenqiang
디자인팀 Wang Tonghui
인테리어 Wang Tonghui, Cao Chong, Wei Jie, Xu Ye
구조엔지니어 Zhang Yong
MEP엔지니어 Jiang Mao, Zheng Baowei
조경설계 Wang Tonghui, Cao Chong, Han Fei
조명설계 Dong Tianhua
사이니지설계 Wang Tonghui, Liu Xuan
조각상설계 Qin Huaqin
시공 China Construction Eighth Engineering Division Corp., Ltd
발주자 Zushan Xinchao Tourism Development Co., Ltd.
사진작가 Jin Weiqi
해당 프로젝트는 건축문화 2023년 9월호(Vol. 508)에 게재되었습니다.
The project was published in the September, 2023 recent projects of the magazine(Vol. 508).
September 2023 : vol. 508
Contents : Records Architecture, Built from Empathy and Respect 이해와 존중을 바탕으로 지어지는 건축물들 Sketch Out the Urban Regeneration of Jinju, The 2nd 2023 Jinju Architecture Festival 진주 도시재생의 밑그림을 그리다,
anc.masilwide.com
'Architecture Project > Cultural' 카테고리의 다른 글
| Garderoben- und Clubgebäude, Hönggerberg (0) | 2024.02.05 |
|---|---|
| Zikawei library (0) | 2024.01.04 |
| Chengdu Museum of Natural History (0) | 2023.12.22 |
| National Centre for Art, Crafts and Design (0) | 2023.12.21 |
| Jaeun Multipurpose Village Hall (0) | 2023.12.08 |
마실와이드 | 등록번호 : 서울, 아03630 | 등록일자 : 2015년 03월 11일 | 마실와이드 | 발행ㆍ편집인 : 김명규 | 청소년보호책임자 : 최지희 | 발행소 : 서울시 마포구 월드컵로8길 45-8 1층 | 발행일자 : 매일



