
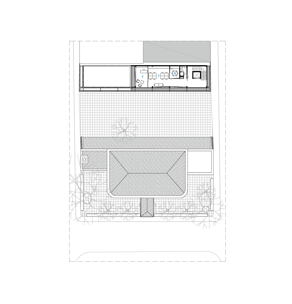
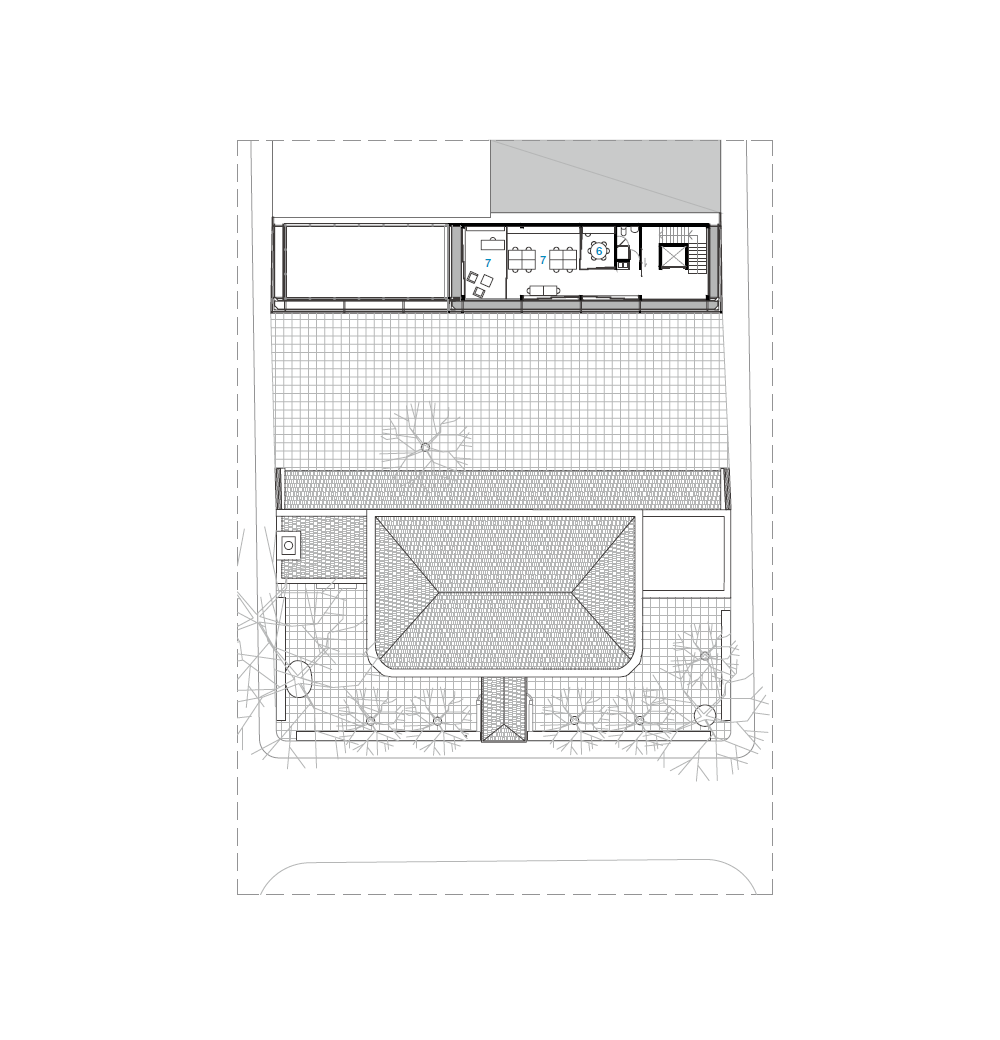
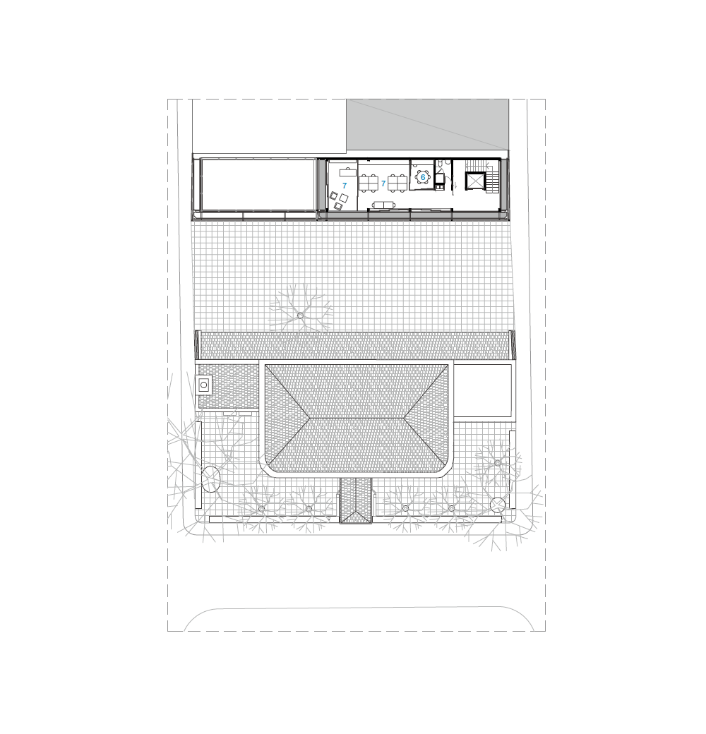
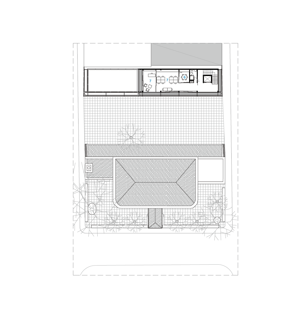
카보베르데 국립미술공예디자인센터는 공예, 예술, 디자인 분야의 새로운 비전을 제시하기 위한 새로운 공간으로 탄생했다. 민델루 지역에서 역사적으로 중요한 역할을 했던 기존 건축물을 개조 및 복원하며 뒷마당을 중심으로 새로 지은 건물과 연결된다. 신축 공간의 이중 환기 시스템은 특별한 공조 없이 내부 온도를 수동 매커니즘을 통해 수동적으로 제어하며 회전하는 덧창의 형태로 내부 빛과 공기 흐름을 변조한다.
카보베르데는 대서양 중앙에 위치한 군도 지역으로 의류, 식품, 석유 등 생활 전반에서 사용되는 제품들이 외부에서 유입되었다. 특히 양철통은 모든 분야에서 여러 용도로 사용되고 버려지는 재료다. 건축가는 외부 벽을 일부 허물며 도시를 향해 열린 파티오를 구성하며 양철통 뚜껑을 재료로 한 건물의 외피를 만들었다. 양철통을 건축 재료로 가공하는 과정은 지역 내 건설 작업장에서 장인들이 수행하고, 지역 주민들의 일상에서 쉽고 밀접하게 사용되는 재료를 건축 자재로 활용하며 순환 경제의 철학을 실현했다. 양철의 외피에 사용된 다양한 색상은 카보베르데의 작곡가이자 다양한 악기 연주자인 바스코 마틴스(Vasco Martins)가 참여한 음악과 대응한 디자인으로 시각적인 음악성을 전달한다.

The Cabo Verde National Centre for Art, Crafts and Design was created as a new space to present a new vision in the fields of crafts, art and design. The renovation and restoration of an existing structure that played a historically important role in the Mindelo area connects to the newly constructed building through the backyard. The new space’s dual ventilation system controls the internal temperature passively through manual mechanisms, without special air conditioning, and modulates internal light and airflow in the form of rotating shutters.
Cabo Verde is an archipelago in the middle of the Atlantic Ocean and everyday products such as clothing, food, and oil, were imported from outside. In particular, tin cans are a material that is used for various purposes in all sectors and is discarded. The architects demolished part of the exterior walls to create a patio that opens up to the city, and created the building’s shell using the lids of tin cans. The process of processing the tin cans into building materials was carried out by craftsmen in local construction workshops, and realized the philosophy of a circular economy by utilizing materials that are easily and intimately used in the daily lives of local residents as building materials. The different colors of the tin can skin convey a visual musicality, through a design that corresponds to the music of Cape Verdean composer and multi-instrumentalist Vasco Martins.






















건축가 Ramos Castellano Arquitectos
위치 카보베르데, 상비센트, 민델루
용도 주상복합
면적 1,265㎡
준공 2022. 7.
대표건축가 Eloisa Ramos, Moreno Castellano
디자인팀 (개축) Zico Lopes, Bruno Kenny, Edoardo Meneghin, Marvin Delgado, Danil Silva, Marco dos Anjos / (신축) Bruno Kenny, Edoardo Meneghin
엔지니어 Ilidio Alexandre, Daniele Salvadorini, Francesco Bini, Denise Martinse Ricardo Martins, Luis Delgado
재료 및 페인팅 Alex Da Silva, Bela Duarte, Manuel Figueira, Joao Fortes
컨설팅 Shrikar Bhave, Linda Lam, Ti Nene’, Giulia La Ganga, Concetta Cavallaro
발주자 Ministerio da Cultura e industrias creativas, Governo de Cabo Verde
사진작가 Sergio Pirrone
해당 프로젝트는 건축문화 2023년 9월호(Vol. 508)에 게재되었습니다.
The project was published in the September, 2023 recent projects of the magazine(Vol. 508).
September 2023 : vol. 508
Contents : Records Architecture, Built from Empathy and Respect 이해와 존중을 바탕으로 지어지는 건축물들 Sketch Out the Urban Regeneration of Jinju, The 2nd 2023 Jinju Architecture Festival 진주 도시재생의 밑그림을 그리다,
anc.masilwide.com
'Architecture Project > Cultural' 카테고리의 다른 글
| Zushan · Ji Xin Monastery · Wood Buddha Statue Museum (0) | 2024.01.02 |
|---|---|
| Chengdu Museum of Natural History (0) | 2023.12.22 |
| Jaeun Multipurpose Village Hall (0) | 2023.12.08 |
| DOLBOM Flower shop (0) | 2023.11.24 |
| Munsan-eup Community Center (0) | 2023.11.23 |
마실와이드 | 등록번호 : 서울, 아03630 | 등록일자 : 2015년 03월 11일 | 마실와이드 | 발행ㆍ편집인 : 김명규 | 청소년보호책임자 : 최지희 | 발행소 : 서울시 마포구 월드컵로8길 45-8 1층 | 발행일자 : 매일



