
팀버 햇은 건설용 장비 및 작업 플랫폼을 대여하거나 판매하는 회사 ‘할트 & 그루네발트(Hald & Grunewald)’의 본사 건물로 지어졌다. 목재로 만들어진 모자와 같은 외관에서 이름이 붙여진 팀버 햇은 탄화된 낙엽송 나무의 캐노피가 건물 전체를 둘러싼 독특한 외관을 보인다. 이는 특색있는 파사드를 제공함과 동시에 지역의 기후로부터 건물을 보호하는 역할을 한다.
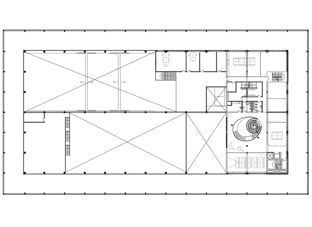
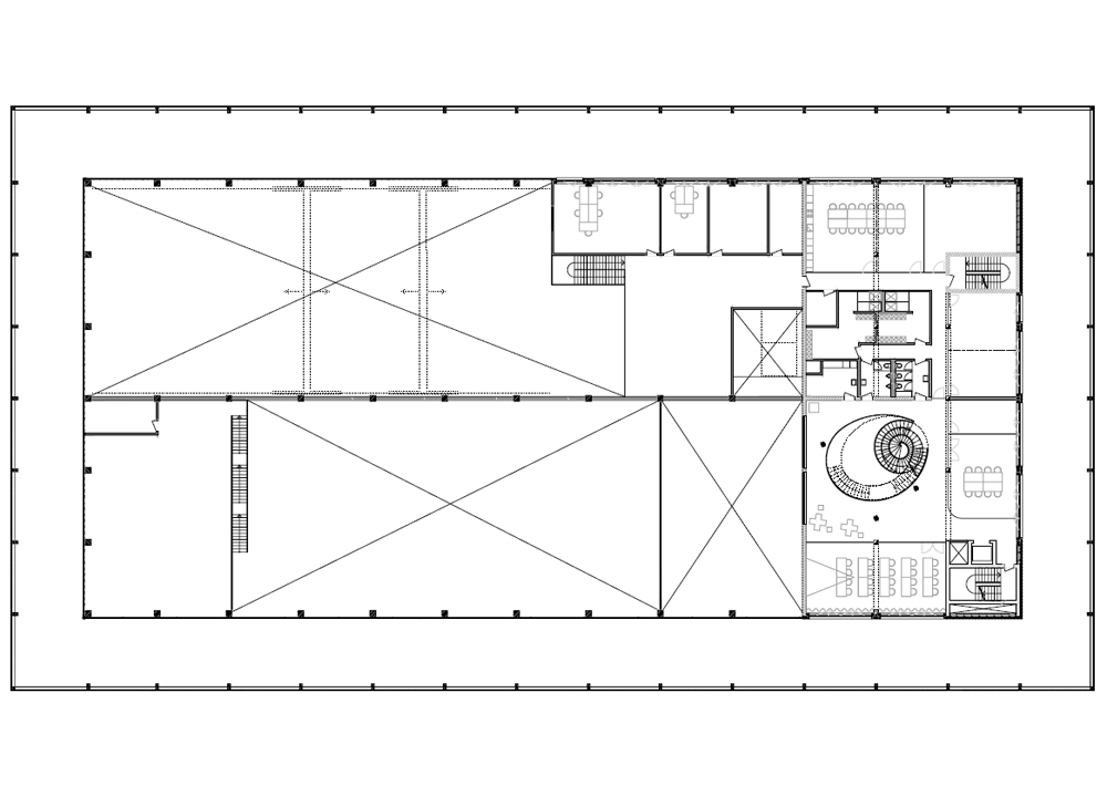
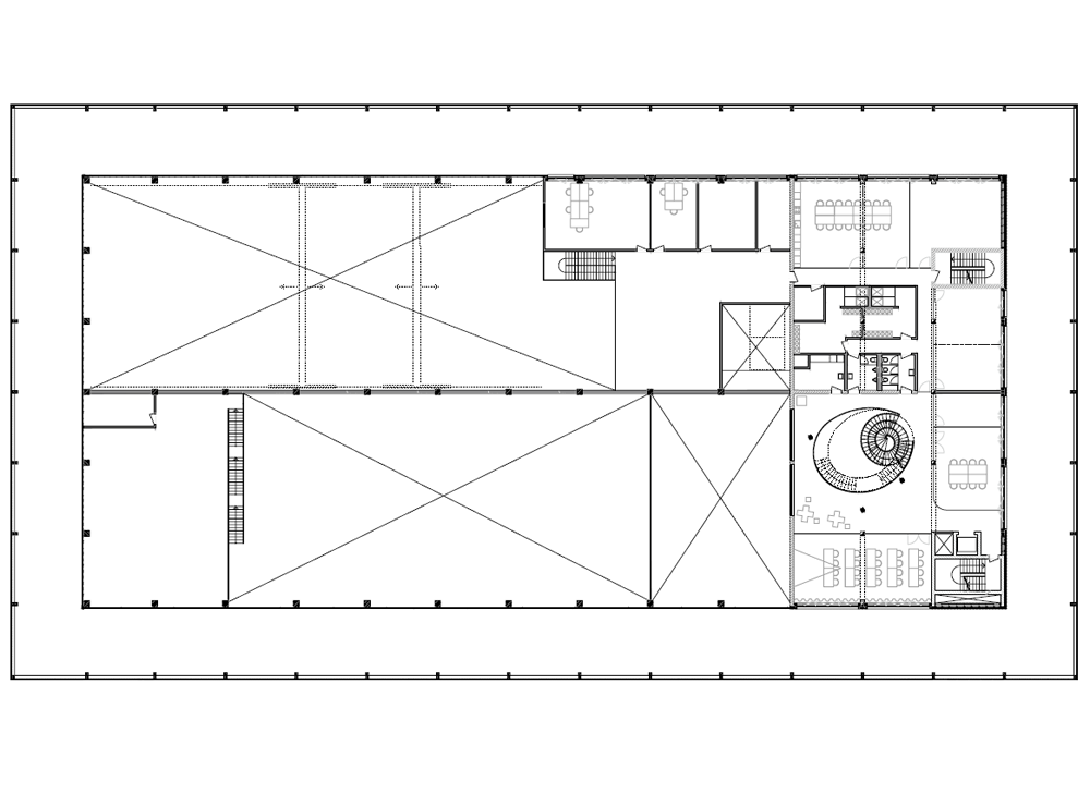
건축가는 약 90명의 직원들을 수용하고 중장비의 유지보수 및 수리 서비스를 진행할 수 있는 최적화된 공간을 계획하기 위해 기존의 작업동선을 분석하고 회사의 기능을 효과적으로 묶어서 배치했다. 공장 건물의 기둥, 빔, 바닥의 슬라브는 주로 글루램 빔에 의해 지지되는 교차 적층 목재(CLT)로 구성됐다. 동시에 공장 홀의 저층부는 노출 콘크리트를 사용하여 기계로 인한 손상을 방지하고, 콘크리트와 목재 프래임의 요소로 만들어진 독특한 파사드를 선보인다.
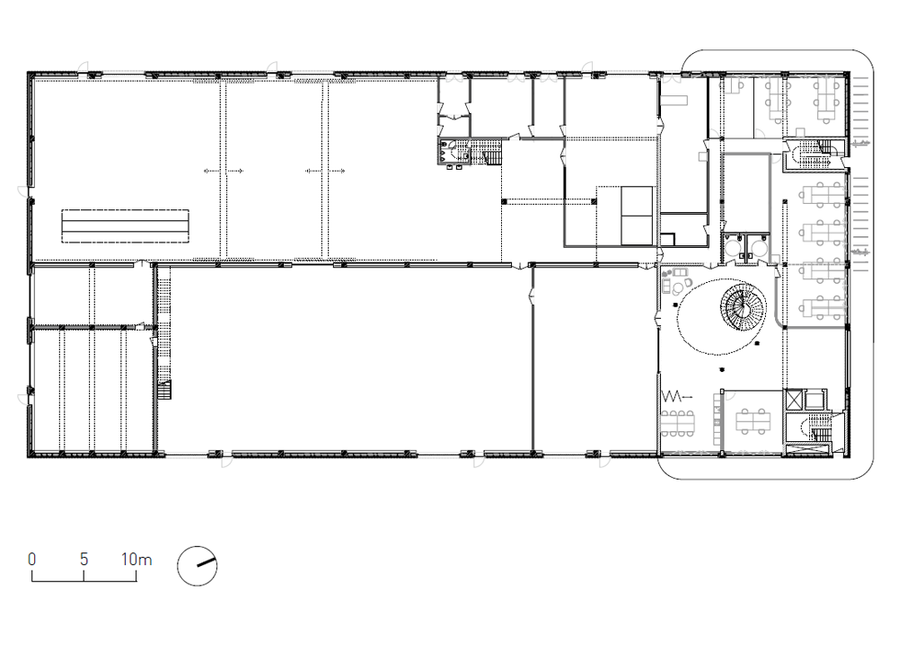
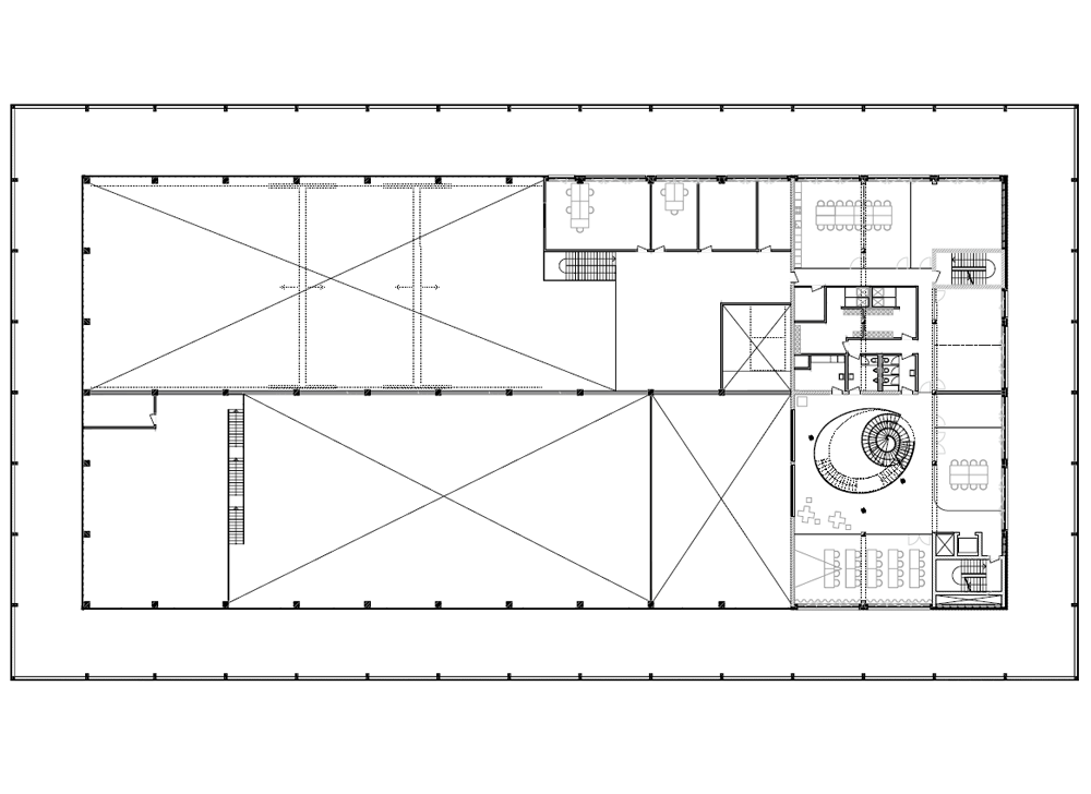
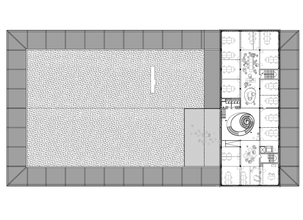
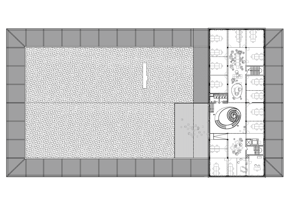
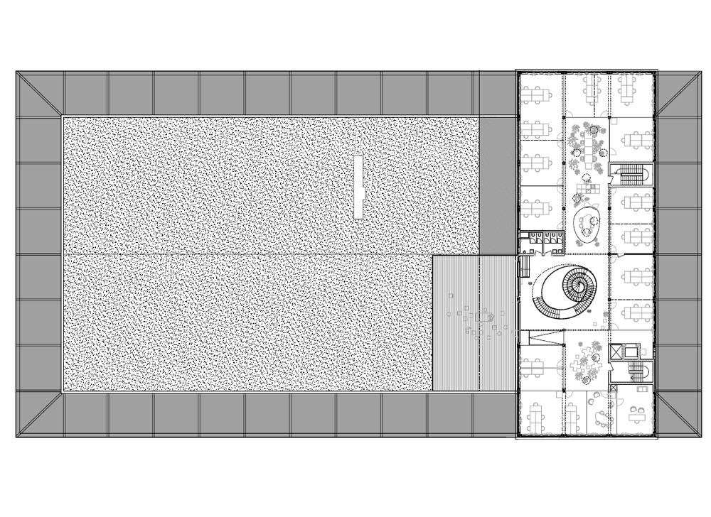
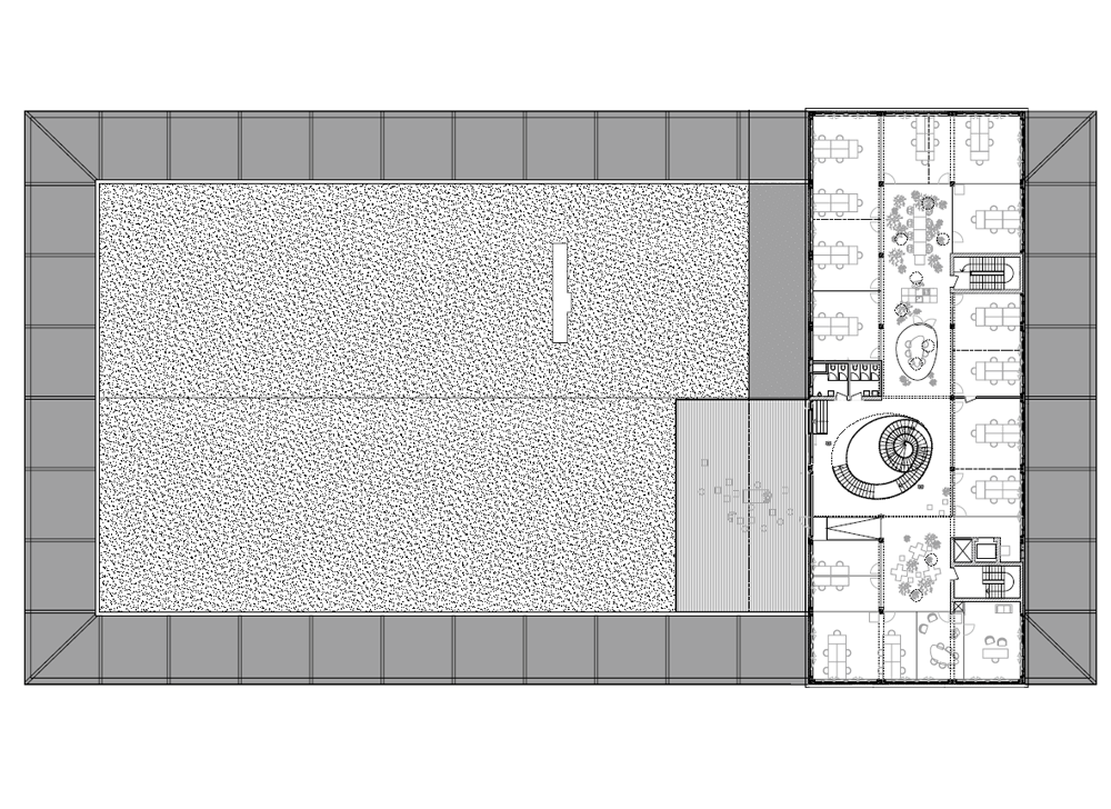
모든 작업을 할 수 있는 단일의 장소를 위해 10m의 높이를 지닌 홀을 중심으로 한 공장 건물과 3층 규모의 사무실 전용의 건물이 인접하여 평평한 입방체를 형성한다. 사무실 건물에는 6m씩 양쪽으로 뻗은 캔틸레버와 원주형의 캐노피가 연결되어 구조 단위를 형성한다. 아트리움의 나선형 계단은 세 개의 사무실을 연결하고 사무실, 교육실, 카페 등 직원들의 공간을 향한 개방된 시야를 제공하며 개방적이고 의사소통이 자유로운 작업 분위기를 조성했다.

Timber Hat was built as the headquarters of Hald & Grunewald, a company that rents and sells construction equipment and work platforms. Named for its hat-like appearance made of wood, the Timber Hat has a unique appearance with a canopy of charred larch wood surrounding the entire building. This serves to protect the building from the local climate while providing a distinctive façade.
The architects analyzed the existing workflow circulation and effectively grouped the company’s functions in order to plan an optimized space that would accommodate about 90 employees and where maintenance and repair services could be provided for heavy equipment. The columns, beams and floor slabs of the factory building are mainly composed of cross-laminated timber (CLT) supported by glulam beams. At the same time, exposed concrete was used throughout the lower level of the factory hall to prevent damage from machinery, which also presents a unique façade made of elements of concrete and wood frames.
To create a single place where all work can be done, a factory building centered on a 10-meter-high hall and a three-story office building are adjacent to each other, forming a flat cube. In the office building, a cantilever extending 6 meters on each side and a cylindrical canopy are connected to form a structural unit. A spiral staircase in the atrium connects the three offices and provides an open view toward employee spaces such as offices, training rooms, and a café, creating an open and communicative work atmosphere.













건축가 rundzwei Architekten BDA
위치 독일, 로텐부르크
대지면적 37,000㎡
연면적 4,900㎡
준공 2022. 12.
프로젝트리더 Kulrich Franke GmbH, Bau Consulting + Control
디자인팀 Paolo Bradicic, Marc Dufour-Feronce, Sunghoon Go, Asya Güney, Deborah Matter, Marie Nägele, Hannah Reckenthäler, Andreas Reeg, Shadi Zaghloul
MEP엔지니어 Janowski Ingenieure
소방시설컨설턴트 brandschutz plus
구조엔지니어 knippershelbig
전기엔지니어 elektro breitling
난방 및 배관 Gühring Heiz- und Sanitärtechnik
협업 및 시공 Heinrich Schmid, Holzbau Flack, Terhalle GmbH & Co. KG, Lindner SE, Mäder Office, Brüninghoff Holz GmbH & Co. KG, Lueb + Wolters GmbH & Co. KG, Hark Treppenbau GmbH, Brüninghoff GmbH & Co. KG, Kone GmbH, Wohnideen Schühle GmbH, Steudtner & Bantle Bau GmbH, Teckentrup, Heinz Hiller GmbH, Wilfried Steck, Gebrüder Rückert GmbH & C.o.KG
발주자 Hald & Grunewald GmbH
주계약자 Brüninghoff GROUP
사진작가 Gui Rebelo / Estúdio Elefante
해당 프로젝트는 건축문화 2023년 8월호(Vol. 507)에 게재되었습니다.
The project was published in the August, 2023 recent projects of the magazine(Vol. 507).
August 2023 : vol. 507
Contents : Records Four Architects from Three Teams Selected for ‘2023 Korea Young Architects Award’ 2023 젊은 건축가상에 선정된 4명의 건축가들 : EXHIBITION / COMPETITION / BOOKS : SKETCH Mistakes, New Beginnings / Diego Alejandro Oquen
anc.masilwide.com
'Architecture Project > Office' 카테고리의 다른 글
| Zoetrope (0) | 2023.12.13 |
|---|---|
| CCD Global Headquarters (0) | 2023.11.29 |
| FRAME China Office (0) | 2023.10.30 |
| PIG HOUSE (0) | 2023.10.27 |
| AMC HQ (0) | 2023.10.09 |
마실와이드 | 등록번호 : 서울, 아03630 | 등록일자 : 2015년 03월 11일 | 마실와이드 | 발행ㆍ편집인 : 김명규 | 청소년보호책임자 : 최지희 | 발행소 : 서울시 마포구 월드컵로8길 45-8 1층 | 발행일자 : 매일


