
도심지의 대지는 공공공간을 마련하기에는 제한적이다. 시민들의 요구는 다변화되고 있지만, 상업적 이익을 추구하는 민간 개발의 경우 공공을 위한 배려는 우선 요소가 아닌 경우가 대부분이다. AMC 역삼 신사옥은 역삼동의 다른 업무시설과 마찬가지로 변화에 맞춰 수익성을 고려한 업무시설로 계획되었다. AMC 역삼 신사옥 설계에서 빠르게 변화하는 강남의 도시환경에서 상업적 개발의 목적과 맥락을 극대화 하는 동시에, 도시가로에서 연장되는 경계 없는 공공 공간을 확보하여 상업적 이익과 공공공간의 제공이 이율배반적 관계가 아님을 증명하려고 시도하였다.
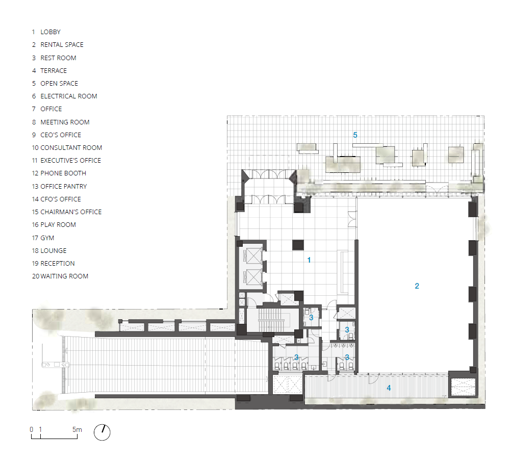
강남구 역삼동의 대지는 9호선 언주역과 경복아파트 교차로 사이에 위치하며, 주변은 병원, 업무시설, 호텔, 상업시설, 주거 단지 등 중간 규모의 건물들이 느슨하게 모여있다. 봉은사로는 테헤란로와 달리 3종주거지역이며, 봉은사로의 노변에 한해 일반상업지역으로 구성되어 있어, 중형 규모의 업무시설과 상업시설이 주로 들어서 있다. 추후 개발을 고려하더라도 3종주거지역에서의 용적률에서 기인하는 인접대지의 개발 규모 제한으로 인해 신사옥의 남측은 인접한 충현교회의 조망을 제공할 수 있을 것으로 기대했다.
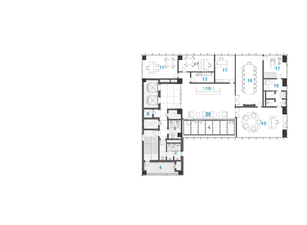
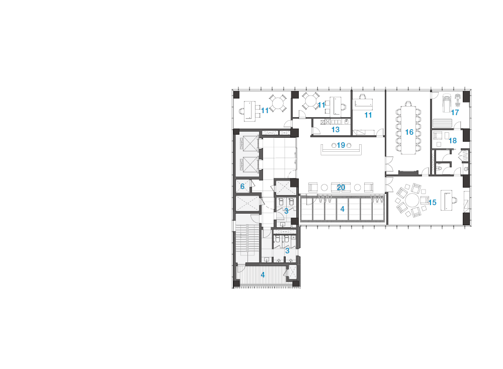
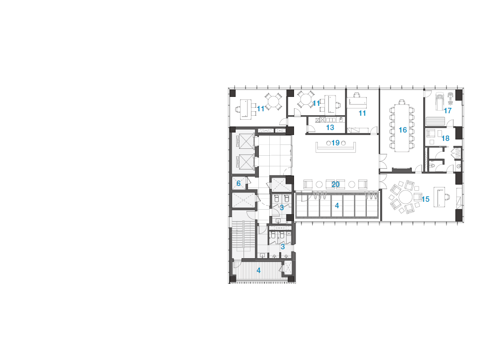
대지는 코너에 상업시설 인접대지를 가지고 있는 좌우가 뒤집힌 ‘ㄴ’자 형태의 땅이다. 이면도로인 봉은사로 34길에 차량 진출입구를 보행자출입구와 분리 배치하여 봉은사로를 향한 신사옥의 입면은 고스란히 보행자를 위해 확보하고, 3m 건축선으로부터 5m가 넘는 추가적인 셋백을 적용하여, 공공공간의 규모는 대지가 수용할 수 있는 수준에서 최대화했다. 그리하여 봉은사로의 가로에서 이례적으로 깊이 8m가 넘으며 가로에 면한 공공을 위한 포켓 조경공간이 형성됐다. 봉은사로의 가로에서 후퇴된 이례적 스케일의 공공공간 확보는 보행자가 신사옥에 접근할 때 건축물보다도 우선적으로 인지하는 요소가 된다.
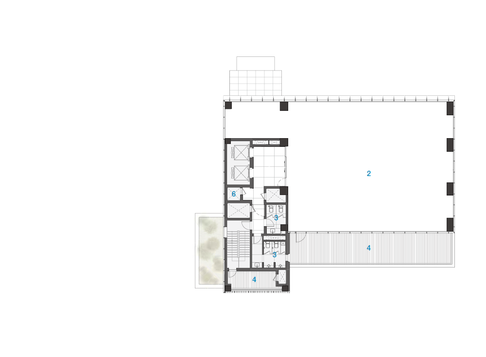
조경요소와 벤치로 구성된 공공 공간은 시민들에게 쉼터와 소통의 장소를 제공함으로써 근린생활 시설과 사옥 내부로 공공을 유입한다. 후면부 인접대지의 단차로 인한 경계부의 옹벽과 신사옥의 사이공간은 근린생활시설 후면부에서 접근 가능하며, 드러난 옹벽부에는 석재 마감을 적용하고 대나무를 식재하여 이용자들에게 작은 조경공간을 제공한다. 더불어 2층의 테라스 공간과 함께 신사옥의 후면부에서 계단식 정원으로 기능한다.



















건축가 이재영(인터페이스 스튜디오, 홍익대학교)
위치 서울특별시 강남구 봉은사로 222호
용도 업무시설
대지면적 1,108.10㎡
건축면적 509.01㎡
연면적 4,948.08㎡
규모 지하 5층, 지상 13층
건폐율 45.94%
용적률 446.54%
설계기간 2018. 4. - 2020. 7.
시공기간 2020. 8. - 2022. 12.
준공 2022. 12.
대표건축가 이재영(인터페이스 스튜디오, 홍익대학교)
프로젝트건축가 이재영(인터페이스 스튜디오, 홍익대학교)
디자인팀 이재영, 이다원, 이유진, 박혜나
구조엔지니어 Han Structural Engineering & Construction
기계엔지니어 Sunhwa Engineering Co. Ltd
전기엔지니어 Sunhwa Engineering Co. Ltd
토목엔지니어 CETS Engineering Co. Ltd
시공 TRACON Co. Ltd
발주자 AMC Semichem Co. Ltd
사진작가 김창묵
해당 프로젝트는 건축문화 2023년 7월호(Vol. 506)에 게재되었습니다.
The project was published in the July, 2023 recent projects of the magazine(Vol. 506).
July 2023 : vol. 506
Contents : Records First Step in Pre-Planning, Change Future School with User Participatory Design 사전기획의 첫걸음, 사용자 참여 디자인으로 내일의 학교를 바꾸다 Look Forward to 100 Years: Songpa Public Housing Design Competition
anc.masilwide.com
'Architecture Project > Office' 카테고리의 다른 글
| FRAME China Office (0) | 2023.10.30 |
|---|---|
| PIG HOUSE (0) | 2023.10.27 |
| K-Project (0) | 2023.09.22 |
| MST.co HQ (0) | 2023.09.08 |
| "CUBE" | XIAOSHAN INNOVATION POLIS·PIONEER VALLEY (0) | 2023.09.04 |
마실와이드 | 등록번호 : 서울, 아03630 | 등록일자 : 2015년 03월 11일 | 마실와이드 | 발행ㆍ편집인 : 김명규 | 청소년보호책임자 : 최지희 | 발행소 : 서울시 마포구 월드컵로8길 45-8 1층 | 발행일자 : 매일



