
막다른 골목길과 부정형의 필지
대지는 부천시 괴안동으로 역곡역과 인접한 땅이다. 주변으로는 저층형의 다세대 및 다가구 주택이 밀집해 있고, 동측으로는 유한대학교가 있다. 안곡로의 막다른 골목길에 있어 도로변에서의 소음에 대한 방해를 받지 않고 안정된 업무공간을 마련할 수 있는 위치이다. 다만 막다른 도로의 길이가 35m 이상으로 6m의 도로폭을 확보하면서, 건축선이 다소 후퇴하여 기다란 코끼리 코 같은 형상의 건축물이 되었다. 사옥은 폭이 좁고 동서방향으로 긴 형태다.
프로그램의 조율
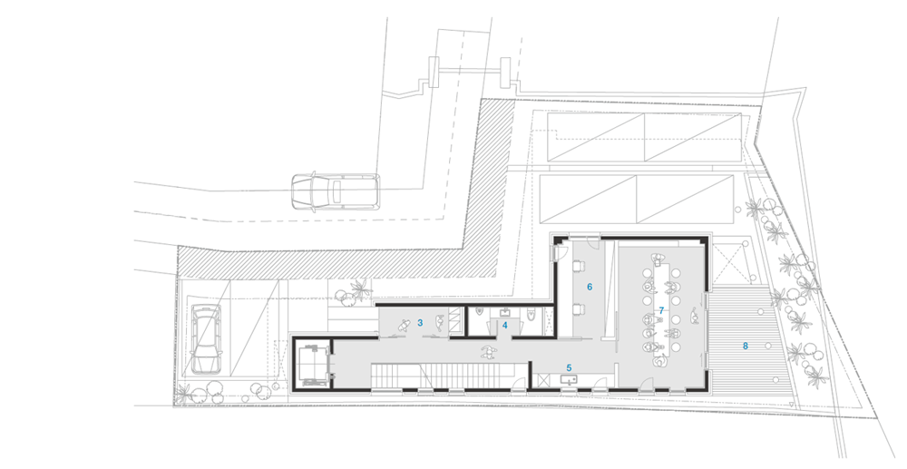
제어 및 계측관련 기기를 개발하고 생산하는 주식회사 엠에스티는 20여 명의 젊은 직원들이 이끄는 기업이며, 엠에스티는 처음 창업했던 동네로 사옥을 짓고 돌아온 것이다. 각 부서의 층별, 평면 조닝을 계획하면서 업무 비중이 높은 상품 생산과 출하의 효율성을 우선적으로 검토했다. 각 부서 사이에 업무 네트워크를 조사하고, 관계가 밀접한 부서들은 근거리에 배치하여 업무의 흐름을 원활히 하고자 했다. 또한, 회사 내에서 구성 인원이 많은 부서는 일조에 의한 높이 제한의 영향을 적게 받는 저층부에 배치하여 전용 면적을 최대한 활용할 수 있도록 했다.
날 것의 풍경
사옥은 주변 건물보다 돋보이고 화려하기보다 주거지에 보다 안정적으로 자리잡기를 바랐다. 외부 마감재는 유사한 성격을 지닌 두 가지의 재료로 정리했다. 가장 큰 면적을 구성하는 마감재는 콘크리트 벽돌이다. 사용된 벽돌은 내부의 종석이 드러나도록 절단되었으며, 모서리에서 벽돌의 크기를 다르게 하여 줄눈이 불규칙적이며 자연스러운 리듬감을 준다. 줄눈 시공 당시 줄눈재를 넣고 굳기 전에 다시 표면을 긁어내는 방식으로 벽돌이 지닌 거친 질감이 자연스럽게 연출했다. 외벽을 이루는 또 다른 마감재는 EPS 문양거푸집 콘크리트다. 문양 거푸집 시공을 위해 중단열 공법이 적용됐고, EPS 폼의 문양이 그대로 드러나도록 했다. 세로로 긴 콘크리트 문양은 시간대에 따라 다른 그림자가 드리워지고, 시시각각 변하는 건축물의 표정을 만든다. 벽돌과 문양 거푸집 콘크리트의 유사한 색상은 건축물의 전체적인 표정을 통일감을 가지도록 하면서도 각각의 재료가 지닌 질감과 구법 등이 솔직하게 드러낸다.
오랜 시간 비워진 채로 방치되어 있던 땅에 들어선 엠에스티 사옥은 막다른 골목길과 정리되지 않은 주변의 어수선한 가로 풍경 가운데 기존의 거주 질서를 존중하며 정연하고 차분한 모습을 하고 있다. 건축물은 이렇게 지역 주민들과 마주하고 골목길에 새로운 활기를 더한다. 엠에스티라는 회사가 처음 설립된 동네에서 회사의 모든 구성원에게 불편함없이 작동하는 공간을 통해 업무 효율을 지속적으로 높여가고, 지역사회의 일원으로 제 역할을 해낼 수 있기를 희망한다.



















건축가 (주)건축사사무소 서가
위치 경기도 부천시 안곡로 198-6
용도 근린생활시설
대지면적 359.4㎡
건축면적 208.2㎡
연면적 796.76㎡
규모 지하 1층, 지상 5층
건폐율 57.93%
용적률 174.73%
준공 2022
대표건축가 오승현, 박혜선
프로젝트건축가 오승현, 박혜선
시공 (주)엔원종합건설_위성수, 권기원
발주자 주식회사 엠에스티
사진작가 STUDIO TEXTURE ON TEXTURE
해당 프로젝트는 건축문화 2023년 6월호(Vol. 505)에 게재되었습니다.
The project was published in the June, 2023 recent projects of the magazine(Vol. 505).
June 2023 : vol. 505
Contents : Records ‘Design Competition’, Seoul’s Dreams to Have a Global Urbanscape 서울시, ‘디자인 공모’ 첫 도입, 세계적인 도시경관을 꿈꾸다 <SKY PROJECT> Pavilion, Open to the Seoul <하늘소所>, 서울을 향
anc.masilwide.com
'Architecture Project > Office' 카테고리의 다른 글
| AMC HQ (0) | 2023.10.09 |
|---|---|
| K-Project (0) | 2023.09.22 |
| "CUBE" | XIAOSHAN INNOVATION POLIS·PIONEER VALLEY (0) | 2023.09.04 |
| NEW OFFICE IN YURIAGE (0) | 2023.08.30 |
| OMIYA WARD OFFICE · OMIYA LIBRARY (0) | 2023.08.25 |
마실와이드 | 등록번호 : 서울, 아03630 | 등록일자 : 2015년 03월 11일 | 마실와이드 | 발행ㆍ편집인 : 김명규 | 청소년보호책임자 : 최지희 | 발행소 : 서울시 마포구 월드컵로8길 45-8 1층 | 발행일자 : 매일



