
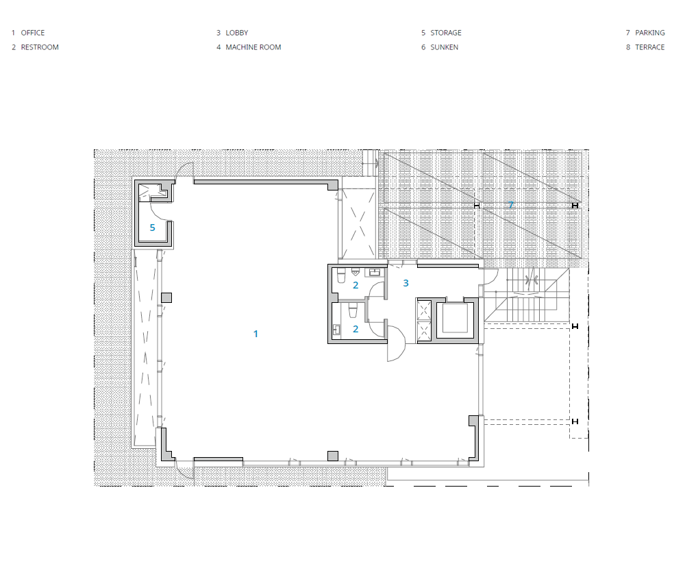
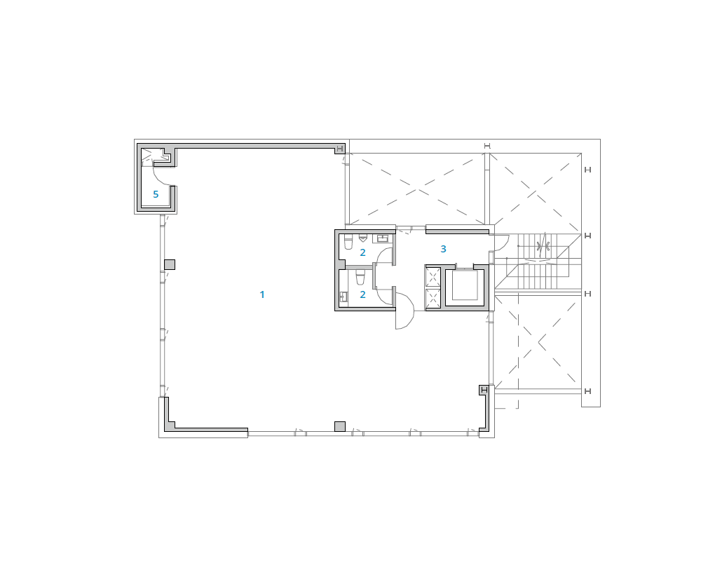
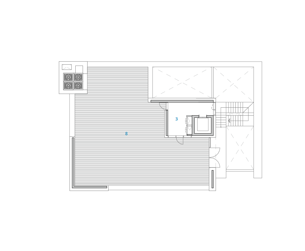
조이트로프는 유튜브 콘텐츠를 만드는 크리에이터를 위해 만들어진 공간으로 다채로운 공간 경험과 창의적인 생산성 향상을 추구한다. 건축가는 크리에이터가 자극과 영감을 받고 여유를 누릴 수 있는 공감각적 경험을 벽, 선큰, 계단이라는 단순한 건축 어휘로 구상했다. ‘조이트로프’는 여러 장의 그림을 회전시켜 움직이는 환영을 연출하는 초기 애니메이션 기구로, 속을 들여다보면 그림이 계속 바뀌며 장면이 움직이는 듯한 착각이 생긴다. 주거지 깊숙한 곳에 자리 잡은 이 건축물은 겉에서는 무심한 벽으로 보이지만, 내부를 탐험하다 보면 안팎의 경계가 허물어지는 듯한 특별한 경험을 하게 된다.
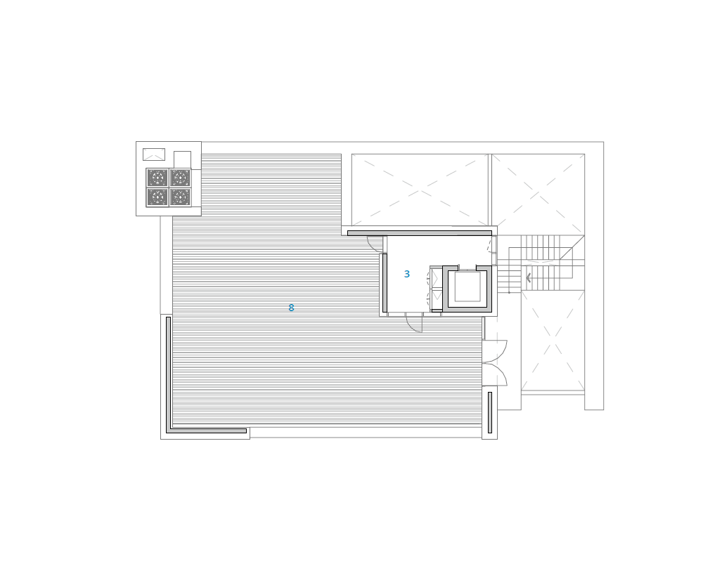
벽은 사용자의 위치에 따라 달라지는 편집된 풍경을 보여 주고, 일조의 시간대에 따라 다채로운 그림자를 연출하여 생경하게 느껴지는 스크린이 되기도 한다. 업무 시간 동안 마주하는 지루한 벽이 아니라 일상의 틈에 시선을 멈추고 ‘감상하는 벽’이 되길 바랐다. 가장 중요한 촬영 스튜디오는 넓은 공간과 높은 층고를 위해 지하 2층에 배치하였다. 지하 공간에 과감하게 3개의 선큰을 교차로 배치하여 빛을 끌어 들이고, 자연 환기가 가능한 쾌적하고 에너지 효율이 높은 환경을 계획하였다. 계단은 도로에 면한 주차장과 선큰의 여유 공간에 마련된 건축물의 진입로와 겸한다. 계단은 양옆이 열려 있어 마치 공중을 걷는 듯하다. 계단 끝의 서울 스카이라인이 보이는 전망대와 넓은 데크는 탁 트인 풍경 속에서 비일상의 여유를 주리라 생각한다.

Zoetrope is a space designed for creators who make content for YouTube, with the goal of creating a diverse spatial experience and enhancing creative productivity. The architects envisioned a synesthetic experience where creators could be stimulated, inspired, and relaxed, using simple architectural vocabulary of walls, sunkens, and stairs. The ‘zoetrope’ is an early animation device that rotates multiple images to create the illusion of movement. When you look inside, the images keep changing, creating the illusion of a moving scene. Nestled deep within a residential neighborhood, the building appears to be an indifferent wall from the outside, but exploring its interior creates a unique experience where the boundaries between inside and outside seem to dissolve.
The wall shows an edited landscape that changes depending on the user’s location, and different shadows are cast depending on the time of day, creating a screen that feels unfamiliar. The architects wanted it to be a ‘wall of admiration’ where one can rest their gaze within moments of daily life, rather than a boring wall to face during work hours. The most important filming studio is located on the second basement level for large space and high floor height. Three sunkens were boldly arranged crosswise in the underground space to bring in light and create a comfortable, energy-efficient environment with natural ventilation. The stairs serve as an access to the parking lot adjacent to the street and the building that sits in the space between the sunken levels. They are open on both sides, making it feel like walking on air. An observation deck with a view of the Seoul skyline at the end of the staircase and a spacious deck provide an extraordinary sense of relaxation amidst the panoramic landscape.














건축가 CIID
위치 서울시 강남구 봉은사로
용도 근린생활시설
대지면적 423.10㎡
건축면적 210.91㎡
연면적 867.56㎡
규모 지하 2층, 지상 2층
건폐율 49.84%
용적률 98.94%
설계기간 2019. 5. - 2020. 1.
시공기간 2020. 1. - 2021. 4.
준공 2021. 4.
대표건축가 주익현
프로젝트건축가 유재준
구조엔지니어 SDM구조기술사사무소
기계/전기엔지니어 수양엔지니어링
시공 라우종합건설(주)
사진작가 송유섭, CIID
해당 프로젝트는 건축문화 2023년 9월호(Vol. 508)에 게재되었습니다.
The project was published in the September, 2023 recent projects of the magazine(Vol. 508).
September 2023 : vol. 508
Contents : Records Architecture, Built from Empathy and Respect 이해와 존중을 바탕으로 지어지는 건축물들 Sketch Out the Urban Regeneration of Jinju, The 2nd 2023 Jinju Architecture Festival 진주 도시재생의 밑그림을 그리다,
anc.masilwide.com
'Architecture Project > Office' 카테고리의 다른 글
| ORIGINAL CONCEPT Studio Office (0) | 2024.01.25 |
|---|---|
| Sächsische Aufbaubank (SAB) (0) | 2023.12.20 |
| CCD Global Headquarters (0) | 2023.11.29 |
| Timber hat (0) | 2023.11.17 |
| FRAME China Office (0) | 2023.10.30 |
마실와이드 | 등록번호 : 서울, 아03630 | 등록일자 : 2015년 03월 11일 | 마실와이드 | 발행ㆍ편집인 : 김명규 | 청소년보호책임자 : 최지희 | 발행소 : 서울시 마포구 월드컵로8길 45-8 1층 | 발행일자 : 매일



