
Sawo Rontgen occupies the front yard of an existing house in a residential area with a strong tie to medical facilities. Searching for a unique identity for the second home of Sawo Coffee, we took the location’s rontgen street name as an identity generator and play around with the visual quality of rontgen.
Exploring different modes of transparency to achieve rontgen-like character, glass brick and acid glass were used as the main materials. The glass bricks arranged as a floating box demarcating the front yard effectively as a space for the cafe, forming a pseudo-boundary. Acid glass were used as the skin of the pavilion and covers elements from the existing house, adding an extra layer to the existing house without making significant changes. The two materials juxtaposed with both the structural and natural elements, resulting in a broad spectrum of visual transparency we wanted to achieve. The structure uses exposed H-beam steel in hot-dip galvanized finish. The bare structural elements along with the blurred transparency of the glass brick and the acid glass meant to resemble the skin and bone quality of the rontgen visual.
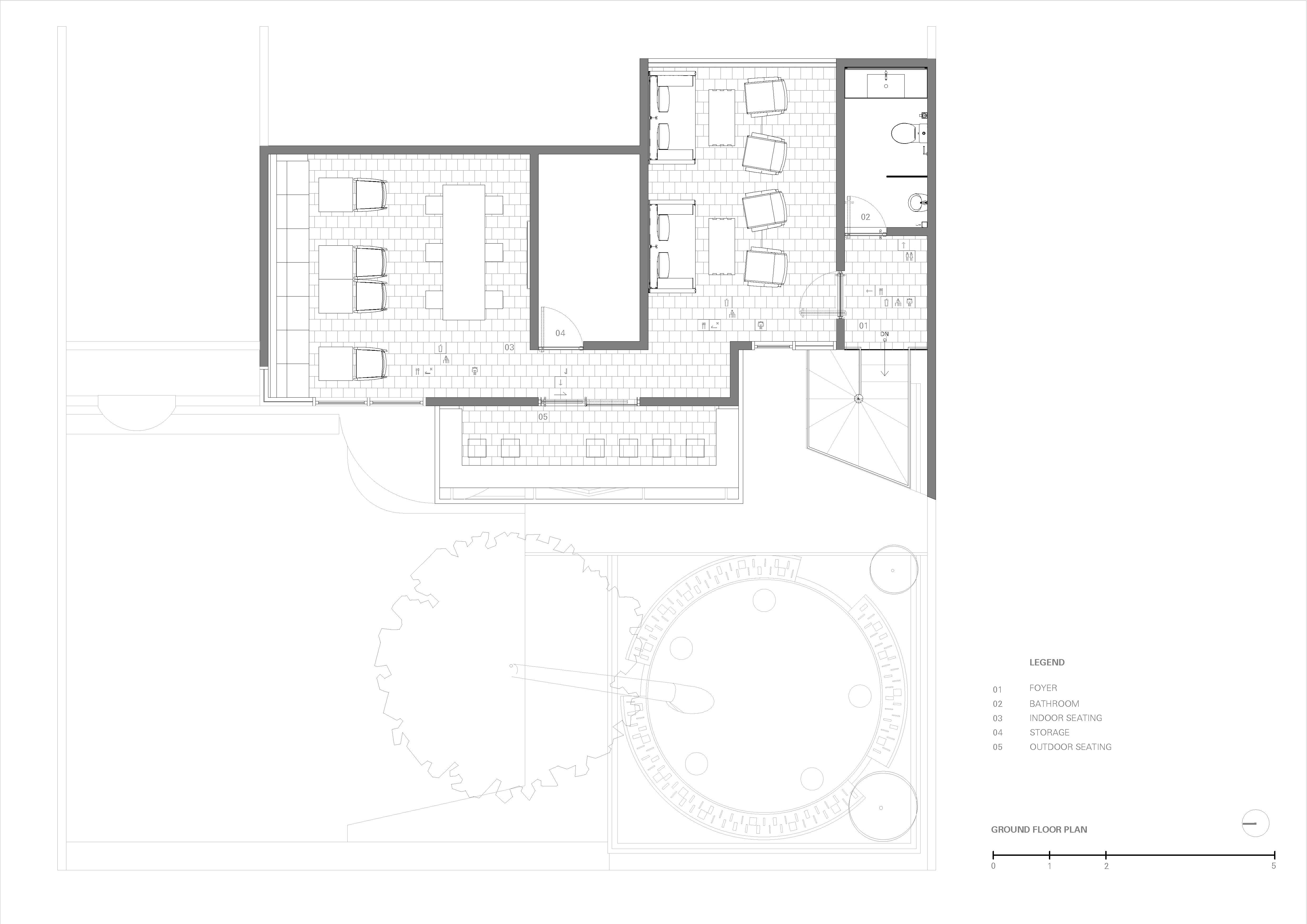
The glass pavilion contains a stark white coffee bar, a signature of Sawo Coffee, serving customers before they enter the cafe area. Hidden inside the box, is an outdoor seating of a circular shape, taking cues from the logo. Its strong form invokes a calming atmosphere, an informal space in dialogue with the architecture. Beside the pavilion a steel staircase is placed, giving access to the acquired room on the upper floor which serves as the indoor seating area.
The glass bricks are arranged in a zig-zag manner to ensure a stronger connection and more even weight distribution. Later the bricks were stretched, creating vertical gaps between the bricks, allowing airflow in and out the glass brick wall and also saving the material usage by twenty percent.
The pattern that was a result of a pragmatic approach then becomes a set of rules that are carried out throughout the space. The repercussion could be found in the circular outdoor seating and the tiles flooring on the indoor seating. The environmental graphic design system applied following said rules by inserting the graphic design elements which form is in harmony with the architectural pattern.















Design : dhaniesal
Location : Bandung, Indonesia
Site area : 261㎡
Building area : 117㎡
Gross floor area : 117㎡
Construction : Lion Earth Construction
Completion : 2021
Photographer : KIE, Salman Rimaldhi
'Interior Project > Cafe&Restaurant' 카테고리의 다른 글
| Lolly-Laputan Kids Café (0) | 2023.04.20 |
|---|---|
| KELPL (0) | 2023.04.17 |
| zodiac (0) | 2023.04.07 |
| Otsu seiromushi (0) | 2023.04.06 |
| Peer coffee roasters (0) | 2023.04.05 |
마실와이드 | 등록번호 : 서울, 아03630 | 등록일자 : 2015년 03월 11일 | 마실와이드 | 발행ㆍ편집인 : 김명규 | 청소년보호책임자 : 최지희 | 발행소 : 서울시 마포구 월드컵로8길 45-8 1층 | 발행일자 : 매일



