
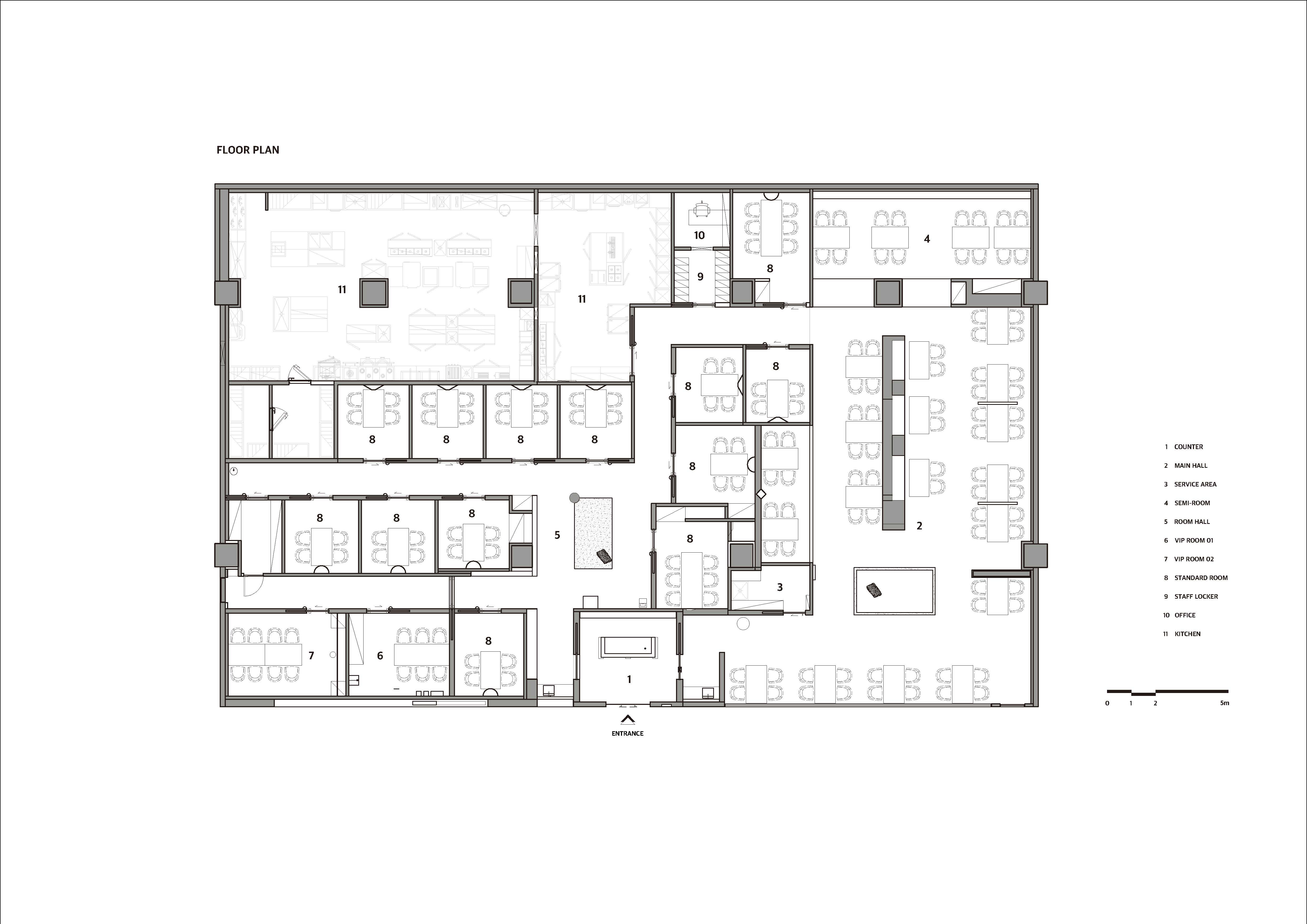
Designstudiominwoo* is designed to make two spaces feel different under the concept of "TIMELESS MODERNITY," which does not change over time. The world from the entrance through two roads is the same, but it gives a different feeling. The first hall space, which entered through the fork, reflected dimly the figures with the light falling from the high ceiling, imagining fog in the pond. A quiet stone work is located on the pond, creating an atmosphere of space. An object with different physical properties made of triangular horns becomes a point of space. The second room space of the forked road is reminiscent of the light from the wall and reflected through the trees, expressing the beauty of soft light. The space composition of Otsuseiromushi consists largely of an entrance, a hall, a room, and a kitchen. A considerable area of 210PY was largely classified into holes and rooms (15ea), and scenes in different spaces were created.
In the façade, the quiet visual attention of the reeds is drawn, and the light of the counter wall welcomes customers. The ceiling of the main hall originated from a different shape of the existing space, but this condition was used to express the geometric shape and ceiling facility structure as it is to realize the original architecture. Different heaven and earth for each hall space can experience various synesthesia from the customer's point of view of the space. At the beginning of the interior, in order to give a point element, the ceiling object and the arrangement of artist Lee Tae-soo's "stone composition" work were intended to express quietness. The finishing material of the wall used warm-toned special paint to express the naturalness of the material, and in the semi-room inside the hall, wood material was used to give another space independence within the space. In the semi-room, a front barisole was used to express minimalism. The central wall has a built-in table configuration that may look empty, increasing the density of the space.
Next, the hall in the room area was designed using the structure of Park Gong-cheon-jeong. Although the high altitude of the space was utilized, the grand confrontation with the hall area gave another spatial fun with the design. In the center, the works of Lee Tae-soo are arranged in the same way as the hall, and are used as a large waiting space. The entrance wall creates an impactful space using a printing barisole that expresses the concept, and a light space is created to provide unity with the hole and contrast at the same time using a wood sheet. The rooms used the high ceiling to create a magnificent space where light poured out, and express a stable and private feeling. Otsuseiro-mushi provides a variety of experiences for each scene of the space, but the lighting system is used to create various lighting by day, night, and season, so you can enjoy the fun of the rich space. Space follows classical aesthetics and tries to provide a sensory experience to focus on its original taste.

Designstudiominwoo*는 시간이 흘러도 변하지 않는 ,‘TIMELESS MODERNITY’라는 컨셉 아래 두개의 공간을 색다르게 느낄 수 있도록 조성했다. 입구에서부터 두 개의 길을 통해 들어가는 세상은 같지만 다른 느낌을 준다. 갈림길을 통해 들어간 1번째 hall공간은 높은 천장에서 떨어지는 빛과 함께 희미하게 모습들을 반사하여, 연못에 낀 안개를 상상 했다. 연못 위 엔 고즈넉한 돌 작품이 위치하면서, 공간의 분위기를 조성한다. 그 위 삼각뿔로 조성된 물성이 다른 오브제가 공간의 포인트가 된다. 갈림길 중 2번째 room 공간은 벽에서 나오는 빛에 나무 사이로 비치는 빛을 연상하며, 부드러운 빛의 아름다움을 표현했다. 오쓰세이로무시의 공간구성은 크게 입구 , 홀, 룸 ,주방으로 이뤄져있다. 210PY 의 적지않은 평수의 영역을 크게 홀,과 룸(15ea)으로 크게 분류하고 각기 다른 공간의 scene을 연출하였다.
파사드에서는 갈대의 고즈넉한 시각적인 관심을 끌어내고, 카운터 벽체의 빛은 고객들을 환대한다. 메인 홀 천장은 기존 공간의 높낮이가 다른 형태에서 비롯되었으나 이러한 컨디션을 활용하여 기하학적인 도형과 천장 설비 구조를 그대로 표현해 본연의 건축 모습을 구현하고자 했다. 홀 공간 마다의 각기 다른 천고는 공간을 대하는 고객의 입장에서도 다양한 공감각적 경험을 할 수 있다. 내부 초입에서는 포인트 요소를 주기 위해 천장 오브제와 이태수 작가의 ‘stone compostion’ 작품 배치를 통해 고즈넉함을 표현 하고자 했다. 벽체의 마감재는 따뜻한 톤의 스페셜 페인트를 사용하여 소재가 가져다 주는 natural함을 표현하였고, 홀 내부 세미 룸에서는 우드소재를 사용해 공간 내의 또다른 공간 독립성을 부여했다. 세미룸에서는 전면 바리솔을 활용하여 미니멀함을 표현했다. 중앙 벽체는 자칫 비어 보일 수 있는 부분을 붙박이 테이블 구성으로 공간의 밀도감을 높였다.
다음으로 룸영역의 홀은 박공천정의 구조를 활용한 디자인을 적용하였다. 공간의 높은 천고를 활용했기도 하지만 홀 영역과의 대비대는 디자인으로 또다른 공간적 재미를 부여했다. 중앙의 면은 홀과 동일 하게 이태수작가의 작품이 배치되며, 넓은 대기 공간으로 활용한다. 입구 벽체는 컨셉을 표현하는 프린팅 바리솔을 이용해 임팩트 있는 공간을 연출하며, 우드 시트를 활용해 홀과의 통일성을 줌과 동시 대비가 될 수 있도록 담백한 공간으로 연출 하였다. room들은 높은 천고를 활용하여 빛이 쏟아지는 장엄한 공간을 연출했으며, 안정적이고 프라이빗함을 표현한다. 오쓰세이로무시는 공간의 장면마다 다양한 경험을 제공하기도 하지만, 조명 시스템을 이용해 낮,밤,계절별 다양한 조명을 연출하여 풍부한 공간의 재미를 느낄 수 있다. 공간은 고전적 미학을 따르며, 본연의 맛에 집중 할 수 있는 감각적 경험을 제공하려 한다.

















Design : DESIGN STUDIO MINWOO*
Location : B1F, Yuhwa Securities Building, 23-7, Yeouido-dong, Yeongdeungpo-gu, Seoul
Site Area : 695㎡
Completion : 2022
Photographer : Yongjoon Choi
'Interior Project > Cafe&Restaurant' 카테고리의 다른 글
| SAWO COFFEE RONTGEN (0) | 2023.04.12 |
|---|---|
| zodiac (0) | 2023.04.07 |
| Peer coffee roasters (0) | 2023.04.05 |
| PINK GORILLA COFFEE (0) | 2023.03.29 |
| tremor (0) | 2023.03.27 |
마실와이드 | 등록번호 : 서울, 아03630 | 등록일자 : 2015년 03월 11일 | 마실와이드 | 발행ㆍ편집인 : 김명규 | 청소년보호책임자 : 최지희 | 발행소 : 서울시 마포구 월드컵로8길 45-8 1층 | 발행일자 : 매일



