
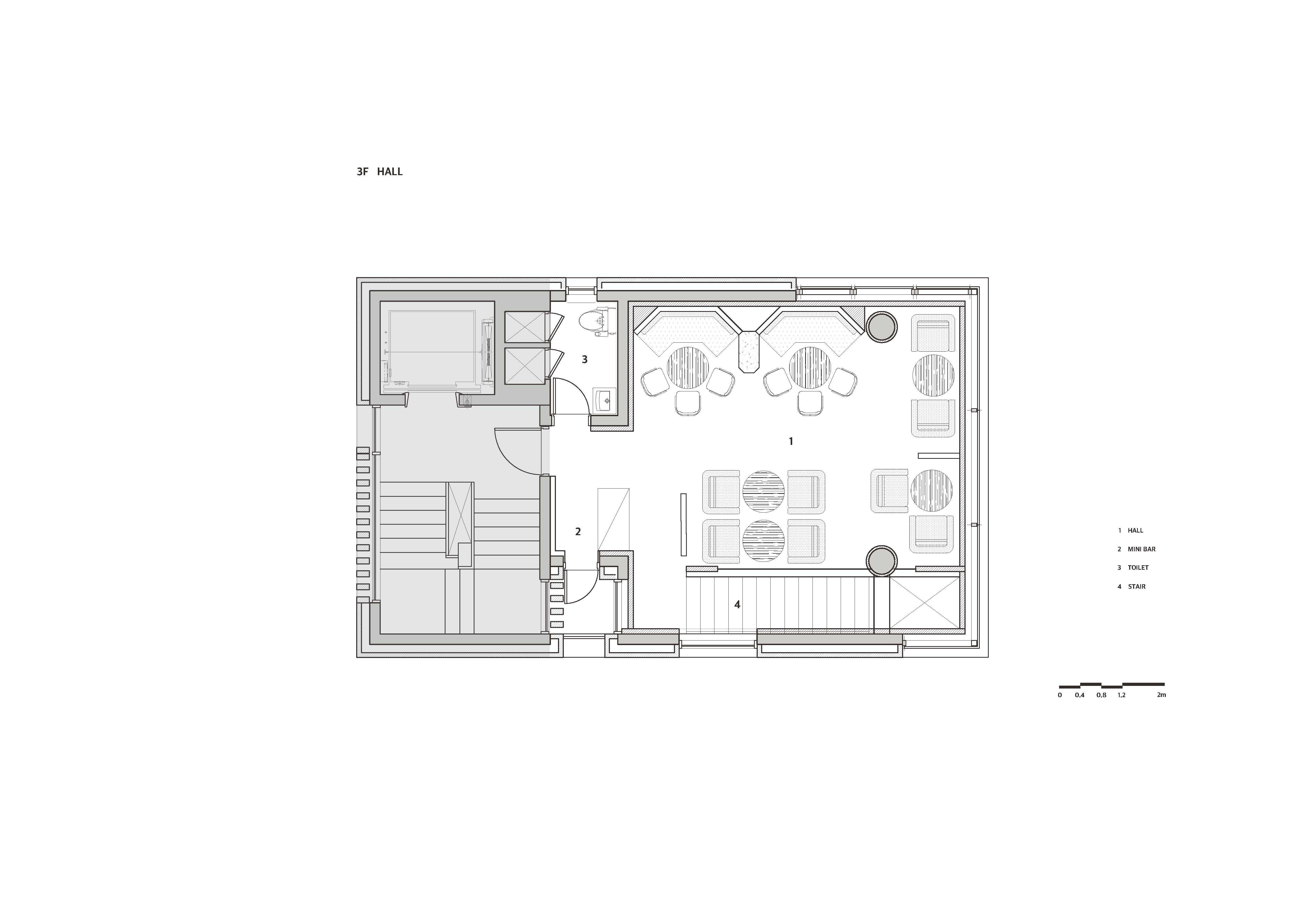
New zodiac
the thirteenth sign. It created a new space that has never been experienced before by mixing a scene of salon culture and modern things that aristocrats in the past enjoyed like a hideout. Zodiac's space composition is largely composed of a showroom on the first floor, a BAR space on the second floor, and a BAR space on the third floor. By efficiently classifying small-scale spaces of less than 30 pyeong, SCENE of different spaces was created.
The customer wanted to use the first floor as a store because it was only a space of 2 pyeong at the time of planning. Design Studio Minwoo has decided to operate as a showroom and storage to use the space of 2 pyeong more efficiently. Imagining the whisky repository of the past, using scrap materials to construct a whisky display shelf and add coziness through a dome-shaped ceiling configuration. It stimulates curiosity from people walking along the Seongsu-dong road.
When you go up to the second floor, the interior wall has a VINTAGE feeling of dark bricks, and the ceiling can feel like the Milky Way is floating through optical fiber lighting. The point elements and functions were solved by designing a cylindrical structure by applying the inconvenience of customers sitting on the BAR to the design stage in a long BAR configuration. The back of the BAR is designed to blend with whiskey bottles using BIG SLAB ceramic tiles. The two-story furniture was organized into classic furniture, reminiscent of a scene of salon culture that aristocrats enjoyed like a hideout.
The stairs to the third floor added classicity through details that can fix the carpet. At the top of the stairs, a photo zone was formed through a signature logo object, designed so that customers could be visually interested. As you go up to the three-story space, the mirror ceiling of the triangle structure reminiscent of the constellation appears at various angles, giving the lights in between a different color. The place that used to be the existing window was made into a barisol wall, creating various SCENEs and making it look like an impactful space, and the brand's IDENTITY was highlighted by attaching a logo on it. The third floor of the narrow space is functionally arranged through a built-in chair, and the sofa and table are modernized unlike the second floor. MINIBAR was directed as a point element using glass blocks and ceramic tiles. Zodiac provides various experiences for each scene of the space, but the lighting system is used to create various lighting by day and night, allowing you to enjoy the fun of the rich space. We have constructed scenes that can experience, immerse, and imagine space differently by layer, and we try to provide a sensory experience that can focus on the essence.

New zodiac (새로운 별자리)
13번째 별자리. 과거의 귀족들이 아지트 처럼 즐기던 살롱 문화의 한 장면과 현대의 것을 mix macth 하여 기존에 경험하지 못했던 새로운 공간을 조성했다. 조디악의 공간 구성은 크게 1층 쇼룸 , 2층,3층 BAR 공간으로 구성되어있다. 30평이 되지않은 작은 평수의 공간을 효율적으로 분류하여, 각기 다른 공간의 SCENE을 연출하였다.
고객은 1층을 기획 당시 2평남짓한 공간에 불과해 storege로 사용하길 원했다. 디자인스튜디오 민우는 2평남짓한 공간을 조금 더 효율적으로 사용하기 위해 쇼룸 겸 스토리지로 운영하기로 했다. 과거의 위스키 저장소를 상상하며, 고재를 사용하여 위스키 진열 선반을 구성하며 돔 형태의 천장 구성을 통해 아늑함을 더했다. 성수동 길을 산책하는 사람들로부터 호기심을 자극한다.
2층으로 올라가게 되면 내부 벽체는 어두운 벽돌의 VINTAGE 한 느낌이 묻어 있고, 천장은 광섬유 조명을 통해 은하수가 떠 있는듯한 느낌을 받을 수 있다. 긴 BAR 구성에 고객들이 BAR에 앉았을 때 불편한 점을 설계단계에 적용해 원기둥 구조로 설계하여 포인트 요소 및 기능을 해결하였다. BAR 후면은 BIG SLAB 세라믹 타일을 이용해 위스키 병과 어우러 질 수 있는 디자인을 하였다. 2층 가구는 귀족들이 아지트 처럼 즐기던 살롱 문화의 한 장면을 연상해 클래식한 가구로 정리했다.
3층으로 올라가는 계단은 카펫을 고정할 수 있는 디테일을 통해 클래식함을 더했다. 계단 위 쪽엔 시그니처 로고 오브제를 통해 포토존을 형성하여, 고객들이 시각적으로 관심이 갈수 있도록 디자인하였다. 3층 공간으로 올라가게 되면, 별자리를 연상케 하는 트라이앵글 구조의 미러 천장이 다양한 각도로 보이며, 사이사이 조명들로 하여금 색다름을 선사한다. 기존 창문 이었던 곳을 바리솔 벽체로 하여, 여러가지 SCENE들을 연출하고 임팩트 있는 공간으로 보이게 했으며, 그 위 로고 부착을 통해 브랜드의 IDENTITY를 부각했다. 좁은 공간의 3층을 붙박이 의자를 통해 기능적으로 배치 했으며, 소파와 테이블은 2층과 다르게 현대적으로 구성했다. MINIBAR는 유리 블럭과 세라믹 타일을 사용해 포인트요소로 연출했다. ‘조디악’은 공간의 장면마다 다양한 경험을 제공하기도 하지만, 조명 시스템을 이용해 낮,밤 계절별 다양한 조명을 연출하여 풍부한 공간의 재미를 느낄 수 있다. 공간을 층별로 다르게 경험하고 몰입하며 상상할 수 있는 장면을 구성했으며, 본질에 집중 할 수 있는 감각적 경험을 제공하려 한다.


















Design : DESIGN STUDIO MINWOO*
Location : 7th, 1st to 3rd floor, Seongsuil-ro 4-ga-gil, Seongdong-gu, Seoul
Site area : 94㎡
Completion : 2022
Photographer : Yongjoon Choi
'Interior Project > Cafe&Restaurant' 카테고리의 다른 글
| KELPL (0) | 2023.04.17 |
|---|---|
| SAWO COFFEE RONTGEN (0) | 2023.04.12 |
| Otsu seiromushi (0) | 2023.04.06 |
| Peer coffee roasters (0) | 2023.04.05 |
| PINK GORILLA COFFEE (0) | 2023.03.29 |
마실와이드 | 등록번호 : 서울, 아03630 | 등록일자 : 2015년 03월 11일 | 마실와이드 | 발행ㆍ편집인 : 김명규 | 청소년보호책임자 : 최지희 | 발행소 : 서울시 마포구 월드컵로8길 45-8 1층 | 발행일자 : 매일



