
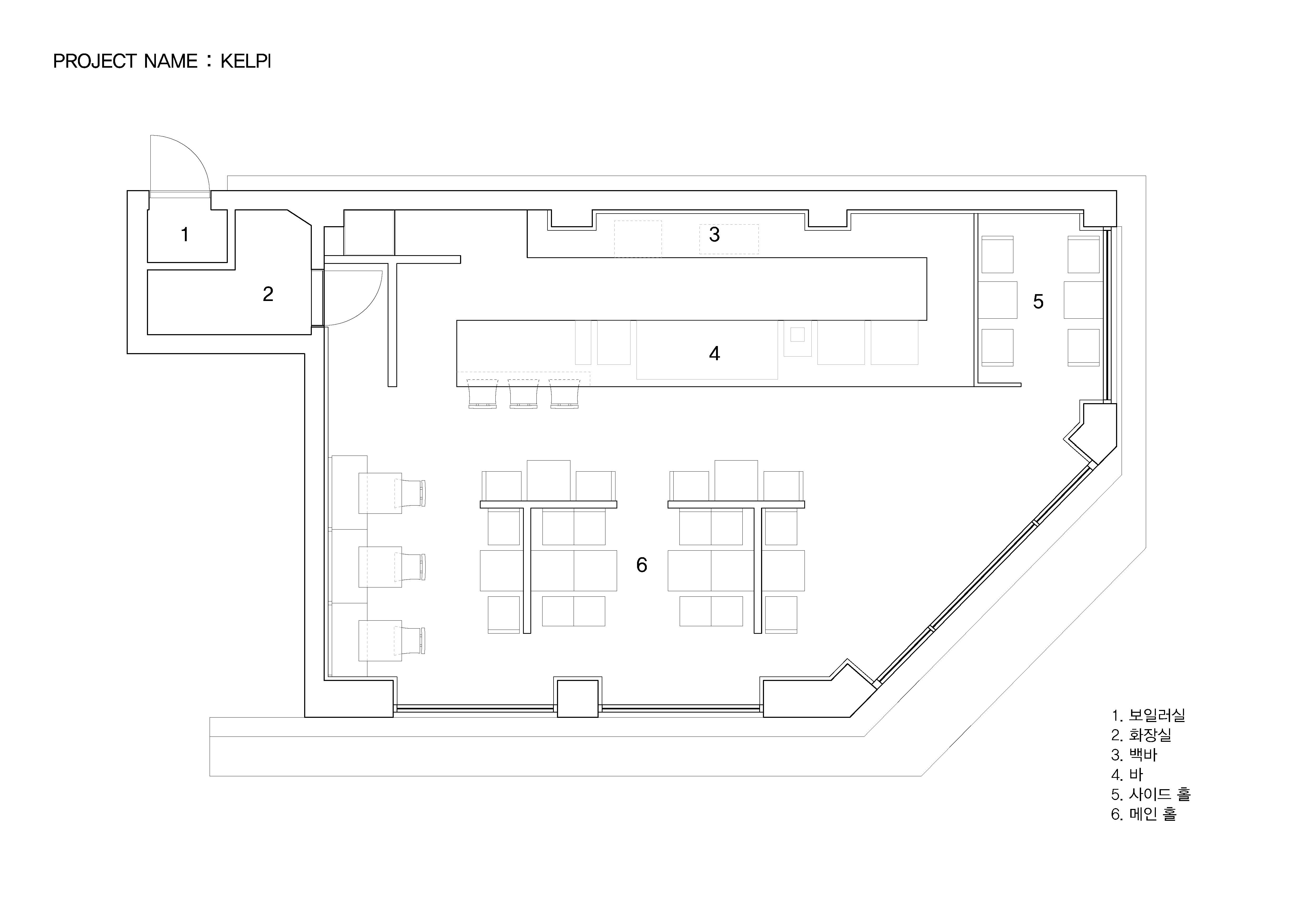
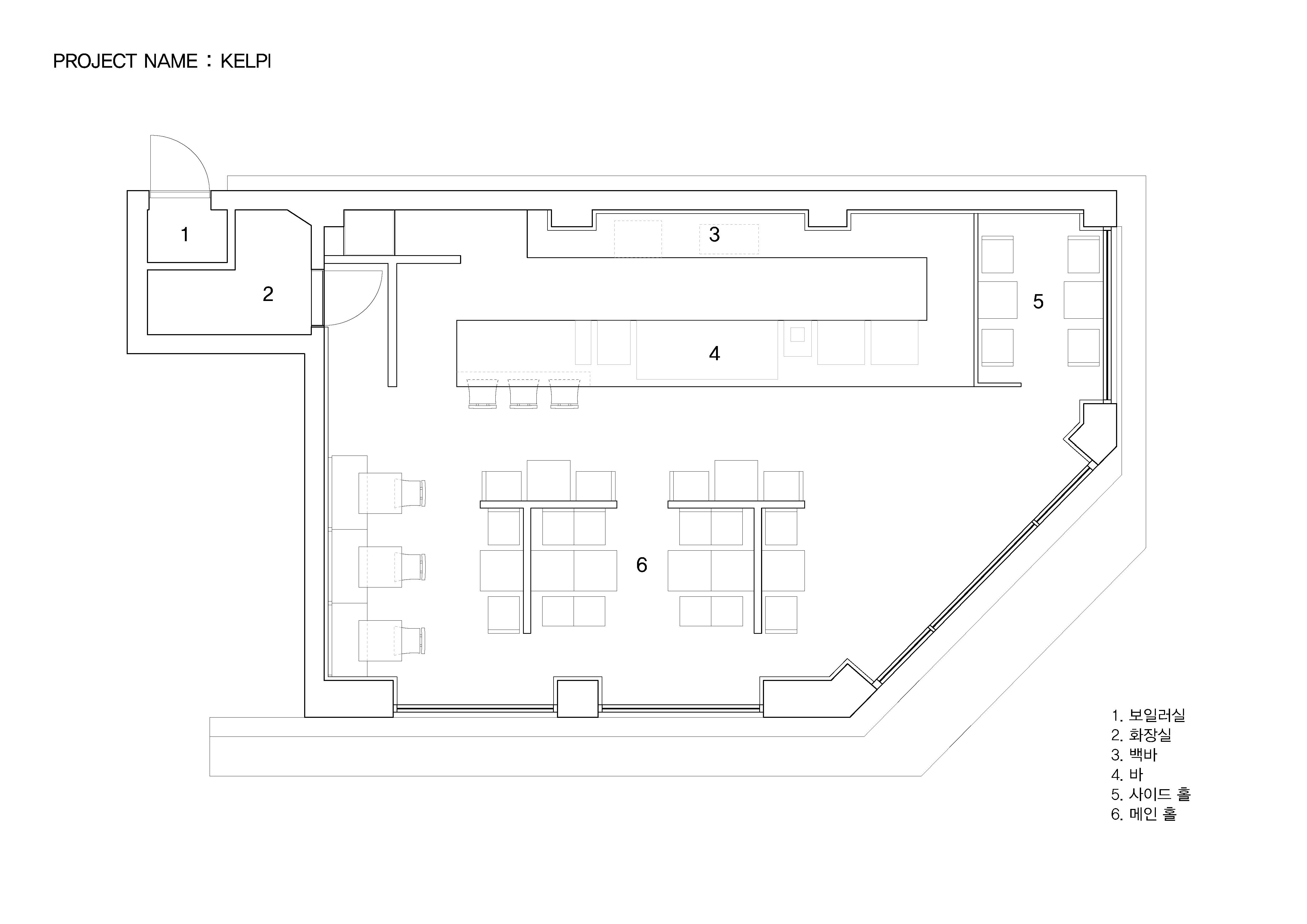
Located in Mangwon-dong, KELPI is a cafe that quietly reveals its presence. STUDIO GIMGEOSIL, who was in charge of the design, naturally matched detailed elements against a calm background, creating a clean and powerful space. Walnut-patterned wood is used in some areas of the interior and exterior that are cleanly finished in black and white to feel the warmth. In addition, the fan-shaped shape was used as a point element and chairs of various colors and designs were properly arranged to complete the non-monotonous space. You can see the sophisticated and serious KELPI through the cute Mangridan-gil alleys. The eye-catching sign from the entrance is boldly designed with black-colored stone, giving off a concise and weighty atmosphere. The door handle was made in the shape of a fan and gave some wit to the somewhat serious-looking entrance. When you come inside, various details are stably combined to reveal a subtle charm that you won't get tired of for a long time. Overall, a simple space with a black and white connection and a walnut pattern with a vertical line added a classic look. The long bar space on the right side was finished with walnut-patterned wood, and the grid-patterned point was given to the bottom of the table to accentuate the traditional feeling. It gave uniformity in black and white colors so that the pattern neck did not stand out and harmonized well, with a white marble top on the bar table and a black-colored chair at one end of the table. In addition, two white Bowers & Wilkins speakers hanging from a black frame harmonize with the patterned neck wall. The hall space, located opposite the bar, created a private atmosphere by dividing seats into two T-shaped partitions with white natural marble and stainless steel. The fan-shaped individual chairs placed in the hall revitalize the space while properly balancing them with black frames on the mint leather sofa. The seat on the wall of the walnut patterned neck shows a soft blend of vintage design with brown colored chairs and built-in sofas.

망원동에 위치한 KELPI는 조용히 존재감을 드러내는 카페다. 디자인을 담당한 STUDIO GIMGEOSIL은 차분한 배경에 디테일 요소를 자연스럽게 매치하면서 깔끔하고 힘 있는 공간을 연출했다. 블랙 앤 화이트로 깨끗하게 마감한 내외부 인테리어 일부 영역에 월넛 무늬목을 사용해 온기가 느껴지도록 했다. 또한 포인트 요소로 부채꼴 형태를 활용하고 다양한 색감과 디자인의 의자를 적절히 배치함으로써 단조롭지 않은 공간을 완성했다. 아기자기한 망리단길 골목 사이로 세련되고 진중한 모습의 KELPI를 볼 수 있다. 입구에서부터 시선을 사로잡는 간판은 블랙 컬러 석재로 볼드하게 디자인해 간결하고 무게감 있는 분위기를 풍긴다. 출입구 손잡이는 부채꼴 형태로 제작했는데 다소 진지해 보이는 입구에 약간의 위트를 준것이다. 내부로 들어오면 여러 디테일이 안정감 있게 어우러져 오래도록 질리지 않는 은은한 매력이 드러난다. 전체적으로 블랙 앤 화이트 연결감의 심플한 공간에 세로선이 가미된 월넛 무늬목으로 클래식한 멋을 더했다. 오른쪽에 길게 이어지는 바 공간은 월넛 무늬목으로 마감했고 테이블 아래쪽 무늬목에 격자무늬 포인트를 주면서 전통적인 느낌을 살렸다. 무늬목이 튀지 않고 잘 어우러지도록 블랙 앤 화이트 색감으로 통일성을 주었는데 바 테이블 위에 화이트 대리석 상판을 올리고 테이블 한쪽 끝에는 블랙 컬러 의자를 두었다. 또한 블랙 프레임에 매달린 화이트 Bowers & Wilkins 스피커 두 대가 무늬목 벽체와 조화를 이룬다. 바 맞은편에 위치한 홀 공간은 화이트 천연 대리석과 스테인리스 스틸을 적용한 두 개의 T자형 파티션으로 좌석을 나눠 프라이빗한 분위기를 조성했다. 홀에 배치된 부채꼴 모양의 개성 있는 의자는 민트 가죽 소파에 블랙 프레임으로 적절히 균형을 유지하면서 공간에 활력을 불어넣는다. 월넛 무늬목 벽 쪽에 위치한 좌석은 빈티지한 디자인에 갈색 계열 색감을 적용한 의자와 붙박이 소파로 부드러운 어울림을 보여준다.












Design : STUDIO GIMGEOSIL
Location : Mangwon-dong, Mapo-gu, Seoul
Site area : 66㎡
Completion : 2022
Photographer : KIM DONG KYU
'Interior Project > Cafe&Restaurant' 카테고리의 다른 글
| COMPARTIR RESTAURANT (0) | 2023.04.26 |
|---|---|
| Lolly-Laputan Kids Café (0) | 2023.04.20 |
| SAWO COFFEE RONTGEN (0) | 2023.04.12 |
| zodiac (0) | 2023.04.07 |
| Otsu seiromushi (0) | 2023.04.06 |
마실와이드 | 등록번호 : 서울, 아03630 | 등록일자 : 2015년 03월 11일 | 마실와이드 | 발행ㆍ편집인 : 김명규 | 청소년보호책임자 : 최지희 | 발행소 : 서울시 마포구 월드컵로8길 45-8 1층 | 발행일자 : 매일



