
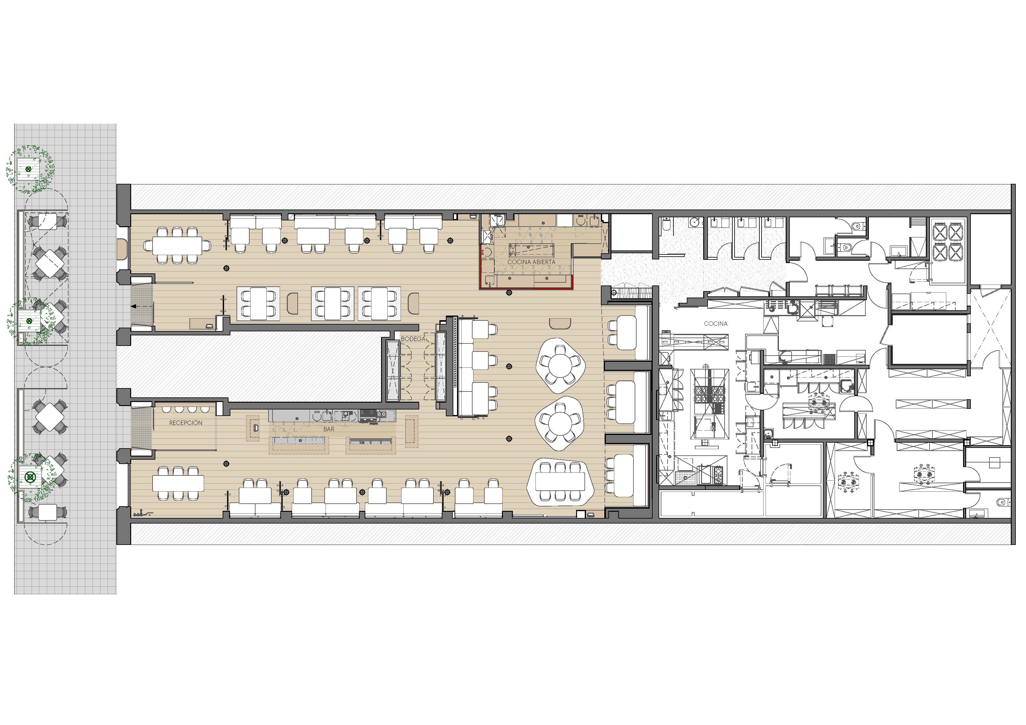
The restaurant is located in a classic venue in the Eixample district, with a spectacular steel structure dated from the beginning of the past century. One of those spaces where one would envision an art gallery with large abstract paintings, which is so common in this neighbourhood.
And so it is that we have imagined the design: an ample white space presided by three blue abstract "windows" towards the Mediterranean Sea: a sculptural, a pictorial and a textile window. Each of these "windows" became an opportunity tocollaborate with a different local artist, with whom we created custom-made pieces for the restaurant.
The curved shapes of mirrors and wicker dividers bring a warm counterpoint, converted into lamps of warm light scattered along the space, and bringing privacy to the tables, one of our client's priorities. They recreate an abstract landscape of sails and vessels, referencing the bay of Cadaques.
Bars and kitchens have simple and bold shapes, while they perform as energy nodes activating the different areas of the restaurant.

이 레스토랑은 지난 세기 초에 지어진 화려한 강철 구조를 가진 아이샘플 지역의 고전적인 장소에 위치해 있습니다. 이 동네에서 흔히 볼 수 있는 대형 추상화 미술관을 상상할 수 있는 공간 중 하나입니다. 그래서 우리는 그 디자인을 상상했습니다. 지중해를 향한 세 개의 파란색 추상적인 "창"이 있는 넉넉한 흰색 공간: 조각, 그림, 직물 창문. 이러한 각각의 "창문"은 다른 지역 예술가와 협업할 수 있는 기회가 되었고, 우리는 그와 함께 레스토랑을 위해 맞춤 제작된 작품을 만들었습니다. 거울과 고리형 칸막이의 곡선 모양은 따뜻한 카운터포인트를 제공하고 공간을 따라 흩어져 있는 따뜻한 빛의 램프로 변환되며 고객의 우선순위 중 하나인 테이블에 프라이버시를 제공합니다. 그들은 카다크 만을 참조하여 돛과 선박의 추상적인 풍경을 재현합니다. 바와 주방은 단순하고 대담한 모양을 가지고 있으며, 레스토랑의 다양한 영역을 활성화하는 에너지 노드 역할을 합니다.














Design : EL EQUIPO CREATIVO
Location : Barcelona
LIGHTING DESIGN : MMaslighing
PHOTOGRAPHY : Adria Goula
'Interior Project > Cafe&Restaurant' 카테고리의 다른 글
| Heytea at Longfor Paradise Walk in Chongqing (0) | 2023.05.02 |
|---|---|
| EMBER, Shenzhen (0) | 2023.04.28 |
| Lolly-Laputan Kids Café (0) | 2023.04.20 |
| KELPL (0) | 2023.04.17 |
| SAWO COFFEE RONTGEN (0) | 2023.04.12 |
마실와이드 | 등록번호 : 서울, 아03630 | 등록일자 : 2015년 03월 11일 | 마실와이드 | 발행ㆍ편집인 : 김명규 | 청소년보호책임자 : 최지희 | 발행소 : 서울시 마포구 월드컵로8길 45-8 1층 | 발행일자 : 매일



